Astora Márvány8

Eladó téglalakás
Budapest, XXIII. kerület, Soroksár, földszint

+ 20 kép 1/23
99 900 000 Ft99.9 M Ft 1 029 897 Ft/m2
2 + 2 szoba
97 m²
földszint
építés éve:1988

Részletes adatok

Fűtés: Gázkazán
Emelet: földszint
Energetikai besorolás: Nem adta meg a hirdető

Az OTP Bank lakáshitel ajánlataFizetett hirdetés

+36 70 609
Szabó Mónika
OTP Ingatlanpont Dunaharaszti

Érdekel az OTP Bank kedvezményes lakáshitel ajánlata? *

* A kérdésre „Igen” válasz bejelölése esetén, az „Üzenet küldése” gombra kattintva kijelentem, hogy az OTP Bank Nyrt. Adatkezelési tájékoztatójának tartalmát megismertem és tudomásul vettem.

Eladó téglalakás leírása

Árcsökkenés! Eladó sorház Budapest, XXIII. kerület közkedvelt részén!
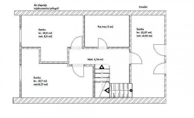
Budapest XXIII. kerületének egyik kedvelt utcájában kínálunk megvételre egy jó állapotú, belső kétszintes, könnyűszerkezetes sorházat, amely igazi otthonos hangulatot áraszt. Az ingatlan nettó 97, bruttó 110 négyzetméter alapterületű, kényelmes elosztású, 2+2 szobával és duplakomforttal rendelkezik. A ház különlegessége a közel 47 négyzetméteres, tágas és világos, kertkapcsolatos nappali, amelyet a korábbi terasz beépítésével alakítottak ki, így igazi központja lehet a családi életnek.
A saját, kizárólagos kerthasználat egy igazi kincs: bár nem nagy, éppen ideális arra, hogy a család kiüljön egy beszélgetésre, kávéra a barátokkal, nyári estéken gyertyafény mellett vacsorázzon, vagy egy kis zölddel vegye körül magát a rohanó hétköznapok után. A kerthez saját garázs is tartozik, az ingatlan minden közműve önálló mérőórával rendelkezik. A ház 1988-ban épült, majd 2001-ben szinte teljes körű felújításon esett át. A fűtésről gázcirkó és elektromos rendszer gondoskodik, a kellemes komfortérzetet a nappaliban központi klíma, és egy külön klíma biztosítja az emeleten.
Az elhelyezkedés szintén kiemelkedő: a ház nyugodt környezetben található, mégis kiváló közlekedési adottságokkal rendelkezik. A közeli buszjáratok (66, 66E, 123, 135, 166) gyors kapcsolatot biztosítanak a belváros és a környező kerületek felé, a H6-os HÉV-vel pedig szintén könnyedén elérhető a város. Átszállással az M3 metró is rövid idő alatt megközelíthető, autóval pedig néhány perc az M0-s autóút. A közelben minden megtalálható, ami a kényelmes mindennapokhoz szükséges: bevásárlási lehetőségek, iskola, óvoda, önkormányzat, gyógyszertár és orvosi rendelő, sportolási lehetőségek rövid időn belül elérhetőek.
Ez az ingatlan azok számára lehet ideális választás, akik szeretnék a kertvárosi nyugalmat élvezni, miközben tágas, világos terekkel rendelkező, jól karbantartott otthonban élnek, ahol a mindennapok kényelme és a városhoz való jó közlekedési kapcsolat egyaránt adott.
Ügyfeleink számára teljes körű ügyintézéssel állunk rendelkezésre. Kínálatunkból választott ingatlan finanszírozásához kedvezményes hitelmegoldásokat kínálunk, illetve az adásvételi szerződés megkötéséhez megbízható ügyvédi közreműködést is tudunk biztosítani!
Ha hirdetésünk felkeltette érdeklődését, kérem hívjon bizalommal a hét bármely napján!

Referencia szám: M312220

Hirdetés feltöltve: 2026. 02. 05. Utoljára módosítva: 2026. 02. 26.

4 szobás téglalakások ára Budapesten

Ebből az összehasonlításból megtudhatod, hogyan viszonyul a lakás ára a környékbeli téglalakások átlagos árához. Ez nem azt jelenti, hogy ennyivel olcsóbb vagy drágább, mint amennyit a lakás ér, hanem hogy ennyivel tér el a környékbeli átlagtól.

Ennek a m² ára
Soroksár m² ár
XXIII. kerület m² ár
Budapest m² ár
1030 e Ft
990 e Ft -4%
903 e Ft -14%
1758 e Ft 41%
Ennek az ára
Soroksár átlagár
XXIII. kerület átlagár
Budapest átlagár
99.9 M Ft m Ft
83.6 m Ft -19%
88.1 m Ft -13%
184.4 m Ft 46%

Az ingatlan elhelyezkedése

Cím: Budapest, XXIII. kerület, Soroksár, földszint

Eladó ingatlanok a környékről

XXIII. kerület
Eladó téglalakás

Budapest, XXIII. kerület

64.9 M Ft
2 szoba
64 m²
XXIII. kerület
Eladó téglalakás

Budapest, XXIII. kerület

85 M Ft
3 szoba
84 m²
XIX. kerület, Kispest, Iparos utca 2
Eladó téglalakás

Budapest, XIX. kerület

79.443 M Ft
2 szoba
41 m²
X. kerület, Gyárdűlő, Ceglédi	út 11
Eladó téglalakás

Budapest, X. kerület

83.065 M Ft
3 szoba
55 m²
XIX. kerület, Kispest, Iparos utca 2
Eladó téglalakás

Budapest, XIX. kerület

59.248 M Ft
2 szoba
39 m²
X. kerület, Gyárdűlő, Ceglédi	út 11
Eladó téglalakás

Budapest, X. kerület

97.636 M Ft
3 szoba
65 m²
XXIII. kerület
Eladó téglalakás

Budapest, XXIII. kerület

110 M Ft
4 szoba
94 m²
XXIII. kerület
Eladó téglalakás

Budapest, XXIII. kerület

58 M Ft
2 szoba
40 m²
X. kerület, Gyárdűlő, Ceglédi	út 11
Eladó téglalakás

Budapest, X. kerület

97.636 M Ft
3 szoba
65 m²
X. kerület, Gyárdűlő, Ceglédi	út 11
Eladó téglalakás

Budapest, X. kerület

97.636 M Ft
3 szoba
65 m²
XXIII. kerület, Soroksár
Eladó téglalakás

Budapest, XXIII. kerület

54.9 M Ft
2 szoba
70 m²
XXIII. kerület
Eladó téglalakás

Budapest, XXIII. kerület

38 M Ft
2 szoba
38 m²
XXIII. kerület
Eladó téglalakás

Budapest, XXIII. kerület

54.9 M Ft
2 szoba
70 m²
XXIII. kerület
Eladó téglalakás

Budapest, XXIII. kerület

85 M Ft
3 szoba
84 m²
XXIII. kerület
Eladó téglalakás

Budapest, XXIII. kerület

89 M Ft
2 + 2 szoba
90 m²
XXIII. kerület, Soroksár
Eladó téglalakás

Budapest, XXIII. kerület

74.9 M Ft
3 szoba
107 m²
XXIII. kerület
Eladó téglalakás

Budapest, XXIII. kerület

58 M Ft
2 szoba
40 m²
X. kerület, Gyárdűlő, Ceglédi	út 11
Eladó téglalakás

Budapest, X. kerület

83.065 M Ft
3 szoba
55 m²
XX. kerület, Pacsirtatelep
Eladó panellakás

Budapest, XX. kerület

57 M Ft
1 + 1 szoba
52 m²
XXIII. kerület
Eladó téglalakás

Budapest, XXIII. kerület

79.9 M Ft
3 szoba
87 m²
X. kerület, Gyárdűlő, Ceglédi	út 11
Eladó téglalakás

Budapest, X. kerület

82.961 M Ft
3 szoba
55 m²
X. kerület, Gyárdűlő, Ceglédi	út 11
Eladó téglalakás

Budapest, X. kerület

82.961 M Ft
3 szoba
55 m²
X. kerület, Gyárdűlő, Ceglédi	út 11
Eladó téglalakás

Budapest, X. kerület

83.065 M Ft
3 szoba
55 m²
X. kerület, Gyárdűlő, Ceglédi	út 11
Eladó téglalakás

Budapest, X. kerület

83.183 M Ft
3 szoba
55 m²

Falusi CSOK ingatlanok

Végegyháza
Eladó családi ház

Végegyháza

62.9 M Ft
4 + 1 szoba
150 m²
Nagybaracska
Eladó családi ház

Nagybaracska

35 M Ft
3 szoba
110 m²
Háromfa, Kossuth
Eladó családi ház

Háromfa

22.4 M Ft
1247 m²
139 m²
Vácegres
Eladó családi ház

Vácegres

68.5 M Ft
3 szoba
116 m²
Ceglédbercel
Eladó családi ház

Ceglédbercel

67 M Ft
4 szoba
165 m²
Nyáregyháza
Eladó családi ház

Nyáregyháza

68.9 M Ft
4 szoba
142 m²
Villány
Eladó családi ház

Villány

31 M Ft
1 szoba
35 m²
Úri
Eladó családi ház

Úri

260 M Ft
7 szoba
300 m²