NapForrás 20 - Buda

Eladó téglalakás
Budapest, XXII. kerület, földszint

+ 4 kép 1/7
63 200 000 Ft63.2 M Ft 1 663 158 Ft/m2
2 szoba
38 m²
földszint
építés éve:1900

Részletes adatok

Állapot: Felújított
Fűtés: Gázkazán
Emelet: földszint
Energetikai besorolás: Nem adta meg a hirdető

Az OTP Bank lakáshitel ajánlataFizetett hirdetés

+36 70 237
Zatykó Krisztina
Budapest XI. kerület OTP Ingatlanpont

Érdekel az OTP Bank kedvezményes lakáshitel ajánlata? *

* A kérdésre „Igen” válasz bejelölése esetén, az „Üzenet küldése” gombra kattintva kijelentem, hogy az OTP Bank Nyrt. Adatkezelési tájékoztatójának tartalmát megismertem és tudomásul vettem.

Eladó téglalakás leírása

FELÚJÍTOTT VILLALAKÁS BUDAFOKON SAJÁT KERTTEL, PARKOLÓVAL.

Eladásra kínálok egy teljeskörűen felújított, egyedi atmoszférájú lakást egy századfordulós villában, csendes, zöld környezetben.

A ház egykor egy jelentős, nagy múltú család birtoka volt, és a mai napig őrzi a korszak eleganciáját: hatalmas, ősfás kert, karakteres építészeti részletek, és egy különleges hangulat, amit ritkán találni.

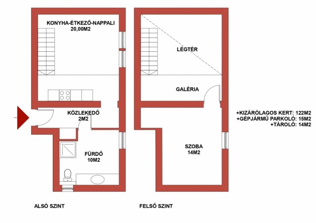
A lakás a villa magasföldszintjén helyezkedik el. A 4,2 méteres belmagasság lehetővé tette egy praktikus, intim galéria kialakítását, így a 30 nm-es alapterület 50 nm hasznos térként funkcionál.

A nappali-konyha tágas, napfényes, nagy ablakai a kertre néznek, a galérián pedig kényelmes hálórész kapott helyet. A lakáshoz 122 nm saját kertrész, saját parkoló, valamint 14 nm-es tároló tartozik. A kertbe autóval is kényelmesen be lehet állni.

Az ingatlan tehermentes, azonnal költözhető, de nem hitelezhető. Ideális választás mindazoknak, akik értékelik a történelmi környezetet, a különleges atmoszférát és a modern, igényes kialakítást.

Referenciaszám: M324848

Referencia szám: M324848

Hirdetés feltöltve: 2026. 03. 21. Utoljára módosítva: 2026. 04. 01.

2 szobás téglalakások ára Budapesten

Ebből az összehasonlításból megtudhatod, hogyan viszonyul a lakás ára a környékbeli téglalakások átlagos árához. Ez nem azt jelenti, hogy ennyivel olcsóbb vagy drágább, mint amennyit a lakás ér, hanem hogy ennyivel tér el a környékbeli átlagtól.

Ennek a m² ára
XXII. kerület m² ár
Budapest m² ár
1663 e Ft
1256 e Ft -32%
1694 e Ft 2%
Ennek az ára
XXII. kerület átlagár
Budapest átlagár
63.2 M Ft m Ft
95.6 m Ft 34%
89.8 m Ft 30%

Az ingatlan elhelyezkedése

Cím: Budapest, XXII. kerület, földszint

Eladó ingatlanok a környékről

XVIII. kerület, Szent Imre kertváros, Tarkő utca
Eladó családi ház

Budapest, XVIII. kerület

209.9 M Ft
7 szoba
295 m²
XX. kerület, Gubacsipuszta, Eperjes utca
Eladó panellakás

Budapest, XX. kerület

46.9 M Ft
1 + 1 szoba
43 m²
XXI. kerület, Királyerdő, Százszorszép utca
Eladó ikerház

Budapest, XXI. kerület

97.9 M Ft
3 szoba
102 m²
VIII. kerület, Palotanegyed, Mikszáth Kálmán Tér
Eladó téglalakás

Budapest, VIII. kerület

81.5 M Ft
2 szoba
53 m²
IX. kerület, Ferencváros, Balázs Béla utca
Eladó téglalakás

Budapest, IX. kerület

149.9 M Ft
3 szoba
67 m²
XXII. kerület
Eladó téglalakás

Budapest, XXII. kerület

54 M Ft
2 szoba
50 m²
XXI. kerület, Csepel rózsadomb, II. Rákóczi Ferenc utca
Eladó családi ház

Budapest, XXI. kerület

39.9 M Ft
2 szoba
46 m²
XX. kerület, Gubacsipuszta, Orsolya utca
Eladó téglalakás

Budapest, XX. kerület

57.9 M Ft
2 szoba
56 m²
IX. kerület, Ferencváros, Thaly Kálmán utca
Eladó téglalakás

Budapest, IX. kerület

63.9 M Ft
1 szoba
33 m²
XX. kerület, Gubacs, Téglagyártó utca
Eladó téglalakás

Budapest, XX. kerület

76.9 M Ft
2 szoba
52 m²
XXII. kerület
Eladó téglalakás

Budapest, XXII. kerület

170 M Ft
5 szoba
130 m²
XI. kerület, Kelenföld, Etele út
Eladó panellakás

Budapest, XI. kerület

69.9 M Ft
2 szoba
48 m²
XXII. kerület, Budatétény, Terv utca
Eladó téglalakás

Budapest, XXII. kerület

94 M Ft
3 szoba
60 m²
XX. kerület, Gubacsipuszta, Alsó határút
Eladó családi ház

Budapest, XX. kerület

46.9 M Ft
1 + 1 szoba
38 m²
XXII. kerület
Eladó téglalakás

Budapest, XXII. kerület

150 M Ft
6 szoba
142 m²
XXII. kerület
Eladó téglalakás

Budapest, XXII. kerület

160 M Ft
4 szoba
125 m²
XXII. kerület
Eladó téglalakás

Budapest, XXII. kerület

160 M Ft
4 szoba
130 m²
XXII. kerület
Eladó téglalakás

Budapest, XXII. kerület

85 M Ft
4 szoba
115 m²
XXII. kerület, Nagytétény, Tenkes
Eladó téglalakás

Budapest, XXII. kerület

54.9 M Ft
1 + 1 szoba
44 m²
XXII. kerület
Eladó téglalakás

Budapest, XXII. kerület

160 M Ft
4 szoba
125 m²
XXI. kerület, Erdőalja, Kossuth Lajos utca
Eladó panellakás

Budapest, XXI. kerület

63.5 M Ft
1 + 2 szoba
54 m²
VII. kerület, Külső Erzsébetváros, Damjanich utca
Eladó téglalakás

Budapest, VII. kerület

77.9 M Ft
1 + 1 szoba
34 m²
XXII. kerület
Eladó téglalakás

Budapest, XXII. kerület

58 M Ft
1 + 1 szoba
44 m²
XI. kerület, Kelenföld, Aliz utca
Eladó téglalakás

Budapest, XI. kerület

220 M Ft
2 + 1 szoba
80 m²

Falusi CSOK ingatlanok

Szabadbattyán
Eladó családi ház

Szabadbattyán

147.99 M Ft
5 szoba
255 m²
Érpatak
Eladó családi ház

Érpatak

35 M Ft
4 szoba
160 m²
Balatonakali
Eladó ikerház

Balatonakali

560 M Ft
4 szoba
140 m²
Pécsvárad
Eladó családi ház

Pécsvárad

189 M Ft
7 szoba
618 m²
Bodajk
Eladó ikerház

Bodajk

69.4 M Ft
5 szoba
90 m²
Tápiógyörgye
Eladó családi ház

Tápiógyörgye

24.99 M Ft
6 + 1 szoba
153 m²
Vasvár
Eladó téglalakás

Vasvár

40.4 M Ft
2 szoba
0 m²
Szentkirályszabadja
Eladó családi ház

Szentkirályszabadja

119.9 M Ft
6 szoba
185 m²