Metrodom

Eladó téglalakás
Budapest, XXII. kerület, Családi ház

+ 5 kép 1/8
99 900 000 Ft99.9 M Ft 1 536 923 Ft/m2
3 szoba
65 m2
Családi ház
építés éve:2026

Részletes adatok

Fűtés: Egyéb
Emelet: 1. emelet
Parkolás: Kocsibeálló
Közmű: Víz, Villany, Csatorna
Energetikai besorolás: Nem adta meg a hirdető

Az OTP Bank lakáshitel ajánlataFizetett hirdetés

+36 70 432
Tatár Szabolcs
Otthon Plusz Ingatlan

Érdekel az OTP Bank kedvezményes lakáshitel ajánlata? *

* A kérdésre „Igen” válasz bejelölése esetén, az „Üzenet küldése” gombra kattintva kijelentem, hogy az OTP Bank Nyrt. Adatkezelési tájékoztatójának tartalmát megismertem és tudomásul vettem.

Eladó téglalakás leírása

Hivatkozzon erre, kód: 5090TSZ

- ÚJ ÉPÍTÉSŰ LAKÁSOK

- KÖLTSÉGHATÉKONY, ÉRTÉKÁLLÓ BEFEKTETÉS

- NAPPALI + 2-3 SZOBA, FELSZÍNI PARKOLÓ

- IGÉNY SZERINTI BEFEJEZÉS, MAGAS MŰSZAKI TARTALOM

Budafok csendes, zöldövezeti részén új építésű 5 lakásos társasházban költséghatékony, kényelmes terekkel rendelkező nappali + 2-3 szobás lakások leköthetők gk. beállóval, igény szerinti befejezéssel.

Várható átadás: 2026. december.

A kivitelező több éves tapasztalattal, számos referencia ingatlannal rendelkezik.

JELEN HIRDETÉSBEN SZEREPLŐ LAKÁS:

Emelet 5-ös lakás – 99.900.000,- Ft (65.13m2 + erkély 6m2): előtér (3.06m2), közlekedő (5.50m2), tároló (5.04m2), wc (1.09m2), fürdőszoba (3.98m2), szoba (10.62m2), szoba (10.62m2), konyha (7.21m2) – étkező – nappali (18.01m2), erkély (6m2). /Kód: 5090/

AZ ÉPÜLETBEN TALÁLHATÓ TOVÁBBI LAKÁS KÍNÁLATOK:

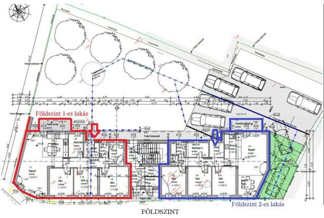
FÖLDSZINT:

1-es lakás – 129.000.000,- Ft (88.16m2 + fedett terasz 6m2): előtér (3.42m2), közlekedő (8.16m2), wc (1.98m2), fürdőszoba (5.22m2), szoba (13.44m2), szoba (10.03m2), szoba (10.03m2), gardrób (4.64m2), tároló (5.51m2), konyha (8.03m2) – étkező – nappali (17.70m2), fedett terasz (6m2). /Kód: 5086/

2-es lakás – 119.000.000,- Ft (84.29m2 + fedett terasz 6m2): előtér (3.06m2), konyha (6.51m2) – étkező (6.57m2) – nappali (18.92m2), szoba (10.62m2), szoba (10.62m2), szoba (10.8m2), közlekedő (7.86m2), fürdőszoba (3.12m2), háztartási helyiség (5.04m2), wc (1.17m2), fedett terasz (6m2). /Kód: 5087/

EMELET:

3-as lakás: ELADVA!

4-es lakás – 79.900.000,- Ft (55.27m2): előtér (4.59m2), dolgozó – kis szoba (5.22m2), tároló (2.02m2), fürdőszoba (4.50m2), szoba (12.16m2), konyha (8.28m2) – étkező – nappali (18.50m2). /kód: 5089/

Szerkezeti leírás: Az épület beton alapra épül. 30-as tégla főfalak + 15cm grafitos dryvit szigetelés. 10-es vakolt tégla válaszfalak. Kívül barnára színterezett 3 rétegű bukó – nyíló, műanyag szerkezetű nyílászárók – redőnytokokkal ellátva. A közbenső födém betongerendás, míg a zárófödém fa szerkezetű + 20cm kőzetgyapot szigetelés. Cserép fedésű tető, alatta fóliaréteg.

Az igény szerinti befejezésnek köszönhetően a beltéri ajtók 70.000,- Ft / db áron, a meleg burkolatok 5.000,- Ft / m2, a hideg burkolatok 7.000,- Ft / m2 árig választhatóak. Lehetpség van az igény szerinti szaniterek kiválasztására is.
Riasztó előkészítést és viacolorozott autóbeállót tartalmaz a vételár.

Fűtés, meleg víz ellátás: A lakások fűtése és meleg víz ellátása energiatakarékos 10Kw-os Fischer típusú hőszivattyúról biztosított. A fűtést minden helyiségben padlófűtés szolgáltatja.

Parkolás: zárt udvaron belül lakásonként 1 gépkocsinak fedetlen-felszíni beálló áll rendlekezésre.

Megközleíthetőség és infrastruktúra kiváló! Buszmegálló, villamosmegálló pár perc sétatávolságra található. Közintézmények, bevásárlási lehetőségek szintén a közelben.

További hasonló ingatlanok találhatók még a kínálatunkban!

Szüksége van hitelre? SEGÍTÜNK!

Bankfüggetlen hitel tanácsadónk díjmentesen áll az Ön rendelkezésére! Keressen bizalommal!

A hirdetésben szereplő adatok, információk, képek, alaprajzok stb... tájékoztató jellegűek! Irodánk az esetleges elírásokért felelősséget nem tud vállalni!

Tájékoztatjuk a Tisztelt Érdeklődőket, hogy az ingatlan hirdetésében szereplő telefonszám felhívásával Önök hozzájárulnak személyes adataik (név, telefonszám), a hirdetést feladó -Otthonplusz.hu Kft. - által a bizalmas kezeléshez és nyilvántartáshoz.

Hirdetés feltöltve: 2026. 01. 21.

3 szobás téglalakások ára Budapesten

Ebből az összehasonlításból megtudhatod, hogyan viszonyul a lakás ára a környékbeli téglalakások átlagos árához. Ez nem azt jelenti, hogy ennyivel olcsóbb vagy drágább, mint amennyit a lakás ér, hanem hogy ennyivel tér el a környékbeli átlagtól.

Ennek a m² ára
XXII. kerület m² ár
Budapest m² ár
1537 e Ft
1393 e Ft -10%
1692 e Ft 9%
Ennek az ára
XXII. kerület átlagár
Budapest átlagár
99.9 M Ft m Ft
90.9 m Ft -10%
130.6 m Ft 24%

Az ingatlan elhelyezkedése

Cím: Budapest, XXII. kerület, Családi ház

Eladó ingatlanok a környékről

Eladó téglalakás
Eladó téglalakás

III. kerület, Óbudaisziget, Folyamőr utca

69.9 M Ft
1 szoba
25 m2
Eladó téglalakás
Eladó téglalakás

III. kerület, Óbuda, Szomolnok utca

89.9 M Ft
2 + 2 szoba
96 m2
Eladó téglalakás
Eladó téglalakás

XXII. kerület, Budafok

170 M Ft
5 szoba
130 m2
Eladó téglalakás
Eladó téglalakás

XXII. kerület, Budatétény

14.9 M Ft
4 szoba
132 m2
Eladó téglalakás
Eladó téglalakás

XXII. kerület

170 M Ft
5 szoba
130 m2
Eladó téglalakás
Eladó téglalakás

I. kerület, Krisztinaváros, Feszty Árpád utca

78.99 M Ft
1 szoba
28 m2
Eladó téglalakás
Eladó téglalakás

VI. kerület, Külső Terézváros, Szív utca

124.9 M Ft
3 szoba
94 m2
Eladó téglalakás
Eladó téglalakás

XXII. kerület

85 M Ft
4 szoba
115 m2
Eladó téglalakás
Eladó téglalakás

XXII. kerület

159 M Ft
6 szoba
170 m2
Eladó téglalakás
Eladó téglalakás

XXII. kerület

85 M Ft
4 szoba
115 m2
Eladó téglalakás
Eladó téglalakás

XXII. kerület

129.9 M Ft
5 szoba
203 m2
Eladó téglalakás
Eladó téglalakás

VI. kerület, Külső Terézváros, Szófia utca

112.9 M Ft
4 szoba
103 m2
Eladó téglalakás
Eladó téglalakás

IV. kerület, Újpest, Kassai utca

84.9 M Ft
2 + 1 szoba
71 m2
Eladó téglalakás
Eladó téglalakás

VII. kerület, Belső Erzsébetváros, Rózsa utca

170 M Ft
5 szoba
124 m2
Eladó téglalakás
Eladó téglalakás

XXII. kerület

159 M Ft
6 szoba
170 m2
Eladó téglalakás
Eladó téglalakás

XXII. kerület, Budatétény, Terv utca

94 M Ft
3 szoba
60 m2
Eladó téglalakás
Eladó téglalakás

XXII. kerület, Nagytétény

61.99 M Ft
2 szoba
45 m2
Eladó téglalakás
Eladó téglalakás

XXII. kerület

85 M Ft
4 szoba
115 m2
Eladó téglalakás
Eladó téglalakás

XI. kerület, Gellérthegy, Gyula utca

130 M Ft
2 szoba
56 m2
Eladó téglalakás
Eladó téglalakás

XXII. kerület

160 M Ft
4 szoba
130 m2
Eladó téglalakás
Eladó téglalakás

XXII. kerület

170 M Ft
5 szoba
128 m2
Eladó téglalakás
Eladó téglalakás

XIV. kerület, Kiszugló, Kövér Lajos utca

168 M Ft
3 + 1 szoba
84 m2
Eladó téglalakás
Eladó téglalakás

XXII. kerület

169.9 M Ft
3 szoba
144 m2
Eladó téglalakás
Eladó téglalakás

XXII. kerület

85 M Ft
4 szoba
115 m2

Falusi CSOK ingatlanok

Eladó családi ház
Eladó családi ház

Selyeb

25 M Ft
2 szoba
350 m2
Eladó családi ház
Eladó családi ház

Tab

14.9 M Ft
3 szoba
110 m2
Eladó családi ház
Eladó családi ház

Nagyhegyes

80 M Ft
2 szoba
94 m2
Eladó családi ház
Eladó családi ház

Biharnagybajom

30.5 M Ft
4 szoba
110 m2
Eladó családi ház
Eladó családi ház

Szentbékkálla, Szentbékkálla

63.9 M Ft
2 szoba
143 m2
Eladó családi ház
Eladó családi ház

Érsekcsanád

68.8 M Ft
3 szoba
120 m2
Eladó családi ház
Eladó családi ház

Pécsvárad

85 M Ft
4 szoba
100 m2
Eladó családi ház
Eladó családi ház

Bugac

34.4 M Ft
3 szoba
70 m2