Metrodom

Eladó téglalakás
Budapest, XXI. kerület, földszint

+ 15 kép 1/18
67 990 000 Ft67.99 M Ft 1 387 551 Ft/m2
2 szoba
49 m²
földszint
építés éve:2004

Részletes adatok

Állapot: Felújított
Fűtés: Gázkazán
Emelet: földszint
Energetikai besorolás: C

Az OTP Bank lakáshitel ajánlataFizetett hirdetés

+36 70 242
Erdélyi Miklós István
Otp Ingatlanpont Falk Miksa

Érdekel az OTP Bank kedvezményes lakáshitel ajánlata? *

* A kérdésre „Igen” válasz bejelölése esetén, az „Üzenet küldése” gombra kattintva kijelentem, hogy az OTP Bank Nyrt. Adatkezelési tájékoztatójának tartalmát megismertem és tudomásul vettem.

Eladó téglalakás leírása

***Kertkapcsolatos, újszerű, 2 szobás lakás eladó Csepel belvárosában.*** Kizárólag Nálunk!
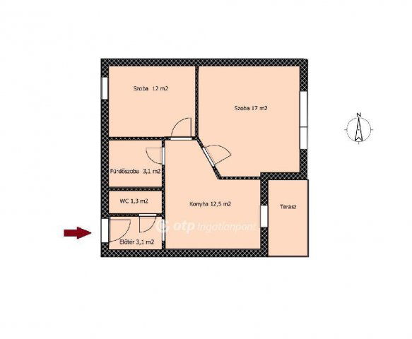
Eladó egy 49 m2-es, földszinti, kertkapcsolatos lakás egy 2004-ben épült, rendezett és biztonságos társasházban.
A lakás elosztása praktikus és otthonos: nappali + hálószoba, tágas étkezős konyha, külön fürdőszoba és WC. Egy hangulatos kis terasz, amely a zöld kertből közelíthető meg, ideális hely egy kávéra vagy pihenésre a nap végén.

A lakás alkalmas az Otthon Start Program nyújtotta Fix 3%-os lakáshitelre.

Műszaki jellemzők:
Építés éve: 2004. Állapot: újszerű, gondozott lakás. Fűtés: kondenzációs gázkazán. Nyílászárók: 2 rétegű műanyag ablakok alumínium redőnnyel, légkondicionálóval felszerelt. Biztonsági záras bejárati ajtó és kaputelefon.

Az épületről:
A társasház jó műszaki állapotú, rendezett és pénzügyileg stabil, megtakarítással rendelkezik.
A közösségi terek kamerával megfigyeltek és mozgásérzékelős világítással ellátottak.
A lakáshoz garázshely nem tartozik, de az épületben vásárolható vagy bérelhető parkolóhely.
A környéken a parkolás díjmentes.

Ingatlanjogász ügyvédi iroda vagyunk.

Referencia szám: M316610-ZE

Hirdetés feltöltve: 2025. 11. 18. Utoljára módosítva: 2026. 03. 06.

2 szobás téglalakások ára Budapesten

Ebből az összehasonlításból megtudhatod, hogyan viszonyul a lakás ára a környékbeli téglalakások átlagos árához. Ez nem azt jelenti, hogy ennyivel olcsóbb vagy drágább, mint amennyit a lakás ér, hanem hogy ennyivel tér el a környékbeli átlagtól.

Ennek a m² ára
XXI. kerület m² ár
Budapest m² ár
1388 e Ft
951 e Ft -46%
1699 e Ft 18%
Ennek az ára
XXI. kerület átlagár
Budapest átlagár
67.99 M Ft m Ft
40 m Ft -70%
90.2 m Ft 25%

Az ingatlan elhelyezkedése

Cím: Budapest, XXI. kerület, földszint

Eladó ingatlanok a környékről

XI. kerület, Kelenföld
Eladó téglalakás

Budapest, XI. kerület

187.098 M Ft
4 szoba
118 m²
XIII. kerület, Angyalföld, Jász utca 135-137
Eladó téglalakás

Budapest, XIII. kerület

104 M Ft
1 szoba
41 m²
XXI. kerület
Eladó téglalakás

Budapest, XXI. kerület

27.9 M Ft
1 szoba
25 m²
XIII. kerület, Angyalföld, Jász utca 135-137
Eladó téglalakás

Budapest, XIII. kerület

99 M Ft
1 szoba
41 m²
XIII. kerület, Angyalföld, Jász utca 135-137
Eladó téglalakás

Budapest, XIII. kerület

124 M Ft
3 szoba
60 m²
XIV. kerület, Alsórákos
Eladó téglalakás

Budapest, XIV. kerület

99 M Ft
3 szoba
73 m²
XXI. kerület
Eladó téglalakás

Budapest, XXI. kerület

59.9 M Ft
2 + 1 szoba
61 m²
XIII. kerület, Újlipótváros
Eladó téglalakás

Budapest, XIII. kerület

140.9 M Ft
3 szoba
70 m²
XXI. kerület
Eladó téglalakás

Budapest, XXI. kerület

134 M Ft
4 + 1 szoba
0 m²
XXI. kerület
Eladó téglalakás

Budapest, XXI. kerület

47 M Ft
2 szoba
80 m²
XXI. kerület
Eladó téglalakás

Budapest, XXI. kerület

49.9 M Ft
1 szoba
36 m²
XXI. kerület
Eladó téglalakás

Budapest, XXI. kerület

27.9 M Ft
1 szoba
25 m²
XXI. kerület, Csillagtelep
Eladó téglalakás

Budapest, XXI. kerület

59.99 M Ft
2 szoba
45 m²
XXI. kerület, Csillagtelep
Eladó téglalakás

Budapest, XXI. kerület

59.99 M Ft
2 szoba
45 m²
XIII. kerület, Angyalföld, Jász utca 135-137
Eladó téglalakás

Budapest, XIII. kerület

144 M Ft
3 szoba
70 m²
XXI. kerület
Eladó téglalakás

Budapest, XXI. kerület

49.9 M Ft
3 szoba
65 m²
XXI. kerület
Eladó téglalakás

Budapest, XXI. kerület

86.6 M Ft
3 szoba
70 m²
XIII. kerület, Angyalföld, Jász utca 135-137
Eladó téglalakás

Budapest, XIII. kerület

105 M Ft
2 szoba
47 m²
XXI. kerület
Eladó téglalakás

Budapest, XXI. kerület

27.9 M Ft
1 szoba
25 m²
XIII. kerület, Angyalföld, Jász utca 135-137
Eladó téglalakás

Budapest, XIII. kerület

163 M Ft
3 szoba
74 m²
XXI. kerület
Eladó téglalakás

Budapest, XXI. kerület

112 M Ft
4 szoba
102 m²
XIII. kerület, Angyalföld, Jász utca 135-137
Eladó téglalakás

Budapest, XIII. kerület

105 M Ft
2 szoba
48 m²
XIII. kerület, Angyalföld, Jász utca 135-137
Eladó téglalakás

Budapest, XIII. kerület

102 M Ft
2 szoba
42 m²
X. kerület, Gyárdűlő
Eladó téglalakás

Budapest, X. kerület

43.6 M Ft
1 szoba
34 m²

Falusi CSOK ingatlanok

Nagyszentjános
Eladó téglalakás

Nagyszentjános

74.9 M Ft
4 szoba
117 m²
Vilonya
Eladó családi ház

Vilonya

135 M Ft
4 szoba
202 m²
Balatonkeresztúr
Eladó családi ház

Balatonkeresztúr

99 M Ft
3 + 2 szoba
154 m²
Győrság
Eladó családi ház

Győrság

89.9 M Ft
4 szoba
92 m²
Herend
Eladó téglalakás

Herend

59.99 M Ft
3 szoba
69 m²
Rétság
Eladó téglalakás

Rétság

34.9 M Ft
2 szoba
55 m²
Kadarkút, Körmendi utca
Eladó családi ház

Kadarkút

21 M Ft
3 szoba
82 m²
Fertőd
Eladó téglalakás

Fertőd

58 M Ft
3 + 1 szoba
65 m²