Pesti Házak

Eladó téglalakás
Budapest, XX. kerület, Nyaraló

+ 12 kép 1/15
62 800 000 Ft62.8 M Ft 1 231 373 Ft/m2
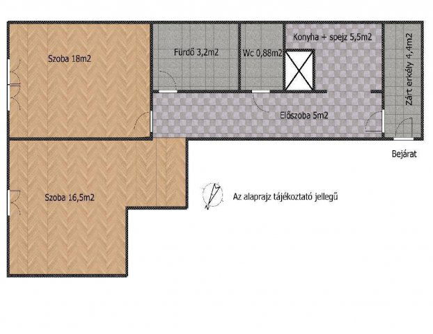
2 szoba
51 m2
Nyaraló
építés éve:1987

Részletes adatok

Fűtés: Távfűtés
Emelet: 9. emelet
Extrák: Lift
Energetikai besorolás: Nem adta meg a hirdető

Az OTP Bank lakáshitel ajánlataFizetett hirdetés

+36 70 609
Mészáros Tímea
OTP Ingatlanpont Dunaharaszti

Érdekel az OTP Bank kedvezményes lakáshitel ajánlata? *

* A kérdésre „Igen” válasz bejelölése esetén, az „Üzenet küldése” gombra kattintva kijelentem, hogy az OTP Bank Nyrt. Adatkezelési tájékoztatójának tartalmát megismertem és tudomásul vettem.

Eladó téglalakás leírása

Eladó 2 szobás, felújított panellakás Budapest XX. kerületének szívében, 9. emelet, remek állapot, kiváló közlekedés!

Budapest XX. kerületének központi részén kínálunk megvételre egy 51 m2-es, 9. emeleti, 2 szobás, összkomfortos lakást, mely jó műszaki állapotban van. így akár azonnal költözhető, apró ráncfelvarrással, tisztasági festéssel.

Felújítások és műszaki jellemzők:
Hőszigetelt, új modern műanyag nyílászárók, és bejárati ajtó, új hideg- és meleg burkolatok a vizes helyiségekben és a szobákban egyaránt.

Alacsony költségű távfűtés, jól szabályozható, kiszámítható:

Közös költség 14.000Ft, Rezsi havi szinten kb 20.000 Ft, télen nyáron.

A lépcsőház rendezett, tiszta, az épületben 2 lift segíti a kényelmes közlekedést.

Környék és elhelyezkedés:

A lakás kiváló elhelyezkedésű:

Bevásárlási lehetőségek (kisboltok, szupermarketek, plázák) a közelben.
Óvoda, iskola, orvosi rendelő, patika gyalogosan elérhető.

Kiváló tömegközlekedés: több busz- és villamosjárat, gyors eljutás a belvárosba.

Autósok számára az autópályák könnyen elérhetők, így agglomerációs kapcsolat is kiváló.

Kinek ajánljuk:

Ez a lakás ideális választás lehet:

fiatal pároknak első lakásként, idősebbeknek, akik jó közlekedésű, mégis nyugodt otthont keresnek.

Befektetőknek, kiadásra, a felújítási igény hiánya miatt azonnal hasznosítható. Az OTP Bankcsoport teljes körű ügyintézéssel áll az eladók és a vevők rendelkezésére! A kínálatunkból választott ingatlan finanszírozásához kedvezményes hitelkonstrukciókat kínálunk. Az adásvételi szerződés megkötéséhez igény szerint megbízható ügyvédi közreműködést biztosítunk és segítséget nyújtunk az adásvételhez kapcsolódó ügyek intézéséhez. Referenciaszám: M315810

Hirdetés feltöltve: 2025. 10. 25. Utoljára módosítva: 2026. 01. 15.

2 szobás téglalakások ára Budapesten

Ebből az összehasonlításból megtudhatod, hogyan viszonyul a lakás ára a környékbeli téglalakások átlagos árához. Ez nem azt jelenti, hogy ennyivel olcsóbb vagy drágább, mint amennyit a lakás ér, hanem hogy ennyivel tér el a környékbeli átlagtól.

Ennek a m² ára
XX. kerület m² ár
Budapest m² ár
1231 e Ft
1149 e Ft -7%
1634 e Ft 25%
Ennek az ára
XX. kerület átlagár
Budapest átlagár
62.8 M Ft m Ft
64.4 m Ft 3%
247.6 m Ft 75%

Az ingatlan elhelyezkedése

Cím: Budapest, XX. kerület, Nyaraló

Eladó ingatlanok a környékről

Eladó téglalakás
Eladó téglalakás

VIII. kerület, Palotanegyed, Rákóczi út

185 M Ft
5 szoba
121 m2
Eladó téglalakás
Eladó téglalakás

XX. kerület

124.9 M Ft
659 m²
452 m2
Eladó téglalakás
Eladó téglalakás

VII. kerület, Belső Erzsébetváros, Erzsébet körút

89.9 M Ft
1 + 1 szoba
71 m2
Eladó családi ház
Eladó családi ház

III. kerület

789 M Ft
5 szoba
340 m2
Eladó téglalakás
Eladó téglalakás

X. kerület

135 M Ft
4 szoba
190 m2
Eladó téglalakás
Eladó téglalakás

XX. kerület

29.9 M Ft
2 szoba
43 m2
Eladó téglalakás
Eladó téglalakás

XI. kerület, Lágymányos, Móricz Zsigmond körtér

89.5 M Ft
2 szoba
52 m2
Eladó téglalakás
Eladó téglalakás

XX. kerület

82 M Ft
2 szoba
57 m2
Eladó téglalakás
Eladó téglalakás

VII. kerület, Belső Erzsébetváros, Erzsébet körút

160 M Ft
3 szoba
88 m2
Eladó téglalakás
Eladó téglalakás

VI. kerület, Külső Terézváros, Szófia utca

112.9 M Ft
4 szoba
103 m2
Eladó téglalakás
Eladó téglalakás

XX. kerület

68 M Ft
3 szoba
61 m2
Eladó téglalakás
Eladó téglalakás

XX. kerület, Erzsébetfalva

148 M Ft
4 szoba
126 m2
Eladó téglalakás
Eladó téglalakás

XX. kerület

85 M Ft
3 szoba
70 m2
Eladó téglalakás
Eladó téglalakás

V. kerület, Belváros, Belgrád rakpart

78 M Ft
1 + 1 szoba
42 m2
Eladó téglalakás
Eladó téglalakás

XX. kerület

79 M Ft
3 szoba
66 m2
Eladó téglalakás
Eladó téglalakás

XX. kerület

59.9 M Ft
2 szoba
62 m2
Eladó téglalakás
Eladó téglalakás

XX. kerület

85 M Ft
3 szoba
70 m2
Eladó téglalakás
Eladó téglalakás

XIII. kerület

293 M Ft
4 szoba
119 m2
Eladó téglalakás
Eladó téglalakás

IV. kerület, Újpest, Kassai utca

84.9 M Ft
2 + 1 szoba
71 m2
Eladó téglalakás
Eladó téglalakás

XIII. kerület

110.4 M Ft
3 szoba
69 m2
Eladó téglalakás
Eladó téglalakás

I. kerület, Krisztinaváros, Feszty Árpád utca

78.99 M Ft
1 szoba
28 m2
Eladó téglalakás
Eladó téglalakás

XX. kerület

65.9 M Ft
3 szoba
48 m2
Eladó téglalakás
Eladó téglalakás

XX. kerület

65.9 M Ft
3 szoba
48 m2
Eladó téglalakás
Eladó téglalakás

XIII. kerület, Újlipótváros, Visegrádi utca

120 M Ft
3 szoba
63 m2

Falusi CSOK ingatlanok

Eladó családi ház
Eladó családi ház

Mikebuda

55 M Ft
2 szoba
90 m2
Eladó családi ház
Eladó családi ház

Fülöpszállás

299 M Ft
14 + 5 szoba
680 m2
Eladó családi ház
Eladó családi ház

Őrimagyarósd

48.9 M Ft
4 szoba
150 m2
Eladó családi ház
Eladó családi ház

Szólád

99.9 M Ft
6 + 1 szoba
245 m2
Eladó családi ház
Eladó családi ház

Acsalag

47 M Ft
3 szoba
140 m2
Eladó családi ház
Eladó családi ház

Újlengyel

108 M Ft
3 szoba
80 m2
Eladó családi ház
Eladó családi ház

Tapsony

23.8 M Ft
3 szoba
130 m2
Eladó családi ház
Eladó családi ház

Dunaalmás

52.5 M Ft
3 + 1 szoba
140 m2