Aerogate Homes

Eladó téglalakás
Budapest, XVII. kerület, 1. emelet

+ 1 kép 1/4
79 900 000 Ft79.9 M Ft 940 000 Ft/m2
4 szoba
85 m2
1. emelet

Részletes adatok

Telekméret: 130 m2
Fűtés: Egyéb
Energetikai besorolás: Nem adta meg a hirdető

Az OTP Bank lakáshitel ajánlataFizetett hirdetés

+36 20 272
Metykó András
Családi Ingatlan

Érdekel az OTP Bank kedvezményes lakáshitel ajánlata? *

* A kérdésre „Igen” válasz bejelölése esetén, az „Üzenet küldése” gombra kattintva kijelentem, hogy az OTP Bank Nyrt. Adatkezelési tájékoztatójának tartalmát megismertem és tudomásul vettem.

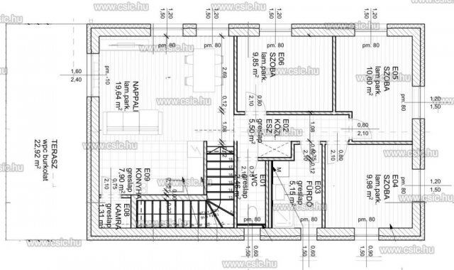
Eladó téglalakás leírása

ELADÓ LAKÁS, kertkapcsolat, Budapest XVII, fedett beálló, NAPELEM

KIZÁRÓLAG KÉSZPÉNZES VEVŐKNEK– Eladó Újépítésű 1. emeleti kertkapcsolatos napelemes Lakás Budapest XVII.ker, csendes, családi házas részén RENGETEG extrával – kizárólag a CSALÁDI INGATLAN KÍNÁLATÁBAN.

Újépítésű kulcsrakész 1. emeleti LAKÁS eladó Budapest XVII.ker kertvárosias részén 75 m2 lakóterülettel és 130 m2 kizárólagos használatú kert területtel, Nappali-Konyha-Étkezővel, + 3 hálószobával, fürdőszobával,nagy terasszal és fedett autóbeállóval. A kiépített napelemrendszernek köszönhetően nagyon alacsony energiafelhasználást lehet elérni. A kertkapcsolatos 1. emeleti lakás nagyon jó közlekedés mellett, családi házas övezetben található! A belső burkolatokat, szanitereket, belső ajtókat még Ön választhatja ki! Az építkezés elkezdődött, a földszinti lakás már értékesítésre került!

Az eladó újépítésű 1. emeleti kertkapcsolatos lakás Bp XVII.ker. főbb jellemzői:

• nappali-konyha-étkező + 3 hálószoba; fürdőszoba és előszoba, külön WC + 22 m2 es burkolt terasz

• 30 cm -es téglafalazat + 15 cm külső hőszigetelés
• 5 kWp napelemrendszer kiépítése
• padlófűtés, aljzatbetonba integrált BVF elektromos fűtéssel

• intelligens EVO ECO 100-as Ariston energiatakarékos bojler a használati melegvízhez
• a nappaliban 3,5 kW-os hűtő- fűtő klímaberendezés, a többi szobában 2,5 kW-os hűtő- fűtő klímaberendezés,
• új villany, IT és gépészeti csőrendszer
• 7 kamrás 3 rétegű hang és hőszigetelő műanyag nyílászárók
• redőny előkészítés
• nagyon alacsony rezsi
• önálló sajáthasználatú elkerített kert rész
• fedett kocsibeálló
• riasztó előkészítés
• választható burkolatok és szaniterek és belső ajtók

A Bp. XVII. ker. 1. emeleti eladó lakás magas műszaki tartalommal épül, az ár kulcsrakész ár, tartalmazza a választható burkolatokat és szanitereket, a konyhabútor nem része az árnak. A kivitelező számos referenciával rendelkezik a kerületben is.

Ajánlom ezt az ingatlant azoknak, akik csendes, kellemes környezetben szeretnének, új energia takarékos kényelmes otthonban élni. Közlekedése autóval és gyalogosan is kiváló, M0, busz és vonatmegálló is a közelben. Átadás: 2026 május

Hirdetés feltöltve: 2025. 10. 02. Utoljára módosítva: 2025. 11. 02.

4 szobás téglalakások ára Budapesten

Ebből az összehasonlításból megtudhatod, hogyan viszonyul a lakás ára a környékbeli téglalakások átlagos árához. Ez nem azt jelenti, hogy ennyivel olcsóbb vagy drágább, mint amennyit a lakás ér, hanem hogy ennyivel tér el a környékbeli átlagtól.

Ennek a m² ára
XVII. kerület m² ár
Budapest m² ár
940 e Ft
1060 e Ft 11%
1725 e Ft 45%
Ennek az ára
XVII. kerület átlagár
Budapest átlagár
79.9 M Ft m Ft
109.3 m Ft 27%
181.9 m Ft 56%

Az ingatlan elhelyezkedése

Cím: Budapest, XVII. kerület, 1. emelet

Eladó ingatlanok a környékről

Eladó téglalakás
Eladó téglalakás

XVII. kerület, Rákosliget, Forrásmajor utca 267

124.68 M Ft
4 szoba
93 m2
Eladó üzlethelyiség
Eladó üzlethelyiség

IV. kerület, Megyer

61.9 M Ft
2 szoba
52 m2
Eladó családi ház
Eladó családi ház

XVII. kerület, Rákoskeresztúr

116 M Ft
2 szoba
70 m2
Eladó téglalakás
Eladó téglalakás

XVI. kerület

86 M Ft
3 szoba
59 m2
Eladó téglalakás
Eladó téglalakás

XVII. kerület, Rákoscsaba

143.9 M Ft
4 szoba
180 m2
Eladó téglalakás
Eladó téglalakás

XVII. kerület, Rákosliget, Forrásmajor utca 267

124.68 M Ft
4 szoba
93 m2
Eladó panellakás
Eladó panellakás

XIX. kerület

73.4 M Ft
1 + 2 szoba
53 m2
Eladó téglalakás
Eladó téglalakás

XIX. kerület

95 M Ft
3 szoba
66 m2
Eladó téglalakás
Eladó téglalakás

XIX. kerület, Kispest

51 M Ft
3 szoba
55 m2
Eladó téglalakás
Eladó téglalakás

XI. kerület

150 M Ft
3 szoba
101 m2
Eladó téglalakás
Eladó téglalakás

XVII. kerület, Rákosliget, Forrásmajor utca 267

124.68 M Ft
4 szoba
93 m2
Eladó téglalakás
Eladó téglalakás

XVII. kerület, Rákoscsaba

99.9 M Ft
4 szoba
147 m2
Eladó családi ház
Eladó családi ház

XIV. kerület, Kiszugló

138.5 M Ft
3 szoba
100 m2
Eladó családi ház
Eladó családi ház

XVII. kerület

109 M Ft
7 szoba
155 m2
Eladó téglalakás
Eladó téglalakás

XVII. kerület, Rákosliget, Forrásmajor utca 267

129.84 M Ft
4 szoba
93 m2
Eladó téglalakás
Eladó téglalakás

XVII. kerület, Rákoscsaba

99.9 M Ft
4 szoba
147 m2
Eladó téglalakás
Eladó téglalakás

X. kerület

62.9 M Ft
1 + 1 szoba
53 m2
Eladó családi ház
Eladó családi ház

XVII. kerület, Rákoscsaba

159 M Ft
4 szoba
140 m2
Eladó téglalakás
Eladó téglalakás

XVII. kerület, Rákoskert, Függőcinege utca

94.9 M Ft
3 szoba
69 m2
Eladó téglalakás
Eladó téglalakás

XVIII. kerület

59.9 M Ft
2 szoba
55 m2
Eladó téglalakás
Eladó téglalakás

XVII. kerület, Rákosliget, Forrásmajor utca 267

124.68 M Ft
4 szoba
93 m2
Eladó téglalakás
Eladó téglalakás

XVII. kerület

99.9 M Ft
4 szoba
147 m2
Eladó téglalakás
Eladó téglalakás

XVII. kerület

139 M Ft
4 szoba
120 m2
Eladó családi ház
Eladó családi ház

XIX. kerület

84.9 M Ft
3 szoba
95 m2

Falusi CSOK ingatlanok

Eladó családi ház
Eladó családi ház

Ágasegyháza

29.7 M Ft
3 szoba
75 m2
Eladó családi ház
Eladó családi ház

Csombárd

16.99 M Ft
3 szoba
91 m2
Eladó családi ház
Eladó családi ház

Erdősmecske

32 M Ft
3 szoba
115 m2
Eladó családi ház
Eladó családi ház

Bugac

15 M Ft
3 szoba
52 m2
Eladó családi ház
Eladó családi ház

Pécsely, Szőlő Dülő

499 M Ft
4 + 2 szoba
183 m2
Eladó családi ház
Eladó családi ház

Iváncsa

73.9 M Ft
1 + 3 szoba
97 m2
Eladó családi ház
Eladó családi ház

Recsk

21 M Ft
4 szoba
220 m2
Eladó családi ház
Eladó családi ház

Katymár

6.7 M Ft
4 szoba
136 m2