Astora Márvány8

Eladó téglalakás
Budapest, XIX. kerület, Kispest, 4. emelet

+ 8 kép 1/11
87 900 000 Ft87.9 M Ft 1 417 742 Ft/m2
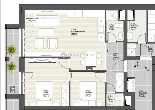
2 szoba
62 m2
4. emelet
építés éve:2026

Részletes adatok

Fűtés: Egyéb
Extrák: Lift
Energetikai besorolás: Nem adta meg a hirdető

Az OTP Bank lakáshitel ajánlataFizetett hirdetés

+36 1 690
Molnár Imre
referens

Érdekel az OTP Bank kedvezményes lakáshitel ajánlata? *

* A kérdésre „Igen” válasz bejelölése esetén, az „Üzenet küldése” gombra kattintva kijelentem, hogy az OTP Bank Nyrt. Adatkezelési tájékoztatójának tartalmát megismertem és tudomásul vettem.

Eladó téglalakás leírása

Budapest 19. kerületében, a KÖKI Terminál szomszédságában új építésű társasházi lakások hőszivattyús fűtéssel, magas műszaki tartalommal, kivételes lokációval!Befektetésnek is kitűnő lehetőség!!Műszaki adatok:- főfal: 30-as főfalak- válaszfal: Porotherm 10 N+F válaszfallap- energiatakarékos hőszivattyús rendszer padlófűtéssel (lakáson belül helyiségenként egyedi mérővel)- a melegvizet hőszivattyú állítja elő a tárolásról pedig HMV gondoskodik- 20 cm Rockwool kőzetgyapot homlokzati szigetelés- hűtés magas oldalfali fan-coilokkal (hőszivattyú)- 3 üvegrétegű, 6 kamrás hőszigetelt, műanyag nyílászárók- szaniterek, meleg- és hidegburkolatok, valamint beltéri ajtók még választhatók- gépkocsibeálló igény szerint vásárolható - 4 M Ft / db- Lift (13 személyes, 1000 kg teherbírású személyfelvonó)Már 10%- al foglalható, rugalmas fizetési ütemezéssel!Az építtető cég, így minden állami támogatás igénybe vehető! Megbízható kivitelező több, környéken átadott referenciával!Várható átadás: 2026. IV. negyedévTeljes műszaki leírás, dokumentáció megtekinthető irodánkban!
Várom megtiszeltő érdeklődését:
Molnár Imre: +3670/777-6342

Hirdetés feltöltve: 2025. 11. 12. Utoljára módosítva: 2025. 11. 26.

2 szobás téglalakások ára Budapesten

Ebből az összehasonlításból megtudhatod, hogyan viszonyul a lakás ára a környékbeli téglalakások átlagos árához. Ez nem azt jelenti, hogy ennyivel olcsóbb vagy drágább, mint amennyit a lakás ér, hanem hogy ennyivel tér el a környékbeli átlagtól.

Ennek a m² ára
Kispest m² ár
XIX. kerület m² ár
Budapest m² ár
1418 e Ft
1507 e Ft 6%
1437 e Ft 1%
1691 e Ft 16%
Ennek az ára
Kispest átlagár
XIX. kerület átlagár
Budapest átlagár
87.9 M Ft m Ft
71.1 m Ft -24%
71.3 m Ft -23%
90.3 m Ft 3%

Az ingatlan elhelyezkedése

Cím: Budapest, XIX. kerület, Kispest, 4. emelet

Eladó ingatlanok a környékről

Eladó téglalakás
Eladó téglalakás

XIX. kerület, Batthyány utca

124.9 M Ft
4 szoba
111 m2
Eladó téglalakás
Eladó téglalakás

VII. kerület

56.9 M Ft
1 szoba
37 m2
Eladó téglalakás
Eladó téglalakás

XIX. kerület

82.022 M Ft
2 szoba
49 m2
Eladó téglalakás
Eladó téglalakás

XIX. kerület

85.056 M Ft
2 szoba
48 m2
Eladó téglalakás
Eladó téglalakás

XVIII. kerület, Szent Imre kertváros

93 M Ft
3 szoba
71 m2
Eladó téglalakás
Eladó téglalakás

I. kerület, Víziváros

149.9 M Ft
3 szoba
94 m2
Eladó téglalakás
Eladó téglalakás

XIX. kerület

105.5 M Ft
2 szoba
57 m2
Eladó téglalakás
Eladó téglalakás

VIII. kerület

99.9 M Ft
3 szoba
90 m2
Eladó téglalakás
Eladó téglalakás

III. kerület, Óbuda, Folyamőr utca

78.9 M Ft
1 szoba
34 m2
Eladó téglalakás
Eladó téglalakás

XIX. kerület

56.631 M Ft
1 szoba
34 m2
Eladó téglalakás
Eladó téglalakás

XIII. kerület, Angyalföld

85.3 M Ft
2 szoba
55 m2
Eladó téglalakás
Eladó téglalakás

XIX. kerület

125 M Ft
4 szoba
140 m2
Eladó téglalakás
Eladó téglalakás

XIX. kerület, Kispest

149.9 M Ft
4 + 1 szoba
120 m2
Eladó téglalakás
Eladó téglalakás

VIII. kerület

88 M Ft
2 szoba
75 m2
Eladó téglalakás
Eladó téglalakás

XIX. kerület

63.9 M Ft
3 szoba
93 m2
Eladó téglalakás
Eladó téglalakás

XIX. kerület

80.165 M Ft
2 szoba
44 m2
Eladó téglalakás
Eladó téglalakás

XIX. kerület, Kispest

159.9 M Ft
4 + 1 szoba
118 m2
Eladó téglalakás
Eladó téglalakás

XIX. kerület

63.9 M Ft
3 szoba
93 m2
Eladó téglalakás
Eladó téglalakás

XIX. kerület

63.9 M Ft
3 szoba
93 m2
Eladó téglalakás
Eladó téglalakás

XIX. kerület

63.9 M Ft
3 szoba
93 m2
Eladó téglalakás
Eladó téglalakás

XIX. kerület

105.5 M Ft
2 szoba
57 m2
Eladó téglalakás
Eladó téglalakás

II. kerület

163 M Ft
1 + 3 szoba
77 m2
Eladó panellakás
Eladó panellakás

XIX. kerület, Kispest, Kisfaludy utca

58 M Ft
3 szoba
53 m2
Eladó téglalakás
Eladó téglalakás

XIX. kerület, Kispest

63.9 M Ft
3 szoba
93 m2

Falusi CSOK ingatlanok

Eladó családi ház
Eladó családi ház

Gáborján

5.5 M Ft
2 szoba
68 m2
Eladó családi ház
Eladó családi ház

Sellye

43 M Ft
5 szoba
150 m2
Eladó családi ház
Eladó családi ház

Dág, Petőfi Sándor utca

36.9 M Ft
4 szoba
105 m2
Eladó családi ház
Eladó családi ház

Szalánta

149.9 M Ft
10 szoba
301 m2
Eladó családi ház
Eladó családi ház

Tatárszentgyörgy

60.5 M Ft
7 szoba
305 m2
Eladó családi ház
Eladó családi ház

Kétpó

14.9 M Ft
1 + 2 szoba
86 m2
Eladó családi ház
Eladó családi ház

Zengővárkony

30.999 M Ft
3 szoba
87 m2
Eladó családi ház
Eladó családi ház

Badacsonytomaj, Kodály Zoltán utca

185 M Ft
6 + 1 szoba
210 m2