BAM Living

Eladó téglalakás
Budapest, XIV. kerület, Alsórákos, Gödöllői utca, 1. emelet

+ 16 kép 1/19
69 500 000 Ft69.5 M Ft 1 263 636 Ft/m2
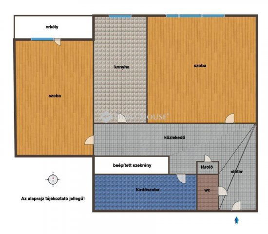
2 szoba
55 m2
1. emelet
építés éve:1980

Részletes adatok

Fűtés: Gázkazán
Energetikai besorolás: Nem adta meg a hirdető
Zenga Premier

Friss hirdetések, amiket nem találsz meg más ingatlankereső portálon.

Fedezd fel elsőként a Zenga Premier címkés eladó ingatlanokat!

További részletek a zenga.hu-n

Az OTP Bank lakáshitel ajánlataFizetett hirdetés

+36 1 444
Balogh Eszter
Duna House - Hollán utca

Érdekel az OTP Bank kedvezményes lakáshitel ajánlata? *

* A kérdésre „Igen” válasz bejelölése esetén, az „Üzenet küldése” gombra kattintva kijelentem, hogy az OTP Bank Nyrt. Adatkezelési tájékoztatójának tartalmát megismertem és tudomásul vettem.

Eladó téglalakás leírása

Eladó erkélyes lakás Zugló családi házas, zöldövezeti részén

Zugló egyik legnyugodtabb, kertvárosias utcájában kínálok megvételre egy első emeleti, erkélyes lakást, amely egy mindössze nyolclakásos, rendezett társasházban található. A lakás a csendes belső udvarra néz, így valódi nyugalmat biztosít a mindennapokban. A ház saját körbekerített udvarral rendelkezik, a lakáshoz pedig saját garázs tartozik elektromos kapuval, valamint közös pince áll rendelkezésre tárolásra. A társasházi közösség kulturált, a környezet rendezett és gondozott.

Közlekedés

A környék közlekedése kifejezetten kedvező. Néhány perces távolságban találhatók a keletnyugati metróvonal, az M2-es metró végállomásának megállói, valamint több autóbuszjárat, köztük a 277-es busz is. A belváros és a város főbb pontjai könnyen és gyorsan elérhetők mind tömegközlekedéssel, mind gépkocsival.

Bevásárlás és szolgáltatások

A közelben több bevásárlási lehetőség áll rendelkezésre: kisebb üzletek, élelmiszerboltok, patika, valamint az Örs vezér terén található nagy bevásárlóközpontok, az Árkád és a Sugár is gyorsan elérhetők. A mindennapi ügyintézés és bevásárlás kényelmesen megoldható a környéken.

Oktatási intézmények

A kerületben számos jó hírű oktatási intézmény található. Több általános iskola könnyen elérhető, például a Széchenyi István Általános Iskola vagy a Hunyadi János Általános Iskola. Elérhetők középiskolák és gimnáziumok is, mint az Álmos Vezér Gimnázium vagy a Szent István Király Zeneművészeti Iskola. A kerületben alternatív és magániskolák is működnek, így a környék családosok számára különösen vonzó.

Hirdetés feltöltve: 2025. 11. 25.

2 szobás téglalakások ára Budapesten

Ebből az összehasonlításból megtudhatod, hogyan viszonyul a lakás ára a környékbeli téglalakások átlagos árához. Ez nem azt jelenti, hogy ennyivel olcsóbb vagy drágább, mint amennyit a lakás ér, hanem hogy ennyivel tér el a környékbeli átlagtól.

Ennek a m² ára
Alsórákos m² ár
XIV. kerület m² ár
Budapest m² ár
1264 e Ft
1606 e Ft 21%
1534 e Ft 18%
1680 e Ft 25%
Ennek az ára
Alsórákos átlagár
XIV. kerület átlagár
Budapest átlagár
69.5 M Ft m Ft
108.1 m Ft 36%
81.2 m Ft 14%
90.6 m Ft 23%

Az ingatlan elhelyezkedése

Cím: Budapest, XIV. kerület, Alsórákos, Gödöllői utca, 1. emelet

Eladó ingatlanok a környékről

Eladó téglalakás
Eladó téglalakás

XII. kerület

319.993 M Ft
3 szoba
107 m2
Eladó téglalakás
Eladó téglalakás

XIV. kerület, Törökőr

110 M Ft
4 szoba
95 m2
Eladó téglalakás
Eladó téglalakás

XIII. kerület

80 M Ft
2 szoba
50 m2
Eladó téglalakás
Eladó téglalakás

XIV. kerület, Alsórákos, Mogyoródi út

165 M Ft
4 + 1 szoba
275 m2
Eladó téglalakás
Eladó téglalakás

II. kerület, Kurucles

73.9 M Ft
1 + 1 szoba
44 m2
Eladó téglalakás
Eladó téglalakás

XIV. kerület, Törökőr, Bíbor utca

105.99 M Ft
3 szoba
69 m2
Eladó téglalakás
Eladó téglalakás

XIV. kerület, Törökőr, Bíbor utca

105.99 M Ft
3 szoba
69 m2
Eladó téglalakás
Eladó téglalakás

XV. kerület, Újpalota, Zsókavár utca

57.9 M Ft
2 szoba
50 m2
Eladó téglalakás
Eladó téglalakás

XIV. kerület, Alsórákos

120.73 M Ft
3 szoba
73 m2
Eladó téglalakás
Eladó téglalakás

XII. kerület, Böszörmányi út

115.8 M Ft
1 + 1 szoba
49 m2
Eladó téglalakás
Eladó téglalakás

I. kerület

129 M Ft
1 szoba
47 m2
Eladó téglalakás
Eladó téglalakás

XIV. kerület, Istvánmező, Hungária körút

119.6 M Ft
4 szoba
104 m2
Eladó téglalakás
Eladó téglalakás

XIV. kerület, Herminamező, Uzsoki utca

67 M Ft
1 + 1 szoba
60 m2
Eladó téglalakás
Eladó téglalakás

XIV. kerület, Alsórákos utca

69.5 M Ft
2 szoba
46 m2
Eladó téglalakás
Eladó téglalakás

XI. kerület

89.5 M Ft
2 szoba
53 m2
Eladó téglalakás
Eladó téglalakás

XIV. kerület

105.99 M Ft
3 szoba
67 m2
Eladó családi ház
Eladó családi ház

XVIII. kerület, Bélatelep

110 M Ft
7 szoba
168 m2
Eladó téglalakás
Eladó téglalakás

XI. kerület

79.9 M Ft
2 szoba
56 m2
Eladó téglalakás
Eladó téglalakás

IX. kerület

95.9 M Ft
2 szoba
59 m2
Eladó téglalakás
Eladó téglalakás

VIII. kerület, Józsefváros

86.9 M Ft
3 szoba
57 m2
Eladó téglalakás
Eladó téglalakás

XIV. kerület, Alsórákos, Kassai utca

99 M Ft
2 + 1 szoba
89 m2
Eladó téglalakás
Eladó téglalakás

XIV. kerület, Alsórákos, Must utca

66 M Ft
1 + 1 szoba
53 m2
Eladó téglalakás
Eladó téglalakás

XIII. kerület

102.4 M Ft
3 szoba
64 m2
Eladó téglalakás
Eladó téglalakás

XIV. kerület, Alsórákos

107 M Ft
2 szoba
62 m2

Falusi CSOK ingatlanok

Eladó családi ház
Eladó családi ház

Pécsely, Szőlő Dülő

499 M Ft
4 + 2 szoba
183 m2
Eladó családi ház
Eladó családi ház

Galgahévíz

188 M Ft
4 szoba
125 m2
Eladó családi ház
Eladó családi ház

Pápateszér

28.99 M Ft
4 + 1 szoba
151 m2
Eladó családi ház
Eladó családi ház

Mezőzombor

19.99 M Ft
3 szoba
91 m2
Eladó családi ház
Eladó családi ház

Miháld

18 M Ft
3 szoba
102 m2
Eladó családi ház
Eladó családi ház

Darnózseli

49.9 M Ft
5 szoba
150 m2
Eladó családi ház
Eladó családi ház

Mályi

84.9 M Ft
4 szoba
100 m2
Eladó téglalakás
Eladó téglalakás

Újlengyel

72.99 M Ft
2 szoba
68 m2