Eladó téglalakás
Budapest, XIV. kerület, földszint

+ 4 kép 1/7
69 000 000 Ft69 M Ft 1 437 500 Ft/m2
2 szoba
48 m2
földszint
építés éve:2026

Részletes adatok

Fűtés: Gázkazán
Energetikai besorolás: Nem adta meg a hirdető

Az OTP Bank lakáshitel ajánlataFizetett hirdetés

+36 70 369
Juhász Emese
referens

Érdekel az OTP Bank kedvezményes lakáshitel ajánlata? *

* A kérdésre „Igen” válasz bejelölése esetén, az „Üzenet küldése” gombra kattintva kijelentem, hogy az OTP Bank Nyrt. Adatkezelési tájékoztatójának tartalmát megismertem és tudomásul vettem.

Eladó téglalakás leírása

Eladó új építésű, exkluzív lakás Zugló szívében, egy a Paskál gyógyfürdő, Mogyoródi úti Sportközpont és a Rákos-patak parkosított környezetében található 14 lakásos Vezér úti társasházban.
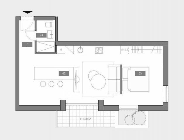
Az épület 2. emeletén található nappali + egyszobás összkomfortos lakás alapterülete 48 négyzetméter, amit 6 négyzetméteres terasz tesz még tágasabbá! A terasz a nappali-konyha-étkezőhöz csatlakozik. A nappalitól a hálórészt egy tolóajtókkal kiegészített falszakasz optikailag elkülöníti. A zuhanyzó-wc a belépő mellett, a gardróbrész a hálótér mellett kapott helyet.
A lakás tömegközlekedéssel jól megközelíthető a 77, 81, 82 és 82A trolival, amelyek több földalatti állomással is rendelkező csomóponttal teremtenek kapcsolatot. A közvetlen közelben oktatási-nevelési létesítmények (bölcsőde, óvoda, általános iskola) egyaránt vannak és játszótérrel, valamint sportolási lehetőségekkel is gazdagon ellátott. Nagyobb bevásárlóközpont a közelben az Örs vezér téri Sugár és Árkád.
A lakás csendes, benne a Vezér út zsivaja a beépített korszerű szerkezeteknek és a főforgalmú út mellett lévő szervíz utca nyújtotta távolság miatt jelentéktelen.
A lakást adottságai különösen a gyermektelen pároknak teheti vonzóvá.
A lakás várható átadása 2026 év vége, ezért a bemutatott alaprajzon a leendő vevő által kért változtatások még végrehajthatók. A fizetési ütemezés szerint a vevő egyéni igényeit és lehetőségét figyelembe véve kerül meghatározásra.
A lakást egyedi kondenzációs kazán fűti padlófűtéssel és ez állít elő használati melegvizet is. A lakótér kellemes légállapotát egy inverteres hűtő-fűtő klíma szolgálja ki és megegyezés alapján egyéni igény szerint a hálórész külön is klimatizálható. A nyílászárókra - ugyancsak megegyezés alapján egyéni igény szerint kézi vagy gépi mozgatású műanyag vagy fém hő- és hangszigetelt redőnyök kerülnek. A konyhapult beépítése nem része a vállalásnak, de megegyezés alapján egyéni igény szerint beépíttethető, a hűtő szintén megegyezés alapján egyéni igény szerint kerül csak beépítésre.
A társasház formája és külseje egyaránt modernitást sugall, a teljes egészében hőszigetelt homlokzat az alkalmazott anyagoknak és színeknek köszönhetően mértéktartó és környezetbe illeszkedő, egyszersmind tetszetős lesz.

Hirdetés feltöltve: 2025. 10. 17. Utoljára módosítva: 2025. 10. 17.

2 szobás téglalakások ára Budapesten

Ebből az összehasonlításból megtudhatod, hogyan viszonyul a lakás ára a környékbeli téglalakások átlagos árához. Ez nem azt jelenti, hogy ennyivel olcsóbb vagy drágább, mint amennyit a lakás ér, hanem hogy ennyivel tér el a környékbeli átlagtól.

Ennek a m² ára
XIV. kerület m² ár
Budapest m² ár
1438 e Ft
1500 e Ft 4%
1677 e Ft 14%
Ennek az ára
XIV. kerület átlagár
Budapest átlagár
69 M Ft m Ft
106.2 m Ft 35%
90.8 m Ft 24%

Az ingatlan elhelyezkedése

Cím: Budapest, XIV. kerület, földszint

Eladó ingatlanok a környékről

Eladó családi ház
Eladó családi ház

II. kerület

294.9 M Ft
6 szoba
270 m2
Eladó garázs
Eladó garázs

XIII. kerület, Angyalföld

6.9 M Ft
12 m2
Eladó téglalakás
Eladó téglalakás

V. kerület, Belváros, Petőfi Sándor utca

134 M Ft
2 szoba
59 m2
Eladó téglalakás
Eladó téglalakás

VI. kerület, Külső Terézváros, Szófia utca

119.9 M Ft
4 szoba
103 m2
Eladó téglalakás
Eladó téglalakás

XIV. kerület, Törökőr, Bíbor utca

105.99 M Ft
3 szoba
69 m2
Eladó téglalakás
Eladó téglalakás

XIV. kerület, Istvánmező, Ilka utca

92 M Ft
3 + 1 szoba
106 m2
Eladó családi ház
Eladó családi ház

XXII. kerület, Budafok, Baross utca

239 M Ft
6 + 1 szoba
200 m2
Eladó téglalakás
Eladó téglalakás

III. kerület

157 M Ft
3 szoba
65 m2
Eladó téglalakás
Eladó téglalakás

XIV. kerület, Herminamező, Uzsoki utca

67 M Ft
1 + 1 szoba
60 m2
Eladó téglalakás
Eladó téglalakás

XIV. kerület, Alsórákos

165 M Ft
4 + 1 szoba
190 m2
Eladó panellakás
Eladó panellakás

XVIII. kerület, Havannatelep

64.9 M Ft
3 szoba
60 m2
Eladó téglalakás
Eladó téglalakás

XIV. kerület, Törökőr

110 M Ft
4 szoba
95 m2
Eladó téglalakás
Eladó téglalakás

XIV. kerület, Alsórákos, Kassai utca

99 M Ft
2 + 1 szoba
89 m2
Eladó téglalakás
Eladó téglalakás

XIV. kerület, Kiszugló, Angol utca

59.9 M Ft
1 szoba
44 m2
Eladó téglalakás
Eladó téglalakás

II. kerület, Törökvész, Gábor Áron utca

165 M Ft
3 szoba
88 m2
Eladó téglalakás
Eladó téglalakás

VII. kerület

99.9 M Ft
4 szoba
108 m2
Eladó téglalakás
Eladó téglalakás

VII. kerület, Belső Erzsébetváros, Rózsa utca

172 M Ft
5 szoba
124 m2
Eladó téglalakás
Eladó téglalakás

VII. kerület, Belső Erzsébetváros, Erzsébet körút

89.9 M Ft
1 + 1 szoba
71 m2
Eladó téglalakás
Eladó téglalakás

VI. kerület, Külső Terézváros, Szív utca

119.5 M Ft
3 szoba
94 m2
Eladó panellakás
Eladó panellakás

XV. kerület

80 M Ft
3 szoba
71 m2
Eladó téglalakás
Eladó téglalakás

XIV. kerület

105.99 M Ft
3 szoba
67 m2
Eladó téglalakás
Eladó téglalakás

XIV. kerület

80.53 M Ft
2 szoba
51 m2
Eladó téglalakás
Eladó téglalakás

XIV. kerület

107 M Ft
2 szoba
62 m2
Eladó téglalakás
Eladó téglalakás

XIV. kerület, Istvánmező, Hungária körút

119.6 M Ft
4 szoba
104 m2

Falusi CSOK ingatlanok

Eladó családi ház
Eladó családi ház

Nagyberki, Újváros u

20.9 M Ft
3 szoba
88 m2
Eladó családi ház
Eladó családi ház

Balatonkenese

99.8 M Ft
5 szoba
138 m2
Eladó ikerház
Eladó ikerház

Besnyő

79.6 M Ft
5 szoba
117 m2
Eladó családi ház
Eladó családi ház

Szigetújfalu

68 M Ft
3 szoba
87 m2
Eladó családi ház
Eladó családi ház

Zalaszentbalázs

32 M Ft
2 szoba
100 m2
Eladó családi ház
Eladó családi ház

Bácsbokod

12.9 M Ft
3 szoba
90 m2
Eladó családi ház
Eladó családi ház

Segesd

14.3 M Ft
3 szoba
100 m2
Eladó családi ház
Eladó családi ház

Rédics

49.9 M Ft
3 szoba
107 m2