Eladó téglalakás
Budapest, XIV. kerület, 2. emelet

+ 4 kép 1/7
69 000 000 Ft69 M Ft 1 437 500 Ft/m2
2 szoba
48 m2
2. emelet
építés éve:2026

Részletes adatok

Fűtés: Gázkazán
Energetikai besorolás: Nem adta meg a hirdető

Az OTP Bank lakáshitel ajánlataFizetett hirdetés

+36 20 383
Szabó Viktor
OTP Ingatlanpont Dunaharaszti

Érdekel az OTP Bank kedvezményes lakáshitel ajánlata? *

* A kérdésre „Igen” válasz bejelölése esetén, az „Üzenet küldése” gombra kattintva kijelentem, hogy az OTP Bank Nyrt. Adatkezelési tájékoztatójának tartalmát megismertem és tudomásul vettem.

Eladó téglalakás leírása

2026 év végére, keressük az új tulajdonosokat!

Eladó új építésű, exkluzív lakás Zugló szívében, a Paskál gyógyfürdő, Mogyoródi úti Sportközpont környezetében található 14 lakásos társasházban.
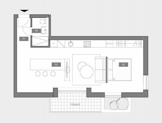
Az épület 2. emeletén található nappali + egyszobás összkomfortos lakás alapterülete 48 négyzetméter, amit 6 négyzetméteres terasz tesz még tágasabbá! A terasz a nappali-konyha-étkezőhöz csatlakozik. A nappalitól a hálórészt egy tolóajtókkal kiegészített falszakasz optikailag elkülöníti. A zuhanyzó-wc a belépő mellett, a gardróbrész a hálótér mellett kapott helyet.
A lakás tömegközlekedéssel jól megközelíthető a 77, 81, 82 és 82A trolival, amelyek több földalatti állomással is rendelkező csomóponttal teremtenek kapcsolatot. A közvetlen közelben oktatási-nevelési létesítmények (bölcsőde, óvoda, általános iskola) egyaránt vannak és játszótérrel, valamint sportolási lehetőségekkel is gazdagon ellátott. Nagyobb bevásárlóközpont a közelben az Örs vezér téri Sugár és Árkád.
A lakás csendes, a beépített korszerű szerkezeteknek és a főforgalmú út mellett lévő szervíz utca nyújtotta távolság miatt.
A lakást adottságai kiknek tud ideális választás lenni?
- egyedülállóknak,
- fiatal házasoknak, akik most kezdik a családalapítást,
- 1 gyermekes szülőknek, vagy házasoknak.
- albérletből, vagy szülőktől költözni saját lakásba vágyóknak!
A lakás várható átadása 2026 év vége, ezért a bemutatott alaprajzon a leendő vevő által kért változtatások még végrehajthatók. A fizetési ütemezés szerint a vevő egyéni igényeit és lehetőségét figyelembe véve kerül meghatározásra.
A lakást egyedi kondenzációs kazán fűti padlófűtéssel és ez állít elő használati melegvizet is. A lakótér kellemes légállapotát egy inverteres hűtő-fűtő klíma szolgálja ki és megegyezés alapján egyéni igény szerint a hálórész külön is klimatizálható. A nyílászárókra - ugyancsak megegyezés alapján egyéni igény szerint kézi vagy gépi mozgatású műanyag vagy fém hő- és hangszigetelt redőnyök kerülnek. A konyhapult kiépítésre kerül, ebben gáz főzőlapos villanysütő és kétmedencés, csöpögtető mosogató kap helyet, a hűtő szintén megegyezés alapján egyéni igény szerint kerül beépítésre.
A társasház formája és külseje egyaránt modernitást sugall, a teljes egészében hőszigetelt homlokzat az alkalmazott anyagoknak és színeknek köszönhetően mértéktartó és környezetbe illeszkedő, egyszersmind tetszetős lesz.
Meglátni, megszeretni, megvenni, beköltözni? Igen, csakis, Zugló szívében!:)
Az ingatlan alkalmas hitelre, de, nem az Otthon Start Hitelre, minimum 50% önrésszel rendelkező vevőket preferál a kivitelező!
Referenciaszám: M314940

#zugloujlakas#zugloszerelem#zuglo2szobasujlakas#zuglokislakas#

Hirdetés feltöltve: 2025. 10. 15. Utoljára módosítva: 2025. 10. 15.

2 szobás téglalakások ára Budapesten

Ebből az összehasonlításból megtudhatod, hogyan viszonyul a lakás ára a környékbeli téglalakások átlagos árához. Ez nem azt jelenti, hogy ennyivel olcsóbb vagy drágább, mint amennyit a lakás ér, hanem hogy ennyivel tér el a környékbeli átlagtól.

Ennek a m² ára
XIV. kerület m² ár
Budapest m² ár
1438 e Ft
1546 e Ft 7%
1677 e Ft 14%
Ennek az ára
XIV. kerület átlagár
Budapest átlagár
69 M Ft m Ft
82 m Ft 16%
90.5 m Ft 24%

Az ingatlan elhelyezkedése

Cím: Budapest, XIV. kerület, 2. emelet

Eladó ingatlanok a környékről

Eladó téglalakás
Eladó téglalakás

XIV. kerület, Alsórákos

165 M Ft
4 + 1 szoba
190 m2
Eladó téglalakás
Eladó téglalakás

VI. kerület, Külső Terézváros, Szív utca

119.5 M Ft
3 szoba
94 m2
Eladó téglalakás
Eladó téglalakás

XI. kerület

125 M Ft
2 + 1 szoba
77 m2
Eladó téglalakás
Eladó téglalakás

XIV. kerület, Herminamező

70 M Ft
8 szoba
360 m2
Eladó téglalakás
Eladó téglalakás

XIV. kerület

107 M Ft
2 szoba
70 m2
Eladó téglalakás
Eladó téglalakás

XIV. kerület, Városliget

175.676 M Ft
2 szoba
117 m2
Eladó téglalakás
Eladó téglalakás

XIV. kerület, Alsórákos, Must utca

66 M Ft
1 + 1 szoba
53 m2
Eladó téglalakás
Eladó téglalakás

XIV. kerület, Istvánmező, Ilka utca

92 M Ft
3 + 1 szoba
106 m2
Eladó téglalakás
Eladó téglalakás

V. kerület, Belváros, Petőfi Sándor utca

134 M Ft
2 szoba
59 m2
Eladó téglalakás
Eladó téglalakás

VIII. kerület, Józsefváros, Nagy Templom utca

125 M Ft
4 + 2 szoba
152 m2
Eladó panellakás
Eladó panellakás

IV. kerület

77.9 M Ft
2 + 1 szoba
67 m2
Eladó téglalakás
Eladó téglalakás

XIV. kerület, Herminamező, Uzsoki utca

67 M Ft
1 + 1 szoba
60 m2
Eladó téglalakás
Eladó téglalakás

XIII. kerület

104.9 M Ft
2 szoba
50 m2
Eladó téglalakás
Eladó téglalakás

VI. kerület, Külső Terézváros, Szófia utca

119.9 M Ft
4 szoba
103 m2
Eladó téglalakás
Eladó téglalakás

XIV. kerület

105.99 M Ft
3 szoba
67 m2
Eladó téglalakás
Eladó téglalakás

XIV. kerület, Istvánmező, Hungária körút

119.6 M Ft
4 szoba
104 m2
Eladó téglalakás
Eladó téglalakás

XIV. kerület, Törökőr, Bíbor utca

105.99 M Ft
3 szoba
69 m2
Eladó téglalakás
Eladó téglalakás

XIV. kerület, Törökőr, Bíbor utca

105.99 M Ft
3 szoba
69 m2
Eladó családi ház
Eladó családi ház

XXI. kerület, Csepel kertváros, Szabadkai u. 18

89.9 M Ft
2 szoba
80 m2
Eladó téglalakás
Eladó téglalakás

XIII. kerület, Angyalföld, Fiastyúk utca

41.99 M Ft
1 + 1 szoba
34 m2
Eladó családi ház
Eladó családi ház

XXII. kerület, Budafok, Baross utca

239 M Ft
6 + 1 szoba
200 m2
Eladó téglalakás
Eladó téglalakás

VII. kerület, Belső Erzsébetváros, Erzsébet körút

89.9 M Ft
1 + 1 szoba
71 m2
Eladó téglalakás
Eladó téglalakás

XIV. kerület, Alsórákos

120.73 M Ft
3 szoba
73 m2
Eladó téglalakás
Eladó téglalakás

XIV. kerület, Törökőr

110 M Ft
4 szoba
95 m2

Falusi CSOK ingatlanok

Eladó családi ház
Eladó családi ház

Vaskút

24.9 M Ft
4 szoba
150 m2
Eladó családi ház
Eladó családi ház

Törökkoppány

20.9 M Ft
2 szoba
80 m2
Eladó családi ház
Eladó családi ház

Szentkirályszabadja

119.9 M Ft
6 szoba
185 m2
Eladó családi ház
Eladó családi ház

Galgahévíz

42 M Ft
4 szoba
101 m2
Eladó családi ház
Eladó családi ház

Balatonkeresztúr, Dózsa György u. 29

145 M Ft
5 szoba
150 m2
Eladó családi ház
Eladó családi ház

Tápiószőlős

34 M Ft
1 + 2 szoba
85 m2
Eladó családi ház
Eladó családi ház

Tiszaalpár

29 M Ft
4 szoba
132 m2
Eladó családi ház
Eladó családi ház

Somogygeszti

10.9 M Ft
2 szoba
115 m2