Astora Olive Club House

Eladó téglalakás
Budapest, XIV. kerület, Istvánmező, Családi ház

+ 17 kép 1/20
104 900 000 Ft104.9 M Ft 1 104 211 Ft/m2
5 szoba
95 m2
Családi ház
építés éve:1940

Részletes adatok

Fűtés: Gázkazán
Emelet: 1. emelet
Energetikai besorolás: D

Az OTP Bank lakáshitel ajánlataFizetett hirdetés

+36 70 465
Horváthné Máriás Melinda
Szi-We Otthona Kft

Érdekel az OTP Bank kedvezményes lakáshitel ajánlata? *

* A kérdésre „Igen” válasz bejelölése esetén, az „Üzenet küldése” gombra kattintva kijelentem, hogy az OTP Bank Nyrt. Adatkezelési tájékoztatójának tartalmát megismertem és tudomásul vettem.

Eladó téglalakás leírása

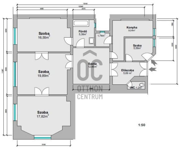
Eladó XIV.kerület Istvánmező ,Ilka utcában egy 95 nm.-s ,4 egész + 1 félszobás + hallos,összkomfortos,tökéletes elosztású,nagypolgári lakás cirkó (kondenzációs)fűtéssel.
Az ingatlan egy ápolt,belső udvarral rendelkező liftes társasház első emeletén található.
A nyílászárók eredeti állapotban lettek meghagyva,fából készültek!
Az ingatlan alkalmas irodának is elosztása miatt.
Közös költsége:31.000.- / hó.
Villany ,gáz egyedi mérőórák alapján.
Tehermentes,rugalmasan mutatható.

Ne hagyja ki ezt a lehetőséget – hívjon bizalommal a megtekintésért és további információért!

- Országos kínálatunkból megtaláljuk Önnek a legmegfelelőbbet.
- Amennyiben jelenlegi ingatlana értékesítésében is segítségére lehetek, kérem, forduljon hozzám bizalommal!
- Az ingatlanok megvásárlását ingyenes hiteltanácsadással és ügyintézéssel, valamint, igény esetén, korrekt ügyvédi háttérrel segítjük!
- Ajánlatunk nem csak a nálunk vásárolt ingatlanok esetében érvényes. Hívjon, és mi megoldjuk minden ingatlanügyét.

Lakásbiztosításban is otthon vagyunk!
Ingatlan és biztosítás egy helyen! Szakértő kollégáink segítenek megtalálni a legmegfelelőbb ajánlatot.

Hirdetés feltöltve: 2025. 10. 09. Utoljára módosítva: 2026. 01. 16.

5 szobás téglalakások ára Budapesten

Ebből az összehasonlításból megtudhatod, hogyan viszonyul a lakás ára a környékbeli téglalakások átlagos árához. Ez nem azt jelenti, hogy ennyivel olcsóbb vagy drágább, mint amennyit a lakás ér, hanem hogy ennyivel tér el a környékbeli átlagtól.

Ennek a m² ára
XIV. kerület m² ár
Budapest m² ár
1104 e Ft
1365 e Ft 19%
1609 e Ft 31%
Ennek az ára
XIV. kerület átlagár
Budapest átlagár
104.9 M Ft m Ft
189.4 m Ft 45%
243 m Ft 57%

Az ingatlan elhelyezkedése

Cím: Budapest, XIV. kerület, Istvánmező, Családi ház

Eladó ingatlanok a környékről

Eladó téglalakás
Eladó téglalakás

XIV. kerület

107 M Ft
2 szoba
62 m2
Eladó téglalakás
Eladó téglalakás

XIII. kerület, Anygyalföld

72 M Ft
2 szoba
52 m2
Eladó téglalakás
Eladó téglalakás

XIV. kerület, Törökőr, Bíbor utca

105.99 M Ft
3 szoba
69 m2
Eladó téglalakás
Eladó téglalakás

I. kerület

67.9 M Ft
1 szoba
39 m2
Eladó téglalakás
Eladó téglalakás

XIV. kerület

105.99 M Ft
3 szoba
69 m2
Eladó téglalakás
Eladó téglalakás

XIV. kerület, Alsórákos

128.9 M Ft
2 szoba
68 m2
Eladó téglalakás
Eladó téglalakás

XIV. kerület, Alsórákos

116.6 M Ft
2 szoba
69 m2
Eladó téglalakás
Eladó téglalakás

III. kerület, Békásmegyer, Békásmegyer Duna-felőli oldalon

64.9 M Ft
2 szoba
51 m2
Eladó ikerház
Eladó ikerház

XXII. kerület

199.9 M Ft
5 szoba
108 m2
Eladó téglalakás
Eladó téglalakás

XIV. kerület, Kiszugló, Kövér Lajos utca

100 M Ft
1 szoba
330 m2
Eladó téglalakás
Eladó téglalakás

XIV. kerület, Alsórákos

120.73 M Ft
3 szoba
73 m2
Eladó ikerház
Eladó ikerház

XI. kerület, Péterhegy

199.9 M Ft
5 szoba
108 m2
Eladó téglalakás
Eladó téglalakás

VI. kerület, Külső Terézváros, Paulay Ede utca

118 M Ft
2 szoba
74 m2
Eladó téglalakás
Eladó téglalakás

XIV. kerület, Kassai utca

99 M Ft
2 + 1 szoba
89 m2
Eladó téglalakás
Eladó téglalakás

XIV. kerület, Kiszugló

80.53 M Ft
2 szoba
51 m2
Eladó téglalakás
Eladó téglalakás

XI. kerület, Kelenföld

46.5 M Ft
1 szoba
23 m2
Eladó téglalakás
Eladó téglalakás

XIV. kerület, Must utca

66 M Ft
1 + 1 szoba
53 m2
Eladó téglalakás
Eladó téglalakás

XIV. kerület

107 M Ft
2 szoba
70 m2
Eladó panellakás
Eladó panellakás

XVIII. kerület

11.7 M Ft
1 + 1 szoba
35 m2
Eladó panellakás
Eladó panellakás

XV. kerület, Rákospalota, Régi Fóti út

69.9 M Ft
1 + 2 szoba
59 m2
Eladó téglalakás
Eladó téglalakás

XIV. kerület, Istvánmező, Hungária körút

119.6 M Ft
4 szoba
104 m2
Eladó garázs
Eladó garázs

III. kerület, Békásmegyer, Folyondár utca

11.5 M Ft
13 m2
Eladó téglalakás
Eladó téglalakás

XIV. kerület, Herminamező, Uzsoki utca

67 M Ft
1 + 1 szoba
60 m2
Eladó téglalakás
Eladó téglalakás

X. kerület

23.9 M Ft
1 szoba
15 m2

Falusi CSOK ingatlanok

Eladó családi ház
Eladó családi ház

Kunadacs

114.9 M Ft
4 szoba
174 m2
Eladó családi ház
Eladó családi ház

Mátraderecske

14 M Ft
1 + 1 szoba
47 m2
Eladó családi ház
Eladó családi ház

Kölked

42 M Ft
3 szoba
100 m2
Eladó családi ház
Eladó családi ház

Cece

23.5 M Ft
3 szoba
66 m2
Eladó családi ház
Eladó családi ház

Dombrád

8 M Ft
2 szoba
85 m2
Eladó téglalakás
Eladó téglalakás

Pápakovácsi

36.5 M Ft
4 szoba
101 m2
Eladó családi ház
Eladó családi ház

Zengővárkony

30.999 M Ft
3 szoba
87 m2
Eladó családi ház
Eladó családi ház

Nagykarácsony

34.9 M Ft
3 szoba
112 m2