Metrodom

Eladó téglalakás
Budapest, XIV. kerület, földszint

+ 7 kép 1/10
151 240 000 Ft151.24 M Ft 922 195 Ft/m2
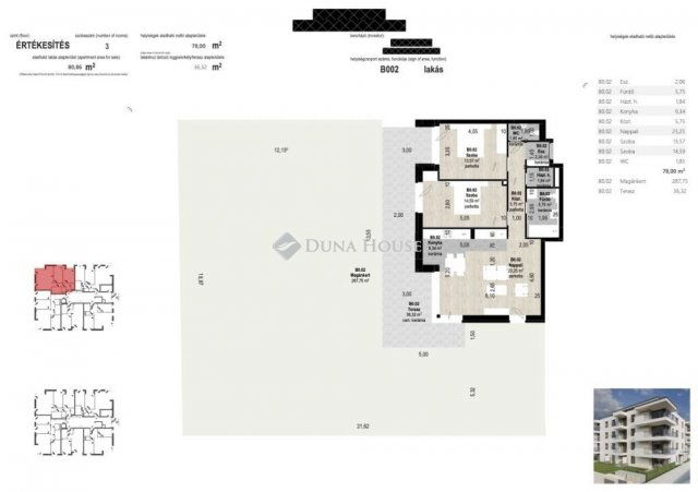
3 szoba
164 m2
földszint
építés éve:2026

Részletes adatok

Fűtés: Egyéb
Extrák: Lift
Energetikai besorolás: Nem adta meg a hirdető

Az OTP Bank lakáshitel ajánlataFizetett hirdetés

3628814734
Kolcsár Gyöngyi
referens

Érdekel az OTP Bank kedvezményes lakáshitel ajánlata? *

* A kérdésre „Igen” válasz bejelölése esetén, az „Üzenet küldése” gombra kattintva kijelentem, hogy az OTP Bank Nyrt. Adatkezelési tájékoztatójának tartalmát megismertem és tudomásul vettem.

Eladó téglalakás leírása

ÚJ ÉPÍTÉSŰ OTTHONOK ZUGLÓ SZÍVÉBEN ELÉRHETŐ ÁRON.MÁR CSAK NÉHÁNY LAKÁS ELADÓ!FEJLETT INFRASTRUKTÚRA, KÖZLEKEDÉS, SZOLGÁLTATÁSOK.Kedves Érdeklődő!Szeretne egy ÉRTÉKÁLLÓ otthont, mely MODERN, közel van hozzá a BELVÁROS és természetközeli, KERTVÁROSI hangulatba térhet haza?Mert akkor figyeljen, ÖNNEK szól a beruházói ajánlatom. Itt megtalálja álmai otthonát. Budapest 14. kerületében, ZUGLÓ kedvelt városrészében, az Uzsoki utcában nyugodt lakókörnyezetet biztosító, egy CSENDES, fákkal szegélyezett utcában 3155 nm-es telken épülő projekt 2 különálló épületében 2026. márciusi átadással PRÉMIUM minőségben 4-4 szinten, 22-22 lakásos UNIKÁLIS, liftes társasházban pillanatnyilag 32 db változatos alapterületekkel, 45-80 nm-ig NAPFÉNYES, erkélyes vagy teraszos és kertkapcsolatos, hőszivattyú fűtésrendszerű, ÚJ, zöldövezeti lakásokat kínálok megvételre minden korosztály számára.Ajánlom befektetők részére, a földszintes lakások vállalkozói tevékenység céljából KIVÁLÓAN hasznosíthatók. Fizetési ütemezés kedvező.Átadás: 2026. március 31.A mélygarázsban saját autóbeálló hely vásárolható .Kerékpár tároló: 250 000.- FtKét épületből álló modern társasház :- kimagasló műszaki tartalommal FUNKCIONÁLIS, LIFTES lakások- mélygarázs, földszint + 3 emelet+ penthouse kialakítással épül- minden szinten 5 db, 45nm-től egészen 80 nm-ig változatos területű, világos lakások erkéllyel, terasszal vagy kertkapcsolattal lettek kialakítva.Kínálatunkban : N+1 szoba vagy N+2 szoba vagy N+3 szoba elosztással érhetők el lakások- levegős hőszivattyús rendszerrel működtetett mennyezeti hűtés-fűtés biztosítja az otthon komfortját, mely egyedi hőmennyiségmérővel van ellátva. A lakások tulajdonosai ALACSONY fenntartási költséggel számolhatnak.- a homlokzati nyílászárók 3 rétegű hőszigetelt üvegezéssel gyártottak- beépített elektromos redőny- a két társasház közötti belső udvarban gondosan megtervezett ZÖLD KERT kap helyetProjekt:- modern, unikális homlokzat, magas minőségű kivitelezés- modern, kimagasló műszaki felszereltséggel rendelkező lakások- modern technológia: hőszivattyús fűtésrendszer, alacsony fenntartási költségek- 3155 nm-es telken 2026. márciusi átadással, két különálló épületben, PRÉMIUM minőségben 4-4 szinten, 22-22 lakásos UNIKÁLIS, liftes társasházban pillanatnyilag 32 db változatos alapterületű 45-80 nm-ig lakások kerültek kialakításra- vasbeton pillérvázas szerkezet monolit vasbeton födémmel tartószerkezeti tervek szerint- külső szerkezeti falak 25 cm vastag Porotherm NF téglából, 15 cm dryvit hőszigeteléssel.- tájépítész által tervezett zöld kert, automata öntözőrendszer- mélygarázsban autó beállóhely és kerékpártároló vásárolható- elektromos autótöltő- modern, kényelmes, értékálló otthonok minden korosztály számára- városi infrastruktúra előnyei- CSOK- 5 % ÁFALokáció:- nyugodt, zöld környezet- a Városliget 10 perc séta távolságra van- a város minden pontja könnyedén elérhető tömegközlekedési eszközökkel: metró, villamos, busz, troli, vonat, autópálya- oktatási intézmények- vásárlási és szórakozási lehetőségekAmennyiben az ingatlanvásárláshoz hitelre van szüksége, hiteltanácsadónk ingyenes tájékoztatja a piacon található konstrukciók közül a legoptimálisabb lehetőségekről.Érdeklődjön még ma, várom megtisztelő hívását..ÚJ ÉPÍTÉSŰ OTTHONOK ZUGLÓ SZÍVÉBEN ELÉRHETŐ ÁRON.FEJLETT INFRASTRUKTÚRA, KÖZLEKEDÉS, SZOLGÁLTATÁSOK.Kedves Érdeklődő!Szeretne egy ÉRTÉKÁLLÓ otthont, mely MODERN, közel van hozzá a BELVÁROS és természetközeli, KERTVÁROSI hangulatba térhet haza?Mert akkor figyeljen, ÖNNEK szól a beruházói ajánlatom. Itt megtalálja álmai otthonát. Az értékesítés elindult.Budapest 14. kerületében, ZUGLÓ kedvelt városrészében, az Uzsoki utcában nyugodt lakókörnyezetet biztosító, egy CSENDES, fákkal szegélyezett utcában 3155 nm-es telken épülő projekt 2 különálló épületében 2026. márciusi átadással PRÉMIUM minőségben 4-4 szinten, 22-22 lakásos UNIKÁLIS, liftes társasházban pillanatnyilag 32 db változatos alapterületekkel, 45-80 nm-ig NAPFÉNYES, erkélyes vagy teraszos és kertkapcsolatos, hőszivattyú fűtésrendszerű, ÚJ, zöldövezeti lakásokat kínálok megvételre minden korosztály számára.Ajánlom befektetők részére, a földszintes lakások vállalkozói tevékenység céljából KIVÁLÓAN hasznosíthatók.Fizetési ütemezés kedvező.Átadás: 2026. március 31.A mélygarázsban saját autóbeálló helyek: 6 millió Ft és 7,5 millió Ft áron vásárolható meg.Kerékpár tároló: 250 000.- FtKét épületből álló modern társasház :- kimagasló műszaki tartalommal FUNKCIONÁLIS, LIFTES lakások- mélygarázs, földszint + 3 emelet+ penthouse kialakítással épül- minden szinten 5 db, 45nm-től egészen 80 nm-ig változatos területű, világos lakások erkéllyel, terasszal vagy kertkapcsolattal lettek kialakítva.Kínálatunkban : N+1 szoba vagy N+2 szoba vagy N+3 szoba elosztással érhetők el lakások- levegős hőszivattyús rendszerrel működtetett mennyezeti hűtés-fűtés és padlófűtés biztosítja az otthon komfortját, mely egyedi hőmennyiségmérővel van ellátva. A lakások tulajdonosai ALACSONY fenntartási költséggel számolhatnak.- a homlokzati nyílászárók 3 rétegű hőszigetelt üvegezéssel gyártottak- beépített elektromos redőny- a két társasház közötti belső udvarban gondosan megtervezett ZÖLD KERT kap helyetProjekt:- modern, unikális homlokzat, magas minőségű kivitelezés- modern, kimagasló műszaki felszereltséggel rendelkező lakások- modern technológia: hőszivattyús fűtésrendszer, alacsony fenntartási költségek- 3155 nm-es telken 2026. márciusi átadással, két különálló épületben, PRÉMIUM minőségben 4-4 szinten, 22-22 lakásos UNIKÁLIS, liftes társasházban pillanatnyilag 32 db változatos alapterületű 45-80 nm-ig lakások kerültek kialakításra- vasbeton pillérvázas szerkezet monolit vasbeton födémmel tartószerkezeti tervek szerint- külső szerkezeti falak 25 cm vastag Porotherm NF téglából, 15 cm dryvit hőszigeteléssel.- tájépítész által tervezett zöld kert, automata öntözőrendszer- mélygarázsban autó beállóhely és kerékpártároló vásárolható- elektromos autótöltő- modern, kényelmes, értékálló otthonok minden korosztály számára- városi infrastruktúra előnyei- CSOK- 5 % ÁfaLokáció:- nyugodt, zöld környezet- a Városliget 10 perc séta távolságra van- a város minden pontja könnyedén elérhető tömegközlekedési eszközökkel: metró, villamos, busz, troli, vonat, autópálya- oktatási intézmények- vásárlási és szórakozási lehetőségekAmennyiben az ingatlanvásárláshoz hitelre van szüksége, hiteltanácsadónk ingyenes tájékoztatja a piacon található konstrukciók közül a legoptimálisabb lehetőségekről.Érdeklődjön még ma, várom megtisztelő hívását.

Referencia szám: PR050693/LK/23076

Hirdetés feltöltve: 2025. 10. 03. Utoljára módosítva: 2025. 12. 21.

3 szobás téglalakások ára Budapesten

Ebből az összehasonlításból megtudhatod, hogyan viszonyul a lakás ára a környékbeli téglalakások átlagos árához. Ez nem azt jelenti, hogy ennyivel olcsóbb vagy drágább, mint amennyit a lakás ér, hanem hogy ennyivel tér el a környékbeli átlagtól.

Ennek a m² ára
XIV. kerület m² ár
Budapest m² ár
922 e Ft
1537 e Ft 40%
1689 e Ft 45%
Ennek az ára
XIV. kerület átlagár
Budapest átlagár
151.24 M Ft m Ft
115.3 m Ft -31%
130.3 m Ft -16%

Az ingatlan elhelyezkedése

Cím: Budapest, XIV. kerület, földszint

Eladó ingatlanok a környékről

Eladó téglalakás
Eladó téglalakás

VI. kerület

71.639 M Ft
1 + 1 szoba
37 m2
Eladó téglalakás
Eladó téglalakás

XI. kerület, Gellérthegy, Gyula utca

130 M Ft
2 szoba
56 m2
Eladó téglalakás
Eladó téglalakás

XIV. kerület, Kiszugló, Angol utca

59.9 M Ft
1 szoba
44 m2
Eladó téglalakás
Eladó téglalakás

XIV. kerület, Törökőr, Bíbor utca

105.99 M Ft
3 szoba
69 m2
Eladó téglalakás
Eladó téglalakás

VII. kerület, Belső Erzsébetváros, Rózsa utca

170 M Ft
5 szoba
124 m2
Eladó téglalakás
Eladó téglalakás

XIV. kerület, Alsórákos

120.73 M Ft
3 szoba
73 m2
Eladó téglalakás
Eladó téglalakás

XIV. kerület, Alsórákos

116.6 M Ft
2 szoba
69 m2
Eladó téglalakás
Eladó téglalakás

VII. kerület, Belső Erzsébetváros, Erzsébet körút

160 M Ft
3 szoba
88 m2
Eladó téglalakás
Eladó téglalakás

XIV. kerület, Istvánmező, Ilka utca

92 M Ft
3 + 1 szoba
106 m2
Eladó téglalakás
Eladó téglalakás

XI. kerület, Gellérthegy, Gombócz Zoltán utca

142 M Ft
2 + 1 szoba
71 m2
Eladó téglalakás
Eladó téglalakás

XIV. kerület, Törökőr

110 M Ft
4 szoba
95 m2
Eladó családi ház
Eladó családi ház

XXII. kerület, Budafok, Baross utca

199 M Ft
6 + 1 szoba
200 m2
Eladó téglalakás
Eladó téglalakás

XIV. kerület

107 M Ft
2 szoba
62 m2
Eladó téglalakás
Eladó téglalakás

XIV. kerület

105.99 M Ft
3 szoba
67 m2
Eladó téglalakás
Eladó téglalakás

III. kerület, Óbuda, Szomolnok utca

89.9 M Ft
2 + 2 szoba
96 m2
Eladó téglalakás
Eladó téglalakás

XIV. kerület, Kiszugló, Kövér Lajos utca

168 M Ft
3 + 1 szoba
84 m2
Eladó téglalakás
Eladó téglalakás

XIV. kerület, Kassai utca

99 M Ft
2 + 1 szoba
89 m2
Eladó téglalakás
Eladó téglalakás

VI. kerület, Külső Terézváros, Szív utca

119.5 M Ft
3 szoba
94 m2
Eladó téglalakás
Eladó téglalakás

XIV. kerület, Istvánmező, Hungária körút

119.6 M Ft
4 szoba
104 m2
Eladó téglalakás
Eladó téglalakás

XIII. kerület, Angyalföld, Fiastyúk utca

39.9 M Ft
1 + 1 szoba
34 m2
Eladó téglalakás
Eladó téglalakás

XIV. kerület

230 M Ft
15 szoba
478 m2
Eladó téglalakás
Eladó téglalakás

VI. kerület, Külső Terézváros, Szófia utca

114.9 M Ft
4 szoba
103 m2
Eladó téglalakás
Eladó téglalakás

XIV. kerület, Alsórákos

165 M Ft
4 + 1 szoba
190 m2
Eladó téglalakás
Eladó téglalakás

XIV. kerület, Alsórákos

127.2 M Ft
2 szoba
71 m2

Falusi CSOK ingatlanok

Eladó családi ház
Eladó családi ház

Kenyeri

21.8 M Ft
2 szoba
75 m2
Eladó családi ház
Eladó családi ház

Recsk

59 M Ft
2 szoba
70 m2
Eladó családi ház
Eladó családi ház

Iváncsa

70 M Ft
5 szoba
340 m2
Eladó családi ház
Eladó családi ház

Sümegcsehi

119 M Ft
5 szoba
237 m2
Eladó családi ház
Eladó családi ház

Újkígyós

11.99 M Ft
2 szoba
77 m2
Eladó családi ház
Eladó családi ház

Homokmégy

15.9 M Ft
2 + 1 szoba
78 m2
Eladó családi ház
Eladó családi ház

Mezőfalva

39 M Ft
3 szoba
77 m2
Eladó családi ház
Eladó családi ház

Újlengyel

108 M Ft
3 szoba
80 m2