Astora Art House

Eladó téglalakás
Budapest, XIV. kerület, földszint

+ 7 kép 1/10
144 577 500 Ft144.578 M Ft 1 070 944 Ft/m2
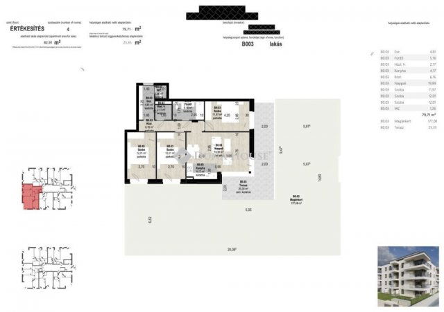
4 szoba
135 m2
földszint
építés éve:2026

Részletes adatok

Fűtés: Egyéb
Extrák: Lift
Energetikai besorolás: Nem adta meg a hirdető

Az OTP Bank lakáshitel ajánlataFizetett hirdetés

3628814734
Kolcsár Gyöngyi
referens

Érdekel az OTP Bank kedvezményes lakáshitel ajánlata? *

* A kérdésre „Igen” válasz bejelölése esetén, az „Üzenet küldése” gombra kattintva kijelentem, hogy az OTP Bank Nyrt. Adatkezelési tájékoztatójának tartalmát megismertem és tudomásul vettem.

Eladó téglalakás leírása

ÚJ ÉPÍTÉSŰ OTTHONOK ZUGLÓ SZÍVÉBEN ELÉRHETŐ ÁRON.MÁR CSAK NÉHÁNY LAKÁS ELADÓ!FEJLETT INFRASTRUKTÚRA, KÖZLEKEDÉS, SZOLGÁLTATÁSOK.Kedves Érdeklődő!Szeretne egy ÉRTÉKÁLLÓ otthont, mely MODERN, közel van hozzá a BELVÁROS és természetközeli, KERTVÁROSI hangulatba térhet haza?Mert akkor figyeljen, ÖNNEK szól a beruházói ajánlatom. Itt megtalálja álmai otthonát. Budapest 14. kerületében, ZUGLÓ kedvelt városrészében, az Uzsoki utcában nyugodt lakókörnyezetet biztosító, egy CSENDES, fákkal szegélyezett utcában 3155 nm-es telken épülő projekt 2 különálló épületében 2026. márciusi átadással PRÉMIUM minőségben 4-4 szinten, 22-22 lakásos UNIKÁLIS, liftes társasházban pillanatnyilag 32 db változatos alapterületekkel, 45-80 nm-ig NAPFÉNYES, erkélyes vagy teraszos és kertkapcsolatos, hőszivattyú fűtésrendszerű, ÚJ, zöldövezeti lakásokat kínálok megvételre minden korosztály számára.Ajánlom befektetők részére, a földszintes lakások vállalkozói tevékenység céljából KIVÁLÓAN hasznosíthatók. Fizetési ütemezés kedvező.Átadás: 2026. március 31.A mélygarázsban saját autóbeálló hely vásárolható .Kerékpár tároló: 250 000.- FtKét épületből álló modern társasház :- kimagasló műszaki tartalommal FUNKCIONÁLIS, LIFTES lakások- mélygarázs, földszint + 3 emelet+ penthouse kialakítással épül- minden szinten 5 db, 45nm-től egészen 80 nm-ig változatos területű, világos lakások erkéllyel, terasszal vagy kertkapcsolattal lettek kialakítva.Kínálatunkban : N+1 szoba vagy N+2 szoba vagy N+3 szoba elosztással érhetők el lakások- levegős hőszivattyús rendszerrel működtetett mennyezeti hűtés-fűtés biztosítja az otthon komfortját, mely egyedi hőmennyiségmérővel van ellátva. A lakások tulajdonosai ALACSONY fenntartási költséggel számolhatnak.- a homlokzati nyílászárók 3 rétegű hőszigetelt üvegezéssel gyártottak- beépített elektromos redőny- a két társasház közötti belső udvarban gondosan megtervezett ZÖLD KERT kap helyetProjekt:- modern, unikális homlokzat, magas minőségű kivitelezés- modern, kimagasló műszaki felszereltséggel rendelkező lakások- modern technológia: hőszivattyús fűtésrendszer, alacsony fenntartási költségek- 3155 nm-es telken 2026. márciusi átadással, két különálló épületben, PRÉMIUM minőségben 4-4 szinten, 22-22 lakásos UNIKÁLIS, liftes társasházban pillanatnyilag 32 db változatos alapterületű 45-80 nm-ig lakások kerültek kialakításra- vasbeton pillérvázas szerkezet monolit vasbeton födémmel tartószerkezeti tervek szerint- külső szerkezeti falak 25 cm vastag Porotherm NF téglából, 15 cm dryvit hőszigeteléssel.- tájépítész által tervezett zöld kert, automata öntözőrendszer- mélygarázsban autó beállóhely és kerékpártároló vásárolható- elektromos autótöltő- modern, kényelmes, értékálló otthonok minden korosztály számára- városi infrastruktúra előnyei- CSOK- 5 % ÁFALokáció:- nyugodt, zöld környezet- a Városliget 10 perc séta távolságra van- a város minden pontja könnyedén elérhető tömegközlekedési eszközökkel: metró, villamos, busz, troli, vonat, autópálya- oktatási intézmények- vásárlási és szórakozási lehetőségekAmennyiben az ingatlanvásárláshoz hitelre van szüksége, hiteltanácsadónk ingyenes tájékoztatja a piacon található konstrukciók közül a legoptimálisabb lehetőségekről.Érdeklődjön még ma, várom megtisztelő hívását..ÚJ ÉPÍTÉSŰ OTTHONOK ZUGLÓ SZÍVÉBEN ELÉRHETŐ ÁRON.FEJLETT INFRASTRUKTÚRA, KÖZLEKEDÉS, SZOLGÁLTATÁSOK.Kedves Érdeklődő!Szeretne egy ÉRTÉKÁLLÓ otthont, mely MODERN, közel van hozzá a BELVÁROS és természetközeli, KERTVÁROSI hangulatba térhet haza?Mert akkor figyeljen, ÖNNEK szól a beruházói ajánlatom. Itt megtalálja álmai otthonát. Az értékesítés elindult.Budapest 14. kerületében, ZUGLÓ kedvelt városrészében, az Uzsoki utcában nyugodt lakókörnyezetet biztosító, egy CSENDES, fákkal szegélyezett utcában 3155 nm-es telken épülő projekt 2 különálló épületében 2026. márciusi átadással PRÉMIUM minőségben 4-4 szinten, 22-22 lakásos UNIKÁLIS, liftes társasházban pillanatnyilag 32 db változatos alapterületekkel, 45-80 nm-ig NAPFÉNYES, erkélyes vagy teraszos és kertkapcsolatos, hőszivattyú fűtésrendszerű, ÚJ, zöldövezeti lakásokat kínálok megvételre minden korosztály számára.Ajánlom befektetők részére, a földszintes lakások vállalkozói tevékenység céljából KIVÁLÓAN hasznosíthatók. Fizetési ütemezés kedvező.Átadás: 2026. március 31.A mélygarázsban saját autóbeálló helyek: 6 millió Ft és 7,5 millió Ft áron vásárolható meg.Kerékpár tároló: 250 000.- FtKét épületből álló modern társasház :- kimagasló műszaki tartalommal FUNKCIONÁLIS, LIFTES lakások- mélygarázs, földszint + 3 emelet+ penthouse kialakítással épül- minden szinten 5 db, 45nm-től egészen 80 nm-ig változatos területű, világos lakások erkéllyel, terasszal vagy kertkapcsolattal lettek kialakítva.Kínálatunkban : N+1 szoba vagy N+2 szoba vagy N+3 szoba elosztással érhetők el lakások- levegős hőszivattyús rendszerrel működtetett mennyezeti hűtés-fűtés és padlófűtés biztosítja az otthon komfortját, mely egyedi hőmennyiségmérővel van ellátva. A lakások tulajdonosai ALACSONY fenntartási költséggel számolhatnak.- a homlokzati nyílászárók 3 rétegű hőszigetelt üvegezéssel gyártottak- beépített elektromos redőny- a két társasház közötti belső udvarban gondosan megtervezett ZÖLD KERT kap helyetProjekt:- modern, unikális homlokzat, magas minőségű kivitelezés- modern, kimagasló műszaki felszereltséggel rendelkező lakások- modern technológia: hőszivattyús fűtésrendszer, alacsony fenntartási költségek- 3155 nm-es telken 2026. márciusi átadással, két különálló épületben, PRÉMIUM minőségben 4-4 szinten, 22-22 lakásos UNIKÁLIS, liftes társasházban pillanatnyilag 32 db változatos alapterületű 45-80 nm-ig lakások kerültek kialakításra- vasbeton pillérvázas szerkezet monolit vasbeton födémmel tartószerkezeti tervek szerint- külső szerkezeti falak 25 cm vastag Porotherm NF téglából, 15 cm dryvit hőszigeteléssel.- tájépítész által tervezett zöld kert, automata öntözőrendszer- mélygarázsban autó beállóhely és kerékpártároló vásárolható- elektromos autótöltő- modern, kényelmes, értékálló otthonok minden korosztály számára- városi infrastruktúra előnyei- CSOK- 5 % ÁfaLokáció:- nyugodt, zöld környezet- a Városliget 10 perc séta távolságra van- a város minden pontja könnyedén elérhető tömegközlekedési eszközökkel: metró, villamos, busz, troli, vonat, autópálya- oktatási intézmények- vásárlási és szórakozási lehetőségekAmennyiben az ingatlanvásárláshoz hitelre van szüksége, hiteltanácsadónk ingyenes tájékoztatja a piacon található konstrukciók közül a legoptimálisabb lehetőségekről.Érdeklődjön még ma, várom megtisztelő hívását.

Referencia szám: PR050693/LK/23077

Hirdetés feltöltve: 2025. 10. 03. Utoljára módosítva: 2025. 11. 02.

4 szobás téglalakások ára Budapesten

Ebből az összehasonlításból megtudhatod, hogyan viszonyul a lakás ára a környékbeli téglalakások átlagos árához. Ez nem azt jelenti, hogy ennyivel olcsóbb vagy drágább, mint amennyit a lakás ér, hanem hogy ennyivel tér el a környékbeli átlagtól.

Ennek a m² ára
XIV. kerület m² ár
Budapest m² ár
1071 e Ft
1457 e Ft 26%
1725 e Ft 38%
Ennek az ára
XIV. kerület átlagár
Budapest átlagár
144.578 M Ft m Ft
148.7 m Ft 3%
181.9 m Ft 21%

Az ingatlan elhelyezkedése

Cím: Budapest, XIV. kerület, földszint

Eladó ingatlanok a környékről

Eladó téglalakás
Eladó téglalakás

XI. kerület

168.9 M Ft
3 szoba
80 m2
Eladó téglalakás
Eladó téglalakás

XIV. kerület, Istvánmező, Ilka utca

110 M Ft
4 szoba
95 m2
Eladó téglalakás
Eladó téglalakás

XIV. kerület

107.49 M Ft
3 szoba
64 m2
Eladó téglalakás
Eladó téglalakás

XIV. kerület, Alsórákos, Must utca

66 M Ft
1 + 1 szoba
53 m2
Eladó téglalakás
Eladó téglalakás

XIV. kerület, Törökőr, Bíbor utca

105.99 M Ft
3 szoba
69 m2
Eladó téglalakás
Eladó téglalakás

II. kerület

98 M Ft
2 + 1 szoba
51 m2
Eladó panellakás
Eladó panellakás

IX. kerület, József Attila lakótelep

57.9 M Ft
1 + 1 szoba
34 m2
Eladó téglalakás
Eladó téglalakás

XIV. kerület, Törökőr, Bíbor utca

105.99 M Ft
3 szoba
69 m2
Eladó téglalakás
Eladó téglalakás

XIV. kerület, Istvánmező, Hungária körút

119.6 M Ft
4 szoba
104 m2
Eladó téglalakás
Eladó téglalakás

XIV. kerület, Alsórákos, Kassai utca

99 M Ft
2 + 1 szoba
89 m2
Eladó téglalakás
Eladó téglalakás

XIV. kerület

230 M Ft
15 szoba
478 m2
Eladó panellakás
Eladó panellakás

XV. kerület, Újpalota

76.6 M Ft
3 szoba
65 m2
Eladó téglalakás
Eladó téglalakás

XIV. kerület, Kiszugló, Kövér Lajos utca

100 M Ft
1 szoba
330 m2
Eladó panellakás
Eladó panellakás

III. kerület, Békásmegyer

76.5 M Ft
2 + 1 szoba
57 m2
Eladó téglalakás
Eladó téglalakás

XIV. kerület, Istvánmező, Ilka utca

92 M Ft
3 + 1 szoba
106 m2
Eladó téglalakás
Eladó téglalakás

XIV. kerület

105.99 M Ft
3 szoba
69 m2
Eladó téglalakás
Eladó téglalakás

XIV. kerület, Alsórákos

165 M Ft
4 + 1 szoba
190 m2
Eladó téglalakás
Eladó téglalakás

XIV. kerület, Törökőr

110 M Ft
4 szoba
95 m2
Eladó téglalakás
Eladó téglalakás

XIV. kerület, Alsórákos, Mogyoródi út

165 M Ft
4 + 1 szoba
275 m2
Eladó téglalakás
Eladó téglalakás

XIV. kerület, Alsórákos

120.73 M Ft
3 szoba
73 m2
Eladó téglalakás
Eladó téglalakás

XVI. kerület

86 M Ft
3 szoba
59 m2
Eladó téglalakás
Eladó téglalakás

XIV. kerület, Herminamező, Uzsoki utca

67 M Ft
1 + 1 szoba
60 m2
Eladó családi ház
Eladó családi ház

XX. kerület

115 M Ft
5 szoba
126 m2
Eladó téglalakás
Eladó téglalakás

VIII. kerület

95 M Ft
3 szoba
73 m2

Falusi CSOK ingatlanok

Eladó családi ház
Eladó családi ház

Balatonkeresztúr

117 M Ft
3 + 2 szoba
154 m2
Eladó családi ház
Eladó családi ház

Berzence

69.9 M Ft
6 szoba
257 m2
Eladó családi ház
Eladó családi ház

Kunágota

15.5 M Ft
2 + 1 szoba
102 m2
Eladó családi ház
Eladó családi ház

Hernádnémeti

41.5 M Ft
2 + 1 szoba
73 m2
Eladó családi ház
Eladó családi ház

Markaz

120 M Ft
4 szoba
136 m2
Eladó családi ház
Eladó családi ház

Kemence, Fő utca

25 M Ft
3 szoba
91 m2
Eladó családi ház
Eladó családi ház

Csengőd, Tompa Mihály utca

34 M Ft
2 szoba
81 m2
Eladó családi ház
Eladó családi ház

Vaskút

19 M Ft
3 szoba
225 m2