Astora Márvány8

Eladó téglalakás
Budapest, XIII. kerület, Újlipótváros, 3. emelet

+ 17 kép 1/20
105 000 000 Ft105 M Ft 905 172 Ft/m2
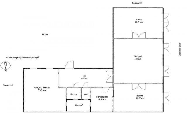
3 szoba
116 m²
3. emelet
építés éve:1900

Részletes adatok

Fűtés: Gázkazán
Emelet: 3. emelet
Energetikai besorolás: Nem adta meg a hirdető

Az OTP Bank lakáshitel ajánlataFizetett hirdetés

+36 30 950
Kiss Ildikó Mária
Szépvölgyi úti Iroda (OTP Ingatlanpont Kft.)

Érdekel az OTP Bank kedvezményes lakáshitel ajánlata? *

* A kérdésre „Igen” válasz bejelölése esetén, az „Üzenet küldése” gombra kattintva kijelentem, hogy az OTP Bank Nyrt. Adatkezelési tájékoztatójának tartalmát megismertem és tudomásul vettem.

Eladó téglalakás leírása

***Budapest szívében, ÚJLIPÓTVÁROSBAN, mégis CSENDES utcában eladó egy 116 nm-es, VILÁGOS, JÓ állapotú POLGÁRI lakás kivételes elhelyezkedéssel és ÁTALAKÍTÁSI lehetőségekkel!***

Budapest központjában, a WESTEND CITY CENTER és a NYUGATI pályaudvar közvetlen szomszédságában, ugyanakkor egy kellemesen CSENDES mellékutcában kínáljuk megvételre ezt a TÁGAS, napfényes, hall + 3 szobás POLGÁRI lakást.

Jelenleg 3 szoba + nagy, étkezővel egybenyitott konyha elrendezésű, JÓ állapotú ingatlan.
A lakás igazi ritkaság a piacon: méretéből adódóan könnyedén 2, akár 3 különálló lakásra is OSZTHATÓ, és a kialakítás lehetővé teszi egy új, külön bejárat megnyitását is ez komoly értéknövelő és befektetési lehetőség.

Az SzMSz nem tiltja a rövid távú lakáskiadást sem.

Műszaki háttér és állapot: a lakásban és a társasházban megtörtént a teljes cső- és elektromos hálózat cseréje; FOLYAMATOSAN KARBANTARTOTT, kulturált ház; a tető felújítása nemrég lezárult; lift jelenleg nincs; a lakáshoz saját, száraz pincei TÁROLÓ tartozik.

A lakás 1/1 tulajdonosé, per- és tehermentes, néhány hónapon belül rugalmasan költözhető.

A különleges elhelyezkedés és a nagy alapterület miatt tökéletes választás kiadásra, befektetésnek vagy annak a családnak, aki a belváros pezsgése mellett szeretné élvezni egy klasszikus polgári otthon eleganciáját és a mellékutca nyugalmát.
A környéken az ehhez hasonló, nagy alapterületű polgári lakások értéke folyamatosan emelkedik, így hosszú távon is biztos befektetést jelent.

Ha ingatlan vásárlásával egy ÉRTÉKÁLLÓ BEFEKTETÉST is szeretne egyben, akkor ez egy remek lehetőség az ön számára.

Az OTP Ingatlanpont, mint egyetlen közvetlen banki hátterű ingatlanközvetítő társaság teljes körű ügyintézéssel és kedvezményes pénzügyi konstrukciókkal áll ügyfelei rendelkezésére!
VIP-szolgáltatást nyújtunk az OTP-hiteltermékek ügyintézésében.
Jogi és pénzügyi segítséget nyújtanak szakértőink, hogy az adásvétel folyamata gördülékeny legyen.

Ha felkeltette érdeklődését az ingatlan, kérem, hívjon bizalommal akar hétvégén is!

Hirdetés feltöltve: 2026. 03. 22.

3 szobás téglalakások ára Budapesten

Ebből az összehasonlításból megtudhatod, hogyan viszonyul a lakás ára a környékbeli téglalakások átlagos árához. Ez nem azt jelenti, hogy ennyivel olcsóbb vagy drágább, mint amennyit a lakás ér, hanem hogy ennyivel tér el a környékbeli átlagtól.

Ennek a m² ára
Újlipótváros m² ár
XIII. kerület m² ár
Budapest m² ár
905 e Ft
1770 e Ft 49%
1783 e Ft 49%
1707 e Ft 47%
Ennek az ára
Újlipótváros átlagár
XIII. kerület átlagár
Budapest átlagár
105 M Ft m Ft
147.3 m Ft 29%
129.7 m Ft 19%
132 m Ft 20%

Az ingatlan elhelyezkedése

Cím: Budapest, XIII. kerület, Újlipótváros, 3. emelet

Eladó ingatlanok a környékről

XII. kerület
Eladó téglalakás

Budapest, XII. kerület

77 M Ft
2 szoba
64 m²
XIII. kerület
Eladó téglalakás

Budapest, XIII. kerület

259.35 M Ft
4 szoba
163 m²
XIII. kerület, Angyalföld, Dévai utca
Eladó téglalakás

Budapest, XIII. kerület

146.496 M Ft
4 szoba
80 m²
XIII. kerület
Eladó téglalakás

Budapest, XIII. kerület

111.34 M Ft
2 szoba
55 m²
XVII. kerület, Rákoskeresztúr
Eladó téglalakás

Budapest, XVII. kerület

56.5 M Ft
1 szoba
36 m²
XXIII. kerület
Eladó sorház

Budapest, XXIII. kerület

89.9 M Ft
4 szoba
122 m²
XIII. kerület
Eladó téglalakás

Budapest, XIII. kerület

262.035 M Ft
4 szoba
150 m²
VI. kerület
Eladó téglalakás

Budapest, VI. kerület

159.9 M Ft
3 szoba
70 m²
XVII. kerület
Eladó panellakás

Budapest, XVII. kerület

52.5 M Ft
1 + 1 szoba
35 m²
IX. kerület
Eladó téglalakás

Budapest, IX. kerület

110 M Ft
2 + 1 szoba
87 m²
III. kerület, Rómaifürdő
Eladó panellakás

Budapest, III. kerület

49.99 M Ft
1 szoba
27 m²
XIV. kerület, Alsórákos
Eladó panellakás

Budapest, XIV. kerület

84.99 M Ft
3 szoba
67 m²
XIII. kerület, Vizafogó, Népfürdő utca 47
Eladó téglalakás

Budapest, XIII. kerület

78.15 M Ft
2 szoba
43 m²
XIV. kerület, Istvánmező, Abonyi utca
Eladó téglalakás

Budapest, XIV. kerület

113 M Ft
2 szoba
54 m²
XII. kerület
Eladó téglalakás

Budapest, XII. kerület

109.99 M Ft
2 szoba
60 m²
XIII. kerület, Angyalföld, Dévai utca
Eladó téglalakás

Budapest, XIII. kerület

104.801 M Ft
3 szoba
52 m²
VIII. kerület
Eladó téglalakás

Budapest, VIII. kerület

68.5 M Ft
1 + 1 szoba
42 m²
XIII. kerület, Angyalföld, Dévai utca
Eladó téglalakás

Budapest, XIII. kerület

107.263 M Ft
3 szoba
68 m²
XIII. kerület
Eladó téglalakás

Budapest, XIII. kerület

127.12 M Ft
3 szoba
81 m²
XVIII. kerület
Eladó panellakás

Budapest, XVIII. kerület

46.5 M Ft
2 szoba
35 m²
XIII. kerület, Vizafogó, Népfürdő utca 47
Eladó téglalakás

Budapest, XIII. kerület

88.9 M Ft
3 + 1 szoba
64 m²
XIII. kerület, Vizafogó, Népfürdő utca 47
Eladó téglalakás

Budapest, XIII. kerület

95.97 M Ft
3 szoba
57 m²
XII. kerület
Eladó téglalakás

Budapest, XII. kerület

114.9 M Ft
2 szoba
75 m²
XIII. kerület, Angyalföld
Eladó téglalakás

Budapest, XIII. kerület

58.5 M Ft
3 + 1 szoba
80 m²

Falusi CSOK ingatlanok

Sásd
Eladó családi ház

Sásd

35.9 M Ft
4 + 1 szoba
71 m²
Boldogasszonyfa
Eladó családi ház

Boldogasszonyfa

50.9 M Ft
5 szoba
120 m²
Badacsonytördemic
Eladó családi ház

Badacsonytördemic

86 M Ft
4 szoba
110 m²
Somogyhárságy
Eladó családi ház

Somogyhárságy

108.75 M Ft
4 szoba
330 m²
Szabadbattyán
Eladó családi ház

Szabadbattyán

147.99 M Ft
5 szoba
255 m²
Gesztely
Eladó családi ház

Gesztely

34.9 M Ft
3 szoba
95 m²
Balatonszemes
Eladó téglalakás

Balatonszemes

110.9 M Ft
2 szoba
60 m²
Balatonszemes
Eladó téglalakás

Balatonszemes

123.3 M Ft
2 szoba
70 m²