Astora Art House

Eladó téglalakás
Budapest, XIII. kerület, 1. emelet

+ 15 kép 1/18
93 000 000 Ft93 M Ft 1 500 000 Ft/m2
3 szoba
62 m²
1. emelet
építés éve:2007

Részletes adatok

Fűtés: Gázkazán
Emelet: 1. emelet
Extrák: Lift
Energetikai besorolás: Nem adta meg a hirdető

Az OTP Bank lakáshitel ajánlataFizetett hirdetés

3626664028
Karácsony Rózsa Etelka
referens

Érdekel az OTP Bank kedvezményes lakáshitel ajánlata? *

* A kérdésre „Igen” válasz bejelölése esetén, az „Üzenet küldése” gombra kattintva kijelentem, hogy az OTP Bank Nyrt. Adatkezelési tájékoztatójának tartalmát megismertem és tudomásul vettem.

Eladó téglalakás leírása

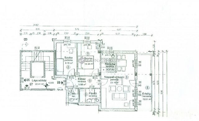
KIEMELT AJÁNLAT CSAK NÁLUNK! Kucsma utcában eladó egy 59,8 nm-es, 1+2 szobás jó állapotú lakás 12,61 nm-es erkéllyel. ( Tulajdoni lapon 62 nm.) A ház 2007-ben épült, csöndes, nyugodt környéken mégis kiváló közlekedéssel. A lakás kiváló elosztású, kényelmes előszobával, külön, nem a nappaliból nyíló hálószobákkal, külön kialakítású a fürdő és a wc, valamint hatalmas erkéllyel. Az ablakokon redőny és szúnyogháló, hűtő klíma a nappaliban és cirkó fűtéses. A burkolatok, szaniterek, konyhabútor az eredetiek. A közlekedés kiváló, a közelben a 30, 30A buszok és a 14-es villamos. A lakás tehermentes, jelenleg bérlők lakják, akik szívesen visszabérelnék. A nappaliban lévő gardróbszekrény, a konyhabútor és a klíma a vételár része.A lakáshoz tartozik és kötelezően megvásárolandó egy teremgarázs beálló + 7.000.000,-Ft és egy 5,16 nm-es tároló + 5.000.000,-FtBefektetésnek és otthonnak is tökéletes választás!

Hirdetés feltöltve: 2026. 02. 15. Utoljára módosítva: 2026. 02. 17.

3 szobás téglalakások ára Budapesten

Ebből az összehasonlításból megtudhatod, hogyan viszonyul a lakás ára a környékbeli téglalakások átlagos árához. Ez nem azt jelenti, hogy ennyivel olcsóbb vagy drágább, mint amennyit a lakás ér, hanem hogy ennyivel tér el a környékbeli átlagtól.

Ennek a m² ára
XIII. kerület m² ár
Budapest m² ár
1500 e Ft
1792 e Ft 16%
1698 e Ft 12%
Ennek az ára
XIII. kerület átlagár
Budapest átlagár
93 M Ft m Ft
130.8 m Ft 29%
131.4 m Ft 29%

Az ingatlan elhelyezkedése

Cím: Budapest, XIII. kerület, 1. emelet

Eladó ingatlanok a környékről

XVII. kerület
Eladó téglalakás

Budapest, XVII. kerület

98.5 M Ft
4 szoba
83 m²
XIII. kerület, Angyalföld
Eladó téglalakás

Budapest, XIII. kerület

84.9 M Ft
5 + 2 szoba
124 m²
XIII. kerület, Angyalföld, Dévai utca
Eladó téglalakás

Budapest, XIII. kerület

114.012 M Ft
3 szoba
52 m²
XVIII. kerület
Eladó ikerház

Budapest, XVIII. kerület

79.9 M Ft
4 szoba
88 m²
VIII. kerület
Eladó téglalakás

Budapest, VIII. kerület

52.5 M Ft
1 szoba
36 m²
XIII. kerület, Vizafogó, Dráva utca
Eladó téglalakás

Budapest, XIII. kerület

99 M Ft
3 + 1 szoba
98 m²
V. kerület
Eladó téglalakás

Budapest, V. kerület

179 M Ft
6 szoba
110 m²
XIII. kerület, Angyalföld, Dévai utca
Eladó téglalakás

Budapest, XIII. kerület

146.496 M Ft
4 szoba
80 m²
XIII. kerület
Eladó téglalakás

Budapest, XIII. kerület

139.935 M Ft
2 szoba
67 m²
XIII. kerület
Eladó téglalakás

Budapest, XIII. kerület

84.975 M Ft
2 szoba
50 m²
III. kerület, Óbuda, Bécsi
Eladó téglalakás

Budapest, III. kerület

79.9 M Ft
2 + 1 szoba
60 m²
XIII. kerület
Eladó téglalakás

Budapest, XIII. kerület

199.815 M Ft
4 szoba
105 m²
XIII. kerület, Angyalföld, Dévai utca
Eladó téglalakás

Budapest, XIII. kerület

104.139 M Ft
3 szoba
68 m²
XIII. kerület, Vizafogó, Népfürdő utca 47
Eladó téglalakás

Budapest, XIII. kerület

78.15 M Ft
2 szoba
43 m²
III. kerület, Óbuda, Szomolnok utca
Eladó téglalakás

Budapest, III. kerület

89.9 M Ft
2 + 2 szoba
96 m²
XIII. kerület, Angyalföld, Fiastyúk utca
Eladó téglalakás

Budapest, XIII. kerület

39.9 M Ft
1 + 1 szoba
34 m²
XIII. kerület, Angyalföld, Dévai utca
Eladó téglalakás

Budapest, XIII. kerület

60.963 M Ft
1 szoba
33 m²
XIII. kerület, Angyalföld, Kucsma utca
Eladó téglalakás

Budapest, XIII. kerület

88.348 M Ft
4 szoba
97 m²
XI. kerület, Gellérthegy, Gyula utca
Eladó téglalakás

Budapest, XI. kerület

130 M Ft
2 szoba
56 m²
VI. kerület, Külső Terézváros, Szófia utca
Eladó téglalakás

Budapest, VI. kerület

112.9 M Ft
4 szoba
103 m²
XIII. kerület
Eladó téglalakás

Budapest, XIII. kerület

262.035 M Ft
4 szoba
150 m²
XIII. kerület, Vizafogó, Népfürdő utca 47
Eladó téglalakás

Budapest, XIII. kerület

138.3 M Ft
3 szoba
81 m²
XIV. kerület, Kiszugló, Kövér Lajos utca
Eladó téglalakás

Budapest, XIV. kerület

168 M Ft
3 + 1 szoba
84 m²
I. kerület, Krisztinaváros, Széna tér
Eladó téglalakás

Budapest, I. kerület

189 M Ft
4 szoba
90 m²

Falusi CSOK ingatlanok

Csatár
Eladó családi ház

Csatár

98.5 M Ft
5 szoba
150 m²
Szellő
Eladó családi ház

Szellő

125 M Ft
5 szoba
124 m²
Nyírtura
Eladó családi ház

Nyírtura

99 M Ft
4 szoba
280 m²
Bakonyjákó
Eladó családi ház

Bakonyjákó

58.5 M Ft
3 + 1 szoba
150 m²
Törtel
Eladó családi ház

Törtel

7.5 M Ft
1 + 2 szoba
45 m²
Vajszló
Eladó családi ház

Vajszló

21.49 M Ft
2 szoba
91 m²
Hercegszántó
Eladó családi ház

Hercegszántó

7 M Ft
3 szoba
120 m²
Borsfa
Eladó családi ház

Borsfa

137.9 M Ft
12 szoba
664 m²