Seven Pearl

Eladó téglalakás
Budapest, II. kerület, Pesthidegkút-ófalu, 1. emelet

+ 17 kép 1/20
200 000 000 Ft200 M Ft 1 219 512 Ft/m2
3 szoba
164 m²
1. emelet
építés éve:2026

Részletes adatok

Fűtés: Egyéb
Emelet: 1. emelet
Parkolás: Garázs
Komfort: Összkomfortos
Energetikai besorolás: Nem adta meg a hirdető

Az OTP Bank lakáshitel ajánlataFizetett hirdetés

+36 20 355
Fodor Zsolt
Fodor Ingatlan

Érdekel az OTP Bank kedvezményes lakáshitel ajánlata? *

* A kérdésre „Igen” válasz bejelölése esetén, az „Üzenet küldése” gombra kattintva kijelentem, hogy az OTP Bank Nyrt. Adatkezelési tájékoztatójának tartalmát megismertem és tudomásul vettem.

Eladó téglalakás leírása

Luxus életérzés a természet ölelésében – modern műszaki tartalommal Budapest II. kerületében!

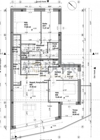
Budapest II. kerületének egyik legkedveltebb, exkluzív részén, Pesthidegkút–Ófalu csendes, zöldövezeti környezetében kínálunk megvételre egy kifinomult műszaki megoldásokkal megépített, kétlakásos újépítésű társasház emeleti, beépített tetőterű, amerikai-konyhás nappali + 3 szoba, galériás, 116 + 48m2-es, összkomfortos, lakását.

Ez az otthon tökéletes választás azok számára, akik a modern technológia nyújtotta komfortot és az elegáns, természetközeli életérzést egyaránt fontosnak tartják.

Átgondolt térszervezés – funkcionalitás és elegancia

A lakás kialakítása a modern élettér minden igényét kielégíti, ahol a tágas, világos terek és a letisztult design harmonikus egységet alkotnak:

Emeleti lakószint (116 m²):
• előtér és közlekedő
• mosdó
• tágas nappali amerikai konyhával és étkezővel
• szoba
• gardrób
• fürdőszoba WC-vel
• külön gépészeti helyiség
• belső lépcsőház
• erkély

Tetőtér (48 m²):
• közlekedő
• 2 szoba
• fürdőszoba WC-vel
• galéria, amely különleges térélményt biztosít
• lépcsőház

Prémium műszaki tartalom – kompromisszumok nélkül

Az ingatlan műszaki kialakítása a legmodernebb elvárások szerint készült, kiemelkedő energiahatékonyságot és magas szintű komfortot biztosítva.

Szerkezet
o 30 cm-es Porotherm főfalak

Energiahatékony gépészet
o DAIKIN ALTHERMA 6 kW levegő-víz hőszivattyú
o padlófűtés + mennyezeti hűtés-fűtés rendszer
o törölközőszárítós radiátorok
o beépített 180 literes HMV tartály
o H tarifás villanyóra a kedvező üzemeltetésért
Hűtés
A tetőtérben fan-coil rendszer biztosítja az optimális hőmérsékletet.
Nyílászárók és biztonság
o Schüco Classic, 3 rétegű üvegezésű műanyag nyílászárók
o kívül elegáns antracit, belül letisztult fehér kivitel
o RC3 biztonsági osztályú bejárati ajtó
Árnyékolástechnika
o motoros, rádióvezérlésű alumínium redőnyök
o integrált szúnyoghálóval
o SMART rendszer előkészítéssel
Burkolatok és szaniterek
o prémium melegburkolatok úsztatott aljzaton, padlófűtéshez optimalizálva
o Duravit D-Code szaniterek
o Hansgrohe csaptelepek
Elektromos rendszer
o 3 fázisú ellátás lakásonként
o FI relé és túlfeszültség védelem
o nagyfogyasztók külön áramkörön
Kényelem és biztonság
o Hörmann elektromos, szekcionált garázskapu
o Paradox SP6000 riasztórendszer kültéri szirénával
o Legrand kaputelefon rendszer
o Az elegáns erkély biztonsági üvegkorláttal, amely modern megjelenést és zavartalan kilátást biztosít.

Ez a lakás ideális választás azok számára, akik a modern műszaki tartalom, a tágas terek és a kifinomult, luxus életérzés tökéletes kombinációját keresik egy exkluzív budai környezetben.

• Kivitelezés: kulcsrakész állapot 2026.07.30 .

A környék a Budai-hegység lábánál helyezkedik el, így csendes, tiszta levegőjű, kertvárosias hangulat jellemzi, sok zöldfelülettel és kirándulási lehetőséggel. A közvetlen közelben természetvédelmi területek, erdők és túraútvonalak találhatók, ami különösen vonzóvá teszi a környéket a szabadidős tevékenységeket kedvelők számára.

Az infrastruktúra jól kiépített: a közelben elérhetők bevásárlási lehetőségek, iskolák, óvodák, valamint nemzetközi intézmények is, így a mindennapi élet kényelmesen megoldható. Tömegközlekedéssel a város többi része is könnyen megközelíthető, ugyanakkor a környék megőrzi nyugodt, forgalomtól mentes jellegét.

Összességében a környezet egy exkluzív, mégis családbarát budai lokáció, ahol a természet közelsége és a városi kényelem harmonikusan találkozik.

Irodánk teljes körű segítséget nyújt:
•díjmentes hitelügyintézés
•CSOK Plusz tanácsadás
•banki partneri háttér a vásárlás minden lépésében

Az alaprajz és a leírás tájékoztató jellegű.

Hirdetés feltöltve: 2026. 04. 07. Utoljára módosítva: 2026. 05. 15.

3 szobás téglalakások ára Budapesten

Ebből az összehasonlításból megtudhatod, hogyan viszonyul a lakás ára a környékbeli téglalakások átlagos árához. Ez nem azt jelenti, hogy ennyivel olcsóbb vagy drágább, mint amennyit a lakás ér, hanem hogy ennyivel tér el a környékbeli átlagtól.

Ennek a m² ára
II. kerület m² ár
Budapest m² ár
1220 e Ft
2039 e Ft 40%
1694 e Ft 28%
Ennek az ára
II. kerület átlagár
Budapest átlagár
200 M Ft m Ft
175.5 m Ft -14%
132.3 m Ft -51%

Az ingatlan elhelyezkedése

Cím: Budapest, II. kerület, Pesthidegkút-ófalu, 1. emelet

Eladó ingatlanok a környékről

XV. kerület
Eladó panellakás

Budapest, XV. kerület

59.9 M Ft
1 + 2 szoba
55 m²
II. kerület
Eladó téglalakás

Budapest, II. kerület

421.6 M Ft
5 szoba
138 m²
V. kerület
Eladó téglalakás

Budapest, V. kerület

119 M Ft
3 szoba
55 m²
II. kerület
Eladó téglalakás

Budapest, II. kerület

395.703 M Ft
3 szoba
220 m²
XII. kerület
Eladó téglalakás

Budapest, XII. kerület

59.9 M Ft
1 szoba
29 m²
II. kerület, Lipótmező, Hűvösvölgyi út
Eladó téglalakás

Budapest, II. kerület

199.99 M Ft
6 szoba
115 m²
VIII. kerület
Eladó téglalakás

Budapest, VIII. kerület

53 M Ft
2 szoba
38 m²
XVIII. kerület
Eladó téglalakás

Budapest, XVIII. kerület

100 M Ft
3 szoba
135 m²
II. kerület
Eladó téglalakás

Budapest, II. kerület

325 M Ft
4 szoba
156 m²
II. kerület
Eladó téglalakás

Budapest, II. kerület

395.703 M Ft
2 szoba
221 m²
II. kerület
Eladó téglalakás

Budapest, II. kerület

751.836 M Ft
5 szoba
321 m²
II. kerület, Víziváros, Margit körút
Eladó téglalakás

Budapest, II. kerület

275 M Ft
9 + 1 szoba
240 m²
II. kerület
Eladó téglalakás

Budapest, II. kerület

329 M Ft
4 + 1 szoba
153 m²
XVIII. kerület, Havannatelep, Havanna utca
Eladó panellakás

Budapest, XVIII. kerület

80 M Ft
3 szoba
72 m²
II. kerület
Eladó téglalakás

Budapest, II. kerület

989.258 M Ft
6 szoba
370 m²
VI. kerület, Belső Terézváros, Zichy Jenő utca
Eladó téglalakás

Budapest, VI. kerület

319 M Ft
3 szoba
114 m²
II. kerület
Eladó téglalakás

Budapest, II. kerület

450 M Ft
4 szoba
138 m²
VI. kerület
Eladó téglalakás

Budapest, VI. kerület

79.9 M Ft
2 szoba
48 m²
XIV. kerület, Nagyzugló, Fogarasi út 60
Eladó téglalakás

Budapest, XIV. kerület

64.99 M Ft
2 szoba
65 m²
II. kerület
Eladó téglalakás

Budapest, II. kerület

574.849 M Ft
5 szoba
280 m²
II. kerület
Eladó téglalakás

Budapest, II. kerület

559.9 M Ft
4 szoba
169 m²
II. kerület
Eladó téglalakás

Budapest, II. kerület

270.4 M Ft
3 szoba
73 m²
II. kerület
Eladó téglalakás

Budapest, II. kerület

187 M Ft
2 szoba
64 m²
XIV. kerület
Eladó téglalakás

Budapest, XIV. kerület

98 M Ft
2 szoba
66 m²

Falusi CSOK ingatlanok

Bakonycsernye
Eladó családi ház

Bakonycsernye

39 M Ft
3 szoba
350 m²
Tápióság
Eladó családi ház

Tápióság

57 M Ft
4 szoba
94 m²
Seregélyes
Eladó családi ház

Seregélyes

87 M Ft
4 szoba
96 m²
Köveskál
Eladó családi ház

Köveskál

215 M Ft
4 szoba
100 m²
Dunaegyháza
Eladó családi ház

Dunaegyháza

29.49 M Ft
3 szoba
70 m²
Madaras
Eladó családi ház

Madaras

33 M Ft
5 szoba
210 m²
Kál
Eladó családi ház

Kál

31 M Ft
4 szoba
307 m²
Dunaegyháza
Eladó családi ház

Dunaegyháza

29.49 M Ft
3 szoba
70 m²