Aerogate Homes

Eladó téglalakás
Budapest, XIII. kerület, 1. emelet

+ 16 kép 1/19
93 000 000 Ft93 M Ft 1 500 000 Ft/m2
3 szoba
62 m²
1. emelet
építés éve:2007

Részletes adatok

Fűtés: Gázkazán
Emelet: 1. emelet
Extrák: Lift
Energetikai besorolás: Nem adta meg a hirdető

Az OTP Bank lakáshitel ajánlataFizetett hirdetés

+36 1 690
Szabó-Lévai Annamária
Duna House Kispest

Érdekel az OTP Bank kedvezményes lakáshitel ajánlata? *

* A kérdésre „Igen” válasz bejelölése esetén, az „Üzenet küldése” gombra kattintva kijelentem, hogy az OTP Bank Nyrt. Adatkezelési tájékoztatójának tartalmát megismertem és tudomásul vettem.

Eladó téglalakás leírása

KIEMELT AJÁNLAT CSAK NÁLUNK!
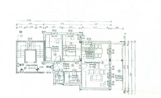
Kucsma utcában eladó egy 59,8 nm-es, 1+2 szobás jó állapotú lakás 12,61 nm-es erkéllyel. (Tulajdoni lapon 62 nm.) A ház 2007-ben épült, csöndes, nyugodt környéken mégis kiváló közlekedéssel. A lakás kiváló elosztású, kényelmes előszobával, külön, nem a nappaliból nyíló hálószobákkal, külön kialakítású a fürdő és a wc, valamint hatalmas erkéllyel. Az ablakokon redőny és szúnyogháló, hűtő klíma a nappaliban és cirkó fűtéses. A burkolatok, szaniterek, konyhabútor az eredetiek. A közlekedés kiváló, a közelben a 30, 30A buszok és a 14-es villamos. A lakás tehermentes, jelenleg bérlők lakják, akik szívesen visszabérelnék. A nappaliban lévő gardróbszekrény, a konyhabútor és a klíma a vételár része.

Irányár: 93000000 Ft
Érd.: Szabó-Lévai Annamária, +36 70 307 7503

Referencia szám: LK030427-ZE

Hirdetés feltöltve: 2026. 01. 07. Utoljára módosítva: 2026. 02. 20.

3 szobás téglalakások ára Budapesten

Ebből az összehasonlításból megtudhatod, hogyan viszonyul a lakás ára a környékbeli téglalakások átlagos árához. Ez nem azt jelenti, hogy ennyivel olcsóbb vagy drágább, mint amennyit a lakás ér, hanem hogy ennyivel tér el a környékbeli átlagtól.

Ennek a m² ára
XIII. kerület m² ár
Budapest m² ár
1500 e Ft
1780 e Ft 16%
1698 e Ft 12%
Ennek az ára
XIII. kerület átlagár
Budapest átlagár
93 M Ft m Ft
130.1 m Ft 29%
131.4 m Ft 29%

Az ingatlan elhelyezkedése

Cím: Budapest, XIII. kerület, 1. emelet

Eladó ingatlanok a környékről

X. kerület, Gyárdűlő, Ceglédi	út 11
Eladó téglalakás

Budapest, X. kerület

97.636 M Ft
3 szoba
65 m²
XX. kerület, Pacsirtatelep
Eladó panellakás

Budapest, XX. kerület

57 M Ft
1 + 1 szoba
52 m²
XIII. kerület
Eladó téglalakás

Budapest, XIII. kerület

105.755 M Ft
2 szoba
74 m²
XIII. kerület, Újlipótváros
Eladó téglalakás

Budapest, XIII. kerület

179.9 M Ft
4 + 1 szoba
155 m²
X. kerület, Gyárdűlő, Ceglédi	út 11
Eladó téglalakás

Budapest, X. kerület

97.636 M Ft
3 szoba
65 m²
XIII. kerület
Eladó téglalakás

Budapest, XIII. kerület

139.935 M Ft
2 szoba
67 m²
X. kerület, Gyárdűlő, Ceglédi	út 11
Eladó téglalakás

Budapest, X. kerület

98.302 M Ft
3 szoba
63 m²
X. kerület, Gyárdűlő, Ceglédi	út 11
Eladó téglalakás

Budapest, X. kerület

95.009 M Ft
3 szoba
61 m²
X. kerület, Gyárdűlő, Ceglédi	út 11
Eladó téglalakás

Budapest, X. kerület

82.961 M Ft
3 szoba
55 m²
XIII. kerület, Vizafogó, Népfürdő utca 47
Eladó téglalakás

Budapest, XIII. kerület

138.3 M Ft
3 szoba
81 m²
X. kerület, Gyárdűlő, Ceglédi	út 11
Eladó téglalakás

Budapest, X. kerület

83.183 M Ft
3 szoba
55 m²
XIX. kerület, Kispest, Iparos utca 2
Eladó téglalakás

Budapest, XIX. kerület

79.443 M Ft
2 szoba
41 m²
XIII. kerület, Angyalföld, Kucsma utca
Eladó téglalakás

Budapest, XIII. kerület

88.348 M Ft
4 szoba
97 m²
X. kerület, Gyárdűlő, Ceglédi	út 11
Eladó téglalakás

Budapest, X. kerület

91.886 M Ft
3 szoba
61 m²
XIII. kerület
Eladó téglalakás

Budapest, XIII. kerület

259.35 M Ft
4 szoba
163 m²
X. kerület, Gyárdűlő, Ceglédi	út 11
Eladó téglalakás

Budapest, X. kerület

83.065 M Ft
3 szoba
55 m²
I. kerület, Krisztinaváros, Feszty Árpád utca
Eladó téglalakás

Budapest, I. kerület

78.99 M Ft
1 szoba
28 m²
X. kerület, Gyárdűlő, Ceglédi	út 11
Eladó téglalakás

Budapest, X. kerület

82.961 M Ft
3 szoba
55 m²
XIII. kerület
Eladó téglalakás

Budapest, XIII. kerület

73.64 M Ft
2 szoba
47 m²
XIII. kerület, Angyalföld, Dévai utca
Eladó téglalakás

Budapest, XIII. kerület

146.496 M Ft
4 szoba
80 m²
XIII. kerület
Eladó téglalakás

Budapest, XIII. kerület

111.34 M Ft
2 szoba
55 m²
X. kerület, Gyárdűlő, Ceglédi	út 11
Eladó téglalakás

Budapest, X. kerület

93.514 M Ft
3 szoba
60 m²
X. kerület, Gyárdűlő, Ceglédi	út 11
Eladó téglalakás

Budapest, X. kerület

83.065 M Ft
3 szoba
55 m²
XIX. kerület, Kispest, Iparos utca 2
Eladó téglalakás

Budapest, XIX. kerület

59.248 M Ft
2 szoba
39 m²

Falusi CSOK ingatlanok

Bag
Eladó családi ház

Bag

16.9 M Ft
6 szoba
160 m²
Tápiószőlős
Eladó családi ház

Tápiószőlős

47.5 M Ft
5 szoba
122 m²
Nyáregyháza
Eladó családi ház

Nyáregyháza

68.9 M Ft
4 szoba
142 m²
Ceglédbercel, Aranyhegy utca
Eladó családi ház

Ceglédbercel

99.9 M Ft
5 szoba
110 m²
Homokbödöge
Eladó családi ház

Homokbödöge

49.9 M Ft
4 + 1 szoba
167 m²
Vid
Eladó családi ház

Vid

29 M Ft
4 szoba
100 m²
Törtel
Eladó családi ház

Törtel

7.5 M Ft
1 + 2 szoba
45 m²
Szentmártonkáta
Eladó családi ház

Szentmártonkáta

45.9 M Ft
4 szoba
95 m²