Astora Márvány8

Eladó téglalakás
Budapest, XII. kerület, Zugliget, Sztehlo Gábor utca, 2. emelet

+ 10 kép 1/13
114 900 000 Ft114.9 M Ft 2 051 786 Ft/m2
1 + 2 szoba
56 m²
2. emelet
építés éve:1970

Részletes adatok

Állapot: Felújított
Fűtés: Gázkazán
Emelet: 2. emelet
Energetikai besorolás: Nem adta meg a hirdető

Az OTP Bank lakáshitel ajánlataFizetett hirdetés

+36 30 231
Wr Home Kft
WR HOME

Érdekel az OTP Bank kedvezményes lakáshitel ajánlata? *

* A kérdésre „Igen” válasz bejelölése esetén, az „Üzenet küldése” gombra kattintva kijelentem, hogy az OTP Bank Nyrt. Adatkezelési tájékoztatójának tartalmát megismertem és tudomásul vettem.

Eladó téglalakás leírása

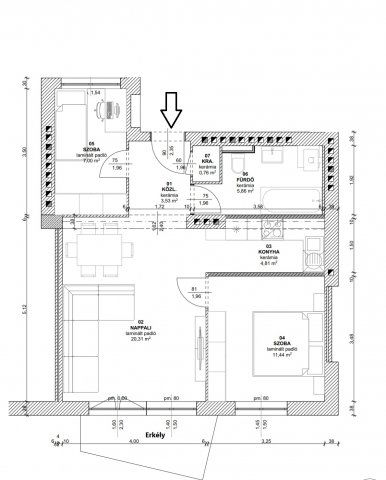
Megvételre kínálunk a XII. kerületben Zugliget, és Hárshegy határán egy, nappali + 2 hálószobás, világos, erkélyes lakást.

A tulajdoni lap szerint 68 m²-es, 55.5 m² (+erkély+2 tároló) ingatlan egy két szintes, 2×9 lakásos, stabil pénzügyi háttérrel rendelkező társasház második emeletén található, az Árnyas út környékének egyik legkedveltebb utcájában.
A lakás mérete: 55.5 m² + 4nm erkély.
Tartozik hozzá 2 db tároló az alaksorban, és az udvarban egy felszíni beálló, mely elég egy kisebb, és egy nagyobb gépjárműnek is.
A 2021 második felében teljeskörűen felújított lakásban a nappali, étkező és konyha egy légtérben helyezkedik el, modern térérzetet biztosítva.
Ebből a központi részből nyílnak a hálószobák, a fürdő, és egy tároló is.
A két külön nyíló hálószoba ideális elvonulást nyújt munkához, pihenéshez vagy gyerekeknek. A fürdő és WC egy helyiségben található, az 5 m²-es erkély pedig kellemes kitekintést kínál a zöld környezetre.
A felújítás során minden részletre kiterjedő, magas minőségű kivitelezés történt, többek között:

•Ariston kondenzációs kazán,
•3 fázisú elektromos hálózat,
•új hideg- és melegburkolatok,
•Midea légkondicionáló,
•új nyílászárók redőnnyel és szúnyoghálóval (elektromos/kézi vezérlés vegyesen).

A konyha és fürdő egyedi megrendelés alapján készült bútorokkal lett kialakítva, a konyha Electrolux gépekkel teljesen felszerelt.
A lakáshoz tartozik egy önálló, 7,5 m²-es tároló, valamint egy közös, kb. 15 m²-es tároló fele része.
A közös költség 20.000.- forint mely tartalmazza a vízfogyasztást is.
Minden más közmű elszámolás óra alapján történik.
A társasház az elmúlt években szintén jelentős korszerűsítésen esett át: megújult a villamos hálózat és a tető vízszigetelése, 2025-ben pedig a lépcsőház festése is befejeződött.
Igazi kuriózum, hogy a parkolás a zárt, 3600 m²-es, távirányítású kapuval ellátott kertben megoldott, így a környékbeli parkolási nehézségek az itt lakókat nem érintik.

Néhány perc sétára elérhető a János-hegy és a Hárshegyi erdő, miközben autóval tíz perc alatt a Széll Kálmán tér, Mammut is megközelíthető.


A lakás tehermentes, különleges adottságokkal rendelkező, teljeskörűen felújított lakás, zöldövezeti környezetben, mégis a város szívéhez közel.

Kérdéseivel keressen bizalommal!

Hirdetés feltöltve: 2026. 02. 24. Utoljára módosítva: 2026. 02. 24.

3 szobás téglalakások ára Budapesten

Ebből az összehasonlításból megtudhatod, hogyan viszonyul a lakás ára a környékbeli téglalakások átlagos árához. Ez nem azt jelenti, hogy ennyivel olcsóbb vagy drágább, mint amennyit a lakás ér, hanem hogy ennyivel tér el a környékbeli átlagtól.

Ennek a m² ára
Zugliget m² ár
XII. kerület m² ár
Budapest m² ár
2052 e Ft
2979 e Ft 31%
2422 e Ft 15%
1697 e Ft -21%
Ennek az ára
Zugliget átlagár
XII. kerület átlagár
Budapest átlagár
114.9 M Ft m Ft
261 m Ft 56%
209.2 m Ft 45%
131.3 m Ft 12%

Az ingatlan elhelyezkedése

Cím: Budapest, XII. kerület, Zugliget, Sztehlo Gábor utca, 2. emelet

Eladó ingatlanok a környékről

XII. kerület
Eladó téglalakás

Budapest, XII. kerület

203 M Ft
3 szoba
72 m²
XII. kerület, Kútvölgy
Eladó téglalakás

Budapest, XII. kerület

93 M Ft
2 szoba
53 m²
XII. kerület
Eladó téglalakás

Budapest, XII. kerület

383.914 M Ft
4 szoba
140 m²
XXIII. kerület
Eladó családi ház

Budapest, XXIII. kerület

32 M Ft
2 szoba
55 m²
XII. kerület, Németvölgy, Fodor utca
Eladó téglalakás

Budapest, XII. kerület

47.8 M Ft
1 szoba
31 m²
XIII. kerület, Vizafogó, Turóc utca 10
Eladó téglalakás

Budapest, XIII. kerület

147.525 M Ft
3 szoba
64 m²
XII. kerület
Eladó téglalakás

Budapest, XII. kerület

359.923 M Ft
4 + 2 szoba
120 m²
XI. kerület, Kelenföld, Budafoki út 64
Eladó téglalakás

Budapest, XI. kerület

145.425 M Ft
3 szoba
65 m²
XI. kerület, Kelenföld, Budafoki út 64
Eladó téglalakás

Budapest, XI. kerület

86.205 M Ft
2 szoba
43 m²
XII. kerület
Eladó téglalakás

Budapest, XII. kerület

475 M Ft
5 szoba
185 m²
XII. kerület
Eladó téglalakás

Budapest, XII. kerület

285 M Ft
4 szoba
169 m²
IX. kerület
Eladó téglalakás

Budapest, IX. kerület

55 M Ft
1 + 1 szoba
31 m²
XII. kerület, Orbánhegy
Eladó téglalakás

Budapest, XII. kerület

399 M Ft
4 szoba
165 m²
XIII. kerület, Vizafogó, Turóc utca 10
Eladó téglalakás

Budapest, XIII. kerület

150.57 M Ft
3 szoba
72 m²
XI. kerület, Kelenföld, Budafoki út 64
Eladó téglalakás

Budapest, XI. kerület

199.74 M Ft
4 szoba
86 m²
XII. kerület
Eladó téglalakás

Budapest, XII. kerület

650 M Ft
3 szoba
120 m²
XIII. kerület, Vizafogó, Turóc utca 10
Eladó téglalakás

Budapest, XIII. kerület

133.98 M Ft
3 szoba
63 m²
XX. kerület, Erzsébetfalva, Vörösmarty
Eladó panellakás

Budapest, XX. kerület

50 M Ft
2 szoba
50 m²
XXI. kerület, Csillagtelep, Kossuth Lajos utca
Eladó panellakás

Budapest, XXI. kerület

55.9 M Ft
2 szoba
52 m²
XXI. kerület, Királyerdő, Szentmiklósi
Eladó családi ház

Budapest, XXI. kerület

66 M Ft
2 szoba
50 m²
XII. kerület, Krisztinaváros, Városmajor utca
Eladó téglalakás

Budapest, XII. kerület

700 M Ft
20 + 5 szoba
849 m²
XIII. kerület, Vizafogó, Turóc utca 10
Eladó téglalakás

Budapest, XIII. kerület

96.915 M Ft
2 szoba
47 m²
XII. kerület
Eladó téglalakás

Budapest, XII. kerület

93 M Ft
2 szoba
53 m²
XII. kerület
Eladó téglalakás

Budapest, XII. kerület

475 M Ft
5 + 3 szoba
185 m²

Falusi CSOK ingatlanok

Kőtelek
Eladó családi ház

Kőtelek

25 M Ft
2 szoba
90 m²
Letenye
Eladó családi ház

Letenye

31.99 M Ft
3 szoba
105 m²
Vásárosdombó
Eladó családi ház

Vásárosdombó

14.99 M Ft
2 szoba
69 m²
Véménd
Eladó családi ház

Véménd

81.9 M Ft
3 szoba
150 m²
Tápióság
Eladó családi ház

Tápióság

29.9 M Ft
3 + 1 szoba
75 m²
Bugac
Eladó családi ház

Bugac

90 M Ft
5 szoba
230 m²
Tiszasziget, Sziget lakópark
Eladó sorház

Tiszasziget

33.9 M Ft
2 szoba
48 m²
Úri
Eladó családi ház

Úri

260 M Ft
7 szoba
300 m²