Aerogate Homes

Eladó téglalakás
Budapest, XII. kerület, földszint

+ 9 kép 1/12
407 996 400 Ft407.996 M Ft 3 777 744 Ft/m2
4 szoba
108 m²
földszint
építés éve:2025

Részletes adatok

Fűtés: Egyéb
Emelet: földszint
Extrák: Lift
Energetikai besorolás: A+

Az OTP Bank lakáshitel ajánlataFizetett hirdetés

+36 20 220
Szabó Sándor
referens

Érdekel az OTP Bank kedvezményes lakáshitel ajánlata? *

* A kérdésre „Igen” válasz bejelölése esetén, az „Üzenet küldése” gombra kattintva kijelentem, hogy az OTP Bank Nyrt. Adatkezelési tájékoztatójának tartalmát megismertem és tudomásul vettem.

Eladó téglalakás leírása

VIRÁNYOS VILLAPARK - PRÉMIUM OTTHONOK!
Elindult a Virányos Villapark épülő lakásainak értékesítése! Részletes információk, alaprajzok, parkolóhelyek, tárolók a viranyosvillapark oldalon! Várható átadás: 2026. 3. negyedév!
A Virányos Villapark Budapest 12. kerületében, a budai Széll Kálmán térhez közel, mégis csendes környezetben elhelyezkedő prémium minőségű lakópark.
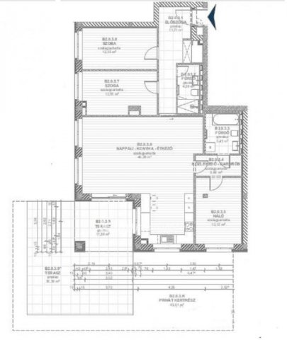
A hirdetésben szereplő lakás, a B épület földszintjén helyezkedik el, ÉNY-i tájolással, 108,55m2 alapterülettel, mely életteret tovább növeli a 47,77m2 alapterületű terasz és a 45,61m2 területű privát kert. A lakás helyiségei: előszoba, amerikai konyhás nappali és étkező, 3 szoba, 2 fürdőszoba, gardrób, terasz és kert.
A Villaparkban 60-175m2 közötti, N + 1-2-3-4 szobás, kertes, teraszos, erkélyes, tágas tetőteraszos, valamint duplex és penthouse lakások közül választhat. Az elérhető lakásokról érdeklődjön telefonon! A kiválasztott lakáshoz mélygarázs beálló hely és tároló vásárlása kötelező. További beálló helyek és tárolók a készlet erejéig vásárolhatóak.
A villapark főbb jellemzői: parkosított, öntözőrendszerrel ellátott közös kert, csendes környezet, változatos lakás-, terasz- és kertméretek, tágas, napfényes lakások.
A lakások műszaki jellemzői: megújuló energiával előállított hatékony, hőszivattyús hűtő-fűtő rendszer, padlófűtés és mennyezeti fan-coil hűtés a maximális komfort érzetért, lakásonként kialakított hővisszanyerős szellőztetőrendszer az állandó friss levegő biztosításáért, magas minőségű alumínium nyílászárók 3 rétegű üvegezéssel a kiváló hő- és hangszigetelésért, árnyékoló rendszer az optimális fényviszonyok eléréséért, audió-videó kaputelefon, személyre szabható okosotthon rendszer előkészítés, amely lehetővé teszi a lakás teljeskörű vezérlését.
Az ingatlan közvetlen környezetében számos magánóvoda és általános iskola, gimnázium található. Bevásárlási lehetőségként a Budagyöngye Bevásárlóközpont és a szintén közeli Mammut Bevásárló- és Szórakoztató Központ is rendelkezésre áll.
A Virányos Villapark tömegközlekedési eszközzel is könnyen megközelíthető, az 56-os, 59-es, 61-es villamosok, a 22-es, 91-es, 155-ös és 156-os buszok megállói pár perc sétatávolságra találhatók.
Érd.: Szabó Sándor +3620-220 4440

Referencia szám: M303641-ZE

Hirdetés feltöltve: 2026. 01. 24. Utoljára módosítva: 2026. 03. 24.

4 szobás téglalakások ára Budapesten

Ebből az összehasonlításból megtudhatod, hogyan viszonyul a lakás ára a környékbeli téglalakások átlagos árához. Ez nem azt jelenti, hogy ennyivel olcsóbb vagy drágább, mint amennyit a lakás ér, hanem hogy ennyivel tér el a környékbeli átlagtól.

Ennek a m² ára
XII. kerület m² ár
Budapest m² ár
3778 e Ft
2721 e Ft -39%
1787 e Ft -111%
Ennek az ára
XII. kerület átlagár
Budapest átlagár
407.996 M Ft m Ft
323.7 m Ft -26%
187.4 m Ft -118%

Az ingatlan elhelyezkedése

Cím: Budapest, XII. kerület, földszint

Eladó ingatlanok a környékről

XII. kerület, Széchenyihegy, Ágnes köz
Eladó téglalakás

Budapest, XII. kerület

277 M Ft
3 szoba
98 m²
III. kerület, Csillaghegy
Eladó családi ház

Budapest, III. kerület

128.8 M Ft
4 szoba
120 m²
XII. kerület
Eladó téglalakás

Budapest, XII. kerület

475 M Ft
5 szoba
185 m²
XII. kerület
Eladó téglalakás

Budapest, XII. kerület

175.6 M Ft
2 szoba
53 m²
XVIII. kerület, Liptáktelep
Eladó téglalakás

Budapest, XVIII. kerület

97.5 M Ft
3 szoba
72 m²
XXII. kerület
Eladó ikerház

Budapest, XXII. kerület

159 M Ft
5 szoba
246 m²
XVIII. kerület, Liptáktelep
Eladó családi ház

Budapest, XVIII. kerület

105 M Ft
2 szoba
90 m²
XII. kerület
Eladó téglalakás

Budapest, XII. kerület

359.923 M Ft
4 + 2 szoba
120 m²
XVIII. kerület, Szent Imre kertváros
Eladó családi ház

Budapest, XVIII. kerület

99.9 M Ft
2 szoba
80 m²
XII. kerület
Eladó téglalakás

Budapest, XII. kerület

93 M Ft
2 szoba
53 m²
II. kerület
Eladó téglalakás

Budapest, II. kerület

275 M Ft
4 szoba
97 m²
XII. kerület
Eladó téglalakás

Budapest, XII. kerület

96.9 M Ft
2 + 1 szoba
82 m²
XVIII. kerület, Miklóstelep
Eladó családi ház

Budapest, XVIII. kerület

129.9 M Ft
7 szoba
100 m²
XII. kerület
Eladó téglalakás

Budapest, XII. kerület

285 M Ft
4 szoba
169 m²
XII. kerület, Farkasvölgy
Eladó téglalakás

Budapest, XII. kerület

322.988 M Ft
1 + 2 szoba
166 m²
XIII. kerület
Eladó panellakás

Budapest, XIII. kerület

79.8 M Ft
1 + 2 szoba
58 m²
XII. kerület
Eladó téglalakás

Budapest, XII. kerület

383.914 M Ft
4 szoba
140 m²
XVII. kerület
Eladó családi ház

Budapest, XVII. kerület

179 M Ft
5 szoba
150 m²
XVIII. kerület, Szemeretelep
Eladó családi ház

Budapest, XVIII. kerület

140 M Ft
2 szoba
118 m²
XII. kerület
Eladó téglalakás

Budapest, XII. kerület

321 M Ft
3 szoba
108 m²
XII. kerület
Eladó téglalakás

Budapest, XII. kerület

383.914 M Ft
4 + 2 szoba
140 m²
XII. kerület, Széchenyihegy, Ágnes köz
Eladó téglalakás

Budapest, XII. kerület

475 M Ft
5 szoba
185 m²
II. kerület
Eladó családi ház

Budapest, II. kerület

149.9 M Ft
3 szoba
90 m²
XII. kerület
Eladó téglalakás

Budapest, XII. kerület

359.923 M Ft
5 szoba
122 m²

Falusi CSOK ingatlanok

Mád
Eladó családi ház

Mád

48 M Ft
3 szoba
181 m²
Söjtör
Eladó családi ház

Söjtör

23 M Ft
2 szoba
91 m²
Szőlősgyörök
Eladó családi ház

Szőlősgyörök

29.9 M Ft
3 szoba
85 m²
Pálfa
Eladó családi ház

Pálfa

22 M Ft
3 szoba
98 m²
Bag
Eladó családi ház

Bag

16.9 M Ft
6 szoba
160 m²
Mikebuda
Eladó családi ház

Mikebuda

45.9 M Ft
7 szoba
120 m²
Verseg
Eladó családi ház

Verseg

35 M Ft
1 + 1 szoba
42 m²
Lovászi
Eladó családi ház

Lovászi

25 M Ft
3 + 1 szoba
120 m²