Astora Márvány8

Eladó téglalakás
Budapest, XI. kerület, 6. emelet

+ 17 kép 1/20
119 900 000 Ft119.9 M Ft 2 788 372 Ft/m2
2 szoba
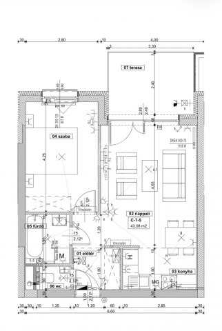
43 m²
6. emelet
építés éve:2020

Részletes adatok

Állapot: Újszerű
Fűtés: Házközponti egyedi méréssel
Emelet: 6. emelet
Komfort: Összkomfortos
Extrák: Lift
Energetikai besorolás: A+

Az OTP Bank lakáshitel ajánlataFizetett hirdetés

+36 70 676
Ernyei Vera
referens

Érdekel az OTP Bank kedvezményes lakáshitel ajánlata? *

* A kérdésre „Igen” válasz bejelölése esetén, az „Üzenet küldése” gombra kattintva kijelentem, hogy az OTP Bank Nyrt. Adatkezelési tájékoztatójának tartalmát megismertem és tudomásul vettem.

Eladó téglalakás leírása

SASAD LIGET LAKÓPARK 5. ÜTEMBEN LEGFELSŐ EMELETI ELVEHETETLEN PANORÁMÁS KOMPAKT LAKÁS

Lakás 43,08 nm, terasz 8,48 nm
A panoráma örök és elvehetetlen.
A konyha gépesített.
Hűtő-fűtő klíma minden eshetőségre.
Panorámás, fedett terasz bútorokkal.
Szoba, előszoba, fürdőszoba beépített bútorokkal.
A teljes jelenlegi berendezés megbeszélés tárgyát képezi.

Amennyiben szükségét érzi a lakáshoz teremgarázs beálló is vásárolható.

Bármilyen kérdés esetén várom hívását!

Amennyiben nem rendelkezik a teljes vételárral szívesen segítünk megtalálni az Önnek megfelelő finanszírozási formát is. ...TOVÁBBI, TÖBBEZRES INGATLAN KÍNÁLAT: www.gdn-ingatlan.hu - GDN azonosító: 395104

Hirdetés feltöltve: 2026. 04. 27. Utoljára módosítva: 2026. 05. 15.

2 szobás téglalakások ára Budapesten

Ebből az összehasonlításból megtudhatod, hogyan viszonyul a lakás ára a környékbeli téglalakások átlagos árához. Ez nem azt jelenti, hogy ennyivel olcsóbb vagy drágább, mint amennyit a lakás ér, hanem hogy ennyivel tér el a környékbeli átlagtól.

Ennek a m² ára
XI. kerület m² ár
Budapest m² ár
2788 e Ft
1954 e Ft -43%
1675 e Ft -66%
Ennek az ára
XI. kerület átlagár
Budapest átlagár
119.9 M Ft m Ft
97.5 m Ft -23%
88.4 m Ft -36%

Az ingatlan elhelyezkedése

Cím: Budapest, XI. kerület, 6. emelet

Eladó ingatlanok a környékről

XI. kerület
Eladó téglalakás

Budapest, XI. kerület

151 M Ft
3 szoba
74 m²
IV. kerület
Eladó téglalakás

Budapest, IV. kerület

82.9 M Ft
3 szoba
69 m²
XI. kerület
Eladó téglalakás

Budapest, XI. kerület

510 M Ft
4 szoba
124 m²
XV. kerület
Eladó panellakás

Budapest, XV. kerület

64.9 M Ft
3 szoba
61 m²
XI. kerület
Eladó téglalakás

Budapest, XI. kerület

135.138 M Ft
4 szoba
92 m²
IX. kerület
Eladó téglalakás

Budapest, IX. kerület

119 M Ft
2 szoba
85 m²
XI. kerület, Kelenföld
Eladó téglalakás

Budapest, XI. kerület

239 M Ft
3 szoba
85 m²
I. kerület
Eladó téglalakás

Budapest, I. kerület

389 M Ft
3 szoba
111 m²
XI. kerület
Eladó téglalakás

Budapest, XI. kerület

75.6 M Ft
2 szoba
50 m²
XX. kerület
Eladó családi ház

Budapest, XX. kerület

119.9 M Ft
8 + 1 szoba
235 m²
XI. kerület
Eladó téglalakás

Budapest, XI. kerület

228.66 M Ft
5 szoba
131 m²
XI. kerület, Sasad
Eladó téglalakás

Budapest, XI. kerület

220 M Ft
2 + 1 szoba
76 m²
XI. kerület
Eladó téglalakás

Budapest, XI. kerület

87.5 M Ft
2 szoba
51 m²
IX. kerület
Eladó téglalakás

Budapest, IX. kerület

79.9 M Ft
1 + 1 szoba
44 m²
XI. kerület
Eladó panellakás

Budapest, XI. kerület

78 M Ft
2 szoba
49 m²
V. kerület
Eladó téglalakás

Budapest, V. kerület

341 M Ft
4 szoba
112 m²
XI. kerület, Kelenföld
Eladó téglalakás

Budapest, XI. kerület

251 M Ft
4 szoba
91 m²
XV. kerület
Eladó téglalakás

Budapest, XV. kerület

64.9 M Ft
2 szoba
49 m²
XI. kerület, Gellérthegy, Buda XI. ker. Gellérthegy
Eladó téglalakás

Budapest, XI. kerület

379 M Ft
5 szoba
123 m²
XX. kerület, Gubacsipuszta, Kakastó utca 40
Eladó családi ház

Budapest, XX. kerület

109 M Ft
6 + 4 szoba
260 m²
XI. kerület
Eladó téglalakás

Budapest, XI. kerület

134.9 M Ft
3 szoba
88 m²
V. kerület
Eladó téglalakás

Budapest, V. kerület

169 M Ft
4 szoba
119 m²
XIV. kerület
Eladó téglalakás

Budapest, XIV. kerület

64.9 M Ft
2 szoba
50 m²
XI. kerület, Sasad
Eladó téglalakás

Budapest, XI. kerület

319 M Ft
5 szoba
186 m²

Falusi CSOK ingatlanok

Balatonszemes
Eladó téglalakás

Balatonszemes

119.9 M Ft
2 szoba
0 m²
Hegyeshalom, Margaréta utca 12
Eladó téglalakás

Hegyeshalom

32.89 M Ft
1 szoba
27 m²
Halimba
Eladó családi ház

Halimba

59.9 M Ft
6 szoba
182 m²
Örkény
Eladó családi ház

Örkény

34 M Ft
2 + 1 szoba
85 m²
Bakonyszentlászló
Eladó családi ház

Bakonyszentlászló

48.5 M Ft
3 szoba
103 m²
Szabadbattyán
Eladó családi ház

Szabadbattyán

79.6 M Ft
4 szoba
101 m²
Dunaegyháza
Eladó családi ház

Dunaegyháza

29.49 M Ft
3 szoba
70 m²
Sásd
Eladó családi ház

Sásd

35.9 M Ft
4 + 1 szoba
71 m²