River Life

Eladó téglalakás
Budapest, XI. kerület, 9. emelet

+ 17 kép 1/20
420 000 000 Ft420 M Ft 2 937 063 Ft/m2
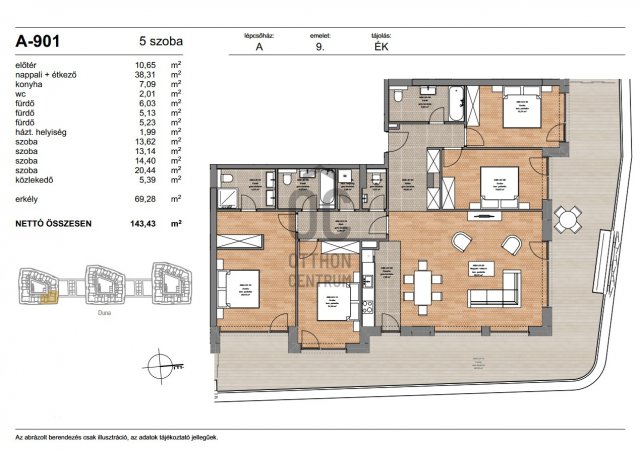
5 szoba
143 m²
9. emelet
építés éve:2028

Részletes adatok

Fűtés: Egyéb
Emelet: 9. emelet
Közmű: Villany, Csatorna
Energetikai besorolás: Nem adta meg a hirdető

Az OTP Bank lakáshitel ajánlataFizetett hirdetés

+36 70 465
Arany Bálint
referens

Érdekel az OTP Bank kedvezményes lakáshitel ajánlata? *

* A kérdésre „Igen” válasz bejelölése esetén, az „Üzenet küldése” gombra kattintva kijelentem, hogy az OTP Bank Nyrt. Adatkezelési tájékoztatójának tartalmát megismertem és tudomásul vettem.

Eladó téglalakás leírása

Projekt bemutatása

Ott, ahol a természet és a városi élet találkozik.
A budai Duna-parton megvalósuló új prémium fejlesztés a vízparti élet luxusát kínálja modern, elegáns formában.
Tágas teraszok, lenyűgöző panoráma, fenntartható műszaki megoldások – mindez néhány lépésre a folyótól, Buda dinamikusan fejlődő negyedében.

A budai életstílus új dimenziója

Ez a lakópark nem csupán otthon, hanem életérzés.
A teraszról a Duna látványa, a vízpart halk morajlása és a modern városi környezet tökéletes harmóniája adja az itt élők mindennapjainak különleges atmoszféráját.

A projekt két ütemben valósul meg:
- I. ütem: három elegáns, 9 emeletes épület
- II. ütem: három közvetlen vízparti épület, exkluzív kilátással és saját kikötővel

KIVÉTELES LOKÁCIÓ – tökéletes elérhetőség
- XI. kerület, közvetlenül a Duna-parton
- Savoya Park: pár perc sétára
- Etele Plaza: 10 perc autóval
- Kopaszi-gát: mindössze 4 km
- Móricz Zsigmond körtér: 13 perc busszal
- Villamos- és buszmegállók néhány perc sétára, minden szolgáltatás – iskolák, éttermek, bevásárlási lehetőségek – elérhető közelségben.

A környék Buda egyik leggyorsabban fejlődő területe, modern infrastruktúrával, vízparti sétányokkal és zöld parkokkal – a város új, természetközeli központja születik itt.

Kortárs építészet – időtálló elegancia
A lakóépületek modern, letisztult megjelenése a Duna vonalvezetését idézi.
A zöldtetők, parkosított udvarok és természetes anyaghasználat az épített környezet és a természet összhangját teremti meg.
- 2 szintes mélygarázs, elektromos autótöltési előkészítéssel
- Tágas, napfényes teraszok minden lakáshoz
- Háromrétegű nyílászárók, prémium hő- és hangszigeteléssel
- WPC teraszburkolatok, korszerű hőhídmentes homlokzati rendszer
- Közösségi zöldterek és pihenőkertek

MŰSZAKI TARTALOM – a jövő technológiája ma
- A fejlesztés kiemelt hangsúlyt helyez az energiahatékonyságra és a komfortérzetre:
- Környezetbarát levegős hőszivattyús rendszer
- Mennyezeti hűtés-fűtés, helyiségenként szabályozható termosztátokkal
- Okosvezérlés, távvezérelhető hőmérséklet-szabályozás
- Zöldtető és hővisszanyerős szellőzés
- Egyedi mérésű energiafogyasztás minden lakásban

A lakások belső kialakítása válogatott anyagkollekcióból választható, a klasszikus elegancia és a modern minimalizmus stílusában.

Élmény, ami túlmutat az otthon fogalmán

A lakópark lakói a vízpart nyugalmát, a zöld környezet frissességét és a budai életstílus kényelmét élvezhetik nap mint nap.
A saját klubhelyiség és kikötő a vízparti élet exkluzív élményét teszi teljessé.

Ez az a hely, ahol a mindennapok is ünneppé válnak.

VÁRHATÓ ÁTADÁS:

Szerkezetkész: 2027. február
Kulcsrakész: 2028. december

A Duna-part új fejezete most íródik.
Itt nem csupán lakást vásárol – hanem egy életstílust, ami Buda jövőjét határozza meg.

Hirdetés feltöltve: 2026. 04. 01. Utoljára módosítva: 2026. 04. 01.

5 szobás téglalakások ára Budapesten

Ebből az összehasonlításból megtudhatod, hogyan viszonyul a lakás ára a környékbeli téglalakások átlagos árához. Ez nem azt jelenti, hogy ennyivel olcsóbb vagy drágább, mint amennyit a lakás ér, hanem hogy ennyivel tér el a környékbeli átlagtól.

Ennek a m² ára
XI. kerület m² ár
Budapest m² ár
2937 e Ft
2023 e Ft -45%
1628 e Ft -80%
Ennek az ára
XI. kerület átlagár
Budapest átlagár
420 M Ft m Ft
274.9 m Ft -53%
247.2 m Ft -70%

Az ingatlan elhelyezkedése

Cím: Budapest, XI. kerület, 9. emelet

Eladó ingatlanok a környékről

XI. kerület
Eladó téglalakás

Budapest, XI. kerület

220 M Ft
2 + 1 szoba
76 m²
XX. kerület
Eladó téglalakás

Budapest, XX. kerület

64.9 M Ft
2 szoba
49 m²
XVI. kerület, Árpádföld, Máté utca
Eladó családi ház

Budapest, XVI. kerület

239 M Ft
1 + 4 szoba
143 m²
XVI. kerület, Árpádföld, Máté utca
Eladó családi ház

Budapest, XVI. kerület

239 M Ft
1 + 4 szoba
143 m²
XVIII. kerület
Eladó ikerház

Budapest, XVIII. kerület

68.9 M Ft
3 szoba
102 m²
XI. kerület
Eladó téglalakás

Budapest, XI. kerület

151 M Ft
3 szoba
74 m²
II. kerület, Kurucles, Zivatar utca
Eladó téglalakás

Budapest, II. kerület

80 M Ft
1 szoba
47 m²
XI. kerület, Hosszúrét, Rétkerülő út
Eladó téglalakás

Budapest, XI. kerület

189 M Ft
2 + 1 szoba
110 m²
XI. kerület
Eladó téglalakás

Budapest, XI. kerület

87.5 M Ft
2 szoba
51 m²
XI. kerület
Eladó téglalakás

Budapest, XI. kerület

235 M Ft
4 szoba
127 m²
V. kerület, Lipótváros, Havas utca
Eladó téglalakás

Budapest, V. kerület

220 M Ft
3 szoba
83 m²
XI. kerület
Eladó téglalakás

Budapest, XI. kerület

239.9 M Ft
5 szoba
139 m²
XI. kerület
Eladó téglalakás

Budapest, XI. kerület

175 M Ft
4 szoba
115 m²
II. kerület
Eladó téglalakás

Budapest, II. kerület

223.5 M Ft
7 szoba
188 m²
XI. kerület
Eladó téglalakás

Budapest, XI. kerület

96.925 M Ft
3 szoba
64 m²
XI. kerület
Eladó téglalakás

Budapest, XI. kerület

98.058 M Ft
3 szoba
64 m²
II. kerület, Kurucles, Zivatar utca
Eladó téglalakás

Budapest, II. kerület

80 M Ft
1 szoba
47 m²
XI. kerület
Eladó téglalakás

Budapest, XI. kerület

107.431 M Ft
3 szoba
74 m²
XVII. kerület, Rákoskeresztúr, Kaszáló utca
Eladó panellakás

Budapest, XVII. kerület

89.99 M Ft
4 szoba
69 m²
XII. kerület
Eladó téglalakás

Budapest, XII. kerület

178.8 M Ft
3 szoba
119 m²
XVIII. kerület
Eladó ikerház

Budapest, XVIII. kerület

68.9 M Ft
3 szoba
102 m²
XI. kerület
Eladó téglalakás

Budapest, XI. kerület

228.66 M Ft
5 szoba
131 m²
XI. kerület, Madárhegy
Eladó téglalakás

Budapest, XI. kerület

340 M Ft
5 szoba
186 m²
XI. kerület, Madárhegy
Eladó téglalakás

Budapest, XI. kerület

270 M Ft
4 szoba
133 m²

Falusi CSOK ingatlanok

Nagyharsány
Eladó téglalakás

Nagyharsány

22.5 M Ft
3 szoba
71 m²
Úrkút
Eladó családi ház

Úrkút

94.9 M Ft
4 szoba
186 m²
Lulla
Eladó családi ház

Lulla

130 M Ft
15 szoba
380 m²
Pálfa
Eladó családi ház

Pálfa

22 M Ft
3 szoba
98 m²
Balatonberény
Eladó családi ház

Balatonberény

290 M Ft
12 szoba
214 m²
Csesztreg
Eladó családi ház

Csesztreg

53 M Ft
2 + 2 szoba
78 m²
Tápiógyörgye
Eladó családi ház

Tápiógyörgye

24.99 M Ft
6 + 1 szoba
153 m²
Magyarpolány
Eladó családi ház

Magyarpolány

90 M Ft
2 szoba
70 m²