Aerogate Homes

Eladó téglalakás
Budapest, XI. kerület, 4. emelet

+ 17 kép 1/20
182 100 000 Ft182.1 M Ft 2 334 615 Ft/m2
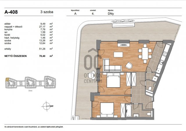
3 szoba
78 m²
4. emelet
építés éve:2028

Részletes adatok

Fűtés: Egyéb
Emelet: 4. emelet
Közmű: Villany, Csatorna
Energetikai besorolás: Nem adta meg a hirdető

Az OTP Bank lakáshitel ajánlataFizetett hirdetés

+36 70 465
Arany Bálint
referens

Érdekel az OTP Bank kedvezményes lakáshitel ajánlata? *

* A kérdésre „Igen” válasz bejelölése esetén, az „Üzenet küldése” gombra kattintva kijelentem, hogy az OTP Bank Nyrt. Adatkezelési tájékoztatójának tartalmát megismertem és tudomásul vettem.

Eladó téglalakás leírása

Projekt bemutatása

Ott, ahol a természet és a városi élet találkozik.
A budai Duna-parton megvalósuló új prémium fejlesztés a vízparti élet luxusát kínálja modern, elegáns formában.
Tágas teraszok, lenyűgöző panoráma, fenntartható műszaki megoldások – mindez néhány lépésre a folyótól, Buda dinamikusan fejlődő negyedében.

A budai életstílus új dimenziója

Ez a lakópark nem csupán otthon, hanem életérzés.
A teraszról a Duna látványa, a vízpart halk morajlása és a modern városi környezet tökéletes harmóniája adja az itt élők mindennapjainak különleges atmoszféráját.

A projekt két ütemben valósul meg:
- I. ütem: három elegáns, 9 emeletes épület
- II. ütem: három közvetlen vízparti épület, exkluzív kilátással és saját kikötővel

KIVÉTELES LOKÁCIÓ – tökéletes elérhetőség
- XI. kerület, közvetlenül a Duna-parton
- Savoya Park: pár perc sétára
- Etele Plaza: 10 perc autóval
- Kopaszi-gát: mindössze 4 km
- Móricz Zsigmond körtér: 13 perc busszal
- Villamos- és buszmegállók néhány perc sétára, minden szolgáltatás – iskolák, éttermek, bevásárlási lehetőségek – elérhető közelségben.

A környék Buda egyik leggyorsabban fejlődő területe, modern infrastruktúrával, vízparti sétányokkal és zöld parkokkal – a város új, természetközeli központja születik itt.

Kortárs építészet – időtálló elegancia
A lakóépületek modern, letisztult megjelenése a Duna vonalvezetését idézi.
A zöldtetők, parkosított udvarok és természetes anyaghasználat az épített környezet és a természet összhangját teremti meg.
- 2 szintes mélygarázs, elektromos autótöltési előkészítéssel
- Tágas, napfényes teraszok minden lakáshoz
- Háromrétegű nyílászárók, prémium hő- és hangszigeteléssel
- WPC teraszburkolatok, korszerű hőhídmentes homlokzati rendszer
- Közösségi zöldterek és pihenőkertek

MŰSZAKI TARTALOM – a jövő technológiája ma
- A fejlesztés kiemelt hangsúlyt helyez az energiahatékonyságra és a komfortérzetre:
- Környezetbarát levegős hőszivattyús rendszer
- Mennyezeti hűtés-fűtés, helyiségenként szabályozható termosztátokkal
- Okosvezérlés, távvezérelhető hőmérséklet-szabályozás
- Zöldtető és hővisszanyerős szellőzés
- Egyedi mérésű energiafogyasztás minden lakásban

A lakások belső kialakítása válogatott anyagkollekcióból választható, a klasszikus elegancia és a modern minimalizmus stílusában.

Élmény, ami túlmutat az otthon fogalmán

A lakópark lakói a vízpart nyugalmát, a zöld környezet frissességét és a budai életstílus kényelmét élvezhetik nap mint nap.
A saját klubhelyiség és kikötő a vízparti élet exkluzív élményét teszi teljessé.

Ez az a hely, ahol a mindennapok is ünneppé válnak.

VÁRHATÓ ÁTADÁS:

Szerkezetkész: 2027. február
Kulcsrakész: 2028. december

A Duna-part új fejezete most íródik.
Itt nem csupán lakást vásárol – hanem egy életstílust, ami Buda jövőjét határozza meg.

Hirdetés feltöltve: 2026. 03. 21. Utoljára módosítva: 2026. 04. 01.

3 szobás téglalakások ára Budapesten

Ebből az összehasonlításból megtudhatod, hogyan viszonyul a lakás ára a környékbeli téglalakások átlagos árához. Ez nem azt jelenti, hogy ennyivel olcsóbb vagy drágább, mint amennyit a lakás ér, hanem hogy ennyivel tér el a környékbeli átlagtól.

Ennek a m² ára
XI. kerület m² ár
Budapest m² ár
2335 e Ft
1925 e Ft -21%
1706 e Ft -37%
Ennek az ára
XI. kerület átlagár
Budapest átlagár
182.1 M Ft m Ft
142 m Ft -28%
131.2 m Ft -39%

Az ingatlan elhelyezkedése

Cím: Budapest, XI. kerület, 4. emelet

Eladó ingatlanok a környékről

XI. kerület, Kőérberek, Kánai út 31
Eladó téglalakás

Budapest, XI. kerület

121.49 M Ft
3 szoba
63 m²
XI. kerület
Eladó téglalakás

Budapest, XI. kerület

151 M Ft
3 szoba
74 m²
III. kerület, Újlak, Seregély utca 13
Eladó téglalakás

Budapest, III. kerület

109.9 M Ft
3 szoba
84 m²
III. kerület
Eladó panellakás

Budapest, III. kerület

78.9 M Ft
1 + 2 szoba
74 m²
XI. kerület
Eladó téglalakás

Budapest, XI. kerület

220 M Ft
2 + 1 szoba
76 m²
I. kerület, Víziváros, Szabó Ilonka
Eladó téglalakás

Budapest, I. kerület

130 M Ft
2 szoba
71 m²
XI. kerület
Eladó téglalakás

Budapest, XI. kerület

96.925 M Ft
3 szoba
64 m²
XI. kerület
Eladó téglalakás

Budapest, XI. kerület

141.112 M Ft
4 szoba
96 m²
XI. kerület, Sasad, Lanka utca
Eladó téglalakás

Budapest, XI. kerület

327 M Ft
4 szoba
130 m²
XI. kerület
Eladó téglalakás

Budapest, XI. kerület

239.9 M Ft
5 szoba
139 m²
XII. kerület, Kissvábhegy, Határőr út
Eladó ikerház

Budapest, XII. kerület

960 M Ft
7 + 3 szoba
399 m²
III. kerület
Eladó panellakás

Budapest, III. kerület

69.9 M Ft
2 szoba
50 m²
XI. kerület
Eladó téglalakás

Budapest, XI. kerület

259 M Ft
3 + 1 szoba
110 m²
XI. kerület
Eladó téglalakás

Budapest, XI. kerület

132.254 M Ft
4 szoba
91 m²
I. kerület, Víziváros, Szabó Ilonka utca
Eladó téglalakás

Budapest, I. kerület

130 M Ft
2 szoba
71 m²
XI. kerület
Eladó téglalakás

Budapest, XI. kerület

85.811 M Ft
2 szoba
50 m²
II. kerület
Eladó családi ház

Budapest, II. kerület

750 M Ft
4 szoba
155 m²
XI. kerület, Kőérberek, Kánai út 31
Eladó téglalakás

Budapest, XI. kerület

148.49 M Ft
3 szoba
69 m²
XI. kerület
Eladó téglalakás

Budapest, XI. kerület

110.212 M Ft
3 szoba
71 m²
XI. kerület
Eladó téglalakás

Budapest, XI. kerület

133.078 M Ft
4 szoba
92 m²
XI. kerület
Eladó téglalakás

Budapest, XI. kerület

98.058 M Ft
3 szoba
64 m²
XI. kerület
Eladó téglalakás

Budapest, XI. kerület

239 M Ft
3 szoba
85 m²
XI. kerület
Eladó téglalakás

Budapest, XI. kerület

87.5 M Ft
2 szoba
51 m²
XI. kerület
Eladó téglalakás

Budapest, XI. kerület

270 M Ft
4 szoba
133 m²

Falusi CSOK ingatlanok

Levelek
Eladó családi ház

Levelek

73 M Ft
5 szoba
220 m²
Ádánd
Eladó családi ház

Ádánd

74.99 M Ft
5 szoba
150 m²
Vértesboglár
Eladó családi ház

Vértesboglár

131 M Ft
5 szoba
147 m²
Ádánd
Eladó családi ház

Ádánd

67 M Ft
6 szoba
251 m²
Onga
Eladó családi ház

Onga

81.9 M Ft
4 szoba
109 m²
Ceglédbercel
Eladó családi ház

Ceglédbercel

67 M Ft
3 szoba
97 m²
Nagyhegyes
Eladó családi ház

Nagyhegyes

92900 M Ft
3 + 1 szoba
120 m²
Karád, Kodály utca
Eladó családi ház

Karád

24.5 M Ft
3 szoba
75 m²