Seven Pearl

Eladó téglalakás
Budapest, XI. kerület, Sasad, Kondorosi Lakópark, földszint

+ 17 kép 1/20
184 900 000 Ft184.9 M Ft 1 665 766 Ft/m2
4 szoba
111 m²
földszint

Részletes adatok

Állapot: Újszerű
Fűtés: Házközponti egyedi méréssel
Emelet: földszint
Parkolás: Garázs
Extrák: Lift
Energetikai besorolás: Nem adta meg a hirdető

Az OTP Bank lakáshitel ajánlataFizetett hirdetés

+36 70 590
Simon Csilla
OPTIMA | A szakértő ingatlaniroda

Érdekel az OTP Bank kedvezményes lakáshitel ajánlata? *

* A kérdésre „Igen” válasz bejelölése esetén, az „Üzenet küldése” gombra kattintva kijelentem, hogy az OTP Bank Nyrt. Adatkezelési tájékoztatójának tartalmát megismertem és tudomásul vettem.

Eladó téglalakás leírása

PRÉMIUM LAKÓPARKI OTTHON

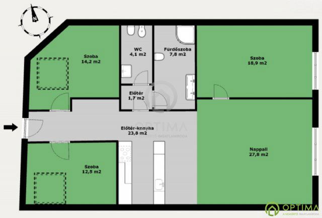
A XI. kerület népszerű lakóparkjában, a Kondorosi lakópark I. ütemében található ez a felújított, 4 szobás, kiváló elosztású lakás.
Jó választás saját célra és befektetésnek is, stabilan keresett környezetben.

A 111 m²-es lakás elrendezése átgondolt: 3 különnyíló hálószoba és egy tágas, amerikai konyhás nappali alkotja az életteret.
A lakás keleti tájolású, két hálószobában tetőablak segíti a természetes fény bejutását a nap későbbi szakaszában is.
A konyha beépített és teljesen gépesített, a lakás klímaberendezéssel felszerelt. Külön WC bidével, valamint WC-s fürdőszoba is kialakításra került.

Főbb jellemzők:
• HÁZKÖZPONTI fűtés, EGYEDI MÉRŐKKEL
• Közös költség: 40.000 Ft/hó (fűtés és vízdíjat is tartalmazza)
• Rezsi: kizárólag villanyszámla
• Gépesített konyha:
- kétajtós hűtő–fagyasztó
- sütő
- indukciós főzőlap
- páraelszívó
- mosogatógép
• Klímaberendezés
• Biztonsági szolgálat a lakópark területén
•Tehermentes ingatlan, 1/1 tulajdon

Lokáció és környezet:
A környék jól kiépített, élhető városi környezetet kínál. A mindennapi élethez szükséges üzletek, szolgáltatások és bevásárlási lehetőségek könnyen elérhetők, a közlekedés pedig rugalmas: a város főbb irányai gyorsan megközelíthetők autóval, tömegközlekedéssel, valamint kerékpárral is. A közeli zöldterületek és a Duna-part kellemes kikapcsolódási lehetőséget nyújtanak.

Parkolás:
• Teremgarázs-beálló opcionálisan megvásárolható. Irányár: 10 millió Ft

Birtokbaadás:
• 2026 áprilistól
Befektetésnek is kiváló:
• Jelenlegi bérleti díj: 525.000 Ft/hó

Kinek ajánlom:
Családoknak, nagyobb alapterületű lakást keresőknek, illetve befektetőknek, akik egy jól kiadható, lakóparki ingatlant keresnek a XI. kerületben.
A lakópark rendezett környezetet és hosszú távon is értékálló megoldást kínál.

A megtekintés telefonos egyeztetését este és hétvégén is szívesen intézem.

Hirdetés feltöltve: 2026. 03. 04. Utoljára módosítva: 2026. 03. 30.

4 szobás téglalakások ára Budapesten

Ebből az összehasonlításból megtudhatod, hogyan viszonyul a lakás ára a környékbeli téglalakások átlagos árához. Ez nem azt jelenti, hogy ennyivel olcsóbb vagy drágább, mint amennyit a lakás ér, hanem hogy ennyivel tér el a környékbeli átlagtól.

Ennek a m² ára
Sasad m² ár
XI. kerület m² ár
Budapest m² ár
1666 e Ft
468 e Ft -256%
2065 e Ft 19%
1786 e Ft 7%
Ennek az ára
Sasad átlagár
XI. kerület átlagár
Budapest átlagár
184.9 M Ft m Ft
50.3 m Ft -267%
222.5 m Ft 17%
187.3 m Ft 1%

Az ingatlan elhelyezkedése

Cím: Budapest, XI. kerület, Sasad, Kondorosi Lakópark, földszint

Eladó ingatlanok a környékről

XI. kerület, Péterhegy
Eladó téglalakás

Budapest, XI. kerület

98.058 M Ft
3 szoba
64 m²
X. kerület, Újhegy
Eladó panellakás

Budapest, X. kerület

67.9 M Ft
3 szoba
68 m²
XI. kerület, Péterhegy
Eladó téglalakás

Budapest, XI. kerület

85.811 M Ft
2 szoba
50 m²
VIII. kerület, Palotanegyed
Eladó téglalakás

Budapest, VIII. kerület

74.9 M Ft
3 szoba
28 m²
XI. kerület, Madárhegy
Eladó téglalakás

Budapest, XI. kerület

339 M Ft
4 szoba
119 m²
XVIII. kerület, Szemeretelep
Eladó családi ház

Budapest, XVIII. kerület

140 M Ft
2 szoba
118 m²
II. kerület
Eladó családi ház

Budapest, II. kerület

149.9 M Ft
3 szoba
90 m²
XIII. kerület
Eladó téglalakás

Budapest, XIII. kerület

94.749 M Ft
2 szoba
57 m²
VI. kerület, Külső Terézváros, Rózsa utca 82
Eladó téglalakás

Budapest, VI. kerület

85.92 M Ft
2 szoba
48 m²
XI. kerület
Eladó téglalakás

Budapest, XI. kerület

265 M Ft
3 + 1 szoba
110 m²
XI. kerület, Gellérthegy
Eladó téglalakás

Budapest, XI. kerület

220 M Ft
2 + 1 szoba
76 m²
XI. kerület, Madárhegy
Eladó téglalakás

Budapest, XI. kerület

239 M Ft
3 szoba
85 m²
XI. kerület, Péterhegy
Eladó téglalakás

Budapest, XI. kerület

151 M Ft
3 szoba
74 m²
XVII. kerület
Eladó családi ház

Budapest, XVII. kerület

179 M Ft
5 szoba
150 m²
XI. kerület, Péterhegy
Eladó téglalakás

Budapest, XI. kerület

96.925 M Ft
3 szoba
64 m²
II. kerület
Eladó téglalakás

Budapest, II. kerület

275 M Ft
4 szoba
97 m²
VIII. kerület
Eladó téglalakás

Budapest, VIII. kerület

109.9 M Ft
2 + 1 szoba
64 m²
XVIII. kerület, Liptáktelep
Eladó téglalakás

Budapest, XVIII. kerület

97.5 M Ft
3 szoba
72 m²
XI. kerület, Péterhegy
Eladó téglalakás

Budapest, XI. kerület

110.212 M Ft
3 szoba
71 m²
XI. kerület, Madárhegy
Eladó téglalakás

Budapest, XI. kerület

259 M Ft
5 szoba
133 m²
XIV. kerület, Herminamező
Eladó iroda

Budapest, XIV. kerület

480 M Ft
7 szoba
250 m²
XI. kerület, Madárhegy
Eladó téglalakás

Budapest, XI. kerület

270 M Ft
4 szoba
133 m²
XI. kerület, Péterhegy
Eladó téglalakás

Budapest, XI. kerület

112.581 M Ft
3 szoba
74 m²
XI. kerület, Madárhegy
Eladó téglalakás

Budapest, XI. kerület

340 M Ft
5 szoba
186 m²

Falusi CSOK ingatlanok

Bakonybél
Eladó családi ház

Bakonybél

84.9 M Ft
5 szoba
211 m²
Vásárosdombó
Eladó családi ház

Vásárosdombó

14.99 M Ft
2 szoba
69 m²
Tápiógyörgye
Eladó családi ház

Tápiógyörgye

29.49 M Ft
2 szoba
60 m²
Balatonszemes
Eladó téglalakás

Balatonszemes

91.5 M Ft
2 szoba
60 m²
Csemő
Eladó családi ház

Csemő

61.9 M Ft
3 szoba
88 m²
Jakabszállás
Eladó családi ház

Jakabszállás

105 M Ft
6 szoba
180 m²
Darnózseli
Eladó családi ház

Darnózseli

69.9 M Ft
4 szoba
104 m²
Somogygeszti
Eladó családi ház

Somogygeszti

10.9 M Ft
2 szoba
115 m²