Pesti Házak

Eladó téglalakás
Budapest, XI. kerület, Albertfalva, 2. emelet

+ 4 kép 1/7
84 900 000 Ft84.9 M Ft 1 768 750 Ft/m2
2 szoba
48 m2
2. emelet
építés éve:2006

Részletes adatok

Fűtés: Házközponti egyedi méréssel
Extrák: Lift
Energetikai besorolás: Nem adta meg a hirdető
Zenga Premier

Friss hirdetések, amiket nem találsz meg más ingatlankereső portálon.

Fedezd fel elsőként a Zenga Premier címkés eladó ingatlanokat!

További részletek a zenga.hu-n

Az OTP Bank lakáshitel ajánlataFizetett hirdetés

+36 30 250
Nyegrutz Tibor
referens

Érdekel az OTP Bank kedvezményes lakáshitel ajánlata? *

* A kérdésre „Igen” válasz bejelölése esetén, az „Üzenet küldése” gombra kattintva kijelentem, hogy az OTP Bank Nyrt. Adatkezelési tájékoztatójának tartalmát megismertem és tudomásul vettem.

Eladó téglalakás leírása

CSAK AZ IRODÁNK KÍNÁLATÁBAN !

A XI. kerület Csurgói úton a TÖLGYES LAKÓPARKBAN, egy 2 szobás, amerikai konyhás, 2 emeleti lakást 13 m2-es fedett erkéllyel kínálunk megvételre.

A lakás jó állapotú, modern, praktikusan berendezhető és mindkét szobából kiléphetünk a zöldövezeti kilátást adó nagy erkélyre.

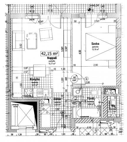
A lakás helyiségei:
Az előtér 3 m2, nappali amerikai konyhával 16,8 m2, hálószoba 13 m2, fürdőszoba + WC 4 m2, terasz 13 m2.

A helyiségek elrendezését, méreteit lásd az ALAPRAJZON !

A lakópark zárt, biztonsági szolgálat által őrzött terület.
A lakás kulturált zárt lépcsőházból, lifttel is megközelíthető.
A közös költség 20.000 Ft /hó.

Az ingatlan, TEHERMENTES, egy tulajdonostól eladó!

KIVÁLÓ AJÁNLAT lehet azoknak, akik biztonságos, zöldövezeti, nyugodt otthont keresnek.

Az ingatlan tömegközlekedése NAGYON JÓ !
Tétényi út és a Fehérvári út közelsége miatt, busszal, villamossal könnyen megközelíthető. A parkolás közterületen ingyenes.
A közelben minden megtalálható, óvoda, iskola, orvosi rendelő, parkok, játszóterek és bevásárlási lehetőségek.

Hiteligénylés miatt kezdeményezheti díjmentesen a kapcsolatfelvételt hitelszakértő munkatársunkkal.

Az Ingatlan megtekintése ELŐRE EGYEZTETETT IDŐPONTBAN
lehetséges.
Amennyiben felkeltette érdeklődését, további kérdéseivel VÁROM JELENTKEZÉSÉT !
(G.I.) ...TOVÁBBI, TÖBBEZRES INGATLAN KÍNÁLAT: www.gdn-ingatlan.hu - GDN azonosító: 389212

Hirdetés feltöltve: 2025. 11. 04. Utoljára módosítva: 2025. 11. 04.

2 szobás téglalakások ára Budapesten

Ebből az összehasonlításból megtudhatod, hogyan viszonyul a lakás ára a környékbeli téglalakások átlagos árához. Ez nem azt jelenti, hogy ennyivel olcsóbb vagy drágább, mint amennyit a lakás ér, hanem hogy ennyivel tér el a környékbeli átlagtól.

Ennek a m² ára
Albertfalva m² ár
XI. kerület m² ár
Budapest m² ár
1769 e Ft
1324 e Ft -34%
1996 e Ft 11%
1680 e Ft -5%
Ennek az ára
Albertfalva átlagár
XI. kerület átlagár
Budapest átlagár
84.9 M Ft m Ft
69.9 m Ft -22%
96.4 m Ft 12%
91 m Ft 7%

Az ingatlan elhelyezkedése

Cím: Budapest, XI. kerület, Albertfalva, 2. emelet

Eladó ingatlanok a környékről

Eladó téglalakás
Eladó téglalakás

XI. kerület, Madárhegy

251 M Ft
4 szoba
91 m2
Eladó téglalakás
Eladó téglalakás

XI. kerület, Hosszúréti utca környékén lévő utca

275 M Ft
4 szoba
146 m2
Eladó téglalakás
Eladó téglalakás

III. kerület

137.1 M Ft
3 szoba
85 m2
Eladó téglalakás
Eladó téglalakás

XI. kerület

86.625 M Ft
2 szoba
50 m2
Eladó téglalakás
Eladó téglalakás

XI. kerület, Sasad, Beregszász út

74.9 M Ft
1 szoba
29 m2
Eladó családi ház
Eladó családi ház

XX. kerület

67.5 M Ft
2 szoba
50 m2
Eladó téglalakás
Eladó téglalakás

XI. kerület, Madárhegy

237 M Ft
3 szoba
85 m2
Eladó panellakás
Eladó panellakás

III. kerület

100 M Ft
2 + 1 szoba
73 m2
Eladó téglalakás
Eladó téglalakás

XI. kerület, Spanyolrét

239.9 M Ft
5 szoba
139 m2
Eladó téglalakás
Eladó téglalakás

XI. kerület, Péterhegy

151 M Ft
3 szoba
74 m2
Eladó téglalakás
Eladó téglalakás

XI. kerület, Madárhegy

240 M Ft
4 szoba
133 m2
Eladó téglalakás
Eladó téglalakás

XIII. kerület, Vizafogó

88.49 M Ft
2 + 1 szoba
61 m2
Eladó téglalakás
Eladó téglalakás

XI. kerület, Madárhegy

340 M Ft
5 szoba
186 m2
Eladó téglalakás
Eladó téglalakás

XI. kerület, Gellérthegy

220 M Ft
2 + 1 szoba
76 m2
Eladó téglalakás
Eladó téglalakás

XI. kerület

83.401 M Ft
2 szoba
51 m2
Eladó téglalakás
Eladó téglalakás

XI. kerület, Hosszúrét, Beléndek utca

168 M Ft
4 szoba
103 m2
Eladó téglalakás
Eladó téglalakás

II. kerület

74.9 M Ft
1 szoba
32 m2
Eladó téglalakás
Eladó téglalakás

XI. kerület, Rupphegyi út

281.312 M Ft
5 szoba
132 m2
Eladó téglalakás
Eladó téglalakás

XI. kerület, Madárhegy

259 M Ft
5 szoba
133 m2
Eladó téglalakás
Eladó téglalakás

XI. kerület, Madárhegy

275 M Ft
4 + 1 szoba
146 m2
Eladó téglalakás
Eladó téglalakás

VIII. kerület

62 M Ft
1 szoba
48 m2
Eladó téglalakás
Eladó téglalakás

VII. kerület, Külső Erzsébetváros, Dembinszky

40.9 M Ft
2 + 1 szoba
41 m2
Eladó téglalakás
Eladó téglalakás

VII. kerület

64.9 M Ft
2 szoba
48 m2
Eladó téglalakás
Eladó téglalakás

I. kerület

199 M Ft
3 szoba
95 m2

Falusi CSOK ingatlanok

Eladó családi ház
Eladó családi ház

Bugac

170 M Ft
187 m2
Eladó családi ház
Eladó családi ház

Szabadbattyán

30 M Ft
4 szoba
75 m2
Eladó családi ház
Eladó családi ház

Csanytelek

39.9 M Ft
3 + 1 szoba
131 m2
Eladó családi ház
Eladó családi ház

Ceglédbercel

104.9 M Ft
3 szoba
150 m2
Eladó családi ház
Eladó családi ház

Gönyű

111.951 M Ft
4 szoba
105 m2
Eladó családi ház
Eladó családi ház

Ságvár

59.9 M Ft
3 szoba
87 m2
Eladó családi ház
Eladó családi ház

Akasztó, Béke

27 M Ft
3 szoba
100 m2
Eladó családi ház
Eladó családi ház

Sellye

43 M Ft
5 szoba
150 m2