Eladó téglalakás
Budapest, XI. kerület, 1. emelet
Részletes adatok
Az OTP Bank lakáshitel ajánlataFizetett hirdetés
Induló törlesztőrészlet
101 262 Ft /hóTörlesztőrészlet a 13. hónaptól
129 106 Ft /hóInduló törlesztőrészlet
135 016 Ft /hóTörlesztőrészlet a 13. hónaptól
172 142 Ft /hóA tájékoztatás nem teljes körű és nem minősül ajánlattételnek. Az OTP Évnyerő Lakáshitelei 1 éves türelmi idős kölcsönök, amellyel az első 12 hónapban alacsonyabb a havi törlesztőrészlet. A tőke törlesztését a 13. hónaptól kell megkezdeni.
Eladó téglalakás leírása
Ingatlanálom Sasad Legjobb Részén, Napfényes Otthon Családoknak, Zöldövezet és Nyugalom!
Békés Zöldövezeti Családi Fészek:
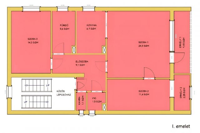
Napfényes Életérzés: Első emeleti, 77 nm-es, DNy-i fekvésű lakás, amely egész nap fényárban úszik. Az ablakok és a tágas 11,7 nm-es erkély (részben beépítve: 2,25 nm) kizárólag a környező, gondozott kertekre néznek, garantált a nyugalom és a szép kilátás.
Ideális Elrendezés: 2 szoba, 1 félszoba, gardrób, konyha, kamra, fürdőszoba és külön WC tökéletes elosztás kis- és nagycsaládok számára egyaránt.
Intimitás és Kényelem: Egy mindössze három lakásos, szintenként egy-egy lakásos társasház középső szintjén található, közös lépcsőházból megközelítve.
Kiváló Állapot és Alacsony Rezsi:
Rendszeresen Karbantartott Ház: Aggodalommentes lakhatás! A ház kívülről 2018-ban teljes körű felújításon és szigetelésen esett át, a tetőszigetelés 2021-ben megújult, a kertben 2025-ben automata öntözőrendszer került kialakításra.
Tiszta, Alacsony Költségek: A rendszeres felújításoknak, karbantartásoknak köszönhetően a rezsi rendkívül alacsony és fogyasztás alapú.
Komfortos Parkolás és Tárolás (Kötelezően megvásárolandó, nem részei hirdetési árnak):
Praktikus Kiegészítők: a földszinten található, kényelmes, 13,4 nm-es garázs, egy extra, 7,7 nm-es tároló és egy saját gépkocsibeálló hely az udvarban.
Elhelyezkedés, minden, ami fontos karnyújtásnyira:
Zöldövezet, de Központi: A kerület központi része mindössze 10 perc séta!
Kiváló Infrastruktúra Családoknak: Óvoda, bölcsőde és iskola 10 perc sétára érhető el, a bevásárlási lehetőségek 10-12 perc séta távolságban.
Gyors Elérés: A buszjáratok 7 perc sétára, a Kelenföldi metrómegálló gyorsan elérhető. Az M1/M7 autópályák 5 perc alatt megközelíthetők.
Ez az Otthon Önnek Szól, Ha:
Csendes, nyugodt, tiszta zöldövezeti környezetre vágyik.
Fontos a napfény, a jó elrendezés és a gondozott ház.
Értékeli a kiváló infrastruktúrát és az alacsony rezsit.
Ne hagyja ki Sasad egyik legjobb ajánlatát! Hívjon még ma a részletekért és a megtekintésért!
Antal Enikő
+36/20-371-2105
Hirdetés feltöltve: 2025. 10. 21. Utoljára módosítva: 2025. 10. 21.
3 szobás téglalakások ára Budapesten
Ebből az összehasonlításból megtudhatod, hogyan viszonyul a lakás ára a környékbeli téglalakások átlagos árához. Ez nem azt jelenti, hogy ennyivel olcsóbb vagy drágább, mint amennyit a lakás ér, hanem hogy ennyivel tér el a környékbeli átlagtól.
Az ingatlan elhelyezkedése
Cím: Budapest, XI. kerület, 1. emelet
Eladó ingatlanok a környékről
