Eladó téglalakás
Budapest, VIII. kerület, Józsefváros, Teleki László tér 3, földszint
Részletes adatok
Az OTP Bank lakáshitel ajánlataFizetett hirdetés
Induló törlesztőrészlet
101 262 Ft /hóTörlesztőrészlet a 13. hónaptól
129 106 Ft /hóInduló törlesztőrészlet
135 016 Ft /hóTörlesztőrészlet a 13. hónaptól
172 142 Ft /hóA tájékoztatás nem teljes körű és nem minősül ajánlattételnek. Az OTP Évnyerő Lakáshitelei 1 éves türelmi idős kölcsönök, amellyel az első 12 hónapban alacsonyabb a havi törlesztőrészlet. A tőke törlesztését a 13. hónaptól kell megkezdeni.
Eladó téglalakás leírása
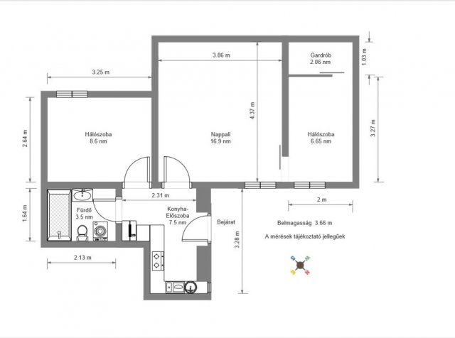
VIII. kerületben, a Teleki László téren, jó állapotban lévő, századfordulós társasházban eladó egy 45 m²-es, nappali + 2 különnyíló hálószobás lakás. Az ingatlan belső udvarra néz, így csendes, nyugodt környezetet biztosít, miközben közvetlenül a piac és a kiváló közlekedési lehetőségek szomszédságában található.
A lakás praktikus elosztású: a 16,9 m²-es nappali tágas, mellette két külön nyíló hálószoba található, amely akár párok, akár kisebb család számára ideális megoldást jelent. A konyha ablakos, a fürdőszoba kádas kialakítású, mosógépnek is van hely. A belmagasság 3,66 m, így galéria kialakítása is lehetséges. A lakásban gázkonvektoros fűtés működik.
Az ingatlan műszakilag rendben van: a víz- és elektromos hálózat megfelelő állapotú. Az ablakok régiek, de jól zárnak. A lakás jelenlegi állapotában is lakható, de igény esetén kisebb esztétikai frissítést, korszerűsítést is igényelhet.
A rezsi kedvező: közös költség 15.170 Ft/hó, a gáz téli hónapokban 15–20.000 Ft között alakul, a víz és villany fogyasztás alapján fizetendő. Az összes havi rezsi nem haladja meg a 40–50.000 Ft-ot.
A lokáció kiváló: a kapun kilépve szemben található a Teleki téri piac és egy Lidl, a közelben villamosmegállók, ahonnan a Blaha Lujza tér, a 4-6-os villamosok és az M2, M3 metróvonalak is percek alatt elérhetők.
Az ingatlan ideális választás befektetőknek, akár szobánkénti bérbeadásra, de fiatal párok és diákok számára is vonzó, akik a központi, mégis csendes lakóhelyet keresik.
További információért és megtekintésért hívjon bizalommal, akár hétvégén is.
Hirdetés feltöltve: 2025. 10. 21.
3 szobás téglalakások ára Budapesten
Ebből az összehasonlításból megtudhatod, hogyan viszonyul a lakás ára a környékbeli téglalakások átlagos árához. Ez nem azt jelenti, hogy ennyivel olcsóbb vagy drágább, mint amennyit a lakás ér, hanem hogy ennyivel tér el a környékbeli átlagtól.
Az ingatlan elhelyezkedése
Cím: Budapest, VIII. kerület, Józsefváros, Teleki László tér 3, földszint
Eladó ingatlanok a környékről

XVIII. kerület, Miklóstelep, Balassa Bálint utca 2-10
