Eladó téglalakás
Budapest, X. kerület, 1. emelet

+ 16 kép 1/19
43 000 000 Ft43 M Ft 1 102 564 Ft/m2
1 szoba
39 m2
1. emelet
építés éve:1950

Részletes adatok

Állapot: Átlagos
Fűtés: Egyéb
Energetikai besorolás: Nem adta meg a hirdető

Az OTP Bank lakáshitel ajánlataFizetett hirdetés

+36 20 546
Vén Ramóna Nikoletta
referens

Érdekel az OTP Bank kedvezményes lakáshitel ajánlata? *

* A kérdésre „Igen” válasz bejelölése esetén, az „Üzenet küldése” gombra kattintva kijelentem, hogy az OTP Bank Nyrt. Adatkezelési tájékoztatójának tartalmát megismertem és tudomásul vettem.

Eladó téglalakás leírása

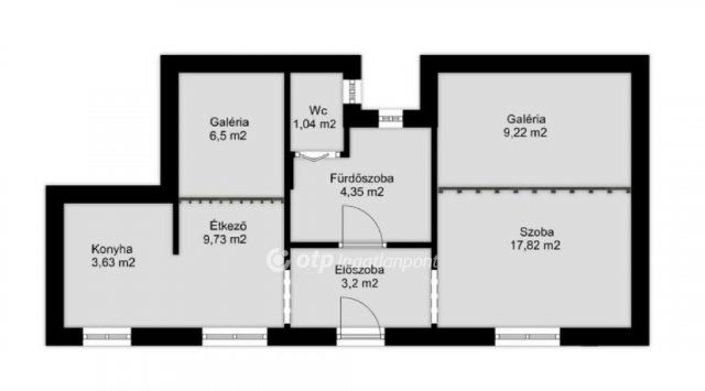
Eladó Budapest 10. kerületében a Mázsa tér közelében egy 39 m2-es galériás lakás!!!

A lakás az első emeleten helyezkedik el, belmagassága 3,6 m . Két felvőgaléria került kialakításra aminek a belmagassága 1,4 m .
Fűtését mika kazán biztosítja , két vízórája és egy gázórája van a lakásnak.
2020 ban teljes körűen felújították a lakást, műanyag nyílászárók, mika gázkazán, radiátorok, villanybojler , konyhabútor, gáztűzhely, új burkolatokkal, galéria, víz- villany- gáz vezetékek cseréje megtörtént.

A ház 2 emeletes, körfolyósóval belső udvarral.
Közös ktg. 25000Ft
Parkolás közterületen ingyenes

Kőbánya alsó vasútállomás 8 perc sétára található 28, 62 villamos, 75,73 troli, 9,99,95,117,151,162 buszok megtalálhatóak.
5 perc alatt elérhető a 3 villamos, a közelben boltok ,iskola , orvos is megtalálható

Megtekintéssel kapcsolatban vagy információért keressen bizalommal a hét bármely napján!

Hirdetés feltöltve: 2025. 10. 14. Utoljára módosítva: 2025. 10. 14.

1 szobás téglalakások ára Budapesten

Ebből az összehasonlításból megtudhatod, hogyan viszonyul a lakás ára a környékbeli téglalakások átlagos árához. Ez nem azt jelenti, hogy ennyivel olcsóbb vagy drágább, mint amennyit a lakás ér, hanem hogy ennyivel tér el a környékbeli átlagtól.

Ennek a m² ára
X. kerület m² ár
Budapest m² ár
1103 e Ft
1174 e Ft 6%
1703 e Ft 35%
Ennek az ára
X. kerület átlagár
Budapest átlagár
43 M Ft m Ft
37.1 m Ft -16%
58.6 m Ft 27%

Az ingatlan elhelyezkedése

Cím: Budapest, X. kerület, 1. emelet

Eladó ingatlanok a környékről

Eladó téglalakás
Eladó téglalakás

XIV. kerület, Istvánmező

82.5 M Ft
2 szoba
55 m2
Eladó téglalakás
Eladó téglalakás

X. kerület, Felsőrákos, Gyógyszergyári út 6-12

97.078 M Ft
4 szoba
77 m2
Eladó panellakás
Eladó panellakás

XXI. kerület

73.9 M Ft
3 szoba
71 m2
Eladó téglalakás
Eladó téglalakás

XX. kerület

62.9 M Ft
1 szoba
39 m2
Eladó téglalakás
Eladó téglalakás

X. kerület, Felsőrákos, Gyógyszergyári út 6-12

79.9 M Ft
2 szoba
82 m2
Eladó téglalakás
Eladó téglalakás

XIX. kerület, Kispest

109.6 M Ft
3 szoba
97 m2
Eladó téglalakás
Eladó téglalakás

X. kerület

65 M Ft
3 szoba
75 m2
Eladó ikerház
Eladó ikerház

II. kerület, Budaliget

249 M Ft
5 szoba
148 m2
Eladó téglalakás
Eladó téglalakás

X. kerület, Óhegy, Sibrik Miklós út

105 M Ft
2 szoba
108 m2
Eladó téglalakás
Eladó téglalakás

X. kerület, Felsőrákos, Gyógyszergyári út 6-12

103.543 M Ft
4 szoba
83 m2
Eladó családi ház
Eladó családi ház

XXI. kerület

31.9 M Ft
1 szoba
70 m2
Eladó családi ház
Eladó családi ház

XXI. kerület, Királyerdő

280 M Ft
4 + 1 szoba
240 m2
Eladó téglalakás
Eladó téglalakás

X. kerület

89.5 M Ft
2 szoba
95 m2
Eladó téglalakás
Eladó téglalakás

X. kerület, Óhegy

89.5 M Ft
2 szoba
95 m2
Eladó téglalakás
Eladó téglalakás

X. kerület, Felsőrákos, Gyógyszergyári út 6-12

65 M Ft
2 szoba
51 m2
Eladó téglalakás
Eladó téglalakás

II. kerület, Rézmál

155 M Ft
3 szoba
67 m2
Eladó téglalakás
Eladó téglalakás

X. kerület, Felsőrákos, Gyógyszergyári út 6-12

69.9 M Ft
3 szoba
66 m2
Eladó téglalakás
Eladó téglalakás

X. kerület, Felsőrákos, Gyógyszergyári út 6-12

71 M Ft
3 szoba
62 m2
Eladó családi ház
Eladó családi ház

XXII. kerület, Baross Gábor telep

149 M Ft
5 szoba
136 m2
Eladó téglalakás
Eladó téglalakás

VII. kerület

79.9 M Ft
1 szoba
34 m2
Eladó családi ház
Eladó családi ház

III. kerület, Csillaghegy

299.9 M Ft
5 szoba
210 m2
Eladó panellakás
Eladó panellakás

XX. kerület

80 M Ft
3 szoba
70 m2
Eladó téglalakás
Eladó téglalakás

IX. kerület

99.9 M Ft
3 + 1 szoba
69 m2
Eladó téglalakás
Eladó téglalakás

X. kerület, Felsőrákos, Gyógyszergyári út 6-12

106.085 M Ft
4 szoba
86 m2

Falusi CSOK ingatlanok

Eladó családi ház
Eladó családi ház

Bükkzsérc

42.5 M Ft
4 szoba
240 m2
Eladó családi ház
Eladó családi ház

Tök

125.4 M Ft
4 szoba
135 m2
Eladó családi ház
Eladó családi ház

Zsámbok

33 M Ft
2 szoba
80 m2
Eladó családi ház
Eladó családi ház

Sajószöged, Vasút út

19.9 M Ft
2 szoba
61 m2
Eladó családi ház
Eladó családi ház

Galgahévíz

49 M Ft
3 + 1 szoba
108 m2
Eladó családi ház
Eladó családi ház

Tápiószőlős

34 M Ft
1 + 2 szoba
85 m2
Eladó családi ház
Eladó családi ház

Szirmabesenyő

85 M Ft
2 szoba
128 m2
Eladó családi ház
Eladó családi ház

Hercegszántó, Kossuth Lajos utca

10.9 M Ft
3 szoba
100 m2