Metrodom

Eladó téglalakás
Budapest, VIII. kerület, 3. emelet

+ 17 kép 1/20
108 500 000 Ft108.5 M Ft 1 023 585 Ft/m2
3 + 1 szoba
106 m²
3. emelet
építés éve:1900

Részletes adatok

Állapot: Felújított
Fűtés: Gázkazán
Emelet: 3. emelet
Energetikai besorolás: Nem adta meg a hirdető

Az OTP Bank lakáshitel ajánlataFizetett hirdetés

+36 30 426
Dr. Jakus Péter
referens

Érdekel az OTP Bank kedvezményes lakáshitel ajánlata? *

* A kérdésre „Igen” válasz bejelölése esetén, az „Üzenet küldése” gombra kattintva kijelentem, hogy az OTP Bank Nyrt. Adatkezelési tájékoztatójának tartalmát megismertem és tudomásul vettem.

Eladó téglalakás leírása

Felújított, világos lakás a Corvin negyedben, 2 lakás egyben, Otthon Start támogatásra is alkalmas!

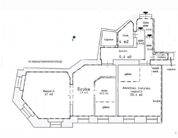
Budapest VIII. kerületében, a közkedvelt Corvin negyedben, a József körúton kínálunk megvételre egy 106 m²-es, 3+1 félszobás, felújított, világos, 3. emeleti lakást. Az ingatlan különlegessége, hogy jelenlegi kialakításának köszönhetően egyben és két külön lakásként is használható.

Egy közös bejáratról, de egymástól jól szeparálva található benne egy 35 m²-es garzon konyhával és fürdőszobával, valamint egy 71 m²-es, háromszobás lakás. Ez az elrendezés ideális lehet két generáció együttélésére, lakás-iroda kombinációra, de befektetési célra is kifejezetten előnyös, hiszen a két lakrész külön-külön vagy egyben is bérbe adható.

Az ingatlan 2024-ig több ütemben felújításon esett át, amely érintette a villany- és vízvezetékek cseréjét, a burkolatokat, a fűtés korszerűsítését, a konyhát, a szanitereket és a nyílászárókat is. Legutóbb kondenzációs kazán került beépítésre, amely modern és energiatakarékos fűtést biztosít. A lakás rendkívül világos, körbenapozott, hang- és hőszigetelt műanyag nyílászárókkal rendelkezik, a József körútra néző ablakok ellenére is kellemes komfortérzetet biztosítva. Két helyiségben, körülbelül 1,7 méteres belmagassággal, galéria növeli a hasznos életteret. Az egyedi burkolatok és a hangulatos világítás igényes, otthonos megjelenést kölcsönöznek a lakásnak.

A társasház rendezett, jó állapotú, lakóközössége kulturált. Az ingatlan 1/1 tulajdonban van, tehermentes, rövid időn belül birtokba vehető. A gépek, berendezések és bútorok vételára 10 millió forint, amely kötelezően megvásárolandó.

A kiváló elhelyezkedés és a remek közlekedés miatt az ingatlan befektetésként is kiemelkedő lehetőség, akár két teljesen szeparált lakásként történő hasznosítással. Az Otthon Start Program feltételeinek is megfelel, így kedvezményes finanszírozással is megvásárolható.

Amennyiben felkeltette érdeklődését ez a sokoldalúan hasznosítható, kiváló adottságú ingatlan, várom megtisztelő megkeresését.

Az ingatlanhoz energetikai tanusítvány jelenleg nem áll rendelkezésre, ennek beszerzése folyamatban van.

Referenciaszám: M320627

Az energetikai tanúsítvány készítése folyamatban van, amint rendelkezésre áll, úgy azzal a hirdetés frissítésre kerül.

Referencia szám: M320627

Hirdetés feltöltve: 2026. 02. 17. Utoljára módosítva: 2026. 05. 10.

4 szobás téglalakások ára Budapesten

Ebből az összehasonlításból megtudhatod, hogyan viszonyul a lakás ára a környékbeli téglalakások átlagos árához. Ez nem azt jelenti, hogy ennyivel olcsóbb vagy drágább, mint amennyit a lakás ér, hanem hogy ennyivel tér el a környékbeli átlagtól.

Ennek a m² ára
VIII. kerület m² ár
Budapest m² ár
1024 e Ft
1339 e Ft 24%
1738 e Ft 41%
Ennek az ára
VIII. kerület átlagár
Budapest átlagár
108.5 M Ft m Ft
117.6 m Ft 8%
186.1 m Ft 42%

Az ingatlan elhelyezkedése

Cím: Budapest, VIII. kerület, 3. emelet

Eladó ingatlanok a környékről

VIII. kerület, Józsefváros, Kálvária utca 16
Eladó téglalakás

Budapest, VIII. kerület

67 M Ft
1 + 1 szoba
47 m²
VI. kerület, Külső Terézváros, JÓKAI UTCA 10 3/19
Eladó téglalakás

Budapest, VI. kerület

100 M Ft
2 szoba
50 m²
II. kerület
Eladó téglalakás

Budapest, II. kerület

139 M Ft
2 szoba
72 m²
VIII. kerület
Eladó téglalakás

Budapest, VIII. kerület

69.9 M Ft
3 szoba
84 m²
VI. kerület
Eladó téglalakás

Budapest, VI. kerület

140 M Ft
3 szoba
70 m²
VIII. kerület, Józsefváros, 8. Népszínház u
Eladó téglalakás

Budapest, VIII. kerület

79.8 M Ft
3 + 1 szoba
100 m²
XXIII. kerület
Eladó családi ház

Budapest, XXIII. kerület

124.9 M Ft
3 szoba
190 m²
VI. kerület
Eladó téglalakás

Budapest, VI. kerület

172 M Ft
3 + 1 szoba
87 m²
XII. kerület
Eladó téglalakás

Budapest, XII. kerület

51.99 M Ft
1 szoba
28 m²
VI. kerület
Eladó téglalakás

Budapest, VI. kerület

160 M Ft
3 szoba
91 m²
VIII. kerület
Eladó téglalakás

Budapest, VIII. kerület

144 M Ft
4 szoba
101 m²
VIII. kerület, Palotanegyed, Békési utca
Eladó téglalakás

Budapest, VIII. kerület

44.7 M Ft
2 szoba
42 m²
III. kerület, Mocsárosdűlő, III. kerület - HARSÁNYLEJTŐ
Eladó ikerház

Budapest, III. kerület

545 M Ft
5 szoba
263 m²
VIII. kerület, Józsefváros, Kálvária utca 16
Eladó téglalakás

Budapest, VIII. kerület

79.9 M Ft
2 + 1 szoba
63 m²
VIII. kerület, Józsefváros, Kálvária utca 16
Eladó téglalakás

Budapest, VIII. kerület

109.9 M Ft
4 szoba
79 m²
II. kerület
Eladó téglalakás

Budapest, II. kerület

72 M Ft
1 szoba
33 m²
VIII. kerület, Józsefváros, Nagy Fuvaros utca 27
Eladó téglalakás

Budapest, VIII. kerület

129.8 M Ft
4 szoba
172 m²
VIII. kerület, Józsefváros, Budapest VIII., Corvin sétány
Eladó téglalakás

Budapest, VIII. kerület

74.9 M Ft
1 szoba
34 m²
VIII. kerület
Eladó téglalakás

Budapest, VIII. kerület

111 M Ft
4 szoba
80 m²
VIII. kerület
Eladó téglalakás

Budapest, VIII. kerület

199 M Ft
1 szoba
859 m²
IV. kerület, Újpest, Rév utca 1
Eladó telek

Budapest, IV. kerület

1.651 M Ft
4324 m²
0 m²
X. kerület
Eladó téglalakás

Budapest, X. kerület

61.9 M Ft
1 + 1 szoba
54 m²
VIII. kerület, Palotanegyed, Békési utca
Eladó téglalakás

Budapest, VIII. kerület

38.8 M Ft
1 szoba
33 m²
VIII. kerület
Eladó téglalakás

Budapest, VIII. kerület

69.5 M Ft
2 szoba
47 m²

Falusi CSOK ingatlanok

Sződ
Eladó családi ház

Sződ

116 M Ft
5 szoba
136 m²
Zsámbok
Eladó családi ház

Zsámbok

54.85 M Ft
3 szoba
120 m²
Kemecse
Eladó családi ház

Kemecse

25 M Ft
4 szoba
93 m²
Fertőd
Eladó családi ház

Fertőd

140.91 M Ft
4 + 2 szoba
190 m²
Ostffyasszonyfa
Eladó családi ház

Ostffyasszonyfa

37.9 M Ft
5 szoba
494 m²
Törtel
Eladó családi ház

Törtel

32 M Ft
2 szoba
67 m²
Hegyeshalom, Margaréta utca 12
Eladó téglalakás

Hegyeshalom

35.92 M Ft
1 szoba
31 m²
Balatonszepezd
Eladó családi ház

Balatonszepezd

299 M Ft
5 szoba
220 m²