Aerogate Homes

Eladó téglalakás
Budapest, VIII. kerület, 3. emelet

+ 11 kép 1/14
87 900 000 Ft87.9 M Ft 1 758 000 Ft/m2
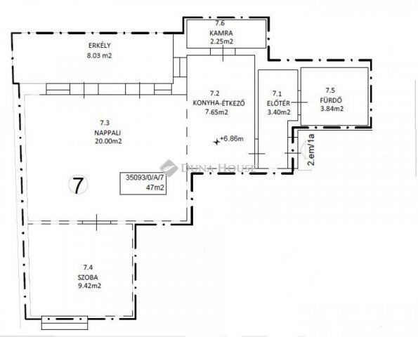
2 szoba
50 m²
3. emelet
építés éve:2024

Részletes adatok

Fűtés: Egyéb
Emelet: 3. emelet
Extrák: Lift
Energetikai besorolás: Nem adta meg a hirdető

Az OTP Bank lakáshitel ajánlataFizetett hirdetés

+36 1 690
Szabó-Lévai Annamária
Duna House Kispest

Érdekel az OTP Bank kedvezményes lakáshitel ajánlata? *

* A kérdésre „Igen” válasz bejelölése esetén, az „Üzenet küldése” gombra kattintva kijelentem, hogy az OTP Bank Nyrt. Adatkezelési tájékoztatójának tartalmát megismertem és tudomásul vettem.

Eladó téglalakás leírása

ÖLTÖZHETŐ minőségi, A++-os, újépítésű otthonok a nyüzsgő belvárosban, a Corvin sétánynál, csendes, kis forgalmú utcában!

Magas technikai színvonalú, igényes, új építésű lakásokat kínálunk Budapest belvárosában, központi elhelyezkedésű, kiváló közlekedéssel rendelkező környéken. A projekt a 8. kerület folyamatosan megújuló, dinamikus értéknövekedésű részén, a közelmúltban felújított Mátyás tér, a II. János Pál pápa tér és a Teleki tér közelében helyezkedik el. A ház közvetlen környezetében óvodák és iskolák, üzletek, éttermek, kávézók, és orvosi rendelő is megtalálható. A magas színvonalú, modern - japán technológiás energiatakarékos hőszivattyús fűtés- és hűtésrendszerrel, valamint igényes gépészettel felszerelt lakások minden mai elvárásnak megfelelnek, kiemelkedően alacsony a rezsiköltség.
A garázs hidraulikus emelő segítségével kétszintű parkolási lehetőséget kínál az autók számára,
Az épületet modern, letisztult, időtálló design gondolatisággal tervezték meg, az alaprajzok élhető, átgondolt tereket láttatnak az érdeklődőknek.
Az épület AA+-os energetikai besorolást kapott, ami biztosítéka egy tervezhető, alacsony rezsi megvalósulásának. Az ingatlan hőenergia termelését levegő-víz hőszivattyúk biztosítják, lakásonként önálló hőmennyiség mérővel, mennyezet hűtés-fűtésrendszer lett kiépítve, a fürdőkben és a mellékhelységekben padlófűtéssel kiegészítve, távszabályozási-felügyeleti lehetőséggel (opcionális).
A társasház tágas lifttel rendelkezik, a garázsban hidraulikus emelő segítségével kétszintű parkolási lehetőséget kínálnak az autók számára.
Ha szeretné biztosítani magának itt jövendő otthonát vagy befektetésként szeretne itt vásárolni, keressen a részletekért!
A lakások műszaki átadása már megtörtént, a használatba vételi engedélyhez minden feltétel adott, nagy valószínűséggel még az idén rendelkezésre áll.
A hat emeleten összesen 37 lakásból már csak 3 lakás elérhető!

Irányár: 87900000 Ft
Érd.: Szabó-Lévai Annamária, +36 70 307 7503

Referencia szám: PR096835/LK/12862-ZE

Hirdetés feltöltve: 2025. 12. 06. Utoljára módosítva: 2026. 05. 10.

2 szobás téglalakások ára Budapesten

Ebből az összehasonlításból megtudhatod, hogyan viszonyul a lakás ára a környékbeli téglalakások átlagos árához. Ez nem azt jelenti, hogy ennyivel olcsóbb vagy drágább, mint amennyit a lakás ér, hanem hogy ennyivel tér el a környékbeli átlagtól.

Ennek a m² ára
VIII. kerület m² ár
Budapest m² ár
1758 e Ft
1449 e Ft -21%
1690 e Ft -4%
Ennek az ára
VIII. kerület átlagár
Budapest átlagár
87.9 M Ft m Ft
73.4 m Ft -20%
88.7 m Ft 1%

Az ingatlan elhelyezkedése

Cím: Budapest, VIII. kerület, 3. emelet

Eladó ingatlanok a környékről

VII. kerület, Belső Erzsébetváros, Akácfa utca
Eladó téglalakás

Budapest, VII. kerület

57.9 M Ft
1 szoba
27 m²
VII. kerület, Belső Erzsébetváros, Akácfa utca
Eladó téglalakás

Budapest, VII. kerület

36.9 M Ft
1 szoba
21 m²
VIII. kerület, Palotanegyed, Békési utca
Eladó téglalakás

Budapest, VIII. kerület

44.7 M Ft
2 szoba
42 m²
VIII. kerület
Eladó téglalakás

Budapest, VIII. kerület

67 M Ft
2 szoba
47 m²
VIII. kerület
Eladó téglalakás

Budapest, VIII. kerület

199 M Ft
20 szoba
859 m²
VIII. kerület
Eladó téglalakás

Budapest, VIII. kerület

199 M Ft
1 szoba
859 m²
VIII. kerület
Eladó téglalakás

Budapest, VIII. kerület

140.152 M Ft
3 szoba
87 m²
VII. kerület, Belső Erzsébetváros, Akácfa utca
Eladó téglalakás

Budapest, VII. kerület

59.9 M Ft
1 szoba
33 m²
VII. kerület, Belső Erzsébetváros, Akácfa utca
Eladó téglalakás

Budapest, VII. kerület

55.9 M Ft
1 szoba
36 m²
VIII. kerület, Józsefváros, Kálvária utca 16
Eladó téglalakás

Budapest, VIII. kerület

79.9 M Ft
2 + 1 szoba
63 m²
VIII. kerület
Eladó téglalakás

Budapest, VIII. kerület

89.9 M Ft
3 szoba
73 m²
VIII. kerület, Józsefváros, Kálvária utca 16
Eladó téglalakás

Budapest, VIII. kerület

109.9 M Ft
4 szoba
79 m²
XII. kerület, Svábhegy, Határőr út
Eladó téglalakás

Budapest, XII. kerület

109 M Ft
2 szoba
48 m²
VIII. kerület, Józsefváros, Kálvária utca 16
Eladó téglalakás

Budapest, VIII. kerület

67 M Ft
1 + 1 szoba
47 m²
X. kerület
Eladó telek

Budapest, X. kerület

550 M Ft
4947 m²
VIII. kerület
Eladó téglalakás

Budapest, VIII. kerület

88.504 M Ft
2 szoba
55 m²
VIII. kerület, Józsefváros, Budapest VIII., Corvin sétány
Eladó téglalakás

Budapest, VIII. kerület

74.9 M Ft
1 szoba
34 m²
XVII. kerület, Rákoskert, Csomafalva utca
Eladó üzlethelyiség

Budapest, XVII. kerület

17.757 M Ft
40 m²
XIII. kerület, Angyalföld, Visegrádi utca
Eladó téglalakás

Budapest, XIII. kerület

165 M Ft
4 szoba
114 m²
XVII. kerület, Rákoscsaba-újtelep, Csomafalva utca
Eladó üzlethelyiség

Budapest, XVII. kerület

96.239 M Ft
169 m²
VIII. kerület
Eladó téglalakás

Budapest, VIII. kerület

61.6 M Ft
1 szoba
80 m²
VIII. kerület, Józsefváros, 8. Népszínház u
Eladó téglalakás

Budapest, VIII. kerület

79.8 M Ft
3 + 1 szoba
100 m²
VIII. kerület, Dobozi utca
Eladó téglalakás

Budapest, VIII. kerület

79.9 M Ft
3 szoba
73 m²
XIV. kerület, Törökőr, Bonyhádi út
Eladó családi ház

Budapest, XIV. kerület

330 M Ft
8 szoba
220 m²

Falusi CSOK ingatlanok

Mesteri
Eladó családi ház

Mesteri

29.7 M Ft
4 szoba
140 m²
Marcalgergelyi
Eladó családi ház

Marcalgergelyi

31 M Ft
2 + 1 szoba
120 m²
Szamosszeg
Eladó családi ház

Szamosszeg

55 M Ft
4 szoba
240 m²
Badacsonytomaj
Eladó családi ház

Badacsonytomaj

285 M Ft
4 szoba
230 m²
Herend
Eladó családi ház

Herend

144.9 M Ft
7 szoba
285 m²
Balatonszemes
Eladó családi ház

Balatonszemes

95 M Ft
4 szoba
82 m²
Balatonkeresztúr, Kanizsai utca
Eladó ikerház

Balatonkeresztúr

32.9 M Ft
3 szoba
30 m²
Fülöpszállás
Eladó családi ház

Fülöpszállás

69.9 M Ft
4 szoba
190 m²