Eladó téglalakás
Budapest, VIII. kerület, 1. emelet
Részletes adatok
Az OTP Bank lakáshitel ajánlataFizetett hirdetés
Induló törlesztőrészlet
101 262 Ft /hóTörlesztőrészlet a 13. hónaptól
129 106 Ft /hóInduló törlesztőrészlet
135 016 Ft /hóTörlesztőrészlet a 13. hónaptól
172 142 Ft /hóA tájékoztatás nem teljes körű és nem minősül ajánlattételnek. Az OTP Évnyerő Lakáshitelei 1 éves türelmi idős kölcsönök, amellyel az első 12 hónapban alacsonyabb a havi törlesztőrészlet. A tőke törlesztését a 13. hónaptól kell megkezdeni.
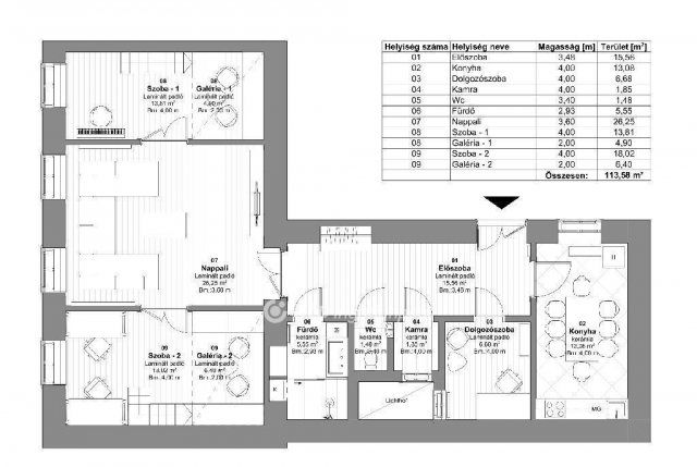
Eladó téglalakás leírása
Belvárosi gyöngyszem – modern otthon és értékálló befektetés egyben
A VII. és VIII. kerület határán, egy csendes mellékutcában kínálunk megvételre egy 113 m²-es, napfényben úszó, első emeleti lakást, amelyet építészcsalád tervei alapján, kompromisszumok nélkül újítottak fel. A letisztult, modern stílus és az egyedi részletmegoldások harmóniája egy olyan otthont teremtett, amely valóban azonnal költözhető és hosszú távon is biztos befektetés.
A lakás teljes körű, dokumentált felújításon esett át: minden közmű, burkolat és nyílászáró megújult. A fűtést gazdaságos kondenzációs gázkazán, a hűtést álmennyezetbe rejtett, WiFi-ről vezérelhető klíma biztosítja. A kedvező rezsiköltségek (átlagosan villany 6.000 Ft, gáz 7.000 Ft, víz 4.000 Ft, közös költség 34.000 Ft) különösen értékesek a belváros szívében.
A vételár tartalmazza a modern, beépített Gorenje konyhagépekkel felszerelt konyhát, valamint az egyedileg tervezett bútorokat, lámpákat és a kanapét – így az új tulajdonosnak valóban csak a személyes tárgyait kell magával hoznia. További berendezési tárgyak is megvásárolhatók megegyezés szerint.
A környék kivételes: pár perc séta az M2 és M4 metró, a 4-6-os villamos, valamint több busz és troli. A Keleti pályaudvar 6 perc alatt elérhető, így a város bármely pontja gyorsan megközelíthető. A II. János Pál Pápa tér közelsége sportolási és kikapcsolódási lehetőséget kínál, míg a környék üzletei, színházai és bevásárlóközpontjai gondoskodnak a mindennapok kényelméről.
A liftes társasház rendezett, zöld belső udvarral rendelkezik, erős közös képviselettel és stabil pénzügyi háttérrel, ami tovább erősíti az ingatlan biztonságos értéknövekedési potenciálját.
Ez a lakás nem pusztán egy tágas és stílusos otthon, hanem egy megbízható, értékálló befektetés is, amely rövid határidővel birtokba vehető.
Amennyiben felkeltette érdeklődését, kérem, keressen bizalommal!
Az adásvételhez igény esetén megbízható ügyvédi és hitelügyintézői támogatást is biztosítunk.
Referenciaszám: M312521
Hirdetés feltöltve: 2025. 10. 03.
4 szobás téglalakások ára Budapesten
Ebből az összehasonlításból megtudhatod, hogyan viszonyul a lakás ára a környékbeli téglalakások átlagos árához. Ez nem azt jelenti, hogy ennyivel olcsóbb vagy drágább, mint amennyit a lakás ér, hanem hogy ennyivel tér el a környékbeli átlagtól.
Az ingatlan elhelyezkedése
Cím: Budapest, VIII. kerület, 1. emelet
Eladó ingatlanok a környékről
