Avico Greentop

Eladó téglalakás
Budapest, VII. kerület, földszint

+ 17 kép 1/20
104 900 000 Ft104.9 M Ft 1 104 211 Ft/m2
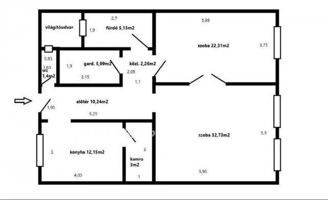
2 szoba
95 m²
földszint
építés éve:1896

Részletes adatok

Állapot: Felújítandó
Fűtés: Gázkonvektor
Emelet: földszint
Extrák: Lift
Energetikai besorolás: Nem adta meg a hirdető

Az OTP Bank lakáshitel ajánlataFizetett hirdetés

+36 30 357
Bödör Dóra
referens

Érdekel az OTP Bank kedvezményes lakáshitel ajánlata? *

* A kérdésre „Igen” válasz bejelölése esetén, az „Üzenet küldése” gombra kattintva kijelentem, hogy az OTP Bank Nyrt. Adatkezelési tájékoztatójának tartalmát megismertem és tudomásul vettem.

Eladó téglalakás leírása

Budapest VII. kerületében, Ligetvárosban 95 m2-es lakás ELADÓ!

A VII. kerület közkedvelt részen, a Damjanich utcában kínálunk eladásra egy magasföldszinti, 95 m2-es lakást.

Az ingatlan egy téglaépítésű, liftes társasház magasföldszintjén helyezkedik el, a ház kívül-belül rendkívül jó állapotú, rendszeresen karbantartott, jó lakóközösséggel és közös képviselettel rendelkezik.
A lakás jelenleg 2 szobás, azonban könnyen 3 szobássá alakítható, ezzel is növelve az életteret. Minden helysége tágas, külön nyíló.
Állapotát tekintve felújításra szorul, új tulajdonosa saját ízlése szerint alakíthatja.
Utcai nézetének és K-i tájolásának köszönhetően kimondottan világos.

Mind saját, mind befektetési céllal jó választás lehet, hiszen a környék kimondottan jó infrastruktúrával rendelkezik. Az utcában több bevásárlási lehetőség, étterem is található.

Pár perc séta távolságon belül több tömeg közlekedni eszköz is elérhető, buszmegálló, troli.
A Városliget is csupán 10 perc sétára található.

Tehermentes, 1/1-es tulajdonjogú.
Rugalmasan megtekinthető.

Kérdés esetén forduljon hozzám bizalommal, a hét bármely napján!

Hirdetés feltöltve: 2026. 04. 03. Utoljára módosítva: 2026. 04. 12.

2 szobás téglalakások ára Budapesten

Ebből az összehasonlításból megtudhatod, hogyan viszonyul a lakás ára a környékbeli téglalakások átlagos árához. Ez nem azt jelenti, hogy ennyivel olcsóbb vagy drágább, mint amennyit a lakás ér, hanem hogy ennyivel tér el a környékbeli átlagtól.

Ennek a m² ára
VII. kerület m² ár
Budapest m² ár
1104 e Ft
1584 e Ft 30%
1688 e Ft 35%
Ennek az ára
VII. kerület átlagár
Budapest átlagár
104.9 M Ft m Ft
81 m Ft -29%
88.9 m Ft -18%

Az ingatlan elhelyezkedése

Cím: Budapest, VII. kerület, földszint

Eladó ingatlanok a környékről

VII. kerület
Eladó téglalakás

Budapest, VII. kerület

83 M Ft
2 szoba
44 m²
VII. kerület
Eladó téglalakás

Budapest, VII. kerület

125 M Ft
4 szoba
118 m²
XIII. kerület, Angyalföld, Dévai utca Lőportár 17
Eladó téglalakás

Budapest, XIII. kerület

71.205 M Ft
1 szoba
32 m²
IX. kerület
Eladó téglalakás

Budapest, IX. kerület

89.9 M Ft
3 szoba
84 m²
XIII. kerület, Angyalföld, Dévai utca Lőportár 17
Eladó téglalakás

Budapest, XIII. kerület

139.405 M Ft
3 szoba
77 m²
VII. kerület
Eladó téglalakás

Budapest, VII. kerület

124 M Ft
3 szoba
69 m²
VII. kerület
Eladó téglalakás

Budapest, VII. kerület

75 M Ft
1 + 2 szoba
60 m²
VII. kerület
Eladó téglalakás

Budapest, VII. kerület

170 M Ft
6 szoba
104 m²
XV. kerület
Eladó családi ház

Budapest, XV. kerület

64.9 M Ft
1 szoba
53 m²
XIII. kerület, Angyalföld, Dévai utca Lőportár 17
Eladó téglalakás

Budapest, XIII. kerület

88.836 M Ft
2 szoba
43 m²
VII. kerület, Belső Erzsébetváros, Dob utca
Eladó téglalakás

Budapest, VII. kerület

212 M Ft
4 szoba
180 m²
VII. kerület
Eladó téglalakás

Budapest, VII. kerület

169 M Ft
3 + 1 szoba
114 m²
VII. kerület
Eladó téglalakás

Budapest, VII. kerület

98.9 M Ft
2 szoba
71 m²
XIII. kerület, Angyalföld, Dévai utca Lőportár 17
Eladó téglalakás

Budapest, XIII. kerület

89.889 M Ft
2 szoba
45 m²
VII. kerület, Dohány-Kazinczy sarok
Eladó téglalakás

Budapest, VII. kerület

95.5 M Ft
2 szoba
68 m²
XIII. kerület, Angyalföld, Dévai utca Lőportár 17
Eladó téglalakás

Budapest, XIII. kerület

85.811 M Ft
2 szoba
42 m²
VII. kerület
Eladó téglalakás

Budapest, VII. kerület

155.9 M Ft
3 szoba
129 m²
VII. kerület
Eladó téglalakás

Budapest, VII. kerület

139 M Ft
3 szoba
86 m²
XII. kerület
Eladó téglalakás

Budapest, XII. kerület

70 M Ft
2 szoba
32 m²
XIII. kerület, Angyalföld, Dévai utca Lőportár 17
Eladó téglalakás

Budapest, XIII. kerület

87.287 M Ft
2 szoba
42 m²
XIII. kerület, Angyalföld, Dévai utca Lőportár 17
Eladó téglalakás

Budapest, XIII. kerület

88.861 M Ft
2 szoba
42 m²
VIII. kerület
Eladó téglalakás

Budapest, VIII. kerület

104.9 M Ft
3 szoba
65 m²
VII. kerület
Eladó téglalakás

Budapest, VII. kerület

117.3 M Ft
4 szoba
138 m²
XXII. kerület
Eladó téglalakás

Budapest, XXII. kerület

87 M Ft
3 szoba
58 m²

Falusi CSOK ingatlanok

Mezőzombor
Eladó családi ház

Mezőzombor

14.6 M Ft
3 szoba
81 m²
Szepetnek
Eladó családi ház

Szepetnek

16.5 M Ft
4 szoba
75 m²
Dombrád, Rákóczi út 22
Eladó családi ház

Dombrád

12.74 M Ft
1 + 1 szoba
125 m²
Győrság
Eladó családi ház

Győrság

89.9 M Ft
4 szoba
92 m²
Vokány
Eladó családi ház

Vokány

30 M Ft
4 szoba
100 m²
Törtel
Eladó családi ház

Törtel

32.5 M Ft
3 szoba
66 m²
Bogács
Eladó családi ház

Bogács

89.5 M Ft
4 + 2 szoba
180 m²
Sződ
Eladó családi ház

Sződ

102.9 M Ft
4 szoba
92 m²