BAM Living

Eladó téglalakás
Budapest, VII. kerület, földszint

+ 7 kép 1/10
56 800 000 Ft56.8 M Ft 1 893 333 Ft/m2
2 szoba
30 m²
földszint
építés éve:1900

Részletes adatok

Állapot: Felújított
Fűtés: Elektromos
Emelet: földszint
Komfort: Összkomfortos
Energetikai besorolás: Nem adta meg a hirdető

Az OTP Bank lakáshitel ajánlataFizetett hirdetés

+36 1 444
Balázs István Jácint
Duna House Kispest

Érdekel az OTP Bank kedvezményes lakáshitel ajánlata? *

* A kérdésre „Igen” válasz bejelölése esetén, az „Üzenet küldése” gombra kattintva kijelentem, hogy az OTP Bank Nyrt. Adatkezelési tájékoztatójának tartalmát megismertem és tudomásul vettem.

Eladó téglalakás leírása

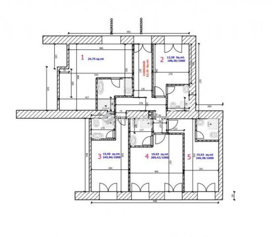
MINIGARZON ELADÓ!

7. kerületben, Szinva utcában, rendezett társasház magasföldszintjén,
89 nm alapterület + 46 nm ingatlan, 5 lakóegységre osztott egyik lakását kínáljuk eladásra.

A felújítás még zajlik, de már rugalmasan megtekinthetőek.
2026 márciusában költözhetőek.
Minden lakás konyhával, nappalival, fürdőszobával és galériás hálószobával rendelkezik. 4.2 m. belmagasságával kényelmes otthont biztosít.
Észak keleti fekvésű, külön villany és vízórával felszereltek.
Az ár tartalmazza a beépített bútorokat.

A lakások külön, ügyvédi megosztással megvásárolhatóak, de az 5 minigarzon egyben is eladó.

4. lakás: 19,6 nm + 11,3 nm galéria

További információkért, megtekintésre, hívjon bizalommal!

Az energetikai tanúsítvány készítése folyamatban van, amint rendelkezésre áll, úgy azzal a hirdetés frissítésre kerül.

A Duna House teljes kínálatával kapcsolatban segítségére tudok lenni.
Amennyiben telefonon nem ér el, kérem küldjön érdeklődő üzenetet.
Szükség esetén román nyelven is tudok segíteni

Referencia szám: LK078012

Hirdetés feltöltve: 2026. 02. 09. Utoljára módosítva: 2026. 05. 20.

2 szobás téglalakások ára Budapesten

Ebből az összehasonlításból megtudhatod, hogyan viszonyul a lakás ára a környékbeli téglalakások átlagos árához. Ez nem azt jelenti, hogy ennyivel olcsóbb vagy drágább, mint amennyit a lakás ér, hanem hogy ennyivel tér el a környékbeli átlagtól.

Ennek a m² ára
VII. kerület m² ár
Budapest m² ár
1893 e Ft
1570 e Ft -21%
1675 e Ft -13%
Ennek az ára
VII. kerület átlagár
Budapest átlagár
56.8 M Ft m Ft
81.1 m Ft 30%
88.4 m Ft 36%

Az ingatlan elhelyezkedése

Cím: Budapest, VII. kerület, földszint

Eladó ingatlanok a környékről

VII. kerület
Eladó téglalakás

Budapest, VII. kerület

85 M Ft
2 szoba
77 m²
VI. kerület
Eladó téglalakás

Budapest, VI. kerület

28 M Ft
1 + 1 szoba
45 m²
XVIII. kerület
Eladó téglalakás

Budapest, XVIII. kerület

90 M Ft
3 szoba
73 m²
VII. kerület
Eladó téglalakás

Budapest, VII. kerület

65 M Ft
2 szoba
55 m²
VIII. kerület
Eladó téglalakás

Budapest, VIII. kerület

84.9 M Ft
3 szoba
69 m²
VII. kerület, Belső Erzsébetváros, Klauzál tér
Eladó téglalakás

Budapest, VII. kerület

85 M Ft
2 szoba
77 m²
VII. kerület
Eladó téglalakás

Budapest, VII. kerület

75 M Ft
1 + 2 szoba
60 m²
VII. kerület
Eladó téglalakás

Budapest, VII. kerület

99.99 M Ft
4 szoba
67 m²
VII. kerület, Dohány-Kazinczy sarok
Eladó téglalakás

Budapest, VII. kerület

95.5 M Ft
2 szoba
68 m²
XX. kerület
Eladó téglalakás

Budapest, XX. kerület

79.9 M Ft
3 szoba
62 m²
VII. kerület
Eladó téglalakás

Budapest, VII. kerület

170 M Ft
6 szoba
104 m²
VII. kerület
Eladó téglalakás

Budapest, VII. kerület

83 M Ft
2 szoba
44 m²
VII. kerület
Eladó téglalakás

Budapest, VII. kerület

149.9 M Ft
7 szoba
125 m²
VII. kerület
Eladó téglalakás

Budapest, VII. kerület

117.3 M Ft
4 szoba
138 m²
XXI. kerület
Eladó iroda

Budapest, XXI. kerület

32 M Ft
2 szoba
35 m²
VII. kerület, Belső Erzsébetváros, Madách Imre út
Eladó téglalakás

Budapest, VII. kerület

124.9 M Ft
3 szoba
74 m²
VII. kerület
Eladó téglalakás

Budapest, VII. kerület

124 M Ft
3 szoba
69 m²
VII. kerület
Eladó téglalakás

Budapest, VII. kerület

139 M Ft
3 szoba
86 m²
VII. kerület
Eladó téglalakás

Budapest, VII. kerület

117.3 M Ft
4 szoba
138 m²
VII. kerület, Külső Erzsébetváros, Rottenbiller utca
Eladó téglalakás

Budapest, VII. kerület

95 M Ft
5 szoba
108 m²
II. kerület
Eladó téglalakás

Budapest, II. kerület

134.9 M Ft
3 szoba
78 m²
VII. kerület, Külső Erzsébetváros, Dohány utca
Eladó téglalakás

Budapest, VII. kerület

135 M Ft
3 szoba
86 m²
XIII. kerület
Eladó téglalakás

Budapest, XIII. kerület

109.99 M Ft
2 szoba
72 m²
XIII. kerület
Eladó téglalakás

Budapest, XIII. kerület

129.9 M Ft
3 szoba
96 m²

Falusi CSOK ingatlanok

Balinka, Petőfi S. utca 27
Eladó családi ház

Balinka

12.65 M Ft
1 + 2 szoba
79 m²
Tápiógyörgye
Eladó családi ház

Tápiógyörgye

19.9 M Ft
3 szoba
100 m²
Tápiószőlős
Eladó családi ház

Tápiószőlős

39.9 M Ft
4 szoba
120 m²
Vid
Eladó családi ház

Vid

29.99 M Ft
4 szoba
100 m²
Balatonszemes, Ady E. utca 6
Eladó téglalakás

Balatonszemes

108.9 M Ft
2 + 1 szoba
63 m²
Végegyháza
Eladó családi ház

Végegyháza

62.9 M Ft
4 + 1 szoba
150 m²
Törtel
Eladó családi ház

Törtel

32 M Ft
2 szoba
67 m²
Badacsonytomaj
Eladó családi ház

Badacsonytomaj

285 M Ft
4 szoba
230 m²