Eladó téglalakás
Budapest, VII. kerület, 2. emelet

+ 12 kép 1/15
103 500 000 Ft103.5 M Ft 1 189 655 Ft/m2
3 szoba
87 m2
2. emelet
építés éve:1930

Részletes adatok

Állapot: Felújított
Fűtés: Gázkazán
Energetikai besorolás: Nem adta meg a hirdető

Az OTP Bank lakáshitel ajánlataFizetett hirdetés

+36 30 357
Bödör Dóra
referens

Érdekel az OTP Bank kedvezményes lakáshitel ajánlata? *

* A kérdésre „Igen” válasz bejelölése esetén, az „Üzenet küldése” gombra kattintva kijelentem, hogy az OTP Bank Nyrt. Adatkezelési tájékoztatójának tartalmát megismertem és tudomásul vettem.

Eladó téglalakás leírása

Ragyogó lokáció, határtalan lehetőségek – különleges lakás a Király utcában!

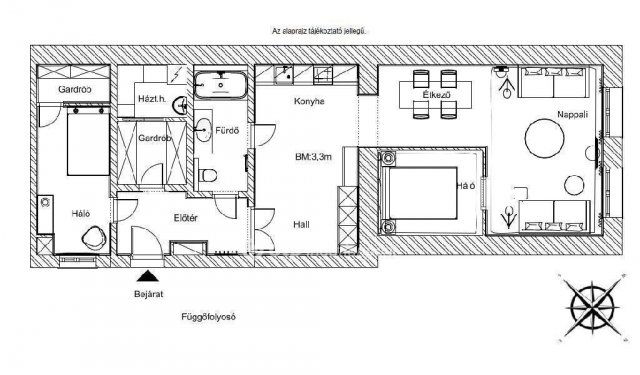
Budapest belvárosának szívében, a mindig pezsgő Király utcában kínálok eladásra egy rendkívül világos, elegáns, kétszintes polgári ház második emeletén található, 87 négyzetméteres, igényesen kialakított lakást. Az ingatlan pár perc sétára helyezkedik el az Oktogontól és az Andrássy úttól, így tökéletesen ötvözi a nyüzsgő belvárosi életet a meghitt, otthonos hangulattal.

A lakás felújítása a végéhez közeledik: az új tulajdonos ízlésére már csak a hálószoba padlóburkolatának kiválasztása és a konyha berendezése vár. Ez az apró befejezés lehetőséget kínál arra, hogy a jövendőbeli tulajdonos saját stílusát és személyiségét is belevigye ebbe a különleges otthonba.

Az ingatlan tágas előszobájából egy impozáns, dupla ajtón keresztül léphetünk be a hall, a nappali, az étkező és a konyha közös terébe, amelynek nagy ablakai az utcára néznek, így a helyiséget természetes fény árasztja el. A nappali egy részéből egy külön hálószoba került kialakításra, míg az előszoba másik irányában egy csendes, udvarra néző hálószoba található saját gardróbszobával. Innen nyílik a háztartási helyiség is, ahol a kondenzációs kazán kapott helyet, valamint mosdó és mosógép-kiállás is rendelkezésre áll. A tágas, kádas fürdőszoba az előszobából és a hallból egyaránt megközelíthető, a lakás kényelmes, jól átgondolt elrendezésének köszönhetően.

A lakáshoz egy 20 négyzetméteres pince is tartozik, amely kiválóan alkalmas tárolásra. Az ingatlan elrendezése lehetővé teszi, hogy akár két különálló lakásként is hasznosítható legyen, hiszen már most két külön víz- és villanyóra található benne. Ez a tulajdonság különösen vonzó lehet befektetők számára, akik akár két kisebb, önálló lakrészt is kialakíthatnak benne. Az álmennyezetnek köszönhetően egy újabb klímaegység beépítése is egyszerűen megoldható.

A társasház Airbnb-engedéllyel rendelkezik, így az ingatlan rövid távú kiadásra is tökéletes választás. A környék infrastruktúrája kiemelkedő: az 1-es metró, a 4-es és 6-os villamos, valamint több trolijárat is pár perc sétával elérhető. A Városliget alig tíz perc gyalog, a Jókai tér, a Liszt Ferenc tér, a Hunyadi téri piac, a parkok, a bevásárlási lehetőségek, éttermek és kávézók pedig közvetlen közelben találhatók.

Ez az ingatlan nem csupán egy lakás, hanem egy lehetőség: lehet belőle pazar, egyedi otthon, exkluzív iroda vagy jövedelmező befektetés. A nagyvonalú terek, a polgári elegancia és a központi elhelyezkedés mind-mind hozzájárulnak ahhoz, hogy ez a lakás valódi ritkaság legyen a pesti belvárosban.

Az OTP Ingatlanpont teljes körű ügyintézéssel, megbízható jogi háttérrel és kedvezményes finanszírozási megoldásokkal segíti Önt az adásvétel teljes folyamatában.

Nincs más hátra: nézze meg, érezzen rá a hangulatára, és szeressen bele ebbe a páratlan belvárosi otthonba!

Referenciaszám: M312019

Hirdetés feltöltve: 2025. 10. 10. Utoljára módosítva: 2025. 10. 10.

3 szobás téglalakások ára Budapesten

Ebből az összehasonlításból megtudhatod, hogyan viszonyul a lakás ára a környékbeli téglalakások átlagos árához. Ez nem azt jelenti, hogy ennyivel olcsóbb vagy drágább, mint amennyit a lakás ér, hanem hogy ennyivel tér el a környékbeli átlagtól.

Ennek a m² ára
VII. kerület m² ár
Budapest m² ár
1190 e Ft
1562 e Ft 24%
1701 e Ft 30%
Ennek az ára
VII. kerület átlagár
Budapest átlagár
103.5 M Ft m Ft
120.3 m Ft 14%
134.4 m Ft 23%

Az ingatlan elhelyezkedése

Cím: Budapest, VII. kerület, 2. emelet

Eladó ingatlanok a környékről

Eladó téglalakás
Eladó téglalakás

VII. kerület

185 M Ft
3 szoba
128 m2
Eladó téglalakás
Eladó téglalakás

VII. kerület, Külső Erzsébetváros, Izabella utca

89 M Ft
3 szoba
106 m2
Eladó téglalakás
Eladó téglalakás

VII. kerület, Külső Erzsébetváros, Hársfa utca

90 M Ft
2 szoba
69 m2
Eladó családi ház
Eladó családi ház

II. kerület, Remetekertváros

970 M Ft
6 szoba
330 m2
Eladó téglalakás
Eladó téglalakás

VI. kerület

199.9 M Ft
3 szoba
100 m2
Eladó téglalakás
Eladó téglalakás

XXI. kerület

31.9 M Ft
1 szoba
30 m2
Eladó téglalakás
Eladó téglalakás

VII. kerület, Belső Erzsébetváros, Bethlen Gábor

124.8 M Ft
3 szoba
78 m2
Eladó téglalakás
Eladó téglalakás

VIII. kerület, Józsefváros

129 M Ft
5 szoba
140 m2
Eladó téglalakás
Eladó téglalakás

XV. kerület

130 M Ft
5 szoba
105 m2
Eladó téglalakás
Eladó téglalakás

II. kerület, Lipótmező

447.2 M Ft
5 szoba
147 m2
Eladó téglalakás
Eladó téglalakás

VII. kerület

117.3 M Ft
4 szoba
138 m2
Eladó téglalakás
Eladó téglalakás

XIV. kerület

95 M Ft
3 szoba
75 m2
Eladó téglalakás
Eladó téglalakás

VII. kerület

61.06 M Ft
2 szoba
39 m2
Eladó téglalakás
Eladó téglalakás

VII. kerület

155.9 M Ft
3 szoba
129 m2
Eladó téglalakás
Eladó téglalakás

VII. kerület, Belső Erzsébetváros, Dob utca

212 M Ft
4 szoba
180 m2
Eladó üzlethelyiség
Eladó üzlethelyiség

VIII. kerület, Józsefváros

238 M Ft
450 m2
Eladó téglalakás
Eladó téglalakás

VII. kerület, Belső Erzsébetváros, Klauzál tér

85 M Ft
2 szoba
77 m2
Eladó téglalakás
Eladó téglalakás

VII. kerület, Külső Erzsébetváros, Rottenbiller utca

95 M Ft
5 szoba
108 m2
Eladó családi ház
Eladó családi ház

XI. kerület

399 M Ft
12 szoba
300 m2
Eladó családi ház
Eladó családi ház

II. kerület, Erzsébettelek

470 M Ft
6 szoba
250 m2
Eladó családi ház
Eladó családi ház

II. kerület, Budaliget

249.9 M Ft
4 szoba
160 m2
Eladó téglalakás
Eladó téglalakás

VII. kerület, Külső Erzsébetváros, Damjanich utca

179 M Ft
7 szoba
157 m2
Eladó téglalakás
Eladó téglalakás

VII. kerület, Külső Erzsébetváros, Erzsébet körút 21

86.9 M Ft
2 + 1 szoba
67 m2
Eladó családi ház
Eladó családi ház

III. kerület

150 M Ft
580 m²
86 m2

Falusi CSOK ingatlanok

Eladó családi ház
Eladó családi ház

Balatonkeresztúr, Dózsa György u. 29

145 M Ft
5 szoba
150 m2
Eladó családi ház
Eladó családi ház

Erdősmárok

87 M Ft
6 szoba
140 m2
Eladó családi ház
Eladó családi ház

Tiszaalpár

29 M Ft
4 szoba
132 m2
Eladó családi ház
Eladó családi ház

Balatonfenyves

430 M Ft
4 szoba
274 m2
Eladó családi ház
Eladó családi ház

Szőlősgyörök, Arany János utca

89.9 M Ft
3 szoba
130 m2
Eladó családi ház
Eladó családi ház

Pannonhalma

145 M Ft
2 + 2 szoba
100 m2
Eladó családi ház
Eladó családi ház

Ságvár

50.5 M Ft
3 szoba
74 m2
Eladó családi ház
Eladó családi ház

Segesd

79.9 M Ft
8 szoba
500 m2