Astora Márvány8

Eladó téglalakás
Budapest, VII. kerület, 4. emelet

+ 17 kép 1/20
85 340 000 Ft85.34 M Ft 1 354 603 Ft/m2
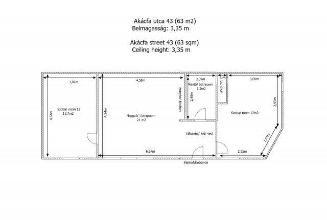
2 szoba
63 m2
4. emelet
építés éve:1950

Részletes adatok

Állapot: Újszerű
Fűtés: Gázkazán
Extrák: Lift
Energetikai besorolás: Nem adta meg a hirdető

Az OTP Bank lakáshitel ajánlataFizetett hirdetés

+36 70 427
Vargová Eva
referens

Érdekel az OTP Bank kedvezményes lakáshitel ajánlata? *

* A kérdésre „Igen” válasz bejelölése esetén, az „Üzenet küldése” gombra kattintva kijelentem, hogy az OTP Bank Nyrt. Adatkezelési tájékoztatójának tartalmát megismertem és tudomásul vettem.

Eladó téglalakás leírása

Eladó lakás a belváros szívében – Ideális otthon vagy befektetés!

Eladásra kínálunk egy 2 hálószobás + nappalis, részlegesen felújított lakást, amely azonnal költözhető, és tökéletes választás lehet akár saját otthonnak, akár biztos befektetésnek.

A lakás teljes bútorzattal és berendezéssel együtt kerül értékesítésre, így az új tulajdonosnak nincs más dolga, mint birtokba venni és használni.

Csendes belső udvarra néző ablakok, nyugodt környezet.

Rendezett társasház, kívül-belül jó állapotban.

Kiváló tömegközlekedési kapcsolatok.

Éttermek, kávézók és minden fontos szolgáltatás a közelben.

A házban több Airbnb-s lakás is működik, így rövid távú bérbeadásra is kiválóan alkalmas.

Ez az ingatlan a belvárosi élet minden előnyét kínálja, miközben csendes, otthonos környezetet biztosít.

Ne hagyja ki ezt a lehetőséget – legyen szó saját otthonról vagy befektetésről, ez a lakás biztosan jó választás! ...TOVÁBBI, TÖBBEZRES INGATLAN KÍNÁLAT: www.gdn-ingatlan.hu - GDN azonosító: 387510

Hirdetés feltöltve: 2025. 09. 19. Utoljára módosítva: 2025. 11. 02.

2 szobás téglalakások ára Budapesten

Ebből az összehasonlításból megtudhatod, hogyan viszonyul a lakás ára a környékbeli téglalakások átlagos árához. Ez nem azt jelenti, hogy ennyivel olcsóbb vagy drágább, mint amennyit a lakás ér, hanem hogy ennyivel tér el a környékbeli átlagtól.

Ennek a m² ára
VII. kerület m² ár
Budapest m² ár
1355 e Ft
1578 e Ft 14%
1686 e Ft 20%
Ennek az ára
VII. kerület átlagár
Budapest átlagár
85.34 M Ft m Ft
82.9 m Ft -3%
90.7 m Ft 6%

Az ingatlan elhelyezkedése

Cím: Budapest, VII. kerület, 4. emelet

Eladó ingatlanok a környékről

Eladó téglalakás
Eladó téglalakás

VII. kerület

65 M Ft
2 szoba
55 m2
Eladó téglalakás
Eladó téglalakás

VII. kerület, Külső Erzsébetváros, Rottenbiller utca

95 M Ft
5 szoba
108 m2
Eladó téglalakás
Eladó téglalakás

VII. kerület, Belső Erzsébetváros, Erzsébet körút

160 M Ft
3 szoba
88 m2
Eladó téglalakás
Eladó téglalakás

XX. kerület

74.9 M Ft
3 szoba
73 m2
Eladó téglalakás
Eladó téglalakás

VII. kerület

139 M Ft
3 szoba
86 m2
Eladó téglalakás
Eladó téglalakás

XI. kerület, Gellérthegy, Gyula utca

150 M Ft
2 szoba
56 m2
Eladó családi ház
Eladó családi ház

XXII. kerület, Budafok, Baross utca

199 M Ft
6 + 1 szoba
200 m2
Eladó téglalakás
Eladó téglalakás

III. kerület, Rómaifürdő, Királyok útja

139 M Ft
3 szoba
65 m2
Eladó téglalakás
Eladó téglalakás

III. kerület, Óbuda, Szomolnok utca

89.9 M Ft
2 + 2 szoba
96 m2
Eladó téglalakás
Eladó téglalakás

XX. kerület

79.9 M Ft
3 szoba
85 m2
Eladó téglalakás
Eladó téglalakás

VII. kerület, Belső Erzsébetváros, Rózsa utca

170 M Ft
5 szoba
124 m2
Eladó téglalakás
Eladó téglalakás

VII. kerület

59.8 M Ft
2 szoba
38 m2
Eladó téglalakás
Eladó téglalakás

IV. kerület, Újpest, Kassai utca

84.9 M Ft
2 + 1 szoba
71 m2
Eladó panellakás
Eladó panellakás

XI. kerület, Őrmező

89 M Ft
4 szoba
67 m2
Eladó téglalakás
Eladó téglalakás

VI. kerület, Külső Terézváros, Szófia utca

114.9 M Ft
4 szoba
103 m2
Eladó téglalakás
Eladó téglalakás

VII. kerület

117.3 M Ft
4 szoba
138 m2
Eladó téglalakás
Eladó téglalakás

VII. kerület

65 M Ft
2 szoba
55 m2
Eladó téglalakás
Eladó téglalakás

VII. kerület, Külső Erzsébetváros, Küldő-Erzsébetváros

69 M Ft
2 szoba
72 m2
Eladó téglalakás
Eladó téglalakás

VII. kerület

103.6 M Ft
3 szoba
67 m2
Eladó téglalakás
Eladó téglalakás

III. kerület, Óbudaisziget, Folyamőr utca

76.9 M Ft
1 szoba
25 m2
Eladó téglalakás
Eladó téglalakás

XIV. kerület, Kiszugló, Kövér Lajos utca

168 M Ft
3 + 1 szoba
84 m2
Eladó téglalakás
Eladó téglalakás

VII. kerület

170 M Ft
6 szoba
104 m2
Eladó téglalakás
Eladó téglalakás

XIII. kerület, Angyalföld, Fiastyúk utca

39.9 M Ft
1 + 1 szoba
34 m2
Eladó téglalakás
Eladó téglalakás

VII. kerület

185 M Ft
3 szoba
128 m2

Falusi CSOK ingatlanok

Eladó családi ház
Eladó családi ház

Tápiógyörgye

30 M Ft
3 szoba
65 m2
Eladó téglalakás
Eladó téglalakás

Balatonszemes

86.8 M Ft
2 szoba
58 m2
Eladó családi ház
Eladó családi ház

Rábaszentmihály

65 M Ft
3 szoba
156 m2
Eladó családi ház
Eladó családi ház

Újszilvás

39.5 M Ft
3 szoba
62 m2
Eladó családi ház
Eladó családi ház

Csurgó

10 M Ft
2 szoba
80 m2
Eladó családi ház
Eladó családi ház

Alattyán

45 M Ft
4 + 1 szoba
186 m2
Eladó családi ház
Eladó családi ház

Ősi

64.9 M Ft
4 szoba
181 m2
Eladó téglalakás
Eladó téglalakás

Balatonszemes

244.5 M Ft
3 szoba
107 m2