Seven Pearl

Eladó téglalakás
Budapest, VI. kerület, 1. emelet

+ 10 kép 1/13
85 000 000 Ft85 M Ft 1 328 125 Ft/m2
2 szoba
64 m2
1. emelet

Részletes adatok

Állapot: Felújítandó
Fűtés: Egyéb
Közmű: Víz, Gáz, Villany, Csatorna
Energetikai besorolás: Nem adta meg a hirdető

Az OTP Bank lakáshitel ajánlataFizetett hirdetés

+36 70 256
Ingatlancoaching.hu
referens

Érdekel az OTP Bank kedvezményes lakáshitel ajánlata? *

* A kérdésre „Igen” válasz bejelölése esetén, az „Üzenet küldése” gombra kattintva kijelentem, hogy az OTP Bank Nyrt. Adatkezelési tájékoztatójának tartalmát megismertem és tudomásul vettem.

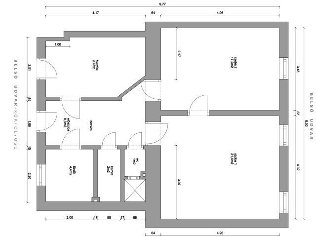
Eladó téglalakás leírása

Budapest VI. kerületében, az Eötvös utcában eladó egy 64 m²-es, első emeleti, 2 bejárattal rendelkező lakás, amely tökéletes választás azoknak, akik az otthont és a munkát egy helyen szeretnék megvalósítani. A jelenlegi alaprajz könnyen alakítható külön bejáratú tárgyalóvá, dolgozószobává, nappalivá és hálóvá, így ideális irodának, stúdiónak vagy professzionális home office-nak.
Igény esetén 2 különálló garzon lakássá alakítható.

A lakás minden ablaka csendes, belső udvarra néz, a belmagasság 4 méter, a parketta jó állapotú. A fűtés cirkó, az ingatlan felújítandó, az elektromos rendszer cseréje javasolt. Azonnal birtokba vehető, tehermentes.

A társasház késő-eklektikus, neoreneszánsz hatású, jó állapotú, a hátsó homlokzat frissen szigetelt és felújított. A lakók rendezettek, a belső udvar zöld és tiszta, biciklitároló rendelkezésre áll.

A környék rendkívül praktikus: az Andrássy út 300 m, az Oktogon 350 m, a 4–6-os villamos, M1 metró és több busz, troli néhány perc séta. A Nyugati pályaudvar és az M3 metró 550 méterre található. Minden fontos szolgáltatás, étterem, kávézó, bolt a közelben.

Kiváló megoldás mindazoknak, akik igényes környezetben alakítanának ki otthoni vállalkozást vagy irodát, miközben a város egyik legjobb pontján élnek.

A berendezett képek digitálisan készültek. Az ingatlan üres, bútorozatlan.

Hirdetés feltöltve: 2025. 11. 29. Utoljára módosítva: 2025. 12. 01.

2 szobás téglalakások ára Budapesten

Ebből az összehasonlításból megtudhatod, hogyan viszonyul a lakás ára a környékbeli téglalakások átlagos árához. Ez nem azt jelenti, hogy ennyivel olcsóbb vagy drágább, mint amennyit a lakás ér, hanem hogy ennyivel tér el a környékbeli átlagtól.

Ennek a m² ára
VI. kerület m² ár
Budapest m² ár
1328 e Ft
1598 e Ft 17%
1689 e Ft 21%
Ennek az ára
VI. kerület átlagár
Budapest átlagár
85 M Ft m Ft
235.6 m Ft 64%
90.2 m Ft 6%

Az ingatlan elhelyezkedése

Cím: Budapest, VI. kerület, 1. emelet

Eladó ingatlanok a környékről

Eladó üzlethelyiség
Eladó üzlethelyiség

II. kerület, Országút, Margit körút

6.999 M Ft
5 m2
Eladó téglalakás
Eladó téglalakás

III. kerület, Óbudaisziget, Folyamőr utca

76.9 M Ft
1 szoba
25 m2
Eladó téglalakás
Eladó téglalakás

VII. kerület, Belső Erzsébetváros, Erzsébet körút

160 M Ft
3 szoba
88 m2
Eladó téglalakás
Eladó téglalakás

XIII. kerület, Angyalföld, Fiastyúk utca

39.9 M Ft
1 + 1 szoba
34 m2
Eladó téglalakás
Eladó téglalakás

VI. kerület, Külső Terézváros, Szófia utca

114.9 M Ft
4 szoba
103 m2
Eladó téglalakás
Eladó téglalakás

VI. kerület

221.99 M Ft
8 szoba
150 m2
Eladó téglalakás
Eladó téglalakás

VI. kerület, Szondi utca

130 M Ft
2 + 1 szoba
99 m2
Eladó téglalakás
Eladó téglalakás

VII. kerület, Belső Erzsébetváros, Erzsébet körút

89.9 M Ft
1 + 1 szoba
71 m2
Eladó téglalakás
Eladó téglalakás

III. kerület, Óbuda, Szomolnok utca

89.9 M Ft
2 + 2 szoba
96 m2
Eladó téglalakás
Eladó téglalakás

VI. kerület

160 M Ft
4 szoba
208 m2
Eladó téglalakás
Eladó téglalakás

VI. kerület

71.639 M Ft
1 + 1 szoba
37 m2
Eladó téglalakás
Eladó téglalakás

XIII. kerület

55.99 M Ft
1 szoba
31 m2
Eladó téglalakás
Eladó téglalakás

VI. kerület

417.274 M Ft
5 szoba
189 m2
Eladó téglalakás
Eladó téglalakás

V. kerület, Belváros, Belgrád rakpart

78 M Ft
1 + 1 szoba
42 m2
Eladó téglalakás
Eladó téglalakás

VI. kerület, Király utca

130 M Ft
4 szoba
95 m2
Eladó téglalakás
Eladó téglalakás

VI. kerület, Külső Terézváros, Szinyei Merse utca

114.9 M Ft
3 szoba
93 m2
Eladó téglalakás
Eladó téglalakás

VII. kerület, Belső Erzsébetváros, Rózsa utca

170 M Ft
5 szoba
124 m2
Eladó téglalakás
Eladó téglalakás

VI. kerület

129 M Ft
4 szoba
123 m2
Eladó téglalakás
Eladó téglalakás

VI. kerület

103.5 M Ft
3 szoba
72 m2
Eladó téglalakás
Eladó téglalakás

XI. kerület, Gellérthegy, Gombócz Zoltán utca

142 M Ft
2 + 1 szoba
71 m2
Eladó téglalakás
Eladó téglalakás

VI. kerület

49.5 M Ft
2 szoba
46 m2
Eladó téglalakás
Eladó téglalakás

XI. kerület

102.9 M Ft
1 + 1 szoba
46 m2
Eladó családi ház
Eladó családi ház

XXII. kerület, Budafok, Baross utca

199 M Ft
6 + 1 szoba
200 m2

Falusi CSOK ingatlanok

Eladó családi ház
Eladó családi ház

Szólád

104.9 M Ft
6 + 1 szoba
245 m2
Eladó családi ház
Eladó családi ház

Tésenfa, Kossuth utca 23/a

5.55 M Ft
1 + 1 szoba
109 m2
Eladó családi ház
Eladó családi ház

Győrság

86.9 M Ft
4 szoba
92 m2
Eladó családi ház
Eladó családi ház

Mikebuda

68.5 M Ft
2 szoba
90 m2
Eladó családi ház
Eladó családi ház

Somogygeszti

38.6 M Ft
3 + 1 szoba
98 m2
Eladó ikerház
Eladó ikerház

Enese

83.9 M Ft
4 szoba
90 m2
Eladó családi ház
Eladó családi ház

Ölbő

15 M Ft
3 szoba
103 m2
Eladó családi ház
Eladó családi ház

Devecser

33.9 M Ft
3 szoba
75 m2