Eladó téglalakás
Budapest, V. kerület, 6. emelet

+ 2 kép 1/5
168 000 000 Ft168 M Ft 2 545 455 Ft/m2
2 szoba
66 m2
6. emelet
építés éve:2018

Részletes adatok

Állapot: Újszerű
Fűtés: Házközponti
Extrák: Lift
Energetikai besorolás: Nem adta meg a hirdető

Az OTP Bank lakáshitel ajánlataFizetett hirdetés

+36 70 242
Erdélyi Miklós István
Otp Ingatlanpont Falk Miksa

Érdekel az OTP Bank kedvezményes lakáshitel ajánlata? *

* A kérdésre „Igen” válasz bejelölése esetén, az „Üzenet küldése” gombra kattintva kijelentem, hogy az OTP Bank Nyrt. Adatkezelési tájékoztatójának tartalmát megismertem és tudomásul vettem.

Eladó téglalakás leírása

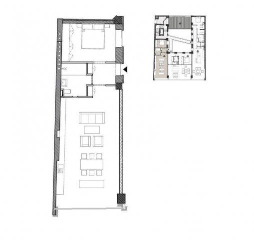
***Budapest-Belváros, V. kerület, az Astoria Loftban, 6. emeleti, 66 m2-es lakás eladó.***
Az épület 2018-ban teljesen új belsőt kapott, a tervezők 31 egyedi stílusú loft lakást alakítottak ki. A teljes 6. emelet megvásárolható, a lakások egybenyitására van lehetőség. (246 m2).
Tökéletes lokáció, tágas, világos terek és nagy belmagasságok, industrial stílus jellemzi a lakásokat. A hirdetésben szereplő lakás helyiségei: amerikai konyhás nappali, 1 hálószoba, fürdőszoba, közlekedő. A nappali a Múzeum körútra néz, padlótól a mennyezetig érő ablakfelülettel.
A liftes ház belső udvarában acél hidak helyettesítik a korábbi körfolyosókat. Minden lakásban fan-coil rendszer biztosítja a fűtést és hűtést, padlófűtéssel kiegészítve.
Az épület Budapest központjában az Astoria metró megállónál található. Gyorsan birtokba vehető.
Ingatlanjogász ügyvédi irodánk a Falk Miksa utcában található.

Referencia szám: M309871-ZE

Hirdetés feltöltve: 2025. 08. 07. Utoljára módosítva: 2025. 10. 09.

2 szobás téglalakások ára Budapesten

Ebből az összehasonlításból megtudhatod, hogyan viszonyul a lakás ára a környékbeli téglalakások átlagos árához. Ez nem azt jelenti, hogy ennyivel olcsóbb vagy drágább, mint amennyit a lakás ér, hanem hogy ennyivel tér el a környékbeli átlagtól.

Ennek a m² ára
V. kerület m² ár
Budapest m² ár
2545 e Ft
2246 e Ft -13%
1684 e Ft -51%
Ennek az ára
V. kerület átlagár
Budapest átlagár
168 M Ft m Ft
194.6 m Ft 14%
90.7 m Ft -85%

Az ingatlan elhelyezkedése

Cím: Budapest, V. kerület, 6. emelet

Eladó ingatlanok a környékről

Eladó téglalakás
Eladó téglalakás

XI. kerület

112 M Ft
2 szoba
59 m2
Eladó téglalakás
Eladó téglalakás

V. kerület, Lipótváros, Szent István körút

119.9 M Ft
3 szoba
64 m2
Eladó téglalakás
Eladó téglalakás

V. kerület, Lipótváros, Október 6. utca

319 M Ft
3 szoba
108 m2
Eladó téglalakás
Eladó téglalakás

XIII. kerület, Angyalföld

200.76 M Ft
4 szoba
143 m2
Eladó téglalakás
Eladó téglalakás

V. kerület, Lipótváros, 1051. OKTÓBER 6. utca

319.99 M Ft
3 szoba
100 m2
Eladó téglalakás
Eladó téglalakás

V. kerület, Belváros, Petőfi Sándor utca

134 M Ft
2 szoba
59 m2
Eladó téglalakás
Eladó téglalakás

V. kerület, Lipótváros, TETŐTERASZOS, PANORÁMÁS LAKÁS

312.8 M Ft
3 szoba
81 m2
Eladó téglalakás
Eladó téglalakás

V. kerület

319 M Ft
3 szoba
107 m2
Eladó téglalakás
Eladó téglalakás

V. kerület, Belváros, Aranykéz utca

359.99 M Ft
4 szoba
121 m2
Eladó családi ház
Eladó családi ház

XXII. kerület, Budafok, Baross utca

239 M Ft
6 + 1 szoba
200 m2
Eladó téglalakás
Eladó téglalakás

VIII. kerület, Józsefváros

19.9 M Ft
2 + 1 szoba
26 m2
Eladó téglalakás
Eladó téglalakás

VIII. kerület, Józsefváros, Nagy Templom utca

125 M Ft
4 + 2 szoba
152 m2
Eladó téglalakás
Eladó téglalakás

V. kerület, Szent István körút

169 M Ft
3 szoba
82 m2
Eladó téglalakás
Eladó téglalakás

V. kerület, Lipótváros

420 M Ft
4 szoba
147 m2
Eladó téglalakás
Eladó téglalakás

VI. kerület, Külső Terézváros, Szófia utca

119.9 M Ft
4 szoba
103 m2
Eladó téglalakás
Eladó téglalakás

V. kerület, Belváros, Váci utca

329.9 M Ft
4 szoba
112 m2
Eladó téglalakás
Eladó téglalakás

V. kerület, Lipótváros, Falk Miksa

116 M Ft
1 + 2 szoba
50 m2
Eladó téglalakás
Eladó téglalakás

XIII. kerület, Angyalföld, Fiastyúk utca

41.99 M Ft
1 + 1 szoba
34 m2
Eladó panellakás
Eladó panellakás

XI. kerület, Kelenföld, Tétényi út

77.9 M Ft
2 szoba
50 m2
Eladó téglalakás
Eladó téglalakás

V. kerület, Lipótváros, Báthory utca

170.867 M Ft
2 + 1 szoba
78 m2
Eladó téglalakás
Eladó téglalakás

V. kerület, Belváros, Vörösmarty tér

508.3 M Ft
3 + 1 szoba
135 m2
Eladó téglalakás
Eladó téglalakás

V. kerület, Lipótváros, Báthory utca

170.867 M Ft
2 + 1 szoba
78 m2
Eladó téglalakás
Eladó téglalakás

V. kerület

319 M Ft
3 szoba
107 m2
Eladó téglalakás
Eladó téglalakás

VI. kerület, Külső Terézváros, Szív utca

119.5 M Ft
3 szoba
94 m2

Falusi CSOK ingatlanok

Eladó családi ház
Eladó családi ház

Tihany

345 M Ft
6 szoba
347 m2
Eladó családi ház
Eladó családi ház

Zsámbok

33 M Ft
2 szoba
80 m2
Eladó családi ház
Eladó családi ház

Becsehely

18.5 M Ft
2 szoba
99 m2
Eladó családi ház
Eladó családi ház

Letenye

27.9 M Ft
3 szoba
81 m2
Eladó családi ház
Eladó családi ház

Tihany

583.959 M Ft
5 szoba
246 m2
Eladó családi ház
Eladó családi ház

Makád

140 M Ft
4 szoba
79 m2
Eladó családi ház
Eladó családi ház

Magyarszék

89.9 M Ft
5 szoba
130 m2
Eladó ikerház
Eladó ikerház

Besnyő

89.5 M Ft
1 + 3 szoba
93 m2