Astora Márvány8

Eladó téglalakás
Budapest, IX. kerület, Ferencváros, Dandár utca 17, 3. emelet

+ 16 kép 1/19
89 800 000 Ft89.8 M Ft 1 095 122 Ft/m2
2 + 1 szoba
82 m²
3. emelet

Részletes adatok

Állapot: Átlagos
Fűtés: Gázkazán
Emelet: 3. emelet
Energetikai besorolás: Nem adta meg a hirdető

Az OTP Bank lakáshitel ajánlataFizetett hirdetés

+36 30 992
dr. Borbola Péter
referens

Érdekel az OTP Bank kedvezményes lakáshitel ajánlata? *

* A kérdésre „Igen” válasz bejelölése esetén, az „Üzenet küldése” gombra kattintva kijelentem, hogy az OTP Bank Nyrt. Adatkezelési tájékoztatójának tartalmát megismertem és tudomásul vettem.

Eladó téglalakás leírása

PANORÁMÁS, NAPFÉNYES, KÉT ÉS FÉL SZOBÁS, KÖNNYEN HÁROM ÉS FÉL SZOBÁSSÁ ALAKÍTHATÓ, KLIMATIZÁLT POLGÁRI LAKÁS VÁRJA ÚJ TULAJDONOSÁT NÉHÁNY LÉPÉSNYIRE A DUNA-PARTTÓL, A IX. KERÜLET KÖZPONTHOZ KÖZELI RÉSZÉN, AHOL A TÖRTÉNELMI KÖRNYEZET ÉS A MODERN ÉLETSTÍLUS TALÁLKOZIK!

A Dandár Gyógyfürdő és a Zwack Unicum Múzeum közvetlen szomszédságában, újépítésű környezetben elhelyezkedő épület III. emeletén (lift jelenleg nincs), azonnal költözhető, igény szerint felújítandó állapotú, utcai nézetű, világos, 82 négyzetméteres társasházi lakás csak önre vár, ha a belváros közvetlen szomszédságában, egy remek adottságokkal rendelkező, rendkívül jó ár/érték arányú polgári lakásban képzeli el családja jövőjét.

Az épület:
A 20. század elején épült, az utcafronti részén háromemeletes téglaépület az I. világháború előtti bérház építési hullám során a környéken épített számos hasonló épület építészeti jegyeit hordozza. A Soroksári út, vagy a Mester utca felől akár tömegközlekedéssel is könnyen megközelíthető épület folyamatosan karbantartott, a korának megfelelő állapotú. Az épületben a gázvezetékek cseréje néhány éve megtörtént, valamint az eladó lakás feletti tetőszerkezet és tetőfedés is felújításra került. A kulturált, zárt lépcsőházban zárható babakocsi tároló is kialakításra került. A karbantartott közös udvarból a hátsó lépcsőházból juthatunk le a zárható, közös kerékpártárolóhoz és a lakáshoz tartozó 6 négyzetméteres pinceszinti tárolóhoz.

A lakás:
A tulajdoni lapja alapján kétszobásként nyilvántartott lakás könnyen, csupán a konyha áthelyezésével a nappaliba, három és fél szobássá alakítható. A lakás jelenleg is lakható állapotú, némi ráfordítással kellemes otthonná varázsolható. A 3,6 méteres belmagasságú ingatlan lakóterülete akár galéria kialakításával, vagy a lakás feletti beépítetlen padlástér megvásárlásával és beépítésével is növelhető.
Az utcafronti szobák klimatizáltak, falait és mennyezetét a jelenlegi tulajdonos belső hőszigeteléssel látta el.
A fűtést és a fürdőszoba melegvíz ellátását gáz üzemű, elektromos keringetésű cirkulációs kazán (gázcirkó), a konyha melegvíz ellátását villanybojler biztosítja.
A három fázisú (3x20A) elektromos áram, a három fázisú vezérelt elektromos áram, valamint a vezetékes víz és a gáz fogyasztását külön órák mérik. A közös költség 29.071,- forint havonta, amely a szokásos költségeken felül 20% hányadban felújítási alapot is tartalmaz.

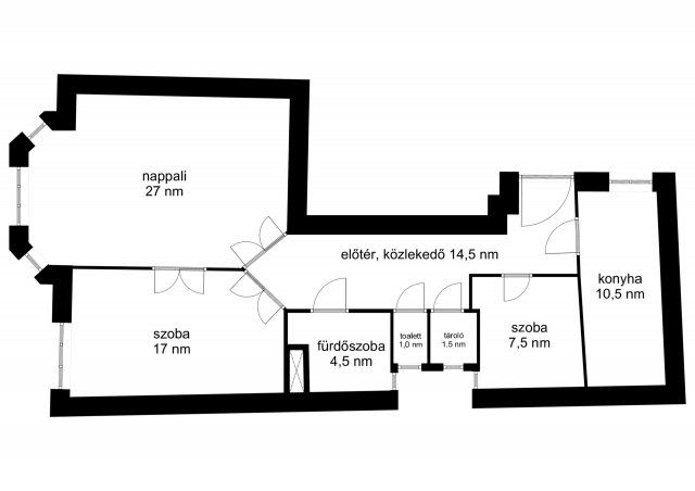
A lakás helyiségei:
(Az alaprajzok és a helyiségek méretei tájékoztató jellegűek)
A második alaprajz az átalakítás lehetőségét jeleníti meg.
Nappali: 27 m2;
Szoba: 17 m2;
Félszoba: 7,5 m2;
Közlekedő: 14,5 m2;
Konyha: 10,5 m2;
Tároló, kamra: 1,5 M2;
Fürdőszoba: 4,5 m2;
WC: 1,0 m2;

A lakáshoz tartozik egy pinceszinti tároló (6 m2).

Parkolás:
A környező utcákban a lakosok számára a parkolás az évi néhányezer forintos hozzájárulás megfizetését követően ingyenes.

A környék:
A környék infrastrukturális ellátottsága kiváló, néhány perc alatt akár gyalog is eljuthatunk Budapest egyik fő közlekedési csomópontjához, a Boráros térre, ahonnan több bevásárló központ, vásárcsarnok, önkormányzat, kormányhivatal, orvosi rendelő, sport és szabadidőközpont elérhető. Számos étterem és kávézó, több játszótér, bölcsőde, óvoda, iskola, gimnázium és egyetem is van a közelben. A lakás busszal (54, 55, 223E, 224, 224E, 255E, 281), villamossal (2, 2B, 23, 24, 51, 51A), metróval (M3), és éjszakai busszal (918, 923, 934, 979, 979A) is könnyen megközelíthető.

Kinek ajánlom:
Szívből ajánlom ezt a kiváló beosztású, remek ár/érték arányú polgári lakást pároknak, gyermekes családoknak, valamint mindenkinek, aki a belvároshoz közel, egy történelemmel átszőtt, folyamatosan fejlődő polgári környezetben, minőségi életre, különleges életstílusra vágyik. A lakás irodának, vagy rendelőnek is jó választás.

Befektetőknek:
A lakás befektetésnek is kiváló, lokációjának, beosztásának és méretének köszönhetően könnyen bérbeadható vagy értékesíthető, a bérbeadásból származó jövedelem és az éves értéknövekedése hosszú távon jóval meghaladhatja a banki kamatokat, valamint egyéb befektetések hozamát.

KÉREM, TEKINTSE MEG A LAKÁSRÓL KÉSZÜLT VIRTUÁLIS SÉTÁT A KEZDŐKÉPEN TALÁLHATÓ „VIRTUÁLIS SÉTA” FELIRATRA KATTINTVA:

KÉREM, HOGY ÉRDEKLŐDÉS ESETÉN TELEFONON HÍVJON, A HIRDETŐ OLDALAKON ÉRKEZŐ ÜZENETEKRE OLYKOR CSAK JELENTŐS KÉSEDELEMMEL TUDOK VÁLASZOLNI.

AZ INGATLAN KIZÁRÓLAG IRODÁNK AJÁNLATÁBÓL VÁSÁROLHATÓ MEG.

Miért nálunk vásárolja meg ingatlanát?
- Velünk rengeteg pénzt és időt takaríthat meg, továbbá biztonságban tudhatja ingatlanügyeit;
- Igény esetén tapasztalt ingatlanforgalmi szakjogász ügyvédjeink készséggel állnak rendelkezésére;
- Pénzügyi szolgáltató partnerünk ingyenes, bankfüggetlen hitelügyintézést biztosít ügyfeleink részére, nem csak az általunk közvetített ingatlanok esetén;
- Jelen közvetítési szolgáltatásunk a vevők részére ingyenes.

Eladó ingatlanát az elérhető legmagasabb piaci áron, a lehető legalacsonyabb sikerdíjért értékesítjük.

HÍVJON BIZALOM

Hirdetés feltöltve: 2026. 01. 26. Utoljára módosítva: 2026. 02. 04.

3 szobás téglalakások ára Budapesten

Ebből az összehasonlításból megtudhatod, hogyan viszonyul a lakás ára a környékbeli téglalakások átlagos árához. Ez nem azt jelenti, hogy ennyivel olcsóbb vagy drágább, mint amennyit a lakás ér, hanem hogy ennyivel tér el a környékbeli átlagtól.

Ennek a m² ára
Ferencváros m² ár
IX. kerület m² ár
Budapest m² ár
1095 e Ft
1817 e Ft 40%
1627 e Ft 33%
1707 e Ft 36%
Ennek az ára
Ferencváros átlagár
IX. kerület átlagár
Budapest átlagár
89.8 M Ft m Ft
124.5 m Ft 28%
123.1 m Ft 27%
131.8 m Ft 32%

Az ingatlan elhelyezkedése

Cím: Budapest, IX. kerület, Ferencváros, Dandár utca 17, 3. emelet

Eladó ingatlanok a környékről

XIV. kerület, Törökőr
Eladó téglalakás

Budapest, XIV. kerület

83.7 M Ft
2 szoba
56 m²
XVIII. kerület, Szemeretelep
Eladó ikerház

Budapest, XVIII. kerület

84 M Ft
5 szoba
103 m²
IX. kerület, Ferencváros, Lechner Ödön fasor
Eladó téglalakás

Budapest, IX. kerület

299 M Ft
4 szoba
273 m²
VI. kerület, Külső Terézváros, Rózsa utca 82
Eladó téglalakás

Budapest, VI. kerület

85.92 M Ft
2 szoba
48 m²
XVIII. kerület, Lónyaytelep
Eladó téglalakás

Budapest, XVIII. kerület

69 M Ft
3 szoba
63 m²
IX. kerület, Soroksári út
Eladó téglalakás

Budapest, IX. kerület

79.203 M Ft
1 szoba
30 m²
VI. kerület, Külső Terézváros, Rózsa utca 82
Eladó téglalakás

Budapest, VI. kerület

85.92 M Ft
2 szoba
48 m²
IX. kerület
Eladó téglalakás

Budapest, IX. kerület

218 M Ft
3 szoba
111 m²
XVIII. kerület, Szemeretelep
Eladó családi ház

Budapest, XVIII. kerület

140 M Ft
2 szoba
118 m²
XIII. kerület
Eladó téglalakás

Budapest, XIII. kerület

94.749 M Ft
2 szoba
57 m²
XIV. kerület, Herminamező
Eladó iroda

Budapest, XIV. kerület

480 M Ft
7 szoba
250 m²
IX. kerület
Eladó téglalakás

Budapest, IX. kerület

51 M Ft
2 szoba
31 m²
IX. kerület, Ferencváros, Lechner Ödön fasor
Eladó téglalakás

Budapest, IX. kerület

600 M Ft
7 szoba
445 m²
IX. kerület, Ferencváros, Soroksári út
Eladó téglalakás

Budapest, IX. kerület

205.023 M Ft
3 + 1 szoba
145 m²
IX. kerület, Ferencváros, Soroksári út
Eladó téglalakás

Budapest, IX. kerület

97.007 M Ft
1 + 1 szoba
54 m²
IX. kerület, Soroksári út
Eladó téglalakás

Budapest, IX. kerület

117.207 M Ft
2 szoba
65 m²
XVII. kerület, Rákoscsaba
Eladó családi ház

Budapest, XVII. kerület

249.9 M Ft
4 szoba
157 m²
II. kerület
Eladó családi ház

Budapest, II. kerület

149.9 M Ft
3 szoba
90 m²
XIV. kerület, Egressy út
Eladó családi ház

Budapest, XIV. kerület

129.9 M Ft
3 + 1 szoba
108 m²
IX. kerület, Soroksári út
Eladó téglalakás

Budapest, IX. kerület

79.88 M Ft
1 szoba
32 m²
XVII. kerület
Eladó családi ház

Budapest, XVII. kerület

179 M Ft
5 szoba
150 m²
XVIII. kerület, Miklóstelep
Eladó családi ház

Budapest, XVIII. kerület

129.9 M Ft
7 szoba
100 m²
IX. kerület, Ferencváros, Haller utca
Eladó téglalakás

Budapest, IX. kerület

51 M Ft
2 szoba
31 m²
X. kerület, Újhegy
Eladó panellakás

Budapest, X. kerület

67.9 M Ft
3 szoba
68 m²

Falusi CSOK ingatlanok

Simontornya
Eladó családi ház

Simontornya

35 M Ft
3 szoba
154 m²
Perbál
Eladó családi ház

Perbál

130 M Ft
5 szoba
190 m²
Tápiógyörgye
Eladó családi ház

Tápiógyörgye

14.9 M Ft
2 szoba
60 m²
Kemecse
Eladó családi ház

Kemecse

71.9 M Ft
4 szoba
144 m²
Farmos
Eladó családi ház

Farmos

59.9 M Ft
4 szoba
90 m²
Törtel
Eladó családi ház

Törtel

39 M Ft
1 + 1 szoba
118 m²
Magyarszerdahely, Vadalmás utca
Eladó családi ház

Magyarszerdahely

104 M Ft
4 szoba
145 m²
Tóalmás
Eladó családi ház

Tóalmás

31.5 M Ft
2 szoba
43 m²