NapForrás 20 - Buda

Eladó téglalakás
Budapest, IX. kerület, 6. emelet

+ 9 kép 1/12
99 000 000 Ft99 M Ft 1 650 000 Ft/m2
2 szoba
60 m2
6. emelet
építés éve:2002

Részletes adatok

Állapot: Újszerű
Fűtés: Házközponti egyedi méréssel
Parkolás: Garázs
Extrák: Lift
Energetikai besorolás: Nem adta meg a hirdető

Az OTP Bank lakáshitel ajánlataFizetett hirdetés

+36 30 828
Füredi Felícia
referens

Érdekel az OTP Bank kedvezményes lakáshitel ajánlata? *

* A kérdésre „Igen” válasz bejelölése esetén, az „Üzenet küldése” gombra kattintva kijelentem, hogy az OTP Bank Nyrt. Adatkezelési tájékoztatójának tartalmát megismertem és tudomásul vettem.

Eladó téglalakás leírása

IX.kerületben kínálok eladásra Angyal utcában egy újszerű, 60 nm-es,
2 szobás,gyönyörű napfényes ingatlant, saját külön zárású tárolóval és egy gépkocsibeállóval!

A társasház 2002-ben épült, lakói tisztán és rendezetten tartják a házat.
Közös költsége 15.700 Ft , vízórája van, fűtését házközpont kazán biztosítja egyedi méréssel.

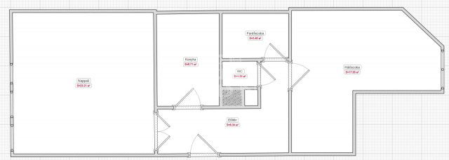
Az ingatlan a 6-ik emeleten helyezkedik el, és nagyon jó az elosztása; két különnyíló szobája van,konyha, fürdőszoba, és mellékhelyiség.

Ideális választás befektetőknek vagy első lakást keresőknek.

Tartozik továbbá a lakáshoz egy saját zárású tároló (~4 nm) ,ennek pluszban az értéke: 2.000.000 Ft, illetve a -1-en található egy gépkocsibeálló, ennek az ára 9.000.000 Ft.

Az ingatlan nagyon jó helyen van, kávézók, éttermek, pékségek, boltok színesítik az ideköltöző életét.

Tehermentes, azonnal költözhető.
A tájékoztatás nem teljeskörű, további információért kérem keressen az alábbi
referencia azonosítón:
ID:390130 ...TOVÁBBI, TÖBBEZRES INGATLAN KÍNÁLAT: www.gdn-ingatlan.hu - GDN azonosító: 390130

Hirdetés feltöltve: 2025. 11. 27. Utoljára módosítva: 2025. 12. 16.

2 szobás téglalakások ára Budapesten

Ebből az összehasonlításból megtudhatod, hogyan viszonyul a lakás ára a környékbeli téglalakások átlagos árához. Ez nem azt jelenti, hogy ennyivel olcsóbb vagy drágább, mint amennyit a lakás ér, hanem hogy ennyivel tér el a környékbeli átlagtól.

Ennek a m² ára
IX. kerület m² ár
Budapest m² ár
1650 e Ft
1785 e Ft 8%
1689 e Ft 2%
Ennek az ára
IX. kerület átlagár
Budapest átlagár
99 M Ft m Ft
94.1 m Ft -5%
90.2 m Ft -10%

Az ingatlan elhelyezkedése

Cím: Budapest, IX. kerület, 6. emelet

Eladó ingatlanok a környékről

Eladó téglalakás
Eladó téglalakás

IX. kerület, Ferencváros, Lechner Ödön fasor

299 M Ft
4 szoba
273 m2
Eladó téglalakás
Eladó téglalakás

IX. kerület, Ferencváros, Lechner Ödön fasor

609.6 M Ft
7 szoba
445 m2
Eladó téglalakás
Eladó téglalakás

XI. kerület, Gellérthegy, Gombócz Zoltán utca

142 M Ft
2 + 1 szoba
71 m2
Eladó téglalakás
Eladó téglalakás

XI. kerület

102.9 M Ft
1 + 1 szoba
46 m2
Eladó téglalakás
Eladó téglalakás

VI. kerület, Külső Terézváros, Szív utca

119.5 M Ft
3 szoba
94 m2
Eladó ipari ingatlan
Eladó ipari ingatlan

XVIII. kerület, Bókaytelep

63.9 M Ft
300 m²
110 m2
Eladó téglalakás
Eladó téglalakás

IX. kerület, Ferencváros, Soroksári út

225.943 M Ft
3 + 1 szoba
114 m2
Eladó üzlethelyiség
Eladó üzlethelyiség

II. kerület, Országút, Margit körút

6.999 M Ft
5 m2
Eladó téglalakás
Eladó téglalakás

IX. kerület, Ferencváros, Soroksári út

283.159 M Ft
4 + 1 szoba
147 m2
Eladó téglalakás
Eladó téglalakás

IX. kerület, Ferencváros, Soroksári út

102.162 M Ft
1 + 1 szoba
56 m2
Eladó téglalakás
Eladó téglalakás

I. kerület, Krisztinaváros, Feszty Árpád utca

78.99 M Ft
1 szoba
28 m2
Eladó téglalakás
Eladó téglalakás

VII. kerület, Belső Erzsébetváros, Erzsébet körút

160 M Ft
3 szoba
88 m2
Eladó téglalakás
Eladó téglalakás

IX. kerület

119.9 M Ft
140 m2
Eladó téglalakás
Eladó téglalakás

IX. kerület, Vágóhíd utca

153.5 M Ft
3 szoba
74 m2
Eladó téglalakás
Eladó téglalakás

IX. kerület, Ferencváros, Bárd utca 7

81.8 M Ft
1 + 1 szoba
35 m2
Eladó téglalakás
Eladó téglalakás

VI. kerület, Külső Terézváros, Szófia utca

114.9 M Ft
4 szoba
103 m2
Eladó téglalakás
Eladó téglalakás

XI. kerület, Gellérthegy, Gyula utca

130 M Ft
2 szoba
56 m2
Eladó téglalakás
Eladó téglalakás

III. kerület, Óbuda, Szomolnok utca

89.9 M Ft
2 + 2 szoba
96 m2
Eladó téglalakás
Eladó téglalakás

III. kerület, Óbudaisziget, Folyamőr utca

76.9 M Ft
1 szoba
25 m2
Eladó téglalakás
Eladó téglalakás

IX. kerület

120 M Ft
2 szoba
57 m2
Eladó téglalakás
Eladó téglalakás

IX. kerület, Vágóhíd utca

86.51 M Ft
1 szoba
39 m2
Eladó téglalakás
Eladó téglalakás

IX. kerület

64.9 M Ft
3 szoba
80 m2
Eladó téglalakás
Eladó téglalakás

IX. kerület

51 M Ft
2 szoba
31 m2
Eladó téglalakás
Eladó téglalakás

IX. kerület, Ferencváros, Soroksári út

155.068 M Ft
2 + 1 szoba
84 m2

Falusi CSOK ingatlanok

Eladó családi ház
Eladó családi ház

Kaposgyarmat

5.9 M Ft
1 szoba
40 m2
Eladó családi ház
Eladó családi ház

Varsány

39.9 M Ft
6 szoba
160 m2
Eladó családi ház
Eladó családi ház

Egerszólát

45 M Ft
3 szoba
120 m2
Eladó családi ház
Eladó családi ház

Orci

59.9 M Ft
3 szoba
101 m2
Eladó családi ház
Eladó családi ház

Tápiógyörgye

14.9 M Ft
2 szoba
67 m2
Eladó családi ház
Eladó családi ház

Tömörkény

8.9 M Ft
2 szoba
80 m2
Eladó családi ház
Eladó családi ház

Szil

25 M Ft
2 szoba
90 m2
Eladó családi ház
Eladó családi ház

Újlengyel

108 M Ft
3 szoba
80 m2