NapForrás 20 - Buda

Eladó téglalakás
Budapest, IX. kerület, 3. emelet

+ 13 kép 1/16
79 000 000 Ft79 M Ft 2 078 947 Ft/m2
1 + 1 szoba
38 m2
3. emelet
építés éve:1930

Részletes adatok

Állapot: Felújított
Fűtés: Egyéb
Extrák: Lift
Energetikai besorolás: Nem adta meg a hirdető

Az OTP Bank lakáshitel ajánlataFizetett hirdetés

+36 30 894
Csiszér Jolán
referens

Érdekel az OTP Bank kedvezményes lakáshitel ajánlata? *

* A kérdésre „Igen” válasz bejelölése esetén, az „Üzenet küldése” gombra kattintva kijelentem, hogy az OTP Bank Nyrt. Adatkezelési tájékoztatójának tartalmát megismertem és tudomásul vettem.

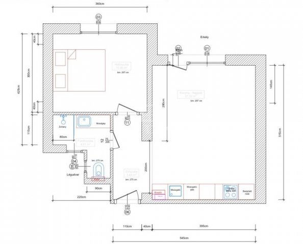
Eladó téglalakás leírása

Eladó egy felújított, téglaépítésű lakás IX. ker. Budapest Rehabilitációs részén csendes környezetben, a Vaskapu utcában.
A lakás a harmadik emeleten helyezkedik el, és 38 négyzetméter alapterületű.
Az ingatlanban egy 1+1 szobás elrendezés található.
A fűtést hőszivattyú biztosítja, ami korszerű és energiatakarékos megoldás(H tarifa).
A melegvízellátást villanybojler biztosítja.
Az ingatlannak 3 négyzetméteres erkélye van, ahonnan utcai kilátás nyílik.
A lakás teljes felújításon esett át, beépített konyhával és garanciális gépezettel, így az új tulajdonos azonnal költözhet.
A házban biciklitároló van, 2nm zárt pince is tartozik a lakáshoz.
ID.388224 ...TOVÁBBI, TÖBBEZRES INGATLAN KÍNÁLAT: www.gdn-ingatlan.hu - GDN azonosító: 388224

Hirdetés feltöltve: 2025. 10. 08. Utoljára módosítva: 2026. 01. 13.

2 szobás téglalakások ára Budapesten

Ebből az összehasonlításból megtudhatod, hogyan viszonyul a lakás ára a környékbeli téglalakások átlagos árához. Ez nem azt jelenti, hogy ennyivel olcsóbb vagy drágább, mint amennyit a lakás ér, hanem hogy ennyivel tér el a környékbeli átlagtól.

Ennek a m² ára
IX. kerület m² ár
Budapest m² ár
2079 e Ft
1723 e Ft -21%
1691 e Ft -23%
Ennek az ára
IX. kerület átlagár
Budapest átlagár
79 M Ft m Ft
110.1 m Ft 28%
90.3 m Ft 13%

Az ingatlan elhelyezkedése

Cím: Budapest, IX. kerület, 3. emelet

Eladó ingatlanok a környékről

Eladó téglalakás
Eladó téglalakás

IX. kerület

95 M Ft
2 szoba
55 m2
Eladó családi ház
Eladó családi ház

XVIII. kerület, Újpéteritelep

119.9 M Ft
3 szoba
113 m2
Eladó téglalakás
Eladó téglalakás

IX. kerület

119.9 M Ft
140 m2
Eladó téglalakás
Eladó téglalakás

III. kerület

89 M Ft
2 szoba
60 m2
Eladó panellakás
Eladó panellakás

XIII. kerület, Újlipótváros, Újlipótváros

106 M Ft
3 szoba
68 m2
Eladó téglalakás
Eladó téglalakás

IX. kerület, Ferencváros, Lechner Ödön fasor

616 M Ft
7 szoba
445 m2
Eladó téglalakás
Eladó téglalakás

IX. kerület

145 M Ft
4 szoba
106 m2
Eladó téglalakás
Eladó téglalakás

IX. kerület

51 M Ft
2 szoba
31 m2
Eladó téglalakás
Eladó téglalakás

VIII. kerület

32.5 M Ft
1 szoba
24 m2
Eladó családi ház
Eladó családi ház

XVIII. kerület, Újpéteritelep

124.9 M Ft
3 szoba
100 m2
Eladó garázs
Eladó garázs

III. kerület, Óbuda, Bécsi út

13.9 M Ft
18 m2
Eladó ikerház
Eladó ikerház

XVI. kerület, Rákosszentmihály, Irha utca

113.9 M Ft
7 szoba
80 m2
Eladó téglalakás
Eladó téglalakás

IX. kerület, Ferencváros, Soroksári út

155.068 M Ft
2 + 1 szoba
84 m2
Eladó téglalakás
Eladó téglalakás

XIV. kerület, Nagyzugló

56 M Ft
1 + 1 szoba
39 m2
Eladó téglalakás
Eladó téglalakás

IX. kerület, Ferencváros, Soroksári út

97.007 M Ft
1 + 1 szoba
54 m2
Eladó családi ház
Eladó családi ház

XXI. kerület, ÍV utca

37.9 M Ft
1 szoba
40 m2
Eladó téglalakás
Eladó téglalakás

IX. kerület

99.5 M Ft
4 szoba
110 m2
Eladó téglalakás
Eladó téglalakás

IX. kerület, Ferencváros, Soroksári út

225.943 M Ft
3 + 1 szoba
114 m2
Eladó téglalakás
Eladó téglalakás

IX. kerület

210 M Ft
3 szoba
111 m2
Eladó téglalakás
Eladó téglalakás

IX. kerület, Vágóhíd utca

184.94 M Ft
4 szoba
102 m2
Eladó téglalakás
Eladó téglalakás

XIII. kerület, Újlipótváros, Pannónia utca

94 M Ft
2 szoba
58 m2
Eladó téglalakás
Eladó téglalakás

IX. kerület, Ferencváros, Soroksári út

102.162 M Ft
1 + 1 szoba
56 m2
Eladó téglalakás
Eladó téglalakás

IX. kerület, Ferencváros, Soroksári út

283.935 M Ft
4 + 1 szoba
149 m2
Eladó téglalakás
Eladó téglalakás

IX. kerület

153.5 M Ft
3 szoba
74 m2

Falusi CSOK ingatlanok

Eladó családi ház
Eladó családi ház

Csemő

110 M Ft
5 szoba
171 m2
Eladó családi ház
Eladó családi ház

Tabajd

79 M Ft
4 szoba
82 m2
Eladó családi ház
Eladó családi ház

Szarvaskend

26.9 M Ft
2 szoba
83 m2
Eladó családi ház
Eladó családi ház

Tabdi

95 M Ft
45 szoba
1490 m2
Eladó családi ház
Eladó családi ház

Ceglédbercel

139.99 M Ft
3 + 5 szoba
172 m2
Eladó családi ház
Eladó családi ház

Újszilvás

23 M Ft
3 + 1 szoba
100 m2
Eladó családi ház
Eladó családi ház

Parád

25 M Ft
2 szoba
80 m2
Eladó családi ház
Eladó családi ház

Fülöpháza

110 M Ft
10 + 3 szoba
330 m2