Avico Greentop

Eladó téglalakás
Budapest, IV. kerület, földszint

+ 17 kép 1/20
110 000 000 Ft110 M Ft 1 279 070 Ft/m2
5 szoba
86 m²
földszint
építés éve:1950

Részletes adatok

Fűtés: Gázkazán
Emelet: földszint
Energetikai besorolás: Nem adta meg a hirdető

Az OTP Bank lakáshitel ajánlataFizetett hirdetés

+36 1 690
Czéró Krisztina
Duna House Szent István tér

Érdekel az OTP Bank kedvezményes lakáshitel ajánlata? *

* A kérdésre „Igen” válasz bejelölése esetén, az „Üzenet küldése” gombra kattintva kijelentem, hogy az OTP Bank Nyrt. Adatkezelési tájékoztatójának tartalmát megismertem és tudomásul vettem.

Eladó téglalakás leírása

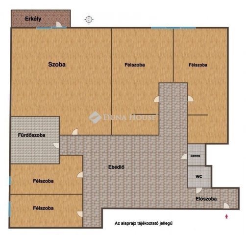
Új Élet, Új Otthon!Újpest zöldövezetben a méltán kedvelt, Görgey Artúr úton várja új tulajdonosait ez a 86 nm.-es, napfényes, 4 éve teljeskörű felújításon átesett, 10 lakásos tégla társasház, magas földszintjén található, erkélyes lakás. Tágas, napfényes terek, étkezős konyha, félszobák, kamra, sarokkádas fürdőszoba várja az ide költözőket.A lakást ajánlom, több gyerekes családoknak, frissen összeköltöző mozaik családoknak a remek kialakítása miatt.A felújítás során a villany vezetékek, csövek, hideg és meleg burkolatok ablakok, bejárati ajtó cseréje megtörtént.Magas minőségű BOSH típusú kombi cirkó biztosítja a fűtést és a meleg vizet.Az új műanyag nyílászárókon szúnyogháló és redőny.A 3 méteres belmagasság tágasabb érzetet ad az egész lakásnak.Jelenleg az egyik nagyobbik szoba ketté van osztva,de ez bármikor visszabontható.A tágas konyhában lévő étkezőben, kellemes hangulatú vasárnapi ebédek, vacsorák megrendezésére tökéletesen alkalmas.

110000000 Ft

Referencia szám: LK074509

Hirdetés feltöltve: 2026. 04. 02.

5 szobás téglalakások ára Budapesten

Ebből az összehasonlításból megtudhatod, hogyan viszonyul a lakás ára a környékbeli téglalakások átlagos árához. Ez nem azt jelenti, hogy ennyivel olcsóbb vagy drágább, mint amennyit a lakás ér, hanem hogy ennyivel tér el a környékbeli átlagtól.

Ennek a m² ára
IV. kerület m² ár
Budapest m² ár
1279 e Ft
1339 e Ft 4%
1628 e Ft 21%
Ennek az ára
IV. kerület átlagár
Budapest átlagár
110 M Ft m Ft
194.9 m Ft 44%
247.2 m Ft 56%

Az ingatlan elhelyezkedése

Cím: Budapest, IV. kerület, földszint

Eladó ingatlanok a környékről

XVII. kerület
Eladó családi ház

Budapest, XVII. kerület

95.9 M Ft
3 szoba
86 m²
VII. kerület, Külső Erzsébetváros, Péterfy Sándor utca 34
Eladó téglalakás

Budapest, VII. kerület

97.9 M Ft
1 + 1 szoba
46 m²
VII. kerület, Külső Erzsébetváros, Péterfy Sándor utca 34
Eladó téglalakás

Budapest, VII. kerület

76.878 M Ft
1 + 1 szoba
41 m²
IV. kerület
Eladó téglalakás

Budapest, IV. kerület

189.9 M Ft
4 szoba
84 m²
IV. kerület
Eladó téglalakás

Budapest, IV. kerület

135 M Ft
4 szoba
98 m²
IV. kerület
Eladó téglalakás

Budapest, IV. kerület

135 M Ft
3 + 1 szoba
98 m²
VII. kerület, Külső Erzsébetváros, Péterfy Sándor utca 34
Eladó téglalakás

Budapest, VII. kerület

149.1 M Ft
1 + 2 szoba
74 m²
IV. kerület
Eladó téglalakás

Budapest, IV. kerület

194.9 M Ft
4 szoba
87 m²
XXI. kerület
Eladó téglalakás

Budapest, XXI. kerület

79.9 M Ft
2 szoba
49 m²
IV. kerület
Eladó téglalakás

Budapest, IV. kerület

109.9 M Ft
3 szoba
77 m²
IV. kerület
Eladó téglalakás

Budapest, IV. kerület

226.6 M Ft
5 szoba
145 m²
IV. kerület
Eladó téglalakás

Budapest, IV. kerület

83.9 M Ft
3 szoba
73 m²
VII. kerület, Külső Erzsébetváros, Péterfy Sándor utca 34
Eladó téglalakás

Budapest, VII. kerület

69.2 M Ft
1 szoba
33 m²
VII. kerület, Külső Erzsébetváros, Péterfy Sándor utca 34
Eladó téglalakás

Budapest, VII. kerület

76.878 M Ft
1 + 1 szoba
41 m²
VII. kerület, Külső Erzsébetváros, Péterfy Sándor utca 34
Eladó téglalakás

Budapest, VII. kerület

123.3 M Ft
1 + 2 szoba
68 m²
IV. kerület
Eladó téglalakás

Budapest, IV. kerület

96.9 M Ft
3 szoba
89 m²
VII. kerület, Külső Erzsébetváros, Péterfy Sándor utca 34
Eladó téglalakás

Budapest, VII. kerület

92.329 M Ft
2 szoba
46 m²
XVII. kerület
Eladó panellakás

Budapest, XVII. kerület

72.5 M Ft
3 szoba
58 m²
VII. kerület, Külső Erzsébetváros, Péterfy Sándor utca 34
Eladó téglalakás

Budapest, VII. kerület

92.329 M Ft
2 szoba
46 m²
IV. kerület
Eladó téglalakás

Budapest, IV. kerület

32 M Ft
1 szoba
25 m²
VII. kerület, Külső Erzsébetváros, Péterfy Sándor utca 34
Eladó téglalakás

Budapest, VII. kerület

69.2 M Ft
1 szoba
33 m²
IV. kerület
Eladó téglalakás

Budapest, IV. kerület

79.99 M Ft
2 szoba
54 m²
IV. kerület
Eladó téglalakás

Budapest, IV. kerület

111.33 M Ft
4 szoba
83 m²
VII. kerület, Külső Erzsébetváros, Péterfy Sándor utca 34
Eladó téglalakás

Budapest, VII. kerület

149.1 M Ft
1 + 2 szoba
74 m²

Falusi CSOK ingatlanok

Tápióság
Eladó családi ház

Tápióság

59.9 M Ft
4 szoba
99 m²
Cserépfalu
Eladó családi ház

Cserépfalu

58 M Ft
6 szoba
184 m²
Kadarkút, Körmendi utca
Eladó családi ház

Kadarkút

21 M Ft
3 szoba
82 m²
Hosszúpereszteg
Eladó családi ház

Hosszúpereszteg

27.9 M Ft
4 szoba
121 m²
Nagyréde
Eladó családi ház

Nagyréde

69.5 M Ft
4 szoba
110 m²
Bag
Eladó családi ház

Bag

110 M Ft
5 szoba
320 m²
Onga
Eladó családi ház

Onga

52.9 M Ft
5 szoba
110 m²
Szigetcsép
Eladó családi ház

Szigetcsép

110 M Ft
3 szoba
137 m²