Eladó téglalakás
Budapest, III. kerület, 1. emelet

+ 17 kép 1/20
97 500 000 Ft97.5 M Ft 1 335 616 Ft/m2
2 + 1 szoba
73 m2
1. emelet
építés éve:1970

Részletes adatok

Fűtés: Távfűtés
Extrák: Lift
Energetikai besorolás: Nem adta meg a hirdető

Az OTP Bank lakáshitel ajánlataFizetett hirdetés

+36 30 544
Reich Melinda
Otp Ingatlanpont Falk Miksa

Érdekel az OTP Bank kedvezményes lakáshitel ajánlata? *

* A kérdésre „Igen” válasz bejelölése esetén, az „Üzenet küldése” gombra kattintva kijelentem, hogy az OTP Bank Nyrt. Adatkezelési tájékoztatójának tartalmát megismertem és tudomásul vettem.

Eladó téglalakás leírása

****ELEGÁNS ÓBUDAI ****HITELEZHETŐ LAKÁS*****

Kitűnő ajánlat!!!

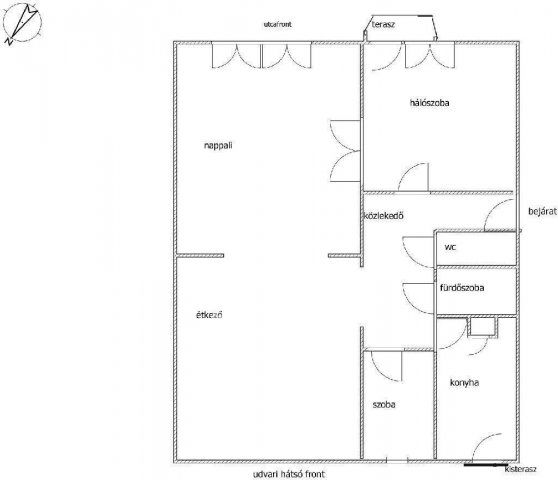
Eladásra kínálok egy elegáns, nagypolgári, 73 m2-es, 2,5 szobás, nagy étkezős, nagy hálószobás, beépített erkélyes, 3 m belmagasságú első emeleti lakást, liftes 4 szintes tégla épületben. A Kolozsi tér közelsége, rendkívül jó lokációt eredményez, a jó szigetelésnek köszönhetően egy csendes, igazi elegáns otthon tárul elénk. Az épület, a lépcsőház, a lift rendezett, az épület hátsó része mögött pedig egy zárt kert várja nagy fákkal, kiülővel a csendes elvonulásra vágyókat.

Biztonsági ajtón keresztül jutunk az ingatlanba, ahol egy mára már letünni készülő kor eleganciájával, korhű bútorzattal, igényes korabeli és folyamatosan megújult családi otthon tárul elénk. Tágas nappali egy külön nagy étkező térrel elválasztva, de mégis egyben. Nem recsegő tölgyfa parketta nagyon jó minőségben, koloniál bútorok, kétoldalas bár, nyitható 6 személyes étkezőgarnitúra nagypolgári stílusban. Egy hatalmas hálószoba, beépített erkéllyel, egy kisebb szoba, külön WC, fürdőszoba káddal és zuhanyfülkével, mosógéppel, modern konyha pár éves nagyon szép konyhabútorral, mosogatógéppel, gáztűzhellyel, elszívóval,valamint egy hideg spejz. A hálóból egy beépített zárt terasz nyílik az utcafrontra, reggeli kávézáshoz kitűnő. A konyhánál is a jó szellőzést egy francia 1 m2-es terasz biztosítja, ami a hátsó kertre néz.
Komfortérzetet a szabályozható radiátorok nyújtanak, redőnyös ablakok, szigetelt falak, télen meleg, nyáron hűvös, és meglepően csendes családi otthon várja leendő tulajdonosát. Kitűnő közlekedés,busz, hév, villamos percekre,minden a bevásárláshoz, a napi élethez adott. Közös költség jelenleg 40.000,- Ft az elvégzett lift korszerűsítés, ill. a tető cseréje miatt. Ez később kevesebb lesz. A többi rezsi kb.30.000,- Ft.

Tisztasági festéssel azonnal költözhető az ingatlan, tehermentes, hitelezhető, 3 % Otthon Start hitelre is!
Teljeskörű hitelügyintézéssel, ügyvédi háttérrel állunk rendelkezésére!
Kérdésével a nap bármely szakában forduljon hozzám bizalommal.

Referencia szám: M316128

Hirdetés feltöltve: 2025. 10. 28. Utoljára módosítva: 2025. 10. 28.

3 szobás téglalakások ára Budapesten

Ebből az összehasonlításból megtudhatod, hogyan viszonyul a lakás ára a környékbeli téglalakások átlagos árához. Ez nem azt jelenti, hogy ennyivel olcsóbb vagy drágább, mint amennyit a lakás ér, hanem hogy ennyivel tér el a környékbeli átlagtól.

Ennek a m² ára
III. kerület m² ár
Budapest m² ár
1336 e Ft
1758 e Ft 24%
1692 e Ft 21%
Ennek az ára
III. kerület átlagár
Budapest átlagár
97.5 M Ft m Ft
138.2 m Ft 29%
133 m Ft 27%

Az ingatlan elhelyezkedése

Cím: Budapest, III. kerület, 1. emelet

Eladó ingatlanok a környékről

Eladó téglalakás
Eladó téglalakás

III. kerület, Testvérhegy

359 M Ft
6 szoba
200 m2
Eladó téglalakás
Eladó téglalakás

III. kerület, Táborhegy, Farkastorki út

78.9 M Ft
1 + 2 szoba
60 m2
Eladó téglalakás
Eladó téglalakás

III. kerület

120.216 M Ft
3 szoba
69 m2
Eladó téglalakás
Eladó téglalakás

III. kerület

134.147 M Ft
3 szoba
71 m2
Eladó téglalakás
Eladó téglalakás

III. kerület, Filatorigát, Fehéregyházi út

135.143 M Ft
3 szoba
74 m2
Eladó téglalakás
Eladó téglalakás

III. kerület, Ürömhegy

157 M Ft
3 szoba
90 m2
Eladó téglalakás
Eladó téglalakás

XIX. kerület

43 M Ft
2 szoba
45 m2
Eladó téglalakás
Eladó téglalakás

III. kerület, Testvérhegy, III. Erdőalja út külső része

179 M Ft
4 szoba
157 m2
Eladó téglalakás
Eladó téglalakás

III. kerület

146.846 M Ft
3 szoba
76 m2
Eladó téglalakás
Eladó téglalakás

XIII. kerület, Angyalföld, Fiastyúk utca

41.99 M Ft
1 + 1 szoba
34 m2
Eladó téglalakás
Eladó téglalakás

VII. kerület, Belső Erzsébetváros, Erzsébet körút

89.9 M Ft
1 + 1 szoba
71 m2
Eladó téglalakás
Eladó téglalakás

VII. kerület, Belső Erzsébetváros, Király utca

117.8 M Ft
2 szoba
62 m2
Eladó téglalakás
Eladó téglalakás

III. kerület, Testvérhegy

379 M Ft
5 szoba
240 m2
Eladó téglalakás
Eladó téglalakás

III. kerület

117.015 M Ft
3 szoba
78 m2
Eladó téglalakás
Eladó téglalakás

VIII. kerület

48.9 M Ft
1 szoba
25 m2
Eladó téglalakás
Eladó téglalakás

VIII. kerület

131.57 M Ft
2 szoba
66 m2
Eladó családi ház
Eladó családi ház

XXII. kerület, Budafok, Baross utca

239 M Ft
6 + 1 szoba
200 m2
Eladó téglalakás
Eladó téglalakás

III. kerület, Remetehegy, Perényi út

189 M Ft
3 szoba
75 m2
Eladó téglalakás
Eladó téglalakás

XV. kerület, Újpalota

52.5 M Ft
1 + 1 szoba
35 m2
Eladó téglalakás
Eladó téglalakás

VII. kerület, Belső Erzsébetváros, Király utca

91.2 M Ft
2 szoba
48 m2
Eladó téglalakás
Eladó téglalakás

I. kerület, Víziváros, Batthyány utca

135 M Ft
3 + 1 szoba
85 m2
Eladó téglalakás
Eladó téglalakás

III. kerület

84.348 M Ft
2 szoba
44 m2
Eladó téglalakás
Eladó téglalakás

III. kerület

124.816 M Ft
3 szoba
78 m2
Eladó téglalakás
Eladó téglalakás

VI. kerület, Külső Terézváros, Szófia utca

119.9 M Ft
4 szoba
103 m2

Falusi CSOK ingatlanok

Eladó családi ház
Eladó családi ház

Iváncsa

73.9 M Ft
1 + 3 szoba
97 m2
Eladó családi ház
Eladó családi ház

Galgagyörk

30 M Ft
3 szoba
123 m2
Eladó családi ház
Eladó családi ház

Sellye

43 M Ft
5 szoba
150 m2
Eladó családi ház
Eladó családi ház

Sárisáp, Orgona utca

60 M Ft
4 szoba
145 m2
Eladó családi ház
Eladó családi ház

Darnózseli

79.9 M Ft
4 szoba
104 m2
Eladó családi ház
Eladó családi ház

Kisnána

27.9 M Ft
4 szoba
180 m2
Eladó családi ház
Eladó családi ház

Kadarkút

39.9 M Ft
5 + 1 szoba
150 m2
Eladó családi ház
Eladó családi ház

Újszilvás

9.5 M Ft
3 szoba
57 m2