Eladó téglalakás
Budapest, III. kerület, Óbuda, 1. emelet 
Részletes adatok
Az OTP Bank lakáshitel ajánlataFizetett hirdetés
Induló törlesztőrészlet
101 262 Ft /hóTörlesztőrészlet a 13. hónaptól
129 106 Ft /hóInduló törlesztőrészlet
135 016 Ft /hóTörlesztőrészlet a 13. hónaptól
172 142 Ft /hóA tájékoztatás nem teljes körű és nem minősül ajánlattételnek. Az OTP Évnyerő Lakáshitelei 1 éves türelmi idős kölcsönök, amellyel az első 12 hónapban alacsonyabb a havi törlesztőrészlet. A tőke törlesztését a 13. hónaptól kell megkezdeni.
Eladó téglalakás leírása
III. kerület – Csendes, zöldövezeti zsákutcában eladó igényes téglalakás!
 
Egy különleges hangulatú, napfényes emeleti lakás eladó a III. kerület egyik legnyugodtabb, zöldövezeti részén, mindössze hat házas zsákutcában.
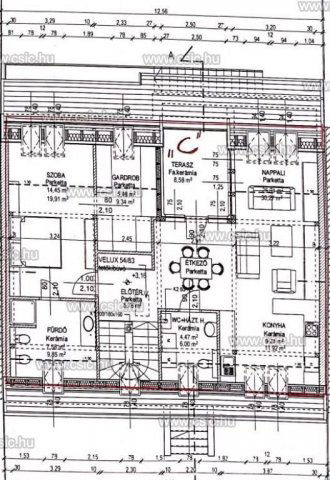
A lakás bruttó 110 m² (nettó 93 m²) alapterületű, és egy 2008-ban épült, háromlakásos társasház emeletén található.
 
Főbb jellemzők:
 
- tágas amerikai konyhás nappali + 2 szoba + külön gardróbszoba
- 8 m²-es vízszigetelt terasz, amely a kertre néz 
- nagy padlástér, kiváló tárolási lehetőséggel
- duplakomfortos kialakítás, két fürdőszoba toalettel
- déli fekvés, szép világos 
- padlófűtés az egész lakásban
- 3 okos klíma 
- kétkörös termosztáttal vezérelt gázkazán (évente szervízelve)
- 15 cm-es külső szigetelés
- tetőszerkezet hibátlan állapotban, extra szigeteléssel
- hővédő fóliás ablakok
- kamerarendszer és riasztórendszer
- fedett autóbeálló + 2 további ingyenes parkolóhely az épület előtt kizárólagosan a lakáshoz tartozik
- a bútorzat 80%-a beépített, a vételár részét képezi
 
A kiváló szigetelésnek és modern fűtési rendszernek köszönhetően az ingatlan rendkívül kedvező fenntartású, a rezsi teljes egészében a rezsicsökkentés határain belül marad. Külön mérőórák !
 
2022-ben komoly felújítások történtek, így az ingatlan műszakilag és esztétikailag is kiváló állapotban van.
 
Környék és közlekedés:
 
- rendkívül csendes, biztonságos, zöldövezeti környezet
- közelben bevásárlási lehetőségek, iskola, óvoda, buszmegálló
- kiváló közlekedés: autóval kb. 20 perc a belváros, a HÉV és több buszjárat is gyorsan elérhető
 
Ez az otthon ideális választás mindazoknak, akik nyugalmat, teret és kényelmet keresnek egy kiváló állapotú, modern lakásban, mégis szeretnének közel maradni a városhoz.
 
Várom megtisztelő hívását a hét bármely napján, hitel ügyintéző kollégám ingyenes segítséget nyújt!
Hirdetés feltöltve: 2025. 05. 29. Utoljára módosítva: 2025. 10. 11.
4 szobás téglalakások ára Budapesten
Ebből az összehasonlításból megtudhatod, hogyan viszonyul a lakás ára a környékbeli téglalakások átlagos árához. Ez nem azt jelenti, hogy ennyivel olcsóbb vagy drágább, mint amennyit a lakás ér, hanem hogy ennyivel tér el a környékbeli átlagtól.
Az ingatlan elhelyezkedése
Cím: Budapest, III. kerület, Óbuda, 1. emelet
 
 
 
 
 
 
 
 
 
 
 
 
 
 
 
 
 
 
 
 
 
 
 
 
 
 
 
 
 
 
 
 
 
 
