Avico Greentop

Eladó téglalakás
Budapest, II. kerület

+ 7 kép 1/10
120 000 000 Ft120 M Ft 1 538 462 Ft/m2
2 szoba
78 m²

Részletes adatok

Fűtés: Egyéb
Energetikai besorolás: Nem adta meg a hirdető

Az OTP Bank lakáshitel ajánlataFizetett hirdetés

+36 70 526
Dauner Regina
Családi Ingatlan

Érdekel az OTP Bank kedvezményes lakáshitel ajánlata? *

* A kérdésre „Igen” válasz bejelölése esetén, az „Üzenet küldése” gombra kattintva kijelentem, hogy az OTP Bank Nyrt. Adatkezelési tájékoztatójának tartalmát megismertem és tudomásul vettem.

Eladó téglalakás leírása

Prémium lakás hatalmas terasszal, erdei környezetben – II. kerület

Budapest II. kerületének egyik legkedveltebb, csendes és zöldövezeti részén kínálunk megvételre egy új építésű, modern társasházban található, kivételes adottságokkal rendelkező lakást. A 3 emeletes, mindössze 18 lakásos épület erdei környezetben helyezkedik el, így ideális választás mindazok számára, akik a természet közelségét és a városi kényelem egyensúlyát keresik.

A kínált lakás – 1. emelet, 3-as lakás:
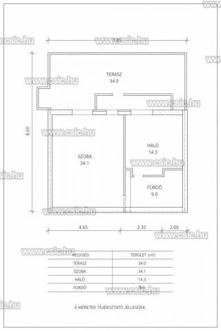
Ez a 78 m²-es, kiváló elosztású otthon egyedülálló módon egy 34 m²-es, tágas terasszal egészül ki.

Amerikai konyhás nappali: 34,1 m²
Hálószoba: 14,3 m²
Fürdőszoba: 9 m²
Előszoba: 3,5 m²

Műszaki tartalom és felszereltség:
- Helyiségenként szabályozható, több zónás elektromos padlófűtés (~99% hatékonyság)
- Hűtő-fűtő klímarendszer, akár -30°C-ig
- Dupla tartályos villanybojler
- 25 cm vastag homlokzati szigetelés
- Hőszigetelt műanyag nyílászárók
- Prémium beltéri ajtók

Belső kialakítás és extrák:
- Teljesen gépesített, beépített konyha
- Komplett fürdőszoba
- Alap világítás
- Modern, érintős üveg kapcsolók

Egyéb információk:
- Udvari gépkocsi beálló elérhető
- Új építésű ingatlan, ügyvédi használati megosztással
- Hitel igénybe vehető

Elhelyezkedés:
A Kolosy tér autóval néhány perc alatt elérhető, a tömegközlekedés kiváló, buszmegálló a közelben.

A hirdetésben szereplő utolsó 5 fénykép referenciakép a már készen lévő, konyha, fürdőszoba és beépített szekrények bemutatására szolgál.

Átadás: szerződést követő 90 napon belül • 40% önerő • Hitel igénybe vehető

További információért és megtekintésért keressen bizalommal!

Hirdetés feltöltve: 2026. 04. 23. Utoljára módosítva: 2026. 05. 10.

2 szobás téglalakások ára Budapesten

Ebből az összehasonlításból megtudhatod, hogyan viszonyul a lakás ára a környékbeli téglalakások átlagos árához. Ez nem azt jelenti, hogy ennyivel olcsóbb vagy drágább, mint amennyit a lakás ér, hanem hogy ennyivel tér el a környékbeli átlagtól.

Ennek a m² ára
II. kerület m² ár
Budapest m² ár
1538 e Ft
1973 e Ft 22%
1690 e Ft 9%
Ennek az ára
II. kerület átlagár
Budapest átlagár
120 M Ft m Ft
116.6 m Ft -3%
88.7 m Ft -35%

Az ingatlan elhelyezkedése

Cím: Budapest, II. kerület

Eladó ingatlanok a környékről

II. kerület
Eladó téglalakás

Budapest, II. kerület

559.9 M Ft
4 szoba
169 m²
XVI. kerület, Sashalom, Rovás utca
Eladó családi ház

Budapest, XVI. kerület

349.9 M Ft
12 szoba
478 m²
II. kerület, Lipótmező, Hűvösvölgyi út
Eladó téglalakás

Budapest, II. kerület

199.99 M Ft
6 szoba
115 m²
XIV. kerület
Eladó panellakás

Budapest, XIV. kerület

61.5 M Ft
1 + 1 szoba
46 m²
XV. kerület
Eladó téglalakás

Budapest, XV. kerület

54.9 M Ft
2 szoba
42 m²
II. kerület
Eladó téglalakás

Budapest, II. kerület

325 M Ft
4 + 1 szoba
180 m²
VII. kerület
Eladó téglalakás

Budapest, VII. kerület

113.9 M Ft
5 szoba
134 m²
II. kerület
Eladó téglalakás

Budapest, II. kerület

266.6 M Ft
3 szoba
75 m²
XIII. kerület
Eladó panellakás

Budapest, XIII. kerület

84.9 M Ft
2 szoba
48 m²
II. kerület
Eladó téglalakás

Budapest, II. kerület

421.6 M Ft
5 szoba
138 m²
II. kerület
Eladó téglalakás

Budapest, II. kerület

742.305 M Ft
5 szoba
321 m²
VII. kerület
Eladó téglalakás

Budapest, VII. kerület

95 M Ft
2 szoba
77 m²
II. kerület
Eladó téglalakás

Budapest, II. kerület

85 M Ft
1 szoba
56 m²
XIII. kerület
Eladó panellakás

Budapest, XIII. kerület

83 M Ft
3 szoba
68 m²
II. kerület
Eladó téglalakás

Budapest, II. kerület

329 M Ft
4 + 1 szoba
153 m²
II. kerület, Országút, Margit körút
Eladó téglalakás

Budapest, II. kerület

105 M Ft
2 + 1 szoba
81 m²
XIII. kerület, Angyalföld, Béke tér
Eladó téglalakás

Budapest, XIII. kerület

88 M Ft
2 szoba
43 m²
XIX. kerület
Eladó panellakás

Budapest, XIX. kerület

64.9 M Ft
1 + 2 szoba
58 m²
II. kerület
Eladó téglalakás

Budapest, II. kerület

270.4 M Ft
3 szoba
73 m²
II. kerület
Eladó téglalakás

Budapest, II. kerület

325 M Ft
4 szoba
156 m²
VII. kerület
Eladó téglalakás

Budapest, VII. kerület

85 M Ft
2 szoba
77 m²
II. kerület
Eladó sorház

Budapest, II. kerület

209.79 M Ft
5 szoba
196 m²
VII. kerület
Eladó téglalakás

Budapest, VII. kerület

89.9 M Ft
4 szoba
70 m²
II. kerület
Eladó téglalakás

Budapest, II. kerület

450 M Ft
4 szoba
138 m²

Falusi CSOK ingatlanok

Nagyszénás
Eladó családi ház

Nagyszénás

14 M Ft
3 szoba
81 m²
Zákányfalu
Eladó családi ház

Zákányfalu

14.5 M Ft
2 szoba
80 m²
Badacsonytomaj
Eladó családi ház

Badacsonytomaj

285 M Ft
4 szoba
230 m²
Bakonyszentkirály
Eladó családi ház

Bakonyszentkirály

99.99 M Ft
5 szoba
126 m²
Balatonszemes
Eladó téglalakás

Balatonszemes

91.5 M Ft
2 szoba
0 m²
Németkér
Eladó családi ház

Németkér

149.9 M Ft
2 szoba
540 m²
Nagyszentjános
Eladó téglalakás

Nagyszentjános

74.9 M Ft
4 szoba
117 m²
Bakonyszentlászló
Eladó családi ház

Bakonyszentlászló

48.5 M Ft
3 szoba
103 m²