Astora Art House

Eladó téglalakás
Budapest, II. kerület

+ 11 kép 1/14
230 000 000 Ft230 M Ft 1 932 773 Ft/m2
4 szoba
119 m²

Részletes adatok

Fűtés: Egyéb
Energetikai besorolás: Nem adta meg a hirdető

Az OTP Bank lakáshitel ajánlataFizetett hirdetés

+36 70 526
Dauner Regina
Családi Ingatlan

Érdekel az OTP Bank kedvezményes lakáshitel ajánlata? *

* A kérdésre „Igen” válasz bejelölése esetén, az „Üzenet küldése” gombra kattintva kijelentem, hogy az OTP Bank Nyrt. Adatkezelési tájékoztatójának tartalmát megismertem és tudomásul vettem.

Eladó téglalakás leírása

Prémium, panorámás lakás két terasszal, erdei környezetben – II. kerület

Budapest II. kerületének egyik legkedveltebb, csendes és zöldövezeti részén kínálunk megvételre egy új építésű, modern társasházban található, kivételes adottságokkal rendelkező lakást. A 3 emeletes, mindössze 18 lakásos épület erdei környezetben helyezkedik el, amely tökéletes egyensúlyt teremt a természet közelsége és a városi élet között.

A kínált lakás – 2. emelet, 5-ös lakás:
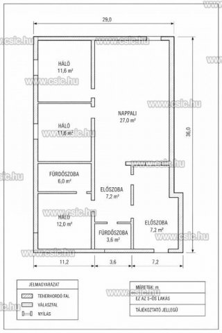
Ez a 119 m²-es, tágas és kiváló elosztású lakás két terasszal rendelkezik (29 m² és 11 m²), amelyekről gyönyörű, panorámás kilátás nyílik.

Amerikai konyhás nappali: 36 m²
Hálószoba 11,6 m²
Hálószoba 11m²
Hálószoba 12 m²
Fürdőszoba 4,5m²
Fürdőszoba 3,6 m²
Fürdőszoba 6m²
Előszoba: 7,2 m²
Közlekedő: 7,5 m²

A lakás kialakítása ideális családok számára is, a több fürdőszoba és a jól elkülönülő terek maximális kényelmet biztosítanak.

Műszaki tartalom és felszereltség:
- Helyiségenként szabályozható, több zónás elektromos padlófűtés (~99% hatékonyság)
- Hűtő-fűtő klímarendszer, akár -30°C-ig
- Dupla tartályos villanybojler
- 25 cm vastag homlokzati szigetelés
- Hőszigetelt műanyag nyílászárók
- Prémium beltéri ajtók

Belső kialakítás és extrák:
- Választható burkolatok 30.000 Ft/m² értékhatárig
- Teljesen gépesített, beépített konyha
- Komplett fürdőszobák
- Alap világítás
- Modern, érintős üveg kapcsolók

Egyéb információk:
- Udvari gépkocsi beállók elérhetők
- Új építésű ingatlan, ügyvédi használati megosztással
- Hitel igénybe vehető

Elhelyezkedés:
A Kolosy tér autóval néhány perc alatt elérhető, a tömegközlekedés kiváló, buszmegálló a közelben található.

Átadás: szerződést követő 90 napon belül • 40% önerő • Hitel igénybe vehető

A hirdetésben szereplő utolsó 4 fénykép referenciakép, a már készen lévő, konyha,fürdőszoba bemutatására szolgál.

További információért és megtekintésért keressen bizalommal!

Hirdetés feltöltve: 2026. 04. 23. Utoljára módosítva: 2026. 05. 10.

4 szobás téglalakások ára Budapesten

Ebből az összehasonlításból megtudhatod, hogyan viszonyul a lakás ára a környékbeli téglalakások átlagos árához. Ez nem azt jelenti, hogy ennyivel olcsóbb vagy drágább, mint amennyit a lakás ér, hanem hogy ennyivel tér el a környékbeli átlagtól.

Ennek a m² ára
II. kerület m² ár
Budapest m² ár
1933 e Ft
2181 e Ft 11%
1757 e Ft -10%
Ennek az ára
II. kerület átlagár
Budapest átlagár
230 M Ft m Ft
261.4 m Ft 12%
183.6 m Ft -25%

Az ingatlan elhelyezkedése

Cím: Budapest, II. kerület

Eladó ingatlanok a környékről

II. kerület
Eladó téglalakás

Budapest, II. kerület

558.682 M Ft
5 szoba
287 m²
II. kerület
Eladó téglalakás

Budapest, II. kerület

559.9 M Ft
4 szoba
169 m²
II. kerület, Rózsadomb, Szemlőhegy
Eladó téglalakás

Budapest, II. kerület

250 M Ft
4 szoba
142 m²
II. kerület
Eladó téglalakás

Budapest, II. kerület

270.4 M Ft
3 szoba
73 m²
II. kerület
Eladó téglalakás

Budapest, II. kerület

390.687 M Ft
2 szoba
221 m²
II. kerület, Lipótmező, Hűvösvölgyi út
Eladó téglalakás

Budapest, II. kerület

199.99 M Ft
6 szoba
115 m²
XX. kerület
Eladó téglalakás

Budapest, XX. kerület

41.9 M Ft
2 szoba
53 m²
II. kerület
Eladó téglalakás

Budapest, II. kerület

325 M Ft
4 + 1 szoba
180 m²
II. kerület
Eladó téglalakás

Budapest, II. kerület

187 M Ft
2 szoba
64 m²
II. kerület, Szemlőhegy, Szeréna út
Eladó téglalakás

Budapest, II. kerület

187 M Ft
2 szoba
64 m²
XIII. kerület
Eladó téglalakás

Budapest, XIII. kerület

79.9 M Ft
2 szoba
59 m²
XIII. kerület
Eladó panellakás

Budapest, XIII. kerület

83 M Ft
3 szoba
68 m²
VIII. kerület
Eladó téglalakás

Budapest, VIII. kerület

69.9 M Ft
2 szoba
77 m²
II. kerület
Eladó téglalakás

Budapest, II. kerület

390.687 M Ft
3 szoba
220 m²
II. kerület
Eladó sorház

Budapest, II. kerület

209.79 M Ft
5 szoba
196 m²
III. kerület
Eladó téglalakás

Budapest, III. kerület

65.9 M Ft
2 szoba
49 m²
II. kerület
Eladó téglalakás

Budapest, II. kerület

266.6 M Ft
3 szoba
75 m²
XXII. kerület
Eladó téglalakás

Budapest, XXII. kerület

62.5 M Ft
2 szoba
44 m²
II. kerület
Eladó téglalakás

Budapest, II. kerület

329 M Ft
4 + 1 szoba
153 m²
II. kerület
Eladó téglalakás

Budapest, II. kerület

450 M Ft
4 szoba
138 m²
XI. kerület
Eladó téglalakás

Budapest, XI. kerület

82.9 M Ft
3 szoba
110 m²
XIX. kerület
Eladó panellakás

Budapest, XIX. kerület

64.9 M Ft
1 + 2 szoba
58 m²
XIV. kerület
Eladó panellakás

Budapest, XIV. kerület

61.5 M Ft
1 + 1 szoba
46 m²
VII. kerület
Eladó téglalakás

Budapest, VII. kerület

85 M Ft
2 szoba
77 m²

Falusi CSOK ingatlanok

Kutas
Eladó családi ház

Kutas

17.9 M Ft
2 + 1 szoba
83 m²
Tab, Rákóczi utca 45
Eladó családi ház

Tab

17.13 M Ft
1 + 1 szoba
105 m²
Fonyód
Eladó téglalakás

Fonyód

175 M Ft
3 szoba
79 m²
Csurgó
Eladó téglalakás

Csurgó

12.5 M Ft
2 szoba
54 m²
Hegyeshalom, Margaréta utca 12
Eladó téglalakás

Hegyeshalom

35.92 M Ft
1 szoba
31 m²
Nagyhegyes
Eladó családi ház

Nagyhegyes

92900 M Ft
3 + 1 szoba
120 m²
Kaposgyarmat
Eladó családi ház

Kaposgyarmat

695 M Ft
6 szoba
610 m²
Szigetújfalu
Eladó családi ház

Szigetújfalu

71.65 M Ft
2 + 1 szoba
81 m²