Seven Pearl

Eladó téglalakás
Budapest, II. kerület, 2. emelet

+ 11 kép 1/14
154 900 000 Ft154.9 M Ft 1 844 048 Ft/m2
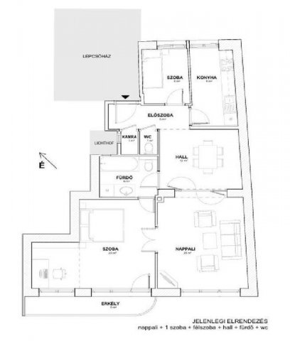
2 + 1 szoba
84 m²
2. emelet
építés éve:1940

Részletes adatok

Fűtés: Házközponti
Emelet: 2. emelet
Energetikai besorolás: Nem adta meg a hirdető

Az OTP Bank lakáshitel ajánlataFizetett hirdetés

+36 20 316
Kroknay-Szabó Mária
referens

Érdekel az OTP Bank kedvezményes lakáshitel ajánlata? *

* A kérdésre „Igen” válasz bejelölése esetén, az „Üzenet küldése” gombra kattintva kijelentem, hogy az OTP Bank Nyrt. Adatkezelési tájékoztatójának tartalmát megismertem és tudomásul vettem.

Eladó téglalakás leírása

Budai életérzés a Rózsadomb lábánál. Tágas, erkélyes családi otthon a II. kerületben
Eladó egy különleges hangulatú, Bauhaus stílusú társasház legfelső szintjén található lakás a II. kerületi Kút utcában, a budai oldal egyik legélhetőbb, legkeresettebb részén.
Ez az otthon tökéletes választás mindazok számára, akik szeretnék ötvözni a városi kényelmet a nyugodt, zöld budai környezettel, és ideális lehet családok számára, akik hosszú távra terveznek.
Főbb jellemzők: 84 nm alapterület, 2 + fél szoba + hall (könnyen alakítható akár 3?4 szobássá), erkélyes, világos terek, 2,9 m belmagasság, két tájolás (DNY,ÉK) egész napos természetes fény, legfelső szint, nincs felső szomszéd, saját 6 nm-es pincetároló, közös, zöld belső kert használata.
Budai életérzés, minden karnyújtásnyira. A lakás elhelyezkedése kivételes: pár perc sétával elérhető minden, ami a kényelmes mindennapokhoz szükséges. miközben az utca csendes, nyugodt, átmenő forgalomtól szinte mentes. A közelben: Margit híd, Széll Kálmán tér, Mammut bevásárlóközpont, Fény utcai piac, Millenáris park, Margit-sziget.
Ez a környék tökéletes egyensúlyt teremt a városi pezsgés és a természet közelsége között.
Családra tervezve: a lakás elrendezése és alakíthatósága miatt ideális választás családoknak. Külön nyíló, jól szeparálható szobák, könnyen bővíthető szobaszám (akár 3 vagy 4 szobára), világos, élhető közösségi terek, biztonságos, barátságos lakóközösség
A nagy ablakoknak köszönhetően akár több fürdőszoba kialakítása is megoldható, így a lakás hosszú távon is kényelmes életteret biztosít.
Épület: 1940-es években épült, Bauhaus jellegű társasház, hőszigetelt, karbantartott állapot, 12 lakásos, csendes közösség, nagy, zöld belső kert, felújított, világos lépcsőház.
Lehetőség és érték egyben: a lakás jó állapotú, igény szerint korszerűsíthető, ugyanakkor már most is otthonos és azonnal költözhető. Kiváló választás azoknak, akik saját igényeikre formálható, értékálló budai otthont keresnek.

Hirdetés feltöltve: 2026. 04. 17. Utoljára módosítva: 2026. 04. 17.

3 szobás téglalakások ára Budapesten

Ebből az összehasonlításból megtudhatod, hogyan viszonyul a lakás ára a környékbeli téglalakások átlagos árához. Ez nem azt jelenti, hogy ennyivel olcsóbb vagy drágább, mint amennyit a lakás ér, hanem hogy ennyivel tér el a környékbeli átlagtól.

Ennek a m² ára
II. kerület m² ár
Budapest m² ár
1844 e Ft
2070 e Ft 11%
1708 e Ft -8%
Ennek az ára
II. kerület átlagár
Budapest átlagár
154.9 M Ft m Ft
175.6 m Ft 12%
131.2 m Ft -18%

Az ingatlan elhelyezkedése

Cím: Budapest, II. kerület, 2. emelet

Eladó ingatlanok a környékről

II. kerület
Eladó téglalakás

Budapest, II. kerület

85 M Ft
1 szoba
56 m²
II. kerület, Rózsadomb, Szemlőhegy
Eladó téglalakás

Budapest, II. kerület

250 M Ft
4 szoba
142 m²
II. kerület, Lipótmező, Hűvösvölgyi út
Eladó téglalakás

Budapest, II. kerület

199.99 M Ft
6 szoba
115 m²
II. kerület
Eladó téglalakás

Budapest, II. kerület

187 M Ft
2 szoba
64 m²
IV. kerület
Eladó téglalakás

Budapest, IV. kerület

96.5 M Ft
3 szoba
64 m²
II. kerület
Eladó téglalakás

Budapest, II. kerület

187 M Ft
2 szoba
64 m²
XIV. kerület
Eladó családi ház

Budapest, XIV. kerület

114.99 M Ft
2 szoba
71 m²
II. kerület
Eladó téglalakás

Budapest, II. kerület

400.257 M Ft
3 szoba
220 m²
II. kerület
Eladó téglalakás

Budapest, II. kerület

329 M Ft
4 + 1 szoba
153 m²
II. kerület
Eladó téglalakás

Budapest, II. kerület

325 M Ft
4 szoba
156 m²
II. kerület
Eladó téglalakás

Budapest, II. kerület

266.6 M Ft
3 szoba
75 m²
XII. kerület
Eladó téglalakás

Budapest, XII. kerület

169.5 M Ft
5 szoba
115 m²
XI. kerület
Eladó téglalakás

Budapest, XI. kerület

124.9 M Ft
4 szoba
84 m²
XI. kerület, Sasad
Eladó téglalakás

Budapest, XI. kerület

197 M Ft
3 szoba
82 m²
II. kerület, Szemlőhegy, Szeréna út
Eladó téglalakás

Budapest, II. kerület

187 M Ft
2 szoba
64 m²
II. kerület
Eladó téglalakás

Budapest, II. kerület

400.257 M Ft
2 szoba
221 m²
XIV. kerület, Nagyzugló, Fogarasi út
Eladó téglalakás

Budapest, XIV. kerület

66.5 M Ft
3 szoba
50 m²
XIX. kerület
Eladó ipari ingatlan

Budapest, XIX. kerület

319.99 M Ft
545 m²
511 m²
XIII. kerület
Eladó téglalakás

Budapest, XIII. kerület

51.9 M Ft
1 szoba
33 m²
II. kerület
Eladó téglalakás

Budapest, II. kerület

286 M Ft
3 szoba
119 m²
IV. kerület
Eladó téglalakás

Budapest, IV. kerület

69.9 M Ft
2 szoba
70 m²
II. kerület
Eladó téglalakás

Budapest, II. kerület

581.464 M Ft
5 szoba
280 m²
II. kerület
Eladó téglalakás

Budapest, II. kerület

270.4 M Ft
3 szoba
73 m²
IV. kerület
Eladó panellakás

Budapest, IV. kerület

55 M Ft
2 szoba
35 m²

Falusi CSOK ingatlanok

Iklad
Eladó családi ház

Iklad

60 M Ft
3 szoba
76 m²
Mártély
Eladó családi ház

Mártély

75 M Ft
1107 m²
0 m²
Kétegyháza
Eladó családi ház

Kétegyháza

37.5 M Ft
2 + 1 szoba
98 m²
Dombrád, Rákóczi út 22
Eladó családi ház

Dombrád

12.74 M Ft
1 + 1 szoba
125 m²
Bag
Eladó családi ház

Bag

110 M Ft
5 szoba
320 m²
Somogyvár
Eladó sorház

Somogyvár

45 M Ft
4 szoba
105 m²
Adony
Eladó családi ház

Adony

48 M Ft
4 szoba
75 m²
Szegvár
Eladó családi ház

Szegvár

14.3 M Ft
3 + 1 szoba
130 m²