River Life

Eladó téglalakás
Budapest, II. kerület, 1. emelet

+ 17 kép 1/20
142 000 000 Ft142 M Ft 1 972 222 Ft/m2
2 + 1 szoba
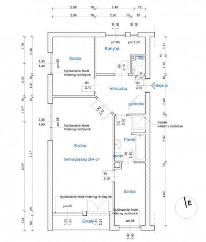
72 m²
1. emelet
építés éve:1975

Részletes adatok

Fűtés: Gázkazán
Emelet: 1. emelet
Komfort: Összkomfortos
Energetikai besorolás: Nem adta meg a hirdető

Az OTP Bank lakáshitel ajánlataFizetett hirdetés

+36 20 371
Antal Enikő
referens

Érdekel az OTP Bank kedvezményes lakáshitel ajánlata? *

* A kérdésre „Igen” válasz bejelölése esetén, az „Üzenet küldése” gombra kattintva kijelentem, hogy az OTP Bank Nyrt. Adatkezelési tájékoztatójának tartalmát megismertem és tudomásul vettem.

Eladó téglalakás leírása

NAPFÉNYES, ERKÉLYES 3 SZOBÁS LAKÁS 2. KERÜLET kedvelt ZÖLDÖVEZETI részén kiváló közlekedésnél ELADÓ!

Budapest 2. kerületében, Vérhalom és Törökvész határában csendes, nyugodt zöldövezeti környezetben kínálok eladásra egy 72 nm-es, jelenleg 3 szobás, kiváló elrendezésű, könnyedén 3,5 szobássá alakítható világos, erkélyes lakást.

A LOKÁCIÓ:
A környéken két kisebb méretű bevásárlóközpont, teniszpályák, játszóterek, óvódák, iskolák, több természetvédelmi terület. Néhány perces séta a 11-es/111-es/931-es és a 91-es/291-es buszok megállói. Mindenhez közel jó közlekedéssel, mégis nyugodt, kertvárosi környezetben.

A LAKÁS:
Az ingatlan dél?délnyugati tájolású, ennek köszönhetően egész nap világos, napfényes terekkel rendelkezik.
A nappalihoz kapcsolódó loggia kellemes helyszínt biztosít a pihenéshez, reggeli kávézáshoz. A jelenleg 2,5 szobás lakásban, világos jó méretű konyha kamrával, fürdőszoba, külön wc és kellemes, tágas előszoba található. A lakás praktikus elrendezésének, jó alaprajzának köszönhetően könnyedén 3,5 szobássá, 1 amerikai konyhás nappali+2,5 szobás lakássá alakítható. Az elektromos hálózat 2021-ben felújításra került. Fűtésrendszerét 2023-ban korszerűsítették, ekkor Bosch kondenzációs kazán került beépítésre, hőleadása radiátoros. A lakás melegburkolatai és hidegburkolatai szép állapotúak.
Az ingatlanhoz tartozik:
- egy saját 17 nm-es garázs,
- és egy külön tárolóhelyiség.
A garázs előtt további egy autó parkolására is van lehetőség, azonban ez a hely nem dedikált, nem kizárólagos használatú. A vételár a tárolót tartalmazza. A garázs igény esetén ? szabadon választhatóan, nem kötelezően - külön megvásárolható további 25M,-Ft-ért

A TÁRSASHÁZRÓL:
A 9 lakásos társasház 1. emeletén található a lakás, lift nincsen. A társasházat 1975-ben építették, állapota kívül és belül is jó. A lakóközösség barátságos és nyugodt. A társasháznak adóssága nincsen, folyamatosak a fejlesztések, 2025-ben a lépcsőház került kifestésre. Az ingatlan per- és tehermentes.

A lakás ideális választás mindazok számára, akik a természetközeli, nyugodt lakókörnyezetet keresik, de nem szeretnének lemondani a gyors városi kapcsolatról, jó szolgáltatási és sportolási lehetőségről sem.
Fiatal pároknak, kisgyermekes családoknak ajánlom. A lakás befektetésnek is kiváló, jelenleg is kedves albérlő lakja, aki hosszú távon is szívesen kibérelné.

Az energetikai tanúsítvány készítése folyamatban van, amint rendelkezésre áll, úgy azzal a hirdetés frissítésre kerül.

Antal Enikő
+36/20-371-2105

Hirdetés feltöltve: 2026. 04. 08. Utoljára módosítva: 2026. 05. 15.

3 szobás téglalakások ára Budapesten

Ebből az összehasonlításból megtudhatod, hogyan viszonyul a lakás ára a környékbeli téglalakások átlagos árához. Ez nem azt jelenti, hogy ennyivel olcsóbb vagy drágább, mint amennyit a lakás ér, hanem hogy ennyivel tér el a környékbeli átlagtól.

Ennek a m² ára
II. kerület m² ár
Budapest m² ár
1972 e Ft
2050 e Ft 4%
1697 e Ft -16%
Ennek az ára
II. kerület átlagár
Budapest átlagár
142 M Ft m Ft
175.4 m Ft 19%
132.3 m Ft -7%

Az ingatlan elhelyezkedése

Cím: Budapest, II. kerület, 1. emelet

Eladó ingatlanok a környékről

II. kerület
Eladó téglalakás

Budapest, II. kerület

187 M Ft
2 szoba
64 m²
XIII. kerület
Eladó panellakás

Budapest, XIII. kerület

89.99 M Ft
3 szoba
71 m²
II. kerület, Lipótmező, Hűvösvölgyi út
Eladó téglalakás

Budapest, II. kerület

199.99 M Ft
6 szoba
115 m²
II. kerület, Víziváros, Margit körút
Eladó téglalakás

Budapest, II. kerület

265 M Ft
9 + 1 szoba
240 m²
I. kerület
Eladó téglalakás

Budapest, I. kerület

213.6 M Ft
3 szoba
96 m²
XIII. kerület
Eladó téglalakás

Budapest, XIII. kerület

56 M Ft
1 szoba
33 m²
II. kerület
Eladó téglalakás

Budapest, II. kerület

144.9 M Ft
3 szoba
66 m²
II. kerület, Országút, Margit körút
Eladó téglalakás

Budapest, II. kerület

135 M Ft
2 + 1 szoba
81 m²
XVIII. kerület
Eladó panellakás

Budapest, XVIII. kerület

57.9 M Ft
1 + 2 szoba
59 m²
II. kerület
Eladó téglalakás

Budapest, II. kerület

559.9 M Ft
4 szoba
169 m²
II. kerület
Eladó téglalakás

Budapest, II. kerület

421.6 M Ft
5 szoba
138 m²
III. kerület
Eladó panellakás

Budapest, III. kerület

69.5 M Ft
2 szoba
50 m²
XVIII. kerület
Eladó téglalakás

Budapest, XVIII. kerület

63.79 M Ft
2 szoba
47 m²
II. kerület
Eladó téglalakás

Budapest, II. kerület

987.69 M Ft
6 szoba
370 m²
X. kerület
Eladó téglalakás

Budapest, X. kerület

71.9 M Ft
3 szoba
74 m²
II. kerület
Eladó téglalakás

Budapest, II. kerület

450 M Ft
4 szoba
138 m²
II. kerület
Eladó téglalakás

Budapest, II. kerület

325 M Ft
4 + 1 szoba
180 m²
III. kerület
Eladó panellakás

Budapest, III. kerület

64.9 M Ft
3 szoba
50 m²
VIII. kerület
Eladó téglalakás

Budapest, VIII. kerület

40.9 M Ft
1 szoba
30 m²
IX. kerület
Eladó téglalakás

Budapest, IX. kerület

81 M Ft
1 szoba
37 m²
XXI. kerület
Eladó családi ház

Budapest, XXI. kerület

104.9 M Ft
4 szoba
158 m²
XVIII. kerület
Eladó családi ház

Budapest, XVIII. kerület

139.99 M Ft
4 szoba
0 m²
II. kerület
Eladó téglalakás

Budapest, II. kerület

329 M Ft
4 + 1 szoba
153 m²
VI. kerület
Eladó téglalakás

Budapest, VI. kerület

89.9 M Ft
3 szoba
86 m²

Falusi CSOK ingatlanok

Herend
Eladó családi ház

Herend

144.9 M Ft
7 szoba
285 m²
Balatonkeresztúr
Eladó családi ház

Balatonkeresztúr

85 M Ft
3 + 2 szoba
115 m²
Mencshely
Eladó családi ház

Mencshely

99 M Ft
3 szoba
126 m²
Tápiógyörgye
Eladó családi ház

Tápiógyörgye

22.5 M Ft
3 + 1 szoba
83 m²
Kunágota
Eladó családi ház

Kunágota

13.2 M Ft
4 szoba
115 m²
Kálócfa
Eladó családi ház

Kálócfa

15.99 M Ft
3 szoba
80 m²
Köveskál
Eladó családi ház

Köveskál

215 M Ft
4 szoba
100 m²
Tápióbicske
Eladó családi ház

Tápióbicske

37.5 M Ft
2 szoba
70 m²