City Pearl

Eladó téglalakás
Budapest, II. kerület, 2. emelet

+ 11 kép 1/14
154 900 000 Ft154.9 M Ft 1 844 048 Ft/m2
2 + 1 szoba
84 m²
2. emelet
építés éve:1940

Részletes adatok

Fűtés: Házközponti
Emelet: 2. emelet
Energetikai besorolás: Nem adta meg a hirdető

Az OTP Bank lakáshitel ajánlataFizetett hirdetés

+36 20 371
Antal Enikő
referens

Érdekel az OTP Bank kedvezményes lakáshitel ajánlata? *

* A kérdésre „Igen” válasz bejelölése esetén, az „Üzenet küldése” gombra kattintva kijelentem, hogy az OTP Bank Nyrt. Adatkezelési tájékoztatójának tartalmát megismertem és tudomásul vettem.

Eladó téglalakás leírása

Budai életérzés a Rózsadomb lábánál. Tágas, erkélyes családi otthon a II. kerületben
Eladó egy különleges hangulatú, Bauhaus stílusú társasház legfelső szintjén található lakás a II. kerületi Kút utcában, a budai oldal egyik legélhetőbb, legkeresettebb részén.
Ez az otthon tökéletes választás mindazok számára, akik szeretnék ötvözni a városi kényelmet a nyugodt, zöld budai környezettel, és ideális lehet családok számára, akik hosszú távra terveznek.
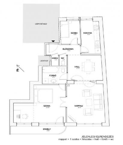
Főbb jellemzők: 84 nm alapterület, 2 + fél szoba + hall (könnyen alakítható akár 3?4 szobássá), erkélyes, világos terek, 2,9 m belmagasság, két tájolás (DNY,ÉK) egész napos természetes fény, legfelső szint, nincs felső szomszéd, saját 6 nm-es pincetároló, közös, zöld belső kert használata.
Budai életérzés, minden karnyújtásnyira. A lakás elhelyezkedése kivételes: pár perc sétával elérhető minden, ami a kényelmes mindennapokhoz szükséges. miközben az utca csendes, nyugodt, átmenő forgalomtól szinte mentes. A közelben: Margit híd, Széll Kálmán tér, Mammut bevásárlóközpont, Fény utcai piac, Millenáris park, Margit-sziget.
Ez a környék tökéletes egyensúlyt teremt a városi pezsgés és a természet közelsége között.
Családra tervezve: a lakás elrendezése és alakíthatósága miatt ideális választás családoknak. Külön nyíló, jól szeparálható szobák, könnyen bővíthető szobaszám (akár 3 vagy 4 szobára), világos, élhető közösségi terek, biztonságos, barátságos lakóközösség
A nagy ablakoknak köszönhetően akár több fürdőszoba kialakítása is megoldható, így a lakás hosszú távon is kényelmes életteret biztosít.
Épület: 1940-es években épült, Bauhaus jellegű társasház, hőszigetelt, karbantartott állapot, 12 lakásos, csendes közösség, nagy, zöld belső kert, felújított, világos lépcsőház.
Lehetőség és érték egyben: a lakás jó állapotú, igény szerint korszerűsíthető, ugyanakkor már most is otthonos és azonnal költözhető. Kiváló választás azoknak, akik saját igényeikre formálható, értékálló budai otthont keresnek.
Antal Enikő
+36/20-371-2105

Hirdetés feltöltve: 2026. 04. 01. Utoljára módosítva: 2026. 04. 01.

3 szobás téglalakások ára Budapesten

Ebből az összehasonlításból megtudhatod, hogyan viszonyul a lakás ára a környékbeli téglalakások átlagos árához. Ez nem azt jelenti, hogy ennyivel olcsóbb vagy drágább, mint amennyit a lakás ér, hanem hogy ennyivel tér el a környékbeli átlagtól.

Ennek a m² ára
II. kerület m² ár
Budapest m² ár
1844 e Ft
2070 e Ft 11%
1708 e Ft -8%
Ennek az ára
II. kerület átlagár
Budapest átlagár
154.9 M Ft m Ft
175.6 m Ft 12%
131.2 m Ft -18%

Az ingatlan elhelyezkedése

Cím: Budapest, II. kerület, 2. emelet

Eladó ingatlanok a környékről

XI. kerület
Eladó téglalakás

Budapest, XI. kerület

128 M Ft
3 szoba
54 m²
XII. kerület
Eladó téglalakás

Budapest, XII. kerület

144.9 M Ft
4 szoba
88 m²
XXII. kerület
Eladó téglalakás

Budapest, XXII. kerület

184 M Ft
3 szoba
141 m²
II. kerület
Eladó téglalakás

Budapest, II. kerület

325 M Ft
4 szoba
156 m²
XVIII. kerület
Eladó panellakás

Budapest, XVIII. kerület

64.9 M Ft
2 + 1 szoba
53 m²
II. kerület
Eladó téglalakás

Budapest, II. kerület

270.4 M Ft
3 szoba
73 m²
IV. kerület, Újpest, Závodszky Zoltán utca 1
Eladó panellakás

Budapest, IV. kerület

50.5 M Ft
1 + 1 szoba
35 m²
II. kerület
Eladó téglalakás

Budapest, II. kerület

398.013 M Ft
3 szoba
220 m²
II. kerület, Rózsadomb, Szemlőhegy
Eladó téglalakás

Budapest, II. kerület

250 M Ft
4 szoba
142 m²
XI. kerület
Eladó telek

Budapest, XI. kerület

169.9 M Ft
900 m²
0 m²
XI. kerület
Eladó téglalakás

Budapest, XI. kerület

132 M Ft
3 szoba
70 m²
II. kerület
Eladó téglalakás

Budapest, II. kerület

85 M Ft
1 szoba
56 m²
II. kerület
Eladó téglalakás

Budapest, II. kerület

187 M Ft
2 szoba
64 m²
XXIII. kerület
Eladó sorház

Budapest, XXIII. kerület

119.9 M Ft
5 szoba
136 m²
II. kerület
Eladó téglalakás

Budapest, II. kerület

578.204 M Ft
5 szoba
280 m²
II. kerület, Lipótmező, Hűvösvölgyi út
Eladó téglalakás

Budapest, II. kerület

199.99 M Ft
6 szoba
115 m²
II. kerület, Országút, Margit körút
Eladó téglalakás

Budapest, II. kerület

105 M Ft
2 + 1 szoba
81 m²
II. kerület
Eladó téglalakás

Budapest, II. kerület

325 M Ft
4 + 1 szoba
180 m²
III. kerület
Eladó téglalakás

Budapest, III. kerület

139 M Ft
3 szoba
81 m²
XIV. kerület
Eladó téglalakás

Budapest, XIV. kerület

55.8 M Ft
1 szoba
44 m²
II. kerület
Eladó téglalakás

Budapest, II. kerület

149 M Ft
2 szoba
66 m²
II. kerület
Eladó téglalakás

Budapest, II. kerület

329 M Ft
4 + 1 szoba
153 m²
II. kerület
Eladó téglalakás

Budapest, II. kerület

421.6 M Ft
5 szoba
138 m²
XV. kerület
Eladó családi ház

Budapest, XV. kerület

129.9 M Ft
3 + 1 szoba
120 m²

Falusi CSOK ingatlanok

Ostffyasszonyfa
Eladó családi ház

Ostffyasszonyfa

37.9 M Ft
5 szoba
494 m²
Dombrád, Rákóczi út 22
Eladó családi ház

Dombrád

12.74 M Ft
1 + 1 szoba
125 m²
Somogyszentpál
Eladó családi ház

Somogyszentpál

25.3 M Ft
3 szoba
80 m²
Kisherend
Eladó családi ház

Kisherend

9 M Ft
2 szoba
52 m²
Mezőzombor
Eladó családi ház

Mezőzombor

14.6 M Ft
3 szoba
81 m²
Bogács
Eladó családi ház

Bogács

89.5 M Ft
4 + 2 szoba
180 m²
Mesztegnyő
Eladó családi ház

Mesztegnyő

125 M Ft
3 szoba
450 m²
Ceglédbercel
Eladó családi ház

Ceglédbercel

43 M Ft
3 szoba
67 m²