Oasis Residence

Eladó téglalakás
Budapest, II. kerület, 1. emelet

+ 17 kép 1/20
325 782 000 Ft325.782 M Ft 3 162 932 Ft/m2
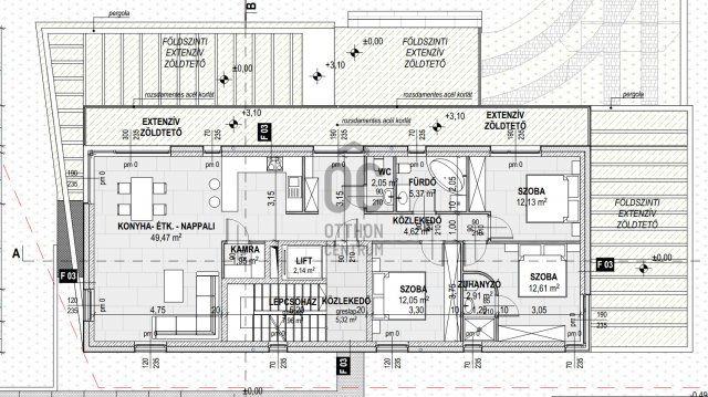
4 szoba
103 m²
1. emelet
építés éve:2027

Részletes adatok

Fűtés: Egyéb
Emelet: 1. emelet
Közmű: Villany, Csatorna
Energetikai besorolás: Nem adta meg a hirdető

Az OTP Bank lakáshitel ajánlataFizetett hirdetés

+36 70 465
Arany Bálint
referens

Érdekel az OTP Bank kedvezményes lakáshitel ajánlata? *

* A kérdésre „Igen” válasz bejelölése esetén, az „Üzenet küldése” gombra kattintva kijelentem, hogy az OTP Bank Nyrt. Adatkezelési tájékoztatójának tartalmát megismertem és tudomásul vettem.

Eladó téglalakás leírása

A projekt emeleti lakása.
I. emeleti kialakítása ellenére egy lépcsővel a saját kizárólagos használatú kertbe juthatunk.
Projekt bemutatása

Új otthonok a 2. kerületben!
2026 .május 31-ig egyedi fizetési ütemezéssel!

A 2. kerület hűvösvölgyi részén rendkívül ritkán elérhetőek újépítésű lakások,
de most újabb lehetőséget nyitunk meg vásárlóink előtt.

AZ ÉPÜLET
A tervező személye mindig rendkívül fontos egy fejlesztésnél.
A luxus szegmensben már jól ismert építésziroda most is kitett magáért.
A kis lakásszámú épület minden szintjén egy lakás kerül kialakításra, így biztosítva a maximális privát életteret és az egyedülálló benapozást.
A terek nagyvonalúak, ahogy egy ilyen, fejlesztés megkívánja.
Az épület formavilága modern, mégsem a szokásos kocka minimál vonalat követi.
A homlokzaton travertin mészkőburkolat köszön vissza, amely amellett,
hogy rendkívül időtálló, kiemelkedően attraktív megjelenés biztosít a teljes épületnek.

A LAKÁSOK
Szintenként kizárólag egy lakás kap helyet, így biztosítva a privátszférát.
Minden lakás következetes tervezés eredménye, ezen az alapterületen kedvezőbb kialakítású lakást nem lehet kialakítani!
Így a lakásoknak az árkategóriájukban NINCS VERSENYTÁRSA!
Minden lakáshoz külön leválasztott garázsrész készül.
A földszinti és az I. emeleti lakás is, kertkapcsolattal fog rendelkezni!

ANYAGHASZNÁLAT
A prémium lokáció megköveteli az I. osztályú anyaghasználatot.
A tervezett kubatúra rendkívül egyedi, a homlokzatra felhasznált Travertin mészkőburkolata legnemesebb ókori építményeket idézi, hangsúlyozva az időtállóságot.
A kőzetgyapothőszigetelés és a beépített szellőztetőrendszer biztosítja a lakások megfelelő szellőzését.
A 3 rétegű Internorm fa nyílászárók tovább növelik a természetes anyaghasználat hangsúlyát, Európa egyik legismertebb nyílászárója magáért beszél.
A magas minőségű belsőajtók és a burkolatok kiválasztásához az ország egyik legnagyobb kínálatú bemutatóterme áll rendelkezésre.

MŰSZAKI FELSZERELTSÉG ÉS TECHNOLÓGIA
kifogástalan ENERGETIKA! nemcsak kiváló minőségű nyílászárók kerültek beépítésre, de a Daikin hőszivattyú mellett, hővisszanyerős szellőztetőrendszer biztosítja a lakóterek megfelelő levegőutánpótlását.
- élhető és világos terek számos nyílászáróval!
- gépesített konyha, makulátlan Miele gépekkel!
- minden lakáshoz vásárolható dupla teremgarázs beálló, amely külön kapuval lezárható+1 felszíni beállóval is rendelkezik
- a lifttel a garázsból egyenesen a lakás bejárati ajtóig juthatunk!
- a társasház közös kis gondozott kerttel is rendelkezik!

LOKÁCIÓ/SZOLGÁLTATÁSOK
sétatávolságon belül elérhető yoga stúdió, a környék legjobb zöldségese a Vitamin-Völgy,
és néhány percre található a Lidl, dm, nemzeti dohánybolt, barber, teniszpálya és a Hűvösvölgyi szolgáltatóház benne minden szolgáltatással.
10 percre a francia iskola,
15 percre a Széll Kálmán tér
3 percre a kínai iskola, illetve további iskolák, óvódák és bölcsődék séta távolságra!

TÖMEGKÖZLEKEDÉS
A tömegközlekedés gyors és kényelmes,
busz
5, 29,129,956
villamos
56,56A, 59B, 61
a Széll Kálmán tértől pedig könnyen elérhető az egész város!

A kerületrész amellett, hogy közkedvelt lakhatás céljából, kiváló befektetési lehetőséggel is kecsegtet, mivel a kerületrész nem bővelkedik a lehetőségekben.

Fizetési ütemezés:
az alapfizetési ütemezés
20% az előszerződés megkötésekor
20% a szerkezetkész állapot elérésekor
a fennmaradó 60% akár a használatbavételt követően!
AZ ELSŐ INGATLANVÁSÁRLÓ 5 % KEDVEZMÉNYT KAP AZ ÁRBÓL, AMENNYIBEN A 20-30-20-30%-OS FINANSZÍROZÁST VÁLASZTJA.

A további egyedi fizetési lehetőségek miatt, kérem hívjon!

Hirdetés feltöltve: 2026. 03. 14. Utoljára módosítva: 2026. 04. 01.

4 szobás téglalakások ára Budapesten

Ebből az összehasonlításból megtudhatod, hogyan viszonyul a lakás ára a környékbeli téglalakások átlagos árához. Ez nem azt jelenti, hogy ennyivel olcsóbb vagy drágább, mint amennyit a lakás ér, hanem hogy ennyivel tér el a környékbeli átlagtól.

Ennek a m² ára
II. kerület m² ár
Budapest m² ár
3163 e Ft
2192 e Ft -44%
1783 e Ft -77%
Ennek az ára
II. kerület átlagár
Budapest átlagár
325.782 M Ft m Ft
263.1 m Ft -24%
186.4 m Ft -75%

Az ingatlan elhelyezkedése

Cím: Budapest, II. kerület, 1. emelet

Eladó ingatlanok a környékről

XII. kerület
Eladó téglalakás

Budapest, XII. kerület

70 M Ft
2 szoba
32 m²
XIII. kerület, Angyalföld, Dévai utca Lőportár 17
Eladó téglalakás

Budapest, XIII. kerület

88.836 M Ft
2 szoba
43 m²
II. kerület
Eladó téglalakás

Budapest, II. kerület

400.543 M Ft
3 szoba
220 m²
II. kerület
Eladó téglalakás

Budapest, II. kerület

144.9 M Ft
3 szoba
66 m²
II. kerület
Eladó téglalakás

Budapest, II. kerület

700 M Ft
4 szoba
236 m²
XIII. kerület, Angyalföld, Dévai utca Lőportár 17
Eladó téglalakás

Budapest, XIII. kerület

87.287 M Ft
2 szoba
42 m²
XIII. kerület, Angyalföld, Dévai utca Lőportár 17
Eladó téglalakás

Budapest, XIII. kerület

71.205 M Ft
1 szoba
32 m²
II. kerület
Eladó téglalakás

Budapest, II. kerület

400.543 M Ft
2 szoba
221 m²
XIV. kerület
Eladó panellakás

Budapest, XIV. kerület

64.9 M Ft
2 szoba
46 m²
VII. kerület
Eladó téglalakás

Budapest, VII. kerület

57.9 M Ft
1 szoba
29 m²
VIII. kerület
Eladó téglalakás

Budapest, VIII. kerület

104.9 M Ft
3 szoba
65 m²
XV. kerület
Eladó családi ház

Budapest, XV. kerület

64.9 M Ft
1 szoba
53 m²
XIII. kerület, Angyalföld, Dévai utca Lőportár 17
Eladó téglalakás

Budapest, XIII. kerület

89.84 M Ft
2 szoba
43 m²
II. kerület
Eladó téglalakás

Budapest, II. kerület

270.4 M Ft
3 szoba
73 m²
XIII. kerület, Angyalföld, Dévai utca Lőportár 17
Eladó téglalakás

Budapest, XIII. kerület

88.861 M Ft
2 szoba
42 m²
II. kerület
Eladó téglalakás

Budapest, II. kerület

761.032 M Ft
5 szoba
321 m²
II. kerület, Rózsadomb, Szemlőhegy
Eladó téglalakás

Budapest, II. kerület

250 M Ft
4 szoba
142 m²
XIII. kerület, Angyalföld, Dévai utca Lőportár 17
Eladó téglalakás

Budapest, XIII. kerület

71.205 M Ft
1 szoba
32 m²
XIII. kerület, Angyalföld, Dévai utca Lőportár 17
Eladó téglalakás

Budapest, XIII. kerület

87.733 M Ft
2 szoba
43 m²
II. kerület
Eladó téglalakás

Budapest, II. kerület

187 M Ft
2 szoba
64 m²
IX. kerület
Eladó téglalakás

Budapest, IX. kerület

89.9 M Ft
3 szoba
84 m²
XIII. kerület, Angyalföld, Dévai utca Lőportár 17
Eladó téglalakás

Budapest, XIII. kerület

69.483 M Ft
1 szoba
32 m²
II. kerület
Eladó téglalakás

Budapest, II. kerület

325 M Ft
4 szoba
156 m²
II. kerület
Eladó téglalakás

Budapest, II. kerület

329 M Ft
4 + 1 szoba
153 m²

Falusi CSOK ingatlanok

Somogyszil
Eladó családi ház

Somogyszil

27.9 M Ft
3 szoba
140 m²
Vilonya
Eladó családi ház

Vilonya

125 M Ft
4 szoba
125 m²
Nagyszénás, Bajcsy-Zsilinszky utca 60
Eladó családi ház

Nagyszénás

11.7 M Ft
1 + 1 szoba
128 m²
Mezőkeresztes
Eladó ikerház

Mezőkeresztes

13.5 M Ft
2 + 1 szoba
70 m²
Hosszúhetény, Petőfi Sándor utca 10
Eladó családi ház

Hosszúhetény

20.65 M Ft
4 + 2 szoba
133 m²
Gesztely
Eladó családi ház

Gesztely

12.5 M Ft
3 szoba
65 m²
Seregélyes
Eladó családi ház

Seregélyes

75 M Ft
6 szoba
160 m²
Nyírtura
Eladó családi ház

Nyírtura

99 M Ft
4 szoba
280 m²