Avico Greentop

Eladó téglalakás
Budapest, II. kerület, Törökvész

+ 13 kép 1/16
154 900 000 Ft154.9 M Ft 1 844 048 Ft/m2
2 + 1 szoba
84 m²
építés éve:1940

Részletes adatok

Fűtés: Egyéb
Energetikai besorolás: Nem adta meg a hirdető

Az OTP Bank lakáshitel ajánlataFizetett hirdetés

+36 20 251
Lengyel Katalin
Szőnyi Home 2020 Bt.

Érdekel az OTP Bank kedvezményes lakáshitel ajánlata? *

* A kérdésre „Igen” válasz bejelölése esetén, az „Üzenet küldése” gombra kattintva kijelentem, hogy az OTP Bank Nyrt. Adatkezelési tájékoztatójának tartalmát megismertem és tudomásul vettem.

Eladó téglalakás leírása

Eladásra kínálunk egy patinás, Bauhaus jellegű társasház legfelső emeleti, kiemelkedő adottságú lakását a II. kerület frekventált, mégis nyugodt részén.

Lokáció:
Néhány perc sétával elérhető a Margit híd, a Széll Kálmán tér, a Mammut Bevásárlóközpont, a Fény utcai piac, a Millenáris Park, valamint a Margit-sziget.
A Kút utca csendes, átmenő forgalomtól szinte mentes, miközben minden fontos szolgáltatás pár száz méteren belül megtalálható, ideális választás a városi életet kedvelők számára.

Az épület:
A kora 1940-es években épült, lapostetős, hőszigetelt, karbantartott, 12 lakásos társasház nagy, zöld belső kerttel és frissen felújított, világos lépcsőházzal rendelkezik. A ház 4 szintes (FSZ + MFSZ + 2 emelet), lift nincs.

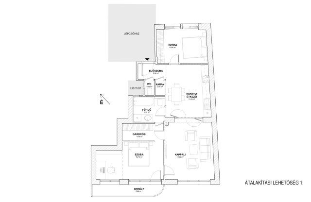
A lakás főbb jellemzői:
2. emeleti, 84 m² (tulajdoni lap szerint)
2 + ½ szoba + hall, erkély
Fürdőszoba és külön WC, ablakos kamra
2,9 m belmagasság, tágas, világos terek

Két irányba tájolt:
konyha és félszoba: kelet–északkelet, kertre néz
szobák és erkély: dél–délnyugat, utcára és fás kertre néz

A lakás 20 éve átfogó felújításon esett át, jelenleg igény szerint felújítandó, tisztasági festés után akár azonnal költözhető.

Átalakíthatóság:
A konyha az étkező részhez való helyezésével (amerikai konyha létrehozásával) a lakás 3 szobássá vagy 2 + 2 félszobássá alakítható, így nagyobb család számára is kiváló lehetőség.

Műszaki adatok és extrák:
Házközponti fűtés radiátorokkal
Melegvíz: villanybojler
Gáz bevezetve
Zárható közös kerékpártároló
6 m²-es saját pincerekesz

Költségek, parkolás:
Közös költség: 39 000 Ft/hó (fűtés és vízdíj benne)
Parkolás az utcán, fizetős övezetben

Amennyiben felkeltettem érdeklődését, kérem keressen bizalommal hétvégén is! :)

Lengyel Katalin

Hirdetés feltöltve: 2026. 01. 19. Utoljára módosítva: 2026. 05. 15.

3 szobás téglalakások ára Budapesten

Ebből az összehasonlításból megtudhatod, hogyan viszonyul a lakás ára a környékbeli téglalakások átlagos árához. Ez nem azt jelenti, hogy ennyivel olcsóbb vagy drágább, mint amennyit a lakás ér, hanem hogy ennyivel tér el a környékbeli átlagtól.

Ennek a m² ára
Törökvész m² ár
II. kerület m² ár
Budapest m² ár
1844 e Ft
2048 e Ft 10%
2039 e Ft 10%
1694 e Ft -9%
Ennek az ára
Törökvész átlagár
II. kerület átlagár
Budapest átlagár
154.9 M Ft m Ft
163.4 m Ft 5%
175.5 m Ft 12%
132.3 m Ft -17%

Az ingatlan elhelyezkedése

Cím: Budapest, II. kerület, Törökvész

Eladó ingatlanok a környékről

IV. kerület, Újpest, Deák Ferenc utca
Eladó panellakás

Budapest, IV. kerület

74.9 M Ft
3 szoba
59 m²
II. kerület
Eladó téglalakás

Budapest, II. kerület

577.469 M Ft
5 szoba
280 m²
XXII. kerület
Eladó családi ház

Budapest, XXII. kerület

78.2 M Ft
6 szoba
173 m²
II. kerület
Eladó téglalakás

Budapest, II. kerület

325 M Ft
4 szoba
156 m²
XIII. kerület
Eladó téglalakás

Budapest, XIII. kerület

59 M Ft
1 szoba
41 m²
II. kerület, Országút, Margit körút
Eladó téglalakás

Budapest, II. kerület

135 M Ft
2 + 1 szoba
81 m²
II. kerület
Eladó téglalakás

Budapest, II. kerület

568.435 M Ft
5 szoba
287 m²
VI. kerület
Eladó téglalakás

Budapest, VI. kerület

20.9 M Ft
1 szoba
17 m²
VII. kerület, Külső Erzsébetváros, Péterfy Sándor utca
Eladó téglalakás

Budapest, VII. kerület

93 M Ft
3 szoba
102 m²
VIII. kerület
Eladó téglalakás

Budapest, VIII. kerület

46.9 M Ft
1 + 1 szoba
30 m²
II. kerület
Eladó téglalakás

Budapest, II. kerület

397.507 M Ft
2 szoba
221 m²
II. kerület, Víziváros, Margit körút
Eladó téglalakás

Budapest, II. kerület

265 M Ft
9 + 1 szoba
240 m²
XX. kerület
Eladó családi ház

Budapest, XX. kerület

57.9 M Ft
2 szoba
47 m²
II. kerület, Lipótmező, Hűvösvölgyi út
Eladó téglalakás

Budapest, II. kerület

199.99 M Ft
6 szoba
115 m²
III. kerület
Eladó telek

Budapest, III. kerület

145 M Ft
1240 m²
0 m²
II. kerület
Eladó téglalakás

Budapest, II. kerület

993.768 M Ft
6 szoba
370 m²
XIV. kerület
Eladó téglalakás

Budapest, XIV. kerület

59.999 M Ft
2 szoba
31 m²
II. kerület
Eladó téglalakás

Budapest, II. kerület

450 M Ft
4 szoba
138 m²
XIV. kerület
Eladó panellakás

Budapest, XIV. kerület

72.99 M Ft
2 szoba
55 m²
II. kerület
Eladó téglalakás

Budapest, II. kerület

270.4 M Ft
3 szoba
73 m²
II. kerület
Eladó téglalakás

Budapest, II. kerület

421.6 M Ft
5 szoba
138 m²
VII. kerület, Külső Erzsébetváros, Csengery utca
Eladó téglalakás

Budapest, VII. kerület

49.9 M Ft
1 szoba
35 m²
XIII. kerület, Angyalföld, Jász utca
Eladó téglalakás

Budapest, XIII. kerület

91.5 M Ft
2 szoba
47 m²
II. kerület
Eladó téglalakás

Budapest, II. kerület

700 M Ft
4 szoba
236 m²

Falusi CSOK ingatlanok

Balatonszemes, Ady Endre u
Eladó téglalakás

Balatonszemes

78.9 M Ft
2 szoba
46 m²
Szabadbattyán
Eladó családi ház

Szabadbattyán

79.6 M Ft
4 szoba
101 m²
Tihany
Eladó családi ház

Tihany

180 M Ft
3 szoba
120 m²
Biharkeresztes
Eladó családi ház

Biharkeresztes

69.99 M Ft
5 szoba
115 m²
Törtel
Eladó családi ház

Törtel

31 M Ft
3 szoba
66 m²
Táborfalva
Eladó családi ház

Táborfalva

34.9 M Ft
3 szoba
49 m²
Szentmártonkáta
Eladó családi ház

Szentmártonkáta

59.99 M Ft
6 szoba
117 m²
Törtel
Eladó családi ház

Törtel

32 M Ft
2 szoba
67 m²