Eladó téglalakás
Budapest, I. kerület, 2. emelet 
Részletes adatok
Az OTP Bank lakáshitel ajánlataFizetett hirdetés
Induló törlesztőrészlet
101 262 Ft /hóTörlesztőrészlet a 13. hónaptól
129 106 Ft /hóInduló törlesztőrészlet
135 016 Ft /hóTörlesztőrészlet a 13. hónaptól
172 142 Ft /hóA tájékoztatás nem teljes körű és nem minősül ajánlattételnek. Az OTP Évnyerő Lakáshitelei 1 éves türelmi idős kölcsönök, amellyel az első 12 hónapban alacsonyabb a havi törlesztőrészlet. A tőke törlesztését a 13. hónaptól kell megkezdeni.
Eladó téglalakás leírása
Ha a Duna parton szeretne esténként sétálni vagy kocogni, ez a lakás ideális választás lehet. Csodás helyen, prémium lokációval, klasszikus lakás a Fő utcán.
A z ingatlant teljes mértékben felújította a tulajdonosa. Bejárati ajtó, összes nyílászáró, strangok, és a cirkó is ki lett cserélve. A meleget praktikusan padlófűtés szolgáltatja. Klíma és riasztó kiállások előkészítve. Konyhabútor és a minőségi gépek is teljesen újak. 
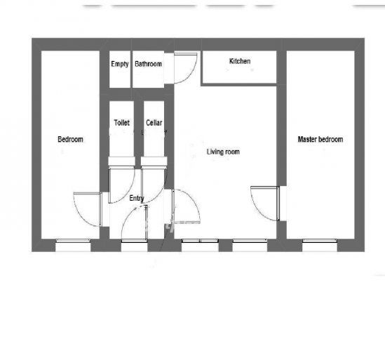
A külön bejáratú szobák mérete és elhelyezkedése is ideális, a mellékelt alaprajzon megtekinthető.
Közös költség 15.000.-Ft, ami tartalmazza a vízdíjat is. A társasháznak van megtakarítása, az épületben mindössze 24 lakás van. 
Azonnal költözhető ez a gyönyörű lakás.
Az OTP Bank kedvezményes lakáshitelével segítjük a vásárlását, egyedi kamatfeltételekkel és díjmentes ügyintézéssel. Amennyiben a lakás felkeltette érdeklődését és szívesen megnézné, akkor hívjon bizalommal, akár hétvégén is! Kérem, tekintse meg az ingatlan bemutató videóját: 
Referencia szám: M309813
Hirdetés feltöltve: 2025. 10. 31. Utoljára módosítva: 2025. 10. 31.
3 szobás téglalakások ára Budapesten
Ebből az összehasonlításból megtudhatod, hogyan viszonyul a lakás ára a környékbeli téglalakások átlagos árához. Ez nem azt jelenti, hogy ennyivel olcsóbb vagy drágább, mint amennyit a lakás ér, hanem hogy ennyivel tér el a környékbeli átlagtól.
Az ingatlan elhelyezkedése
Cím: Budapest, I. kerület, 2. emelet
 
 
 
 
 
 
 
 
 
 
 
 
 
 
 
 
 
 
 
 
 
 
 
 
 
 
 
 
 
 
 
 
 
 
